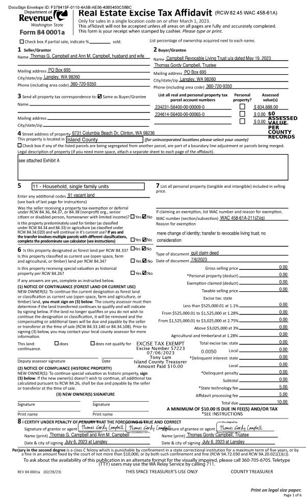
Property
Account |
| Property ID: | 181715 | Abbreviated Legal Description: | ARROWHD BCH LOT 8 BLK 1 |
| Geographic ID: | S6050-00-01008-0 | Agent Code: | |
| Type: | Real | | |
| Tax Area: | 510 - APPRAISER-Stan/Cam Schl Dist, improved & 1 acre or less | Land Use Code | 11 |
| Open Space: | N | DFL | N |
| Historic Property: | N | Remodel Property: | N |
| Multi-Family Redevelopment: | N | | |
| Township: | | Section: | |
| Range: | |
Location |
| Address: | 357 ARROWHEAD BEACH RD CAMANO ISLAND, WA 98282 | Mapsco: | |
| Neighborhood: | North Camano | Map ID: | 950 |
| Neighborhood CD: | 06-C |
Owner |
| Name: | MARTINEZ TTEE, LAUREN M | Owner ID: | 306232 |
| Mailing Address: | ALISSA A. MARTINEZ TTEE 2029 CENTURY PARK EAST STE #800 LOS ANGELES, CA 90067 | % Ownership: | 100.0000000000% |
| | | Exemptions: | |
Taxes and Assessment Details
Values
| (+) Improvement Homesite Value: | + | $0 | |
| (+) Improvement Non-Homesite Value: | + | $373,934 | |
| (+) Land Homesite Value: | + | $0 | |
| (+) Land Non-Homesite Value: | + | $1,000,000 | |
| (+) Curr Use (HS): | + | $0 | $0 |
| (+) Curr Use (NHS): | + | $0 | $0 |
| | | -------------------------- | |
| (=) Market Value: | = | $1,373,934 | |
| (–) Productivity Loss: | – | $0 | |
| | | -------------------------- | |
| (=) Subtotal: | = | $1,373,934 | |
| (+) Senior Appraised Value: | + | $0 | |
| (+) Non-Senior Appraised Value: | + | $1,373,934 | |
| | | -------------------------- | |
| (=) Total Appraised Value: | = | $1,373,934 | |
| (–) Senior Exemption Loss: | – | $0 | |
| (–) Exemption Loss: | – | $0 | |
| | | -------------------------- | |
| (=) Taxable Value: | = | $1,373,934 | |
Taxing Jurisdiction
| Owner: | MARTINEZ TTEE, LAUREN M | | |
| % Ownership: | 100.0000000000% | | |
| Total Value: | $1,373,934 | | |
| Tax Area: | 510 - APPRAISER-Stan/Cam Schl Dist, improved & 1 acre or less |
| CF | Conservation Futures | 0.0316035091 | $1,373,934 | $1,373,934 | $43.42 | | |
| EMS1 | Fire & Rescue Dist #1 Camano GEN (EMS) | 0.3677864386 | $1,373,934 | $1,373,934 | $505.31 | | |
| FIRE1 | Fire & Rescue Dist #1 Camano GEN | 1.2502910536 | $1,373,934 | $1,373,934 | $1,717.82 | | |
| FIRE1BOND | Fire & Rescue Dist #1 Camano BOND | 0.1570001679 | $1,373,934 | $1,373,934 | $215.71 | | |
| CE | County Current Expense | 0.3708482477 | $1,373,934 | $1,373,934 | $509.52 | | |
| CR | County Roads | 0.4584763726 | $1,373,934 | $1,373,934 | $629.92 | | |
| LCIB | Library Sno-Isle BOND (Camano Island) | 0.0396325772 | $1,373,934 | $1,373,934 | $54.45 | | |
| LIB | Library Sno-Isle GEN | 0.3153421757 | $1,373,934 | $1,373,934 | $433.26 | | |
| SCH205_401 | School 205-401 Enrichment | 1.2698420524 | $1,373,934 | $1,373,934 | $1,744.68 | | |
| SCH205BOND | School 205-401 BOND | 0.9396497583 | $1,373,934 | $1,373,934 | $1,291.02 | | |
| ST | State School | 1.3035497053 | $1,373,934 | $1,373,934 | $1,790.99 | | |
| ST2 | State School Part 2 | 0.8169543533 | $1,373,934 | $1,373,934 | $1,122.44 | | |
| | Total Tax Rate: | 7.3209764117 | | | | | |
| | | | | Taxes w/Current Exemptions: | $10,058.54 | | |
| | | | | Taxes w/o Exemptions: | $10,058.54 | | |
Improvement / Building
| Improvement #1: | RESIDENTIAL | State Code: | Y | 2309.6 sqft | Value: | $373,934 |
| Bathrooms: | 2 | Bedrooms: | 3 | | Ceiling: | DRYWALL PAINTED | Exterior Wall/Cover: | COMMON BRICK VENEER | | Floor Covering: | HARDWOOD/CARP 60-40 | Floor Structure: | WOOD W/SUBFLOOR | | Foundation: | CONCRETE | Heating: | FHA GAS | | Interior Finish: | DRYWALL PAINT | Plumbing Fixture Cnt: | 10 | | Roof Slope: | 4" IN 12" | Roof Structure/Cover: | CJ ASPHALT |
|
| | Type | Description | Class CD | Sub Class CD | Year Built | Area |
| | BAS | BASE/MAIN FLOOR | 3 | 0 | 1958 | 1562.0 |
| | OP1 | OPEN PORCH SLAB | 3 | 0 | 1958 | 885.0 |
| | OP3 | OPEN PORCH W/ROOF | 3 | 0 | 1958 | 40.0 |
| | OCP | OPEN CARPORT | 3 | 0 | 1958 | 440.0 |
| | UPS | UPPER STORY | 3 | 0 | 1958 | 747.6 |
| | OWP | OPEN WOOD PORCH W/STEPS | 3 | 0 | 1958 | 270.0 |
Sketch
Property Image
Land
| 1 | LB | LOW BANK | 0.1700 | 7405.20 | 60.00 | 0.00 | 1.00 | $1,000,000 | $0 |
Roll Value History
| 2026 | N/A | N/A | N/A | N/A | N/A |
| 2025 | $373,934 | $1,000,000 | $0 | $1,373,934 | $1,373,934 |
| 2024 | $378,653 | $925,000 | $0 | $1,303,653 | $1,303,653 |
| 2023 | $383,371 | $850,000 | $0 | $1,233,371 | $1,233,371 |
| 2022 | $334,337 | $775,000 | $0 | $1,109,337 | $1,109,337 |
| 2021 | $294,436 | $525,000 | $0 | $819,436 | $819,436 |
| 2020 | $287,827 | $475,000 | $0 | $762,827 | $762,827 |
| 2019 | $224,041 | $475,000 | $0 | $699,041 | $699,041 |
| 2018 | $224,730 | $450,000 | $0 | $674,730 | $674,730 |
| 2017 | $226,069 | $450,000 | $0 | $676,069 | $676,069 |
| 2016 | $221,295 | $450,000 | $0 | $671,295 | $671,295 |
| 2015 | $224,095 | $450,000 | $0 | $674,095 | $674,095 |
| 2014 | $226,897 | $450,000 | $0 | $676,897 | $676,897 |
| 2013 | $229,699 | $450,000 | $0 | $679,699 | $679,699 |
| 2012 | $232,500 | $528,390 | $0 | $760,890 | $760,890 |
| 2011 | $235,300 | $556,200 | $0 | $791,500 | $791,500 |
| 2010 | $227,982 | $556,200 | $0 | $784,182 | $784,182 |
| 2009 | $237,944 | $626,652 | $0 | $864,596 | $864,596 |
| 2008 | $240,978 | $757,359 | $0 | $998,337 | $998,337 |
| 2007 | $244,036 | $630,360 | $0 | $874,396 | $874,396 |
Deed and Sales History
| 1 | 04/14/2022 | QCD | Quit Claim Deed | RAAB TRUSTEE, DONNA MARIE | MARTINEZ TTEE, LAUREN M | | | $0.00 | 54698 | 4551847 |
| 2 | 06/30/2014 | SPWARDEED | Special Warranty Deed | RAAB, DONNA MARIE | RAAB TRUSTEE, DONNA MARIE | | | $0.00 | 15977 | 4362319 |
| 3 | 01/23/2001 | QCD | Quit Claim Deed | RAAB, GEORGE W | RAAB, DONNA MARIE | | | $0.00 | 10253 | 20024106 |
| 4 | 06/01/1997 | WD | Warranty Deed | RAAB, GEORGE W | RAAB, GEORGE W | | | $0.00 | 72105 | 97009879 |
| 5 | 12/01/1992 | QCD | Quit Claim Deed | RAAB, GEORGE W | RAAB, DONNA M | | | $0.00 | 24999 | 92024684 |
| 6 | 12/01/1992 | QCD | Quit Claim Deed | RAAB, DONNA M | RAAB, GEORGE W | | | $0.00 | 24998 | 92024683 |
| 7 | 12/01/1992 | QCD | Quit Claim Deed | RAAB, GEORGE W | RAAB, GEORGE W | | | $0.00 | 24997 | 92024682 |
| 8 | 12/01/1992 | QCD | Quit Claim Deed | RAAB, DONNA M | RAAB, DONNA M | | | $0.00 | 24996 | 92024681 |
| 9 | 01/01/1900 | OTHER | Other - Misc. Documents | Unknown | RAAB, GEORGE W | | | $0.00 | 0 | 0 |
Payout Agreement
| No payout information available.. |