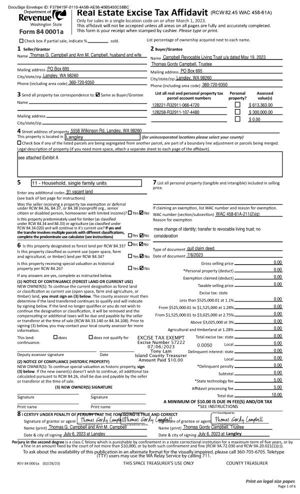
Property
Account |
| Property ID: | 181724 | Abbreviated Legal Description: | ARROWHEAD BCH LOT 9 BLK 1 |
| Geographic ID: | S6050-00-01009-0 | Agent Code: | |
| Type: | Real | | |
| Tax Area: | 510 - APPRAISER-Stan/Cam Schl Dist, improved & 1 acre or less | Land Use Code | 11 |
| Open Space: | N | DFL | N |
| Historic Property: | N | Remodel Property: | N |
| Multi-Family Redevelopment: | N | | |
| Township: | | Section: | |
| Range: | |
Location |
| Address: | 361 ARROWHEAD BEACH RD CAMANO ISLAND, WA 98282 | Mapsco: | |
| Neighborhood: | North Camano | Map ID: | 950 |
| Neighborhood CD: | 06-C |
Owner |
| Name: | JONES, ANNE C | Owner ID: | 300906 |
| Mailing Address: | ELIZABETH M CHRISTIE & THOMAS J CHRISTIE 2120 N STEELE ST TACOMA, WA 98406 | % Ownership: | 100.0000000000% |
| | | Exemptions: | |
Taxes and Assessment Details
Values
| (+) Improvement Homesite Value: | + | $0 | |
| (+) Improvement Non-Homesite Value: | + | $198,230 | |
| (+) Land Homesite Value: | + | $0 | |
| (+) Land Non-Homesite Value: | + | $1,000,000 | |
| (+) Curr Use (HS): | + | $0 | $0 |
| (+) Curr Use (NHS): | + | $0 | $0 |
| | | -------------------------- | |
| (=) Market Value: | = | $1,198,230 | |
| (–) Productivity Loss: | – | $0 | |
| | | -------------------------- | |
| (=) Subtotal: | = | $1,198,230 | |
| (+) Senior Appraised Value: | + | $0 | |
| (+) Non-Senior Appraised Value: | + | $1,198,230 | |
| | | -------------------------- | |
| (=) Total Appraised Value: | = | $1,198,230 | |
| (–) Senior Exemption Loss: | – | $0 | |
| (–) Exemption Loss: | – | $0 | |
| | | -------------------------- | |
| (=) Taxable Value: | = | $1,198,230 | |
Taxing Jurisdiction
| Owner: | JONES, ANNE C | | |
| % Ownership: | 100.0000000000% | | |
| Total Value: | $1,198,230 | | |
| Tax Area: | 510 - APPRAISER-Stan/Cam Schl Dist, improved & 1 acre or less |
| CF | Conservation Futures | 0.0316035091 | $1,198,230 | $1,198,230 | $37.87 | | |
| EMS1 | Fire & Rescue Dist #1 Camano GEN (EMS) | 0.3677864386 | $1,198,230 | $1,198,230 | $440.69 | | |
| FIRE1 | Fire & Rescue Dist #1 Camano GEN | 1.2502910536 | $1,198,230 | $1,198,230 | $1,498.14 | | |
| FIRE1BOND | Fire & Rescue Dist #1 Camano BOND | 0.1570001679 | $1,198,230 | $1,198,230 | $188.12 | | |
| CE | County Current Expense | 0.3708482477 | $1,198,230 | $1,198,230 | $444.36 | | |
| CR | County Roads | 0.4584763726 | $1,198,230 | $1,198,230 | $549.36 | | |
| LCIB | Library Sno-Isle BOND (Camano Island) | 0.0396325772 | $1,198,230 | $1,198,230 | $47.49 | | |
| LIB | Library Sno-Isle GEN | 0.3153421757 | $1,198,230 | $1,198,230 | $377.85 | | |
| SCH205_401 | School 205-401 Enrichment | 1.2698420524 | $1,198,230 | $1,198,230 | $1,521.56 | | |
| SCH205BOND | School 205-401 BOND | 0.9396497583 | $1,198,230 | $1,198,230 | $1,125.92 | | |
| ST | State School | 1.3035497053 | $1,198,230 | $1,198,230 | $1,561.95 | | |
| ST2 | State School Part 2 | 0.8169543533 | $1,198,230 | $1,198,230 | $978.90 | | |
| | Total Tax Rate: | 7.3209764117 | | | | | |
| | | | | Taxes w/Current Exemptions: | $8,772.21 | | |
| | | | | Taxes w/o Exemptions: | $8,772.21 | | |
Improvement / Building
| Improvement #1: | RESIDENTIAL | State Code: | Y | 1579.8 sqft | Value: | $198,230 |
| Bathrooms: | 1.5 | Bedrooms: | 3 | | Ceiling: | DRYWALL PAINTED | Exterior Wall/Cover: | WOOD SIDING | | Floor Covering: | CARPET/VINYL 80-20 | Floor Structure: | WOOD W/SUBFLOOR | | Foundation: | CONCRETE | Heating: | WALL HEAT ELECTRIC | | Interior Finish: | DRYWALL PAINT | Plumbing Fixture Cnt: | 9 | | Roof Slope: | 3" IN 12" | Roof Structure/Cover: | CJ COMP ROLL |
|
| | Type | Description | Class CD | Sub Class CD | Year Built | Area |
| | BAS | BASE/MAIN FLOOR | 3 | 0 | 1951 | 1219.8 |
| | OP1 | OPEN PORCH SLAB | 3 | 0 | 1951 | 814.0 |
| | OCP | OPEN CARPORT | 3 | 0 | 1951 | 206.0 |
| | UTY | STORAGE/UTILITY | 3 | 0 | 1951 | 34.0 |
| | UPS | UPPER STORY | 3 | 0 | 1951 | 360.0 |
| | OP1 | OPEN PORCH SLAB | 3 | 0 | 1951 | 33.0 |
| | UTY | STORAGE/UTILITY | 3 | 0 | 1951 | 198.0 |
Sketch
Property Image
Land
| 1 | LB | LOW BANK | 0.0000 | 0.00 | 60.00 | 0.00 | 1.00 | $1,000,000 | $0 |
Roll Value History
| 2026 | N/A | N/A | N/A | N/A | N/A |
| 2025 | $198,230 | $1,000,000 | $0 | $1,198,230 | $1,198,230 |
| 2024 | $201,366 | $925,000 | $0 | $1,126,366 | $1,126,366 |
| 2023 | $204,500 | $850,000 | $0 | $1,054,500 | $1,054,500 |
| 2022 | $188,019 | $775,000 | $0 | $963,019 | $963,019 |
| 2021 | $165,957 | $525,000 | $0 | $690,957 | $690,957 |
| 2020 | $162,138 | $475,000 | $0 | $637,138 | $637,138 |
| 2019 | $118,489 | $475,000 | $0 | $593,489 | $593,489 |
| 2018 | $118,916 | $450,000 | $0 | $568,916 | $568,916 |
| 2017 | $119,773 | $450,000 | $0 | $569,773 | $569,773 |
| 2016 | $116,306 | $450,000 | $0 | $566,306 | $566,306 |
| 2015 | $118,017 | $450,000 | $0 | $568,017 | $568,017 |
| 2014 | $119,727 | $450,000 | $0 | $569,727 | $569,727 |
| 2013 | $121,438 | $450,000 | $0 | $571,438 | $571,438 |
| 2012 | $123,148 | $528,390 | $0 | $651,538 | $651,538 |
| 2011 | $124,859 | $556,200 | $0 | $681,059 | $681,059 |
| 2010 | $133,008 | $556,200 | $0 | $689,208 | $689,208 |
| 2009 | $137,326 | $626,652 | $0 | $763,978 | $763,978 |
| 2008 | $139,509 | $757,359 | $0 | $896,868 | $896,868 |
| 2007 | $141,624 | $630,360 | $0 | $771,984 | $771,984 |
Deed and Sales History
| 1 | 08/24/2021 | QCD | Quit Claim Deed | PAUL, ELIZABETH M B | JONES, ANNE C | | | $0.00 | 49793 | 4527713 |
| 2 | 11/01/1989 | QCD | Quit Claim Deed | BOLTON, FLORENCE M | PAUL, STEPHEN B | | | $0.00 | 95129 | 89016529 |
| 3 | 10/01/1989 | QCD | Quit Claim Deed | PAUL, STEPHEN B | PAUL, ELIZABETH M | | | $0.00 | 95130 | 89016530 |
| 4 | 05/01/1988 | WD | Warranty Deed | SEATTLE, 1ST N | BOLTON, FLORENCE M | | | $63,000.00 | 81518 | 88005947 |
| 5 | 08/01/1987 | QCD | Quit Claim Deed | BOLTON, JOHN H | SEATTLE, 1ST N | | | $0.00 | 72534 | 87011540 |
| 6 | 01/01/1985 | QCD | Quit Claim Deed | BOLTON, JOHN H | BOLTON, JOHN H | | | $0.00 | 50050 | 85000210 |
| 7 | 12/01/1984 | QCD | Quit Claim Deed | BOLTON, JOHN H | BOLTON, JOHN H | | | $0.00 | 43669 | 84009015 |
| 8 | 12/01/1984 | QCD | Quit Claim Deed | BOLTON, JOHN H | BOLTON, JOHN H | | | $0.00 | 43709 | 84007149 |
| 9 | 01/01/1900 | OTHER | Other - Misc. Documents | Unknown | BOLTON, JOHN H | | | $0.00 | 0 | 0 |
Payout Agreement
| No payout information available.. |