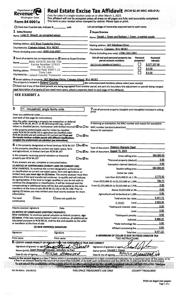
Property
Account |
| Property ID: | 181733 | Abbreviated Legal Description: | ARROWHD BCH LOT 10 BLK 1 |
| Geographic ID: | S6050-00-01010-0 | Agent Code: | |
| Type: | Real | | |
| Tax Area: | 510 - APPRAISER-Stan/Cam Schl Dist, improved & 1 acre or less | Land Use Code | 11 |
| Open Space: | N | DFL | N |
| Historic Property: | N | Remodel Property: | N |
| Multi-Family Redevelopment: | N | | |
| Township: | | Section: | |
| Range: | |
Location |
| Address: | 365 ARROWHEAD BEACH RD CAMANO ISLAND, WA 98282 | Mapsco: | |
| Neighborhood: | North Camano | Map ID: | 950 |
| Neighborhood CD: | 06-C |
Owner |
| Name: | STROHMEIER TRUSTEE, PAUL B | Owner ID: | 274105 |
| Mailing Address: | JILL R STROHMEIER TRUSTEE 10608 EXETER AVE NE SEATTLE, WA 98125 | % Ownership: | 100.0000000000% |
| | | Exemptions: | |
Taxes and Assessment Details
Values
| (+) Improvement Homesite Value: | + | $0 | |
| (+) Improvement Non-Homesite Value: | + | $228,076 | |
| (+) Land Homesite Value: | + | $0 | |
| (+) Land Non-Homesite Value: | + | $1,000,000 | |
| (+) Curr Use (HS): | + | $0 | $0 |
| (+) Curr Use (NHS): | + | $0 | $0 |
| | | -------------------------- | |
| (=) Market Value: | = | $1,228,076 | |
| (–) Productivity Loss: | – | $0 | |
| | | -------------------------- | |
| (=) Subtotal: | = | $1,228,076 | |
| (+) Senior Appraised Value: | + | $0 | |
| (+) Non-Senior Appraised Value: | + | $1,228,076 | |
| | | -------------------------- | |
| (=) Total Appraised Value: | = | $1,228,076 | |
| (–) Senior Exemption Loss: | – | $0 | |
| (–) Exemption Loss: | – | $0 | |
| | | -------------------------- | |
| (=) Taxable Value: | = | $1,228,076 | |
Taxing Jurisdiction
| Owner: | STROHMEIER TRUSTEE, PAUL B | | |
| % Ownership: | 100.0000000000% | | |
| Total Value: | $1,228,076 | | |
| Tax Area: | 510 - APPRAISER-Stan/Cam Schl Dist, improved & 1 acre or less |
| CF | Conservation Futures | 0.0316035091 | $1,228,076 | $1,228,076 | $38.81 | | |
| EMS1 | Fire & Rescue Dist #1 Camano GEN (EMS) | 0.3677864386 | $1,228,076 | $1,228,076 | $451.67 | | |
| FIRE1 | Fire & Rescue Dist #1 Camano GEN | 1.2502910536 | $1,228,076 | $1,228,076 | $1,535.45 | | |
| FIRE1BOND | Fire & Rescue Dist #1 Camano BOND | 0.1570001679 | $1,228,076 | $1,228,076 | $192.81 | | |
| CE | County Current Expense | 0.3708482477 | $1,228,076 | $1,228,076 | $455.43 | | |
| CR | County Roads | 0.4584763726 | $1,228,076 | $1,228,076 | $563.04 | | |
| LCIB | Library Sno-Isle BOND (Camano Island) | 0.0396325772 | $1,228,076 | $1,228,076 | $48.67 | | |
| LIB | Library Sno-Isle GEN | 0.3153421757 | $1,228,076 | $1,228,076 | $387.26 | | |
| SCH205_401 | School 205-401 Enrichment | 1.2698420524 | $1,228,076 | $1,228,076 | $1,559.46 | | |
| SCH205BOND | School 205-401 BOND | 0.9396497583 | $1,228,076 | $1,228,076 | $1,153.96 | | |
| ST | State School | 1.3035497053 | $1,228,076 | $1,228,076 | $1,600.86 | | |
| ST2 | State School Part 2 | 0.8169543533 | $1,228,076 | $1,228,076 | $1,003.28 | | |
| | Total Tax Rate: | 7.3209764117 | | | | | |
| | | | | Taxes w/Current Exemptions: | $8,990.70 | | |
| | | | | Taxes w/o Exemptions: | $8,990.70 | | |
Improvement / Building
| Improvement #1: | RESIDENTIAL | State Code: | Y | 1434.0 sqft | Value: | $228,076 |
| Bathrooms: | 2 | Bedrooms: | 3 | | Ceiling: | DRYWALL PAINTED | Exterior Wall/Cover: | WOOD SIDING | | Floor Covering: | CERAMIC TILE/CPT 40-60 | Floor Structure: | WOOD W/SUBFLOOR | | Foundation: | CONCRETE | Heating: | FHA GAS | | Interior Finish: | DRYWALL PAINT | Plumbing Fixture Cnt: | 9 | | Roof Slope: | 4" IN 12" | Roof Structure/Cover: | CJ ASPHALT |
|
| | Type | Description | Class CD | Sub Class CD | Year Built | Area |
| | BAS | BASE/MAIN FLOOR | 3 | 0 | 1947 | 1434.0 |
| | OP1 | OPEN PORCH SLAB | 3 | 0 | 1947 | 645.0 |
| | OP4 | OPEN PORCH W/CEILING-ROOF | 3 | 0 | 1947 | 80.0 |
| | OP4 | OPEN PORCH W/CEILING-ROOF | 3 | 0 | 1947 | 40.0 |
| | OP4 | OPEN PORCH W/CEILING-ROOF | 3 | 0 | 1947 | 143.0 |
| | OCP | OPEN CARPORT | 3 | 0 | 1947 | 496.0 |
| | UTY | STORAGE/UTILITY | 3 | 0 | 1947 | 80.0 |
| | OCP | OPEN CARPORT | 3 | 0 | 1947 | 360.0 |
Sketch
Property Image
Land
| 1 | LB | LOW BANK | 0.1700 | 7405.20 | 60.00 | 0.00 | 1.00 | $1,000,000 | $0 |
Roll Value History
| 2026 | N/A | N/A | N/A | N/A | N/A |
| 2025 | $228,076 | $1,000,000 | $0 | $1,228,076 | $1,228,076 |
| 2024 | $231,572 | $925,000 | $0 | $1,156,572 | $1,156,572 |
| 2023 | $235,068 | $850,000 | $0 | $1,085,068 | $1,085,068 |
| 2022 | $216,092 | $775,000 | $0 | $991,092 | $991,092 |
| 2021 | $190,742 | $525,000 | $0 | $715,742 | $715,742 |
| 2020 | $186,362 | $475,000 | $0 | $661,362 | $661,362 |
| 2019 | $135,563 | $475,000 | $0 | $610,563 | $610,563 |
| 2018 | $136,054 | $450,000 | $0 | $586,054 | $586,054 |
| 2017 | $137,032 | $450,000 | $0 | $587,032 | $587,032 |
| 2016 | $114,792 | $450,000 | $0 | $564,792 | $564,792 |
| 2015 | $124,359 | $450,000 | $0 | $574,359 | $574,359 |
| 2014 | $126,302 | $450,000 | $0 | $576,302 | $576,302 |
| 2013 | $128,244 | $450,000 | $0 | $578,244 | $578,244 |
| 2012 | $130,188 | $528,390 | $0 | $658,578 | $658,578 |
| 2011 | $132,129 | $556,200 | $0 | $688,329 | $688,329 |
| 2010 | $141,611 | $556,200 | $0 | $697,811 | $697,811 |
| 2009 | $147,770 | $626,652 | $0 | $774,422 | $774,422 |
| 2008 | $149,867 | $757,359 | $0 | $907,226 | $907,226 |
| 2007 | $152,053 | $630,360 | $0 | $782,413 | $782,413 |
Deed and Sales History
| 1 | 03/07/2016 | WD | Warranty Deed | CALLIES FAMILY LLC | STROHMEIER TRUSTEE, PAUL B | | | $590,000.00 | 23558 | 4395976 |
| 2 | 04/26/2004 | QCD | Quit Claim Deed | CALLIES FAMILY LLC, | CALLIES FAMILY LLC, | | | $0.00 | 41694 | 4098618 |
| 3 | 04/26/2004 | QCD | Quit Claim Deed | CALLIES, JEFFREY ALLEN | CALLIES FAMILY LLC, | | | $0.00 | 41695 | 4098619 |
| 4 | 08/18/2000 | QCD | Quit Claim Deed | CALLIES, ROBERT W | CALLIES, JEFFREY ALLEN | | | $0.00 | 3219 | 20015078 |
| 5 | 03/01/1996 | QCD | Quit Claim Deed | CALLIES, ROBERT W | CALLIES, ROBERT W | | | $0.00 | 61101 | 96005633 |
| 6 | 12/01/1991 | WD | Warranty Deed | CALLIES, ROBERT W | CALLIES, ROBERT W | | | $0.00 | 14241 | 91018384 |
| 7 | 05/01/1990 | WD | Warranty Deed | CALLIES, ROBERT W | CALLIES, ROBERT W | | | $0.00 | 2817 | 90009191 |
| 8 | 08/01/1988 | WD | Warranty Deed | CALLIES, ROBERT W | CALLIES, ROBERT W | | | $0.00 | 83050 | 88011388 |
| 9 | 02/01/1982 | TRUSTEED | Trustee's Deed | CALLIES, ROBERT W | CALLIES, ROBERT W | | | $0.00 | 20510 | 0 |
| 10 | 01/01/1900 | OTHER | Other - Misc. Documents | Unknown | CALLIES, ROBERT W | | | $0.00 | 0 | 0 |
Payout Agreement
| No payout information available.. |