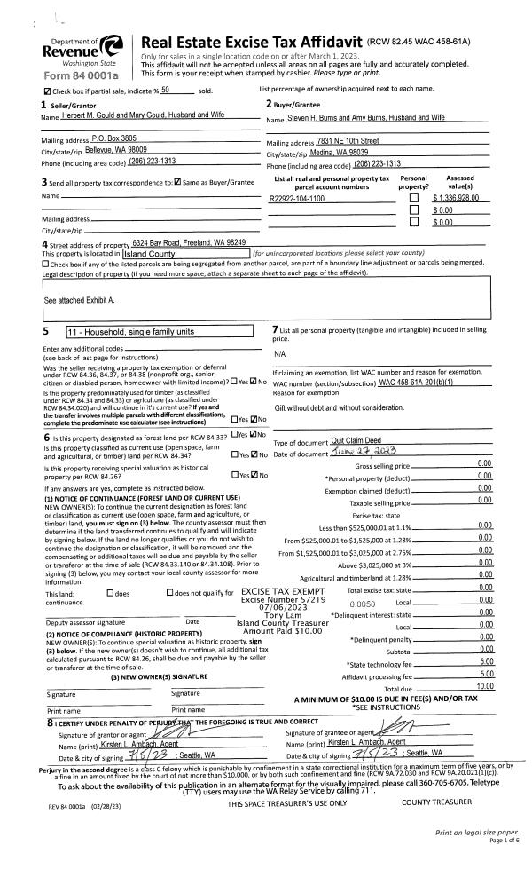
Property
Account |
| Property ID: | 181779 | Abbreviated Legal Description: | ARROWHD BCH LOT 15 BLK 1 |
| Geographic ID: | S6050-00-01015-0 | Agent Code: | |
| Type: | Real | | |
| Tax Area: | 510 - APPRAISER-Stan/Cam Schl Dist, improved & 1 acre or less | Land Use Code | 11 |
| Open Space: | N | DFL | N |
| Historic Property: | N | Remodel Property: | N |
| Multi-Family Redevelopment: | N | | |
| Township: | | Section: | |
| Range: | |
Location |
| Address: | 387 ARROWHEAD BEACH RD CAMANO ISLAND, WA 98282 | Mapsco: | |
| Neighborhood: | North Camano | Map ID: | 950 |
| Neighborhood CD: | 06-C |
Owner |
| Name: | UDOMRITTHIRUJ, PATSORN | Owner ID: | 261785 |
| Mailing Address: | SIRA UDOMRITTHIRUJ 35 SOI 13 PETCHBURI RD BANGKOK 10400 | % Ownership: | 100.0000000000% |
| | | Exemptions: | |
Taxes and Assessment Details
Values
| (+) Improvement Homesite Value: | + | $0 | |
| (+) Improvement Non-Homesite Value: | + | $179,047 | |
| (+) Land Homesite Value: | + | $0 | |
| (+) Land Non-Homesite Value: | + | $1,000,000 | |
| (+) Curr Use (HS): | + | $0 | $0 |
| (+) Curr Use (NHS): | + | $0 | $0 |
| | | -------------------------- | |
| (=) Market Value: | = | $1,179,047 | |
| (–) Productivity Loss: | – | $0 | |
| | | -------------------------- | |
| (=) Subtotal: | = | $1,179,047 | |
| (+) Senior Appraised Value: | + | $0 | |
| (+) Non-Senior Appraised Value: | + | $1,179,047 | |
| | | -------------------------- | |
| (=) Total Appraised Value: | = | $1,179,047 | |
| (–) Senior Exemption Loss: | – | $0 | |
| (–) Exemption Loss: | – | $0 | |
| | | -------------------------- | |
| (=) Taxable Value: | = | $1,179,047 | |
Taxing Jurisdiction
| Owner: | UDOMRITTHIRUJ, PATSORN | | |
| % Ownership: | 100.0000000000% | | |
| Total Value: | $1,179,047 | | |
| Tax Area: | 510 - APPRAISER-Stan/Cam Schl Dist, improved & 1 acre or less |
| CF | Conservation Futures | 0.0316035091 | $1,179,047 | $1,179,047 | $37.26 | | |
| EMS1 | Fire & Rescue Dist #1 Camano GEN (EMS) | 0.3677864386 | $1,179,047 | $1,179,047 | $433.64 | | |
| FIRE1 | Fire & Rescue Dist #1 Camano GEN | 1.2502910536 | $1,179,047 | $1,179,047 | $1,474.15 | | |
| FIRE1BOND | Fire & Rescue Dist #1 Camano BOND | 0.1570001679 | $1,179,047 | $1,179,047 | $185.11 | | |
| CE | County Current Expense | 0.3708482477 | $1,179,047 | $1,179,047 | $437.25 | | |
| CR | County Roads | 0.4584763726 | $1,179,047 | $1,179,047 | $540.57 | | |
| LCIB | Library Sno-Isle BOND (Camano Island) | 0.0396325772 | $1,179,047 | $1,179,047 | $46.73 | | |
| LIB | Library Sno-Isle GEN | 0.3153421757 | $1,179,047 | $1,179,047 | $371.80 | | |
| SCH205_401 | School 205-401 Enrichment | 1.2698420524 | $1,179,047 | $1,179,047 | $1,497.20 | | |
| SCH205BOND | School 205-401 BOND | 0.9396497583 | $1,179,047 | $1,179,047 | $1,107.89 | | |
| ST | State School | 1.3035497053 | $1,179,047 | $1,179,047 | $1,536.95 | | |
| ST2 | State School Part 2 | 0.8169543533 | $1,179,047 | $1,179,047 | $963.23 | | |
| | Total Tax Rate: | 7.3209764117 | | | | | |
| | | | | Taxes w/Current Exemptions: | $8,631.78 | | |
| | | | | Taxes w/o Exemptions: | $8,631.78 | | |
Improvement / Building
| Improvement #1: | RESIDENTIAL | State Code: | Y | 1200.0 sqft | Value: | $179,047 |
| Bathrooms: | 1.5 | Bedrooms: | 2 | | Ceiling: | DRYWALL PAINTED | Exterior Wall/Cover: | WOOD SIDING | | Floor Covering: | CARPET/VINYL 60-40 | Floor Structure: | WOOD W/SUBFLOOR | | Foundation: | CONCRETE | Heating: | WALL HEAT ELECTRIC | | Interior Finish: | DRYWALL PAINT | Plumbing Fixture Cnt: | 8 | | Roof Slope: | 3" IN 12" | Roof Structure/Cover: | CJ ASPHALT |
|
| | Type | Description | Class CD | Sub Class CD | Year Built | Area |
| | BAS | BASE/MAIN FLOOR | 3 | 0 | 1951 | 1200.0 |
| | OWP | OPEN WOOD PORCH W/STEPS | 3 | 0 | 1951 | 720.0 |
| | DGR | DETACHED GARAGE | 3 | 0 | 1951 | 480.0 |
Sketch
Property Image
Land
| 1 | LB | LOW BANK | 0.0000 | 0.00 | 60.00 | 0.00 | 1.00 | $1,000,000 | $0 |
Roll Value History
| 2026 | N/A | N/A | N/A | N/A | N/A |
| 2025 | $179,047 | $1,000,000 | $0 | $1,179,047 | $1,179,047 |
| 2024 | $181,792 | $925,000 | $0 | $1,106,792 | $1,106,792 |
| 2023 | $184,535 | $850,000 | $0 | $1,034,535 | $1,034,535 |
| 2022 | $169,576 | $775,000 | $0 | $944,576 | $944,576 |
| 2021 | $154,251 | $525,000 | $0 | $679,251 | $679,251 |
| 2020 | $150,498 | $475,000 | $0 | $625,498 | $625,498 |
| 2019 | $106,453 | $475,000 | $0 | $581,453 | $581,453 |
| 2018 | $106,826 | $450,000 | $0 | $556,826 | $556,826 |
| 2017 | $107,572 | $450,000 | $0 | $557,572 | $557,572 |
| 2016 | $109,067 | $450,000 | $0 | $559,067 | $559,067 |
| 2015 | $91,100 | $450,000 | $0 | $541,100 | $541,100 |
| 2014 | $92,643 | $450,000 | $0 | $542,643 | $542,643 |
| 2013 | $94,187 | $450,000 | $0 | $544,187 | $544,187 |
| 2012 | $95,732 | $528,390 | $0 | $624,122 | $624,122 |
| 2011 | $97,275 | $556,200 | $0 | $653,475 | $653,475 |
| 2010 | $95,136 | $556,200 | $0 | $651,336 | $651,336 |
| 2009 | $99,101 | $626,652 | $0 | $725,753 | $725,753 |
| 2008 | $100,615 | $757,359 | $0 | $857,974 | $857,974 |
| 2007 | $102,124 | $630,360 | $0 | $732,484 | $732,484 |
Deed and Sales History
| 1 | 05/03/2013 | WD | Warranty Deed | HAMLEY, JAMES P | UDOMRITTHIRUJ, PATSORN | | | $650,000.00 | 11325 | 4340004 |
| 2 | 07/11/2011 | QCD | Quit Claim Deed | HAMLEY ESTATE, IDA MAE | HAMLEY, JAMES P | | | $0.00 | 5380 | 4300311 |
| 3 | 07/11/2011 | QCD | Quit Claim Deed | HAMLEY, JAMES E | HAMLEY ESTATE, IDA MAE | | | $0.00 | 5379 | 4300313 |
Payout Agreement
| No payout information available.. |