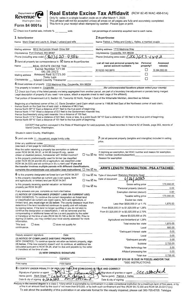
Property
Account |
| Property ID: | 181822 | Abbreviated Legal Description: | ARROWHD BCH LOT 3 BLK 2 |
| Geographic ID: | S6050-00-02003-0 | Agent Code: | |
| Type: | Real | | |
| Tax Area: | 510 - APPRAISER-Stan/Cam Schl Dist, improved & 1 acre or less | Land Use Code | 11 |
| Open Space: | N | DFL | N |
| Historic Property: | N | Remodel Property: | N |
| Multi-Family Redevelopment: | N | | |
| Township: | | Section: | |
| Range: | |
Location |
| Address: | 352 ARROWHEAD BEACH RD CAMANO ISLAND, WA 98282 | Mapsco: | |
| Neighborhood: | North Camano | Map ID: | 950 |
| Neighborhood CD: | 06-C |
Owner |
| Name: | COVERT, AILEEN A | Owner ID: | 312164 |
| Mailing Address: | 5964 B CEDAR ST FREELAND, WA 98249 | % Ownership: | 100.0000000000% |
| | | Exemptions: | |
Taxes and Assessment Details
Values
| (+) Improvement Homesite Value: | + | $0 | |
| (+) Improvement Non-Homesite Value: | + | $4,000 | |
| (+) Land Homesite Value: | + | $0 | |
| (+) Land Non-Homesite Value: | + | $200,000 | |
| (+) Curr Use (HS): | + | $0 | $0 |
| (+) Curr Use (NHS): | + | $0 | $0 |
| | | -------------------------- | |
| (=) Market Value: | = | $204,000 | |
| (–) Productivity Loss: | – | $0 | |
| | | -------------------------- | |
| (=) Subtotal: | = | $204,000 | |
| (+) Senior Appraised Value: | + | $0 | |
| (+) Non-Senior Appraised Value: | + | $204,000 | |
| | | -------------------------- | |
| (=) Total Appraised Value: | = | $204,000 | |
| (–) Senior Exemption Loss: | – | $0 | |
| (–) Exemption Loss: | – | $0 | |
| | | -------------------------- | |
| (=) Taxable Value: | = | $204,000 | |
Taxing Jurisdiction
| Owner: | COVERT, AILEEN A | | |
| % Ownership: | 100.0000000000% | | |
| Total Value: | $204,000 | | |
| Tax Area: | 510 - APPRAISER-Stan/Cam Schl Dist, improved & 1 acre or less |
| CF | Conservation Futures | 0.0316035091 | $204,000 | $204,000 | $6.45 | | |
| EMS1 | Fire & Rescue Dist #1 Camano GEN (EMS) | 0.3677864386 | $204,000 | $204,000 | $75.03 | | |
| FIRE1 | Fire & Rescue Dist #1 Camano GEN | 1.2502910536 | $204,000 | $204,000 | $255.06 | | |
| FIRE1BOND | Fire & Rescue Dist #1 Camano BOND | 0.1570001679 | $204,000 | $204,000 | $32.03 | | |
| CE | County Current Expense | 0.3708482477 | $204,000 | $204,000 | $75.65 | | |
| CR | County Roads | 0.4584763726 | $204,000 | $204,000 | $93.53 | | |
| LCIB | Library Sno-Isle BOND (Camano Island) | 0.0396325772 | $204,000 | $204,000 | $8.09 | | |
| LIB | Library Sno-Isle GEN | 0.3153421757 | $204,000 | $204,000 | $64.33 | | |
| SCH205_401 | School 205-401 Enrichment | 1.2698420524 | $204,000 | $204,000 | $259.05 | | |
| SCH205BOND | School 205-401 BOND | 0.9396497583 | $204,000 | $204,000 | $191.69 | | |
| ST | State School | 1.3035497053 | $204,000 | $204,000 | $265.92 | | |
| ST2 | State School Part 2 | 0.8169543533 | $204,000 | $204,000 | $166.66 | | |
| | Total Tax Rate: | 7.3209764117 | | | | | |
| | | | | Taxes w/Current Exemptions: | $1,493.49 | | |
| | | | | Taxes w/o Exemptions: | $1,493.49 | | |
Improvement / Building
| Improvement #1: | RESIDENTIAL | State Code: | Y | 0.0 sqft | Value: | $4,000 |
Sketch
| No sketches available for this property. |
Property Image
Land
| 1 | 13 | SQ (06001-08000) | 0.0000 | 0.00 | 0.00 | 0.00 | 1.00 | $200,000 | $0 |
Roll Value History
| 2026 | N/A | N/A | N/A | N/A | N/A |
| 2025 | $4,000 | $200,000 | $0 | $204,000 | $204,000 |
| 2024 | $4,000 | $200,000 | $0 | $204,000 | $204,000 |
| 2023 | $4,000 | $200,000 | $0 | $204,000 | $204,000 |
| 2022 | $4,000 | $150,000 | $0 | $154,000 | $154,000 |
| 2021 | $4,000 | $120,000 | $0 | $124,000 | $124,000 |
| 2020 | $4,000 | $120,000 | $0 | $124,000 | $124,000 |
| 2019 | $4,000 | $120,000 | $0 | $124,000 | $124,000 |
| 2018 | $4,000 | $120,000 | $0 | $124,000 | $124,000 |
| 2017 | $4,000 | $120,000 | $0 | $124,000 | $124,000 |
| 2016 | $4,000 | $100,000 | $0 | $104,000 | $104,000 |
| 2015 | $4,000 | $100,000 | $0 | $104,000 | $104,000 |
| 2014 | $4,000 | $100,000 | $0 | $104,000 | $104,000 |
| 2013 | $4,000 | $100,000 | $0 | $104,000 | $104,000 |
| 2012 | $4,000 | $108,000 | $0 | $112,000 | $112,000 |
| 2011 | $4,000 | $135,000 | $0 | $139,000 | $139,000 |
| 2010 | $4,000 | $135,000 | $0 | $139,000 | $139,000 |
| 2009 | $4,000 | $165,000 | $0 | $169,000 | $169,000 |
| 2008 | $4,000 | $165,000 | $0 | $169,000 | $169,000 |
| 2007 | $4,000 | $165,000 | $0 | $169,000 | $169,000 |
Deed and Sales History
| 1 | 04/25/2024 | QCD | Quit Claim Deed | COVERT TTEE, AILEEN A | COVERT, AILEEN A | | | $0.00 | 59785 | 4571798 |
| 2 | 10/01/1995 | QCD | Quit Claim Deed | GOETZ, AILEEN | COVERT, AILEEN A | | | $0.00 | 53575 | 95016430 |
| 3 | 01/01/1985 | QCD | Quit Claim Deed | GOETZ, RONALD J | GOETZ, AILEEN | | | $0.00 | 50092 | 85000414 |
| 4 | 01/01/1900 | OTHER | Other - Misc. Documents | Unknown | GOETZ, RONALD J | | | $0.00 | 0 | 0 |
Payout Agreement
| No payout information available.. |