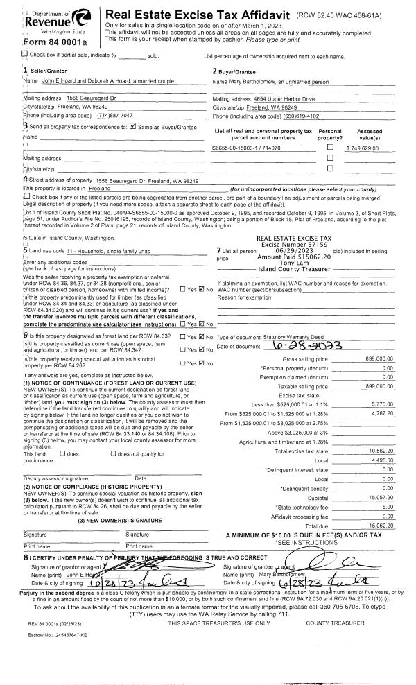
Property
Account |
| Property ID: | 181840 | Abbreviated Legal Description: | ARROWHD BCH LOT 5 BLK 2 |
| Geographic ID: | S6050-00-02005-0 | Agent Code: | |
| Type: | Real | | |
| Tax Area: | 510 - APPRAISER-Stan/Cam Schl Dist, improved & 1 acre or less | Land Use Code | 11 |
| Open Space: | N | DFL | N |
| Historic Property: | N | Remodel Property: | N |
| Multi-Family Redevelopment: | N | | |
| Township: | | Section: | |
| Range: | |
Location |
| Address: | 358 ARROWHEAD BEACH RD CAMANO ISLAND, WA 98282 | Mapsco: | |
| Neighborhood: | North Camano | Map ID: | 950 |
| Neighborhood CD: | 06-C |
Owner |
| Name: | DICKSON, KAREN | Owner ID: | 154583 |
| Mailing Address: | 457 E NORTH CAMANO DR CAMANO ISLAND, WA 98282-7362 | % Ownership: | 100.0000000000% |
| | | Exemptions: | |
Taxes and Assessment Details
Values
| (+) Improvement Homesite Value: | + | $0 | |
| (+) Improvement Non-Homesite Value: | + | $101,066 | |
| (+) Land Homesite Value: | + | $0 | |
| (+) Land Non-Homesite Value: | + | $270,000 | |
| (+) Curr Use (HS): | + | $0 | $0 |
| (+) Curr Use (NHS): | + | $0 | $0 |
| | | -------------------------- | |
| (=) Market Value: | = | $371,066 | |
| (–) Productivity Loss: | – | $0 | |
| | | -------------------------- | |
| (=) Subtotal: | = | $371,066 | |
| (+) Senior Appraised Value: | + | $0 | |
| (+) Non-Senior Appraised Value: | + | $371,066 | |
| | | -------------------------- | |
| (=) Total Appraised Value: | = | $371,066 | |
| (–) Senior Exemption Loss: | – | $0 | |
| (–) Exemption Loss: | – | $0 | |
| | | -------------------------- | |
| (=) Taxable Value: | = | $371,066 | |
Taxing Jurisdiction
| Owner: | DICKSON, KAREN | | |
| % Ownership: | 100.0000000000% | | |
| Total Value: | $371,066 | | |
| Tax Area: | 510 - APPRAISER-Stan/Cam Schl Dist, improved & 1 acre or less |
| CF | Conservation Futures | 0.0316035091 | $371,066 | $371,066 | $11.73 | | |
| EMS1 | Fire & Rescue Dist #1 Camano GEN (EMS) | 0.3677864386 | $371,066 | $371,066 | $136.47 | | |
| FIRE1 | Fire & Rescue Dist #1 Camano GEN | 1.2502910536 | $371,066 | $371,066 | $463.94 | | |
| FIRE1BOND | Fire & Rescue Dist #1 Camano BOND | 0.1570001679 | $371,066 | $371,066 | $58.26 | | |
| CE | County Current Expense | 0.3708482477 | $371,066 | $371,066 | $137.61 | | |
| CR | County Roads | 0.4584763726 | $371,066 | $371,066 | $170.12 | | |
| LCIB | Library Sno-Isle BOND (Camano Island) | 0.0396325772 | $371,066 | $371,066 | $14.71 | | |
| LIB | Library Sno-Isle GEN | 0.3153421757 | $371,066 | $371,066 | $117.01 | | |
| SCH205_401 | School 205-401 Enrichment | 1.2698420524 | $371,066 | $371,066 | $471.20 | | |
| SCH205BOND | School 205-401 BOND | 0.9396497583 | $371,066 | $371,066 | $348.67 | | |
| ST | State School | 1.3035497053 | $371,066 | $371,066 | $483.70 | | |
| ST2 | State School Part 2 | 0.8169543533 | $371,066 | $371,066 | $303.14 | | |
| | Total Tax Rate: | 7.3209764117 | | | | | |
| | | | | Taxes w/Current Exemptions: | $2,716.56 | | |
| | | | | Taxes w/o Exemptions: | $2,716.56 | | |
Improvement / Building
| Improvement #1: | RESIDENTIAL | State Code: | Y | 768.0 sqft | Value: | $101,066 |
| Bathrooms: | 1 | Bedrooms: | 2 | | Ceiling: | DRYWALL PAINTED | Exterior Wall/Cover: | PLY/HARDBOARD T-111 | | Floor Covering: | CARPET/VINYL 80-20 | Floor Structure: | SLAB ON GRADE | | Foundation: | CONCRETE | Heating: | BASEBOARD ELECTRIC | | Interior Finish: | DRYWALL PAINT | Plumbing Fixture Cnt: | 6 | | Roof Slope: | 4" IN 12" | Roof Structure/Cover: | CJ ASPHALT |
|
Sketch
Property Image
Land
| 1 | 13 | SQ (06001-08000) | 0.1700 | 7405.20 | 0.00 | 0.00 | 1.00 | $270,000 | $0 |
Roll Value History
| 2026 | N/A | N/A | N/A | N/A | N/A |
| 2025 | $101,066 | $270,000 | $0 | $371,066 | $371,066 |
| 2024 | $104,853 | $260,000 | $0 | $364,853 | $364,853 |
| 2023 | $106,436 | $260,000 | $0 | $366,436 | $366,436 |
| 2022 | $94,942 | $210,000 | $0 | $304,942 | $304,942 |
| 2021 | $83,804 | $160,000 | $0 | $243,804 | $243,804 |
| 2020 | $81,638 | $130,000 | $0 | $211,638 | $211,638 |
| 2019 | $56,784 | $170,000 | $0 | $226,784 | $226,784 |
| 2018 | $56,989 | $150,000 | $0 | $206,989 | $206,989 |
| 2017 | $57,399 | $120,000 | $0 | $177,399 | $177,399 |
| 2016 | $51,440 | $100,000 | $0 | $151,440 | $151,440 |
| 2015 | $52,326 | $100,000 | $0 | $152,326 | $152,326 |
| 2014 | $53,213 | $100,000 | $0 | $153,213 | $153,213 |
| 2013 | $54,099 | $100,000 | $0 | $154,099 | $154,099 |
| 2012 | $54,987 | $108,000 | $0 | $162,987 | $162,987 |
| 2011 | $55,874 | $135,000 | $0 | $190,874 | $190,874 |
| 2010 | $62,535 | $135,000 | $0 | $197,535 | $197,535 |
| 2009 | $64,507 | $165,000 | $0 | $229,507 | $229,507 |
| 2008 | $65,568 | $165,000 | $0 | $230,568 | $230,568 |
| 2007 | $66,643 | $165,000 | $0 | $231,643 | $231,643 |
Deed and Sales History
| 1 | 10/08/2003 | WD | Warranty Deed | LAPORE, DAVID H | DICKSON, KAREN | | | $165,000.00 | 34643 | 4079303 |
| 2 | 10/01/1997 | WD | Warranty Deed | CALLIES, JEFFREY A | LAPORE, DAVID H | | | $125,000.00 | 73733 | 97017834 |
| 3 | 07/01/1992 | WD | Warranty Deed | HOLMES, JOHN | CALLIES, JEFFREY A | | | $113,000.00 | 22896 | 92014076 |
| 4 | 01/01/1900 | OTHER | Other - Misc. Documents | Unknown | HOLMES, JOHN | | | $0.00 | 0 | 0 |
Payout Agreement
| No payout information available.. |