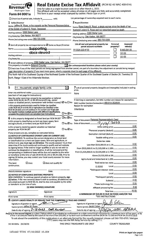
Property
Account |
| Property ID: | 181957 | Abbreviated Legal Description: | ARROWHD BCH LOT 3 BLK 3 & ADJ TIDES |
| Geographic ID: | S6050-00-03003-0 | Agent Code: | |
| Type: | Real | | |
| Tax Area: | 510 - APPRAISER-Stan/Cam Schl Dist, improved & 1 acre or less | Land Use Code | 11 |
| Open Space: | N | DFL | N |
| Historic Property: | N | Remodel Property: | N |
| Multi-Family Redevelopment: | N | | |
| Township: | | Section: | |
| Range: | |
Location |
| Address: | 307 ARROWHEAD POINT LN CAMANO ISLAND, WA 98282 | Mapsco: | |
| Neighborhood: | North Camano | Map ID: | 950 |
| Neighborhood CD: | 06-C |
Owner |
| Name: | VISTEN, RICHARD H | Owner ID: | 29348 |
| Mailing Address: | 307 ARROWHEAD POINT LN CAMANO ISLAND, WA 98282-7270 | % Ownership: | 100.0000000000% |
| | | Exemptions: | |
Taxes and Assessment Details
Values
| (+) Improvement Homesite Value: | + | $0 | |
| (+) Improvement Non-Homesite Value: | + | $461,962 | |
| (+) Land Homesite Value: | + | $0 | |
| (+) Land Non-Homesite Value: | + | $950,510 | |
| (+) Curr Use (HS): | + | $0 | $0 |
| (+) Curr Use (NHS): | + | $0 | $0 |
| | | -------------------------- | |
| (=) Market Value: | = | $1,412,472 | |
| (–) Productivity Loss: | – | $0 | |
| | | -------------------------- | |
| (=) Subtotal: | = | $1,412,472 | |
| (+) Senior Appraised Value: | + | $0 | |
| (+) Non-Senior Appraised Value: | + | $1,412,472 | |
| | | -------------------------- | |
| (=) Total Appraised Value: | = | $1,412,472 | |
| (–) Senior Exemption Loss: | – | $0 | |
| (–) Exemption Loss: | – | $0 | |
| | | -------------------------- | |
| (=) Taxable Value: | = | $1,412,472 | |
Taxing Jurisdiction
| Owner: | VISTEN, RICHARD H | | |
| % Ownership: | 100.0000000000% | | |
| Total Value: | $1,412,472 | | |
| Tax Area: | 510 - APPRAISER-Stan/Cam Schl Dist, improved & 1 acre or less |
| CF | Conservation Futures | 0.0316035091 | $1,412,472 | $1,412,472 | $44.64 | | |
| EMS1 | Fire & Rescue Dist #1 Camano GEN (EMS) | 0.3677864386 | $1,412,472 | $1,412,472 | $519.49 | | |
| FIRE1 | Fire & Rescue Dist #1 Camano GEN | 1.2502910536 | $1,412,472 | $1,412,472 | $1,766.00 | | |
| FIRE1BOND | Fire & Rescue Dist #1 Camano BOND | 0.1570001679 | $1,412,472 | $1,412,472 | $221.76 | | |
| CE | County Current Expense | 0.3708482477 | $1,412,472 | $1,412,472 | $523.81 | | |
| CR | County Roads | 0.4584763726 | $1,412,472 | $1,412,472 | $647.59 | | |
| LCIB | Library Sno-Isle BOND (Camano Island) | 0.0396325772 | $1,412,472 | $1,412,472 | $55.98 | | |
| LIB | Library Sno-Isle GEN | 0.3153421757 | $1,412,472 | $1,412,472 | $445.41 | | |
| SCH205_401 | School 205-401 Enrichment | 1.2698420524 | $1,412,472 | $1,412,472 | $1,793.62 | | |
| SCH205BOND | School 205-401 BOND | 0.9396497583 | $1,412,472 | $1,412,472 | $1,327.23 | | |
| ST | State School | 1.3035497053 | $1,412,472 | $1,412,472 | $1,841.23 | | |
| ST2 | State School Part 2 | 0.8169543533 | $1,412,472 | $1,412,472 | $1,153.93 | | |
| | Total Tax Rate: | 7.3209764117 | | | | | |
| | | | | Taxes w/Current Exemptions: | $10,340.69 | | |
| | | | | Taxes w/o Exemptions: | $10,340.69 | | |
Improvement / Building
| Improvement #1: | RESIDENTIAL | State Code: | Y | 2520.0 sqft | Value: | $461,962 |
| Bathrooms: | 2.5 | Bedrooms: | 2 | | Ceiling: | DRYWALL PAINTED | Exterior Wall/Cover: | WOOD SIDING | | Floor Covering: | HARDWOOD/CARP 20-80 | Floor Structure: | WOOD W/SUBFLOOR | | Foundation: | CONCRETE | Heating: | FHA GAS | | Interior Finish: | DRYWALL PAINT | Plumbing Fixture Cnt: | 13 | | Roof Slope: | 4" IN 12" | Roof Structure/Cover: | CJ ASPHALT |
|
| | Type | Description | Class CD | Sub Class CD | Year Built | Area |
| | BAS | BASE/MAIN FLOOR | 4 | 0 | 1986 | 1285.0 |
| | OP1 | OPEN PORCH SLAB | 4 | 0 | 1986 | 280.0 |
| | AGR | ATTACHED GARAGE | 4 | 0 | 1986 | 576.0 |
| | UPS | UPPER STORY | 4 | 0 | 1986 | 1235.0 |
| | BAW | BALCONY WOOD RAIL | 4 | 0 | 1986 | 60.0 |
| | OWP | OPEN WOOD PORCH W/STEPS | 4 | 0 | 1986 | 611.5 |
| | OWC | OPEN WOOD PORCH W/STEPS/ROOF/C | 4 | 0 | 1986 | 40.0 |
Sketch
Property Image
Land
| 1 | MB | MEDIUM BANK | 0.0000 | 0.00 | 51.00 | 0.00 | 1.00 | $950,000 | $0 |
| 2 | 55 | TIDES | 0.0000 | 0.00 | 51.00 | 0.00 | 1.00 | $510 | $0 |
Roll Value History
| 2026 | N/A | N/A | N/A | N/A | N/A |
| 2025 | $461,962 | $950,510 | $0 | $1,412,472 | $1,412,472 |
| 2024 | $467,790 | $875,510 | $0 | $1,343,300 | $1,343,300 |
| 2023 | $473,620 | $800,510 | $0 | $1,274,130 | $1,274,130 |
| 2022 | $402,474 | $725,510 | $0 | $1,127,984 | $1,127,984 |
| 2021 | $354,570 | $475,510 | $0 | $830,080 | $830,080 |
| 2020 | $345,950 | $425,510 | $0 | $771,460 | $771,460 |
| 2019 | $260,780 | $425,510 | $0 | $686,290 | $686,290 |
| 2018 | $261,602 | $400,510 | $0 | $662,112 | $662,112 |
| 2017 | $263,241 | $350,510 | $0 | $613,751 | $613,751 |
| 2016 | $251,441 | $350,510 | $0 | $601,951 | $601,951 |
| 2015 | $254,666 | $350,510 | $0 | $605,176 | $605,176 |
| 2014 | $257,890 | $350,510 | $0 | $608,400 | $608,400 |
| 2013 | $261,113 | $350,510 | $0 | $611,623 | $611,623 |
| 2012 | $264,337 | $382,007 | $0 | $646,344 | $646,344 |
| 2011 | $267,560 | $402,086 | $0 | $669,646 | $669,646 |
| 2010 | $273,051 | $402,086 | $0 | $675,137 | $675,137 |
| 2009 | $284,981 | $446,705 | $0 | $731,686 | $731,686 |
| 2008 | $288,669 | $446,705 | $0 | $735,374 | $735,374 |
| 2007 | $292,367 | $446,348 | $0 | $738,715 | $738,715 |
Deed and Sales History
Payout Agreement
| No payout information available.. |