Property
Account |
| Property ID: | 182000 | Abbreviated Legal Description: | ARROWHD BCH LOT 8 BLK 3 INCL ADJ TIDES TGW PT ADJ VAC ALLEY |
| Geographic ID: | S6050-00-03008-0 | Agent Code: | |
| Type: | Real | | |
| Tax Area: | 510 - APPRAISER-Stan/Cam Schl Dist, improved & 1 acre or less | Land Use Code | 11 |
| Open Space: | N | DFL | N |
| Historic Property: | N | Remodel Property: | N |
| Multi-Family Redevelopment: | N | | |
| Township: | | Section: | |
| Range: | |
Location |
| Address: | | Mapsco: | |
| Neighborhood: | North Camano | Map ID: | 950 |
| Neighborhood CD: | 06-C |
Owner |
| Name: | STAVIG TTEE, PAUL D | Owner ID: | 313872 |
| Mailing Address: | PAUL D STAVIG 18405 NE 139TH ST WOODINVILLE, WA 98072 | % Ownership: | 100.0000000000% |
| | | Exemptions: | |
Taxes and Assessment Details
Values
| (+) Improvement Homesite Value: | + | $0 | |
| (+) Improvement Non-Homesite Value: | + | $551,537 | |
| (+) Land Homesite Value: | + | $0 | |
| (+) Land Non-Homesite Value: | + | $1,000,650 | |
| (+) Curr Use (HS): | + | $0 | $0 |
| (+) Curr Use (NHS): | + | $0 | $0 |
| | | -------------------------- | |
| (=) Market Value: | = | $1,552,187 | |
| (–) Productivity Loss: | – | $0 | |
| | | -------------------------- | |
| (=) Subtotal: | = | $1,552,187 | |
| (+) Senior Appraised Value: | + | $0 | |
| (+) Non-Senior Appraised Value: | + | $1,552,187 | |
| | | -------------------------- | |
| (=) Total Appraised Value: | = | $1,552,187 | |
| (–) Senior Exemption Loss: | – | $0 | |
| (–) Exemption Loss: | – | $0 | |
| | | -------------------------- | |
| (=) Taxable Value: | = | $1,552,187 | |
Taxing Jurisdiction
| Owner: | STAVIG TTEE, PAUL D | | |
| % Ownership: | 100.0000000000% | | |
| Total Value: | $1,552,187 | | |
| Tax Area: | 510 - APPRAISER-Stan/Cam Schl Dist, improved & 1 acre or less |
| CF | Conservation Futures | 0.0316035091 | $1,552,187 | $1,552,187 | $49.05 | | |
| EMS1 | Fire & Rescue Dist #1 Camano GEN (EMS) | 0.3677864386 | $1,552,187 | $1,552,187 | $570.87 | | |
| FIRE1 | Fire & Rescue Dist #1 Camano GEN | 1.2502910536 | $1,552,187 | $1,552,187 | $1,940.69 | | |
| FIRE1BOND | Fire & Rescue Dist #1 Camano BOND | 0.1570001679 | $1,552,187 | $1,552,187 | $243.69 | | |
| CE | County Current Expense | 0.3708482477 | $1,552,187 | $1,552,187 | $575.63 | | |
| CR | County Roads | 0.4584763726 | $1,552,187 | $1,552,187 | $711.64 | | |
| LCIB | Library Sno-Isle BOND (Camano Island) | 0.0396325772 | $1,552,187 | $1,552,187 | $61.52 | | |
| LIB | Library Sno-Isle GEN | 0.3153421757 | $1,552,187 | $1,552,187 | $489.47 | | |
| SCH205_401 | School 205-401 Enrichment | 1.2698420524 | $1,552,187 | $1,552,187 | $1,971.03 | | |
| SCH205BOND | School 205-401 BOND | 0.9396497583 | $1,552,187 | $1,552,187 | $1,458.51 | | |
| ST | State School | 1.3035497053 | $1,552,187 | $1,552,187 | $2,023.35 | | |
| ST2 | State School Part 2 | 0.8169543533 | $1,552,187 | $1,552,187 | $1,268.07 | | |
| | Total Tax Rate: | 7.3209764117 | | | | | |
| | | | | Taxes w/Current Exemptions: | $11,363.52 | | |
| | | | | Taxes w/o Exemptions: | $11,363.52 | | |
Improvement / Building
| Improvement #1: | RESIDENTIAL | State Code: | Y | 2801.0 sqft | Value: | $551,537 |
| Bathrooms: | 2 | Bedrooms: | 2 | | Ceiling: | DRYWALL PAINTED | Exterior Wall/Cover: | WOOD SIDING | | Floor Covering: | HARDWOOD/CARP 60-40 | Floor Structure: | WOOD W/SUBFLOOR | | Foundation: | CONCRETE | Heating: | FHA GAS | | Interior Finish: | DRYWALL PAINT | Plumbing Fixture Cnt: | 11 | | Roof Slope: | 5" IN 12" | Roof Structure/Cover: | CJ CONCRETE TILE |
|
| | Type | Description | Class CD | Sub Class CD | Year Built | Area |
| | BAS | BASE/MAIN FLOOR | 4 | 0 | 1993 | 1907.0 |
| | OP1 | OPEN PORCH SLAB | 4 | 0 | 1993 | 238.0 |
| | OP1 | OPEN PORCH SLAB | 4 | 0 | 1993 | 96.0 |
| | OP1 | OPEN PORCH SLAB | 4 | 0 | 1993 | 266.6 |
| | OP4 | OPEN PORCH W/CEILING-ROOF | 4 | 0 | 1993 | 64.0 |
| | AGR | ATTACHED GARAGE | 4 | 0 | 1993 | 577.4 |
| | UPS | UPPER STORY | 4 | 0 | 1993 | 894.0 |
| | OWP | OPEN WOOD PORCH W/STEPS | 4 | 0 | 1993 | 402.0 |
| | OWC | OPEN WOOD PORCH W/STEPS/ROOF/C | 4 | 0 | 1993 | 405.0 |
Sketch
Property Image
Land
| 1 | LB | LOW BANK | 0.0000 | 0.00 | 55.00 | 0.00 | 1.00 | $1,000,000 | $0 |
| 2 | 55 | TIDES | 0.0000 | 0.00 | 65.00 | 0.00 | 1.00 | $650 | $0 |
Roll Value History
| 2026 | N/A | N/A | N/A | N/A | N/A |
| 2025 | $551,537 | $1,000,650 | $0 | $1,552,187 | $1,552,187 |
| 2024 | $558,678 | $925,650 | $0 | $1,484,328 | $1,484,328 |
| 2023 | $565,817 | $850,650 | $0 | $1,416,467 | $1,416,467 |
| 2022 | $505,883 | $775,650 | $0 | $1,281,533 | $1,281,533 |
| 2021 | $445,890 | $525,650 | $0 | $971,540 | $971,540 |
| 2020 | $435,850 | $475,650 | $0 | $911,500 | $911,500 |
| 2019 | $340,435 | $475,650 | $0 | $816,085 | $816,085 |
| 2018 | $341,482 | $450,650 | $0 | $792,132 | $792,132 |
| 2017 | $343,562 | $450,650 | $0 | $794,212 | $794,212 |
| 2016 | $338,040 | $450,650 | $0 | $788,690 | $788,690 |
| 2015 | $342,214 | $450,650 | $0 | $792,864 | $792,864 |
| 2014 | $346,388 | $450,650 | $0 | $797,038 | $797,038 |
| 2013 | $350,560 | $450,650 | $0 | $801,210 | $801,210 |
| 2012 | $354,734 | $489,852 | $0 | $844,586 | $844,586 |
| 2011 | $358,907 | $515,599 | $0 | $874,506 | $874,506 |
| 2010 | $342,877 | $515,599 | $0 | $858,476 | $858,476 |
| 2009 | $357,515 | $580,825 | $0 | $938,340 | $938,340 |
| 2008 | $361,786 | $701,838 | $0 | $1,063,624 | $1,063,624 |
| 2007 | $366,157 | $583,803 | $0 | $949,960 | $949,960 |
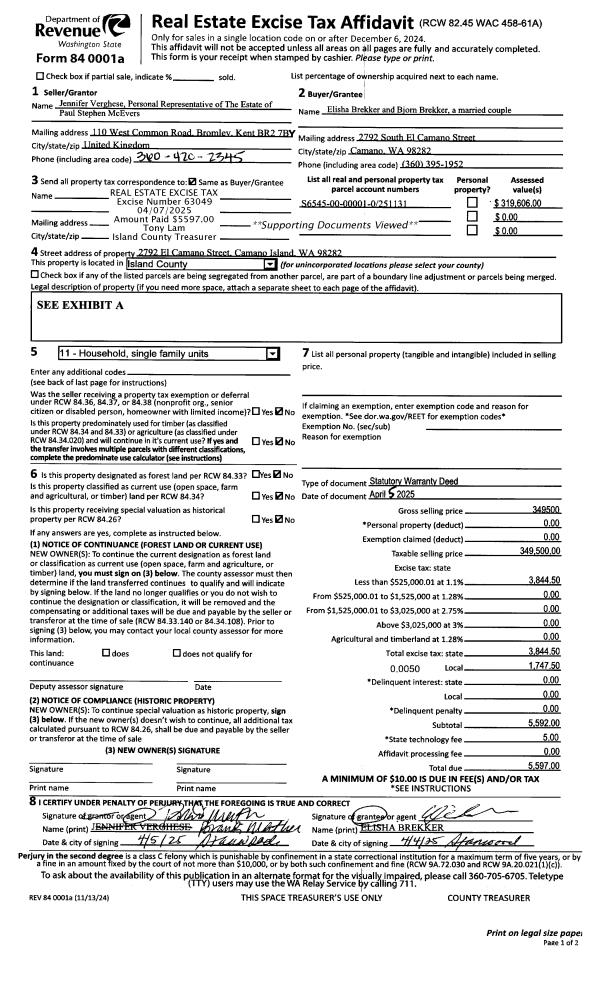
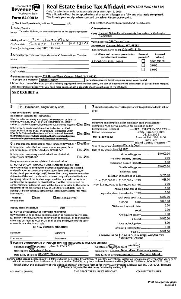
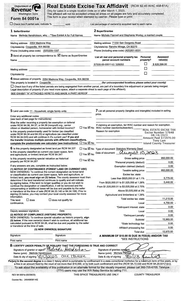
Deed and Sales History
| 1 | 10/01/2024 | BARGSLD | Bargain And Sale Deed | STAVIG TTEE, STUART W | STAVIG, PAUL D | | | $412,100.00 | 61495 | 4577939 |
| 2 | 09/06/2024 | PRD | Personal Representatives Deed | STAVIG, PAUL D | STAVIG TTEE, PAUL D | | | $0.00 | 61258 | 4577050 |
| 3 | 03/14/2024 | PRD | Personal Representatives Deed | STAVIG, JANICE M | STAVIG, PAUL D | | | $407,333.00 | 59552 | 4570836 |
| 4 | 05/23/2016 | PRD | Personal Representatives Deed | STAVIG, DARRELL E / JANICE M | STAVIG, JANICE M | | | $0.00 | 25304 | 4403486 |
| 5 | 07/01/1990 | WD | Warranty Deed | HANSEN, VIVIAN | STAVIG, DARRELL E | | | $255,000.00 | 4351 | 90014392 |
| 6 | 01/01/1900 | OTHER | Other - Misc. Documents | Unknown | HANSEN, VIVIAN | | | $0.00 | 0 | 0 |
Payout Agreement
| No payout information available.. |