Property
Account |
| Property ID: | 18206 | Abbreviated Legal Description: | 80 - E/2 E/2 E/2 NW SW EX S20' FOR RD |
| Geographic ID: | R13210-199-1250 | Agent Code: | |
| Type: | Real | | |
| Tax Area: | 112 - APPRAISER-OH Schl Dist, outside OH, improved, greater than 1 acre | Land Use Code | 11 |
| Open Space: | N | DFL | N |
| Historic Property: | N | Remodel Property: | N |
| Multi-Family Redevelopment: | N | | |
| Township: | 32 | Section: | 10 |
| Range: | R1 |
Location |
| Address: | 1104 WATERLOO RD OAK HARBOR, WA 98277 | Mapsco: | |
| Neighborhood: | Cycle 1 | Map ID: | 116 |
| Neighborhood CD: | 1 |
Owner |
| Name: | PARKER, FRANCES D | Owner ID: | 278663 |
| Mailing Address: | 1104 WATERLOO RD OAK HARBOR, WA 98277 | % Ownership: | 100.0000000000% |
| | | Exemptions: | |
Taxes and Assessment Details
Values
| (+) Improvement Homesite Value: | + | $0 | |
| (+) Improvement Non-Homesite Value: | + | $346,476 | |
| (+) Land Homesite Value: | + | $0 | |
| (+) Land Non-Homesite Value: | + | $290,000 | |
| (+) Curr Use (HS): | + | $0 | $0 |
| (+) Curr Use (NHS): | + | $0 | $0 |
| | | -------------------------- | |
| (=) Market Value: | = | $636,476 | |
| (–) Productivity Loss: | – | $0 | |
| | | -------------------------- | |
| (=) Subtotal: | = | $636,476 | |
| (+) Senior Appraised Value: | + | $0 | |
| (+) Non-Senior Appraised Value: | + | $636,476 | |
| | | -------------------------- | |
| (=) Total Appraised Value: | = | $636,476 | |
| (–) Senior Exemption Loss: | – | $0 | |
| (–) Exemption Loss: | – | $0 | |
| | | -------------------------- | |
| (=) Taxable Value: | = | $636,476 | |
Taxing Jurisdiction
| Owner: | PARKER, FRANCES D | | |
| % Ownership: | 100.0000000000% | | |
| Total Value: | $636,476 | | |
| Tax Area: | 112 - APPRAISER-OH Schl Dist, outside OH, improved, greater than 1 acre |
| CF | Conservation Futures | 0.0316035091 | $636,476 | $636,476 | $20.11 | | |
| CEM1 | Cemetery #1 | 0.0040320932 | $636,476 | $636,476 | $2.57 | | |
| FIRE2 | Fire & Rescue Dist #2 N Whidbey GEN | 0.5475949600 | $636,476 | $636,476 | $348.53 | | |
| HOBOND | Hospital BOND | 0.1910887512 | $636,476 | $636,476 | $121.62 | | |
| HOGEN | Hospital GEN | 0.3902502903 | $636,476 | $636,476 | $248.38 | | |
| CE | County Current Expense | 0.3708482477 | $636,476 | $636,476 | $236.04 | | |
| CR | County Roads | 0.4584763726 | $636,476 | $636,476 | $291.81 | | |
| ISLANDEMS | Hospital GEN (EMS) | 0.5000000000 | $636,476 | $636,476 | $318.24 | | |
| LIB | Library Sno-Isle GEN | 0.3153421757 | $636,476 | $636,476 | $200.71 | | |
| NWHIDPRMT | P & R N Whidbey GEN | 0.2004466701 | $636,476 | $636,476 | $127.58 | | |
| SCH201MO | School 201 Enrichment | 1.8559231640 | $636,476 | $636,476 | $1,181.25 | | |
| ST | State School | 1.3035497053 | $636,476 | $636,476 | $829.68 | | |
| ST2 | State School Part 2 | 0.8169543533 | $636,476 | $636,476 | $519.97 | | |
| | Total Tax Rate: | 6.9861102925 | | | | | |
| | | | | Taxes w/Current Exemptions: | $4,446.49 | | |
| | | | | Taxes w/o Exemptions: | $4,446.49 | | |
Improvement / Building
| Improvement #1: | MANUFACTURED HOME | State Code: | Y | 2052.0 sqft | Value: | $346,476 |
| Bathrooms: | 0 | Bedrooms: | 0 | | Ceiling: | PLASTER PAINTED | Cooling: | EVAP NO DUCT | | Exterior Wall/Cover: | VINYL | Floor Covering: | CARPET 100% | | Floor Structure: | SLAB ON GRADE | Foundation: | SLAB | | Heating: | FHA ELECTRIC | Interior Finish: | PLASTER | | Plumbing Fixture Cnt: | 1 | Roof Slope: | FLAT | | Roof Structure/Cover: | CJ ALUMINIUM HEAVY |   |   |
|
| | Type | Description | Class CD | Sub Class CD | Year Built | Area |
| | BAS | BASE/MAIN FLOOR | 4 | 0 | 2004 | 2052.0 |
| | DGR | DETACHED GARAGE | 4 | 0 | 2004 | 1800.0 |
| | UTY | STORAGE/UTILITY | 4 | 0 | 2004 | 1080.0 |
| | OWR | OPEN WOOD PORCH W/STEPS/ROOF | 4 | 0 | 2004 | 120.0 |
| | AGR | ATTACHED GARAGE | 4 | 0 | 2004 | 576.0 |
| | OWP | OPEN WOOD PORCH W/STEPS | 4 | 0 | 2004 | 317.2 |
| | OCP | OPEN CARPORT | 4 | 0 | 2004 | 1440.0 |
Sketch
Property Image
Land
| 1 | 32 | AC (03.01-09.99) | 4.9300 | 0.00 | 0.00 | 0.00 | 1.00 | $290,000 | $0 |
Roll Value History
| 2026 | N/A | N/A | N/A | N/A | N/A |
| 2025 | $346,476 | $290,000 | $0 | $636,476 | $636,476 |
| 2024 | $355,715 | $260,000 | $0 | $615,715 | $615,715 |
| 2023 | $301,614 | $250,000 | $0 | $551,614 | $551,614 |
| 2022 | $276,902 | $220,000 | $0 | $496,902 | $496,902 |
| 2021 | $247,420 | $190,000 | $0 | $437,420 | $437,420 |
| 2020 | $246,571 | $140,000 | $0 | $386,571 | $386,571 |
| 2019 | $199,271 | $200,000 | $0 | $399,271 | $399,271 |
| 2018 | $204,316 | $170,000 | $0 | $374,316 | $374,316 |
| 2017 | $189,527 | $160,000 | $0 | $349,527 | $349,527 |
| 2016 | $192,286 | $160,000 | $0 | $352,286 | $352,286 |
| 2015 | $193,666 | $135,000 | $0 | $328,666 | $328,666 |
| 2014 | $195,045 | $135,000 | $0 | $330,045 | $330,045 |
| 2013 | $197,804 | $119,799 | $0 | $317,603 | $317,603 |
| 2012 | $208,664 | $119,799 | $0 | $328,463 | $328,463 |
| 2011 | $239,122 | $133,110 | $0 | $372,232 | $372,232 |
| 2010 | $243,816 | $133,110 | $0 | $376,926 | $376,926 |
| 2009 | $265,300 | $157,760 | $0 | $423,060 | $423,060 |
| 2008 | $269,171 | $129,205 | $0 | $398,376 | $398,376 |
| 2007 | $272,876 | $129,205 | $0 | $402,081 | $402,081 |
Deed and Sales History
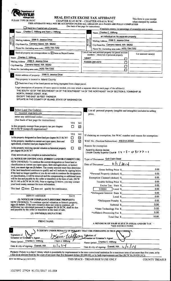
| 1 | 02/08/2017 | DECREE | Divorce Decree/Legal Separation | WERNECKE, FRANCES D | PARKER, FRANCES D | | | $0.00 | 28224 | 4417862 |
| 2 | 11/04/2004 | 5 | DNU - Marriage License/Name Change | PARKER, FRANCES D | WERNECKE, FRANCES D | | | $0.00 | 45234 | 4117344 |
| 3 | 09/21/1998 | DECREE | Divorce Decree/Legal Separation | PARKER, FRANCES D | PARKER, FRANCES D | | | $0.00 | 68009 | 0 |
| 4 | 12/01/1992 | OTHER | Other - Misc. Documents | PARKER, W D | PARKER, FRANCES D | | | $20,000.00 | 24794 | 0 |
| 5 | 06/01/1992 | WD | Warranty Deed | GOSSAGE, ORAN | PARKER, W D | | | $58,950.00 | 22410 | 92011615 |
| 6 | 05/01/1979 | WD | Warranty Deed | GOSSAGE, ORAN | GOSSAGE, ORAN | | | $47,500.00 | 92572 | 353091 |
| 7 | 01/01/1900 | OTHER | Other - Misc. Documents | Unknown | GOSSAGE, ORAN | | | $0.00 | 0 | 0 |
Payout Agreement
| No payout information available.. |