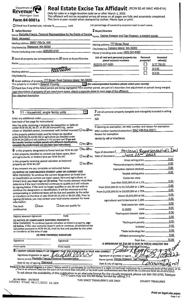
Property
Account |
| Property ID: | 182359 | Abbreviated Legal Description: | ARROWHD 1ST LOT 17 BLK 2 |
| Geographic ID: | S6050-01-02017-0 | Agent Code: | |
| Type: | Real | | |
| Tax Area: | 510 - APPRAISER-Stan/Cam Schl Dist, improved & 1 acre or less | Land Use Code | 11 |
| Open Space: | N | DFL | N |
| Historic Property: | N | Remodel Property: | N |
| Multi-Family Redevelopment: | N | | |
| Township: | | Section: | |
| Range: | |
Location |
| Address: | 389 TILLICUM WAY CAMANO ISLAND, WA 98282 | Mapsco: | |
| Neighborhood: | North Camano | Map ID: | 959 |
| Neighborhood CD: | 06-C |
Owner |
| Name: | SCHOLL, JACOB | Owner ID: | 61681 |
| Mailing Address: | ELIZABETH STEFFEN 5830 E GREENLAKE WAY N SEATTLE, WA 98103 | % Ownership: | 100.0000000000% |
| | | Exemptions: | |
Taxes and Assessment Details
Values
| (+) Improvement Homesite Value: | + | $0 | |
| (+) Improvement Non-Homesite Value: | + | $403,538 | |
| (+) Land Homesite Value: | + | $0 | |
| (+) Land Non-Homesite Value: | + | $420,000 | |
| (+) Curr Use (HS): | + | $0 | $0 |
| (+) Curr Use (NHS): | + | $0 | $0 |
| | | -------------------------- | |
| (=) Market Value: | = | $823,538 | |
| (–) Productivity Loss: | – | $0 | |
| | | -------------------------- | |
| (=) Subtotal: | = | $823,538 | |
| (+) Senior Appraised Value: | + | $0 | |
| (+) Non-Senior Appraised Value: | + | $823,538 | |
| | | -------------------------- | |
| (=) Total Appraised Value: | = | $823,538 | |
| (–) Senior Exemption Loss: | – | $0 | |
| (–) Exemption Loss: | – | $0 | |
| | | -------------------------- | |
| (=) Taxable Value: | = | $823,538 | |
Taxing Jurisdiction
| Owner: | SCHOLL, JACOB | | |
| % Ownership: | 100.0000000000% | | |
| Total Value: | $823,538 | | |
| Tax Area: | 510 - APPRAISER-Stan/Cam Schl Dist, improved & 1 acre or less |
| CF | Conservation Futures | 0.0316035091 | $823,538 | $823,538 | $26.03 | | |
| EMS1 | Fire & Rescue Dist #1 Camano GEN (EMS) | 0.3677864386 | $823,538 | $823,538 | $302.89 | | |
| FIRE1 | Fire & Rescue Dist #1 Camano GEN | 1.2502910536 | $823,538 | $823,538 | $1,029.66 | | |
| FIRE1BOND | Fire & Rescue Dist #1 Camano BOND | 0.1570001679 | $823,538 | $823,538 | $129.30 | | |
| CE | County Current Expense | 0.3708482477 | $823,538 | $823,538 | $305.41 | | |
| CR | County Roads | 0.4584763726 | $823,538 | $823,538 | $377.57 | | |
| LCIB | Library Sno-Isle BOND (Camano Island) | 0.0396325772 | $823,538 | $823,538 | $32.64 | | |
| LIB | Library Sno-Isle GEN | 0.3153421757 | $823,538 | $823,538 | $259.70 | | |
| SCH205_401 | School 205-401 Enrichment | 1.2698420524 | $823,538 | $823,538 | $1,045.76 | | |
| SCH205BOND | School 205-401 BOND | 0.9396497583 | $823,538 | $823,538 | $773.84 | | |
| ST | State School | 1.3035497053 | $823,538 | $823,538 | $1,073.52 | | |
| ST2 | State School Part 2 | 0.8169543533 | $823,538 | $823,538 | $672.79 | | |
| | Total Tax Rate: | 7.3209764117 | | | | | |
| | | | | Taxes w/Current Exemptions: | $6,029.11 | | |
| | | | | Taxes w/o Exemptions: | $6,029.11 | | |
Improvement / Building
| Improvement #1: | RESIDENTIAL | State Code: | Y | 2794.0 sqft | Value: | $403,538 |
| Bathrooms: | 3 | Bedrooms: | 3 | | Ceiling: | DRYWALL PAINTED | Exterior Wall/Cover: | WOOD SIDING | | Floor Covering: | HARDWOOD/CARP 20-80 | Floor Structure: | WOOD W/SUBFLOOR | | Foundation: | CONCRETE | Heating: | BASEBOARD ELECTRIC | | Interior Finish: | DRYWALL PAINT | Plumbing Fixture Cnt: | 12 | | Roof Slope: | 8" IN 12" | Roof Structure/Cover: | CJ ASPHALT |
|
| | Type | Description | Class CD | Sub Class CD | Year Built | Area |
| | BAS | BASE/MAIN FLOOR | 3 | 0 | 1966 | 2080.0 |
| | OP1 | OPEN PORCH SLAB | 3 | 0 | 1966 | 92.0 |
| | OP4 | OPEN PORCH W/CEILING-ROOF | 3 | 0 | 1966 | 545.0 |
| | DGR | DETACHED GARAGE | 3 | 0 | 1966 | 896.0 |
| | UPS | UPPER STORY | 3 | 0 | 1966 | 714.0 |
| | OWP | OPEN WOOD PORCH W/STEPS | 3 | 0 | 1966 | 497.0 |
Sketch
Property Image
Land
| 1 | 15 | SQ (12001-21780) | 0.0000 | 0.00 | 0.00 | 0.00 | 1.00 | $420,000 | $0 |
Roll Value History
| 2026 | N/A | N/A | N/A | N/A | N/A |
| 2025 | $403,538 | $420,000 | $0 | $823,538 | $823,538 |
| 2024 | $417,693 | $410,000 | $0 | $827,693 | $827,693 |
| 2023 | $423,171 | $400,000 | $0 | $823,171 | $823,171 |
| 2022 | $378,206 | $360,000 | $0 | $738,206 | $738,206 |
| 2021 | $333,205 | $250,000 | $0 | $583,205 | $583,205 |
| 2020 | $325,696 | $220,000 | $0 | $545,696 | $545,696 |
| 2019 | $258,268 | $290,000 | $0 | $548,268 | $548,268 |
| 2018 | $259,083 | $250,000 | $0 | $509,083 | $509,083 |
| 2017 | $253,864 | $165,000 | $0 | $418,864 | $418,864 |
| 2016 | $252,239 | $150,000 | $0 | $402,239 | $402,239 |
| 2015 | $255,472 | $135,000 | $0 | $390,472 | $390,472 |
| 2014 | $258,707 | $100,000 | $0 | $358,707 | $358,707 |
| 2013 | $261,942 | $100,000 | $0 | $361,942 | $361,942 |
| 2012 | $265,175 | $108,000 | $0 | $373,175 | $373,175 |
| 2011 | $268,408 | $135,000 | $0 | $403,408 | $403,408 |
| 2010 | $270,565 | $135,000 | $0 | $405,565 | $405,565 |
| 2009 | $279,119 | $165,000 | $0 | $444,119 | $444,119 |
| 2008 | $283,125 | $165,000 | $0 | $448,125 | $448,125 |
| 2007 | $287,076 | $165,000 | $0 | $452,076 | $452,076 |
Deed and Sales History
| 1 | 05/09/2005 | WD | Warranty Deed | DEACH, THOMAS R | SCHOLL, JACOB | | | $419,800.00 | 52093 | 4134020 |
| 2 | 12/01/1992 | WD | Warranty Deed | HALLEY, MARVIN D | DEACH, THOMAS R | | | $165,000.00 | 24915 | 92024129 |
| 3 | 04/01/1992 | QCD | Quit Claim Deed | HALLEY, M D | HALLEY, MARVIN D | | | $0.00 | 21669 | 92007874 |
| 4 | 08/01/1986 | WD | Warranty Deed | NEUBERT, JOSEPH W | HALLEY, M D | | | $71,500.00 | 62387 | 86010802 |
| 5 | 05/01/1979 | TRUSTEED | Trustee's Deed | MANNING, PHILIP D | NEUBERT, JOSEPH W | | | $80,000.00 | 92598 | 353200 |
| 6 | 01/01/1900 | OTHER | Other - Misc. Documents | Unknown | MANNING, PHILIP D | | | $0.00 | 0 | 0 |
Payout Agreement
| No payout information available.. |