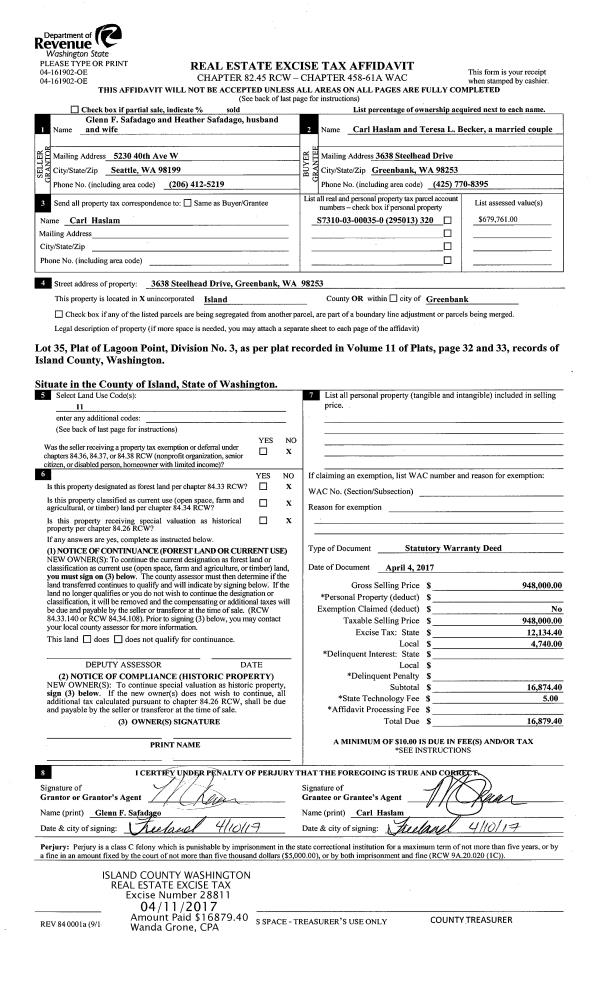
Property
Account |
| Property ID: | 182466 | Abbreviated Legal Description: | ARROWHD 1ST LOT 11 BLK 3 & WLY 4' OF LOT 12 BLK 3 |
| Geographic ID: | S6050-01-03011-0 | Agent Code: | |
| Type: | Real | | |
| Tax Area: | 510 - APPRAISER-Stan/Cam Schl Dist, improved & 1 acre or less | Land Use Code | 11 |
| Open Space: | N | DFL | N |
| Historic Property: | N | Remodel Property: | N |
| Multi-Family Redevelopment: | N | | |
| Township: | | Section: | |
| Range: | |
Location |
| Address: | 374 TILLICUM WAY CAMANO ISLAND, WA 98282 | Mapsco: | |
| Neighborhood: | North Camano | Map ID: | 959 |
| Neighborhood CD: | 06-C |
Owner |
| Name: | DODD, PATRICIA | Owner ID: | 304900 |
| Mailing Address: | RICHARD DODD 374 TILLICUM WAY CAMANO ISLAND, WA 98282 | % Ownership: | 100.0000000000% |
| | | Exemptions: | |
Taxes and Assessment Details
Values
| (+) Improvement Homesite Value: | + | $0 | |
| (+) Improvement Non-Homesite Value: | + | $358,021 | |
| (+) Land Homesite Value: | + | $0 | |
| (+) Land Non-Homesite Value: | + | $240,000 | |
| (+) Curr Use (HS): | + | $0 | $0 |
| (+) Curr Use (NHS): | + | $0 | $0 |
| | | -------------------------- | |
| (=) Market Value: | = | $598,021 | |
| (–) Productivity Loss: | – | $0 | |
| | | -------------------------- | |
| (=) Subtotal: | = | $598,021 | |
| (+) Senior Appraised Value: | + | $0 | |
| (+) Non-Senior Appraised Value: | + | $598,021 | |
| | | -------------------------- | |
| (=) Total Appraised Value: | = | $598,021 | |
| (–) Senior Exemption Loss: | – | $0 | |
| (–) Exemption Loss: | – | $0 | |
| | | -------------------------- | |
| (=) Taxable Value: | = | $598,021 | |
Taxing Jurisdiction
| Owner: | DODD, PATRICIA | | |
| % Ownership: | 100.0000000000% | | |
| Total Value: | $598,021 | | |
| Tax Area: | 510 - APPRAISER-Stan/Cam Schl Dist, improved & 1 acre or less |
| CF | Conservation Futures | 0.0316035091 | $598,021 | $598,021 | $18.90 | | |
| EMS1 | Fire & Rescue Dist #1 Camano GEN (EMS) | 0.3677864386 | $598,021 | $598,021 | $219.94 | | |
| FIRE1 | Fire & Rescue Dist #1 Camano GEN | 1.2502910536 | $598,021 | $598,021 | $747.70 | | |
| FIRE1BOND | Fire & Rescue Dist #1 Camano BOND | 0.1570001679 | $598,021 | $598,021 | $93.89 | | |
| CE | County Current Expense | 0.3708482477 | $598,021 | $598,021 | $221.78 | | |
| CR | County Roads | 0.4584763726 | $598,021 | $598,021 | $274.18 | | |
| LCIB | Library Sno-Isle BOND (Camano Island) | 0.0396325772 | $598,021 | $598,021 | $23.70 | | |
| LIB | Library Sno-Isle GEN | 0.3153421757 | $598,021 | $598,021 | $188.58 | | |
| SCH205_401 | School 205-401 Enrichment | 1.2698420524 | $598,021 | $598,021 | $759.39 | | |
| SCH205BOND | School 205-401 BOND | 0.9396497583 | $598,021 | $598,021 | $561.93 | | |
| ST | State School | 1.3035497053 | $598,021 | $598,021 | $779.55 | | |
| ST2 | State School Part 2 | 0.8169543533 | $598,021 | $598,021 | $488.56 | | |
| | Total Tax Rate: | 7.3209764117 | | | | | |
| | | | | Taxes w/Current Exemptions: | $4,378.10 | | |
| | | | | Taxes w/o Exemptions: | $4,378.10 | | |
Improvement / Building
| Improvement #1: | RESIDENTIAL | State Code: | Y | 1768.0 sqft | Value: | $358,021 |
| Bathrooms: | 2.5 | Bedrooms: | 3 | | Ceiling: | DRYWALL PAINTED | Cooling: | HEAT PUMP/CONV/V | | Exterior Wall/Cover: | WOOD SIDING | Floor Covering: | CERAMIC TILE/HWD 40/60 | | Floor Structure: | WOOD W/SUBFLOOR | Foundation: | CONCRETE | | Interior Finish: | DRYWALL PAINT | Plumbing Fixture Cnt: | 13 | | Roof Slope: | 5" IN 12" | Roof Structure/Cover: | CJ ASPHALT |
|
| | Type | Description | Class CD | Sub Class CD | Year Built | Area |
| | BAS | BASE/MAIN FLOOR | 3 | 0 | 1979 | 1080.0 |
| | DWN | DOWNSTAIRS LIVING AREA | 3 | 0 | 1979 | 688.0 |
| | OP1 | OPEN PORCH SLAB | 3 | 0 | 1979 | 280.0 |
| | AGR | ATTACHED GARAGE | 3 | 0 | 1979 | 160.0 |
| | BGR | BASEMENT GARAGE | 3 | 0 | 1979 | 308.0 |
| | OWP | OPEN WOOD PORCH W/STEPS | 3 | 0 | 1979 | 30.0 |
| | OWP | OPEN WOOD PORCH W/STEPS | 3 | 0 | 1979 | 192.0 |
Sketch
Property Image
Land
| 1 | 15 | SQ (12001-21780) | 0.4500 | 19602.00 | 0.00 | 0.00 | 1.00 | $240,000 | $0 |
Roll Value History
| 2026 | N/A | N/A | N/A | N/A | N/A |
| 2025 | $358,021 | $240,000 | $0 | $598,021 | $598,021 |
| 2024 | $335,967 | $230,000 | $0 | $565,967 | $565,967 |
| 2023 | $339,861 | $230,000 | $0 | $569,861 | $569,861 |
| 2022 | $297,179 | $210,000 | $0 | $507,179 | $507,179 |
| 2021 | $261,860 | $160,000 | $0 | $421,860 | $421,860 |
| 2020 | $255,016 | $130,000 | $0 | $385,016 | $385,016 |
| 2019 | $187,948 | $170,000 | $0 | $357,948 | $357,948 |
| 2018 | $188,486 | $150,000 | $0 | $338,486 | $338,486 |
| 2017 | $189,561 | $120,000 | $0 | $309,561 | $309,561 |
| 2016 | $146,818 | $85,000 | $0 | $231,818 | $231,818 |
| 2015 | $148,487 | $85,000 | $0 | $233,487 | $233,487 |
| 2014 | $150,155 | $85,000 | $0 | $235,155 | $235,155 |
| 2013 | $151,823 | $85,000 | $0 | $236,823 | $236,823 |
| 2012 | $153,493 | $80,000 | $0 | $233,493 | $233,493 |
| 2011 | $119,742 | $100,000 | $0 | $219,742 | $219,742 |
| 2010 | $142,720 | $100,000 | $0 | $242,720 | $242,720 |
| 2009 | $146,944 | $125,000 | $0 | $271,944 | $271,944 |
| 2008 | $152,888 | $125,000 | $0 | $277,888 | $277,888 |
| 2007 | $143,091 | $125,000 | $0 | $268,091 | $268,091 |
Deed and Sales History
| 1 | 06/22/2022 | WD | Warranty Deed | TILLICUM PROPERTIES LLC | DODD, PATRICIA | | | $685,000.00 | 53628 | 4547321 |
| 2 | 03/07/2017 | WD | Warranty Deed | SHAW, SCOTT C | TILLICUM PROPERTIES LLC | | | $351,000.00 | 28649 | 4419846 |
| 3 | 10/07/2010 | BARGSLD | Bargain And Sale Deed | FEDERAL NATIONAL MORTGAGE ASSOCIATION | SHAW, SCOTT C | | | $0.00 | 3352 | 4288601 |
| 4 | 03/17/2010 | TRUSTEED | Trustee's Deed | ANDERSON, RICHARD C | FEDERAL NATIONAL MORTGAGE ASSO | | | $284,493.00 | 626 | 4270629 |
| 5 | 07/31/2006 | WD | Warranty Deed | FULLERTON TTEE, LORRIAINE E | ANDERSON, RICHARD C | | | $263,000.00 | 63429 | 4178472 |
| 6 | 11/14/2005 | 5 | DNU - Marriage License/Name Change | ARTHUR, ALBERT O | FULLERTON TTEE, LORRIAINE E | | | $0.00 | 70748 | 0 |
| 7 | 05/10/2001 | PRD | Personal Representatives Deed | ARTHUR, ALBERT O | ARTHUR, ALBERT O | | | $0.00 | 11892 | 20033527 |
| 8 | 05/10/2001 | QCD | Quit Claim Deed | ARTHUR, ALBERT O | ARTHUR, ALBERT O | | | $0.00 | 11891 | 20033526 |
| 9 | 05/01/1986 | WD | Warranty Deed | GUSTAFSON, CHRIS A | ARTHUR, ALBERT O | | | $68,000.00 | 61269 | 86005982 |
| 10 | 03/01/1979 | OTHER | Other - Misc. Documents | OB, | GUSTAFSON, CHRIS A | | | $1,088.00 | 91069 | 348827 |
| 11 | 10/01/1978 | OTHER | Other - Misc. Documents | Unknown | OB, | | | $8,000.00 | 85599 | 343122 |
Payout Agreement
| No payout information available.. |