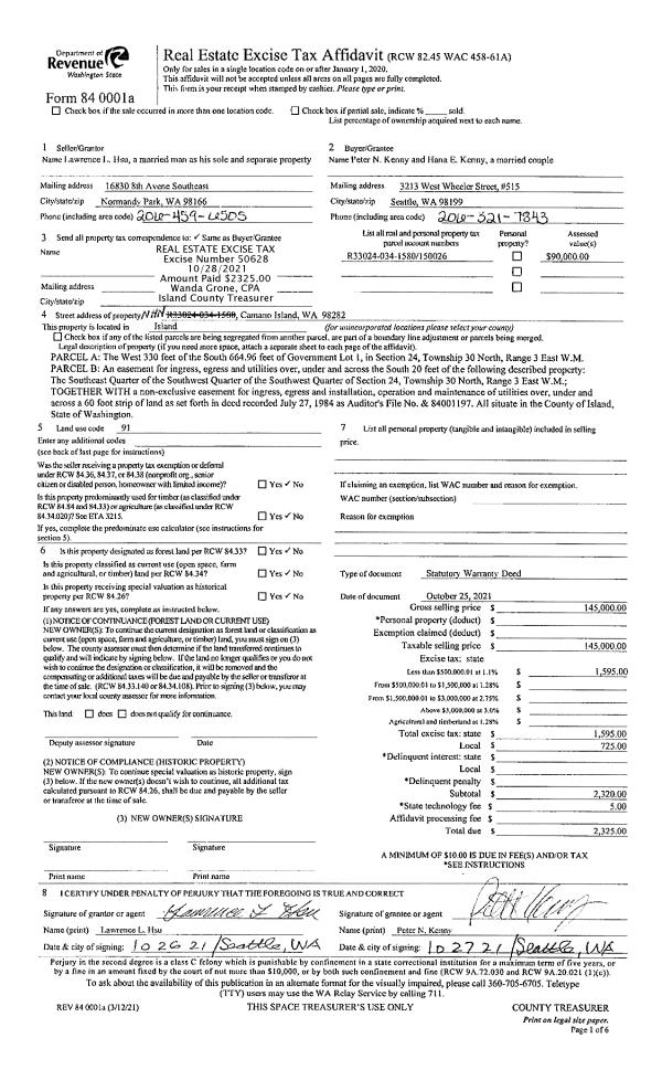
Property
Account |
| Property ID: | 182509 | Abbreviated Legal Description: | ARROWHD 1ST LOT 15 BLK 3 |
| Geographic ID: | S6050-01-03015-0 | Agent Code: | |
| Type: | Real | | |
| Tax Area: | 510 - APPRAISER-Stan/Cam Schl Dist, improved & 1 acre or less | Land Use Code | 11 |
| Open Space: | N | DFL | N |
| Historic Property: | N | Remodel Property: | N |
| Multi-Family Redevelopment: | N | | |
| Township: | | Section: | |
| Range: | |
Location |
| Address: | 390 TILLICUM WAY CAMANO ISLAND, WA 98282 | Mapsco: | |
| Neighborhood: | North Camano | Map ID: | 959 |
| Neighborhood CD: | 06-C |
Owner |
| Name: | OTA, SHOGO | Owner ID: | 298841 |
| Mailing Address: | TAUREAN JAE OTA 390 TILLICUM WAY CAMANO ISLAND, WA 98282 | % Ownership: | 100.0000000000% |
| | | Exemptions: | |
Taxes and Assessment Details
Values
| (+) Improvement Homesite Value: | + | $0 | |
| (+) Improvement Non-Homesite Value: | + | $265,898 | |
| (+) Land Homesite Value: | + | $0 | |
| (+) Land Non-Homesite Value: | + | $240,000 | |
| (+) Curr Use (HS): | + | $0 | $0 |
| (+) Curr Use (NHS): | + | $0 | $0 |
| | | -------------------------- | |
| (=) Market Value: | = | $505,898 | |
| (–) Productivity Loss: | – | $0 | |
| | | -------------------------- | |
| (=) Subtotal: | = | $505,898 | |
| (+) Senior Appraised Value: | + | $0 | |
| (+) Non-Senior Appraised Value: | + | $505,898 | |
| | | -------------------------- | |
| (=) Total Appraised Value: | = | $505,898 | |
| (–) Senior Exemption Loss: | – | $0 | |
| (–) Exemption Loss: | – | $0 | |
| | | -------------------------- | |
| (=) Taxable Value: | = | $505,898 | |
Taxing Jurisdiction
| Owner: | OTA, SHOGO | | |
| % Ownership: | 100.0000000000% | | |
| Total Value: | $505,898 | | |
| Tax Area: | 510 - APPRAISER-Stan/Cam Schl Dist, improved & 1 acre or less |
| CF | Conservation Futures | 0.0316035091 | $505,898 | $505,898 | $15.99 | | |
| EMS1 | Fire & Rescue Dist #1 Camano GEN (EMS) | 0.3677864386 | $505,898 | $505,898 | $186.06 | | |
| FIRE1 | Fire & Rescue Dist #1 Camano GEN | 1.2502910536 | $505,898 | $505,898 | $632.52 | | |
| FIRE1BOND | Fire & Rescue Dist #1 Camano BOND | 0.1570001679 | $505,898 | $505,898 | $79.43 | | |
| CE | County Current Expense | 0.3708482477 | $505,898 | $505,898 | $187.61 | | |
| CR | County Roads | 0.4584763726 | $505,898 | $505,898 | $231.94 | | |
| LCIB | Library Sno-Isle BOND (Camano Island) | 0.0396325772 | $505,898 | $505,898 | $20.05 | | |
| LIB | Library Sno-Isle GEN | 0.3153421757 | $505,898 | $505,898 | $159.53 | | |
| SCH205_401 | School 205-401 Enrichment | 1.2698420524 | $505,898 | $505,898 | $642.41 | | |
| SCH205BOND | School 205-401 BOND | 0.9396497583 | $505,898 | $505,898 | $475.37 | | |
| ST | State School | 1.3035497053 | $505,898 | $505,898 | $659.46 | | |
| ST2 | State School Part 2 | 0.8169543533 | $505,898 | $505,898 | $413.30 | | |
| | Total Tax Rate: | 7.3209764117 | | | | | |
| | | | | Taxes w/Current Exemptions: | $3,703.67 | | |
| | | | | Taxes w/o Exemptions: | $3,703.67 | | |
Improvement / Building
| Improvement #1: | RESIDENTIAL | State Code: | Y | 1900.0 sqft | Value: | $265,898 |
| Bathrooms: | 1 | Bedrooms: | 2 | | Ceiling: | DRYWALL PAINTED | Exterior Wall/Cover: | PLY/HARDBOARD T-111 | | Floor Covering: | CARPET/VINYL 20-80 | Floor Structure: | WOOD W/SUBFLOOR | | Foundation: | CONCRETE | Heating: | FHA ELECTRIC | | Interior Finish: | DRYWALL PAINT | Plumbing Fixture Cnt: | 7 | | Roof Slope: | 8" IN 12" | Roof Structure/Cover: | BEAM WOOD SHAKES |
|
| | Type | Description | Class CD | Sub Class CD | Year Built | Area |
| | BAS | BASE/MAIN FLOOR | 3 | 0 | 1974 | 1500.0 |
| | UPS | UPPER STORY | 3 | 0 | 1974 | 400.0 |
| | OWP | OPEN WOOD PORCH W/STEPS | 3 | 0 | 1974 | 72.0 |
| | OWP | OPEN WOOD PORCH W/STEPS | 3 | 0 | 1974 | 48.0 |
Sketch
Property Image
Land
| 1 | 15 | SQ (12001-21780) | 0.4900 | 21344.40 | 0.00 | 0.00 | 1.00 | $240,000 | $0 |
Roll Value History
| 2026 | N/A | N/A | N/A | N/A | N/A |
| 2025 | $265,898 | $240,000 | $0 | $505,898 | $505,898 |
| 2024 | $269,529 | $230,000 | $0 | $499,529 | $499,529 |
| 2023 | $273,158 | $230,000 | $0 | $503,158 | $503,158 |
| 2022 | $240,776 | $210,000 | $0 | $450,776 | $450,776 |
| 2021 | $221,422 | $160,000 | $0 | $381,422 | $381,422 |
| 2020 | $216,738 | $130,000 | $0 | $346,738 | $346,738 |
| 2019 | $166,032 | $170,000 | $0 | $336,032 | $336,032 |
| 2018 | $166,575 | $150,000 | $0 | $316,575 | $316,575 |
| 2017 | $167,663 | $120,000 | $0 | $287,663 | $287,663 |
| 2016 | $159,284 | $85,000 | $0 | $244,284 | $244,284 |
| 2015 | $161,467 | $85,000 | $0 | $246,467 | $246,467 |
| 2014 | $163,649 | $85,000 | $0 | $248,649 | $248,649 |
| 2013 | $165,830 | $85,000 | $0 | $250,830 | $250,830 |
| 2012 | $168,014 | $80,000 | $0 | $248,014 | $248,014 |
| 2011 | $170,195 | $100,000 | $0 | $270,195 | $270,195 |
| 2010 | $66,931 | $100,000 | $0 | $166,931 | $166,931 |
| 2009 | $70,341 | $125,000 | $0 | $195,341 | $195,341 |
| 2008 | $70,441 | $125,000 | $0 | $195,441 | $195,441 |
| 2007 | $71,819 | $125,000 | $0 | $196,819 | $196,819 |
Deed and Sales History
| 1 | 04/05/2021 | QCD | Quit Claim Deed | OTA, SHOGO | OTA, SHOGO | | | $0.00 | 47720 | 4516191 |
| 2 | 09/24/2016 | WD | Warranty Deed | HESLA, ERLING C | OTA, SHOGO | | | $279,900.00 | 26474 | 4408886 |
Payout Agreement
| No payout information available.. |