Property
Account |
| Property ID: | 182616 | Abbreviated Legal Description: | ARROWHEAD BCH #1 LOT 9 BLK 4 |
| Geographic ID: | S6050-01-04009-0 | Agent Code: | |
| Type: | Real | | |
| Tax Area: | 510 - APPRAISER-Stan/Cam Schl Dist, improved & 1 acre or less | Land Use Code | 11 |
| Open Space: | N | DFL | N |
| Historic Property: | N | Remodel Property: | N |
| Multi-Family Redevelopment: | N | | |
| Township: | | Section: | |
| Range: | |
Location |
| Address: | 1508 ARROWHEAD BEACH RD CAMANO ISLAND, WA 98282 | Mapsco: | |
| Neighborhood: | North Camano | Map ID: | 959 |
| Neighborhood CD: | 06-C |
Owner |
| Name: | BERRY, FREDERICK JAMES | Owner ID: | 296656 |
| Mailing Address: | 1439 ARROWHEAD BEACH RD CAMANO ISLAND, WA 98282 | % Ownership: | 100.0000000000% |
| | | Exemptions: | |
Taxes and Assessment Details
Values
| (+) Improvement Homesite Value: | + | $0 | |
| (+) Improvement Non-Homesite Value: | + | $20,000 | |
| (+) Land Homesite Value: | + | $0 | |
| (+) Land Non-Homesite Value: | + | $240,000 | |
| (+) Curr Use (HS): | + | $0 | $0 |
| (+) Curr Use (NHS): | + | $0 | $0 |
| | | -------------------------- | |
| (=) Market Value: | = | $260,000 | |
| (–) Productivity Loss: | – | $0 | |
| | | -------------------------- | |
| (=) Subtotal: | = | $260,000 | |
| (+) Senior Appraised Value: | + | $0 | |
| (+) Non-Senior Appraised Value: | + | $260,000 | |
| | | -------------------------- | |
| (=) Total Appraised Value: | = | $260,000 | |
| (–) Senior Exemption Loss: | – | $0 | |
| (–) Exemption Loss: | – | $0 | |
| | | -------------------------- | |
| (=) Taxable Value: | = | $260,000 | |
Taxing Jurisdiction
| Owner: | BERRY, FREDERICK JAMES | | |
| % Ownership: | 100.0000000000% | | |
| Total Value: | $260,000 | | |
| Tax Area: | 510 - APPRAISER-Stan/Cam Schl Dist, improved & 1 acre or less |
| CF | Conservation Futures | 0.0316035091 | $260,000 | $260,000 | $8.22 | | |
| EMS1 | Fire & Rescue Dist #1 Camano GEN (EMS) | 0.3677864386 | $260,000 | $260,000 | $95.62 | | |
| FIRE1 | Fire & Rescue Dist #1 Camano GEN | 1.2502910536 | $260,000 | $260,000 | $325.08 | | |
| FIRE1BOND | Fire & Rescue Dist #1 Camano BOND | 0.1570001679 | $260,000 | $260,000 | $40.82 | | |
| CE | County Current Expense | 0.3708482477 | $260,000 | $260,000 | $96.42 | | |
| CR | County Roads | 0.4584763726 | $260,000 | $260,000 | $119.20 | | |
| LCIB | Library Sno-Isle BOND (Camano Island) | 0.0396325772 | $260,000 | $260,000 | $10.30 | | |
| LIB | Library Sno-Isle GEN | 0.3153421757 | $260,000 | $260,000 | $81.99 | | |
| SCH205_401 | School 205-401 Enrichment | 1.2698420524 | $260,000 | $260,000 | $330.16 | | |
| SCH205BOND | School 205-401 BOND | 0.9396497583 | $260,000 | $260,000 | $244.31 | | |
| ST | State School | 1.3035497053 | $260,000 | $260,000 | $338.92 | | |
| ST2 | State School Part 2 | 0.8169543533 | $260,000 | $260,000 | $212.41 | | |
| | Total Tax Rate: | 7.3209764117 | | | | | |
| | | | | Taxes w/Current Exemptions: | $1,903.45 | | |
| | | | | Taxes w/o Exemptions: | $1,903.45 | | |
Improvement / Building
| Improvement #1: | RESIDENTIAL | State Code: | Y | 0.0 sqft | Value: | $20,000 |
Sketch
Property Image
Land
| 1 | 15 | SQ (12001-21780) | 0.0000 | 0.00 | 0.00 | 0.00 | 1.00 | $240,000 | $0 |
Roll Value History
| 2026 | N/A | N/A | N/A | N/A | N/A |
| 2025 | $20,000 | $240,000 | $0 | $260,000 | $260,000 |
| 2024 | $20,000 | $230,000 | $0 | $250,000 | $250,000 |
| 2023 | $25,238 | $230,000 | $0 | $255,238 | $255,238 |
| 2022 | $24,743 | $210,000 | $0 | $234,743 | $234,743 |
| 2021 | $24,125 | $160,000 | $0 | $184,125 | $184,125 |
| 2020 | $24,004 | $130,000 | $0 | $154,004 | $154,004 |
| 2019 | $23,154 | $170,000 | $0 | $193,154 | $193,154 |
| 2018 | $23,154 | $150,000 | $0 | $173,154 | $173,154 |
| 2017 | $23,154 | $120,000 | $0 | $143,154 | $143,154 |
| 2016 | $8,154 | $65,000 | $0 | $73,154 | $73,154 |
| 2015 | $8,154 | $65,000 | $0 | $73,154 | $73,154 |
| 2014 | $8,154 | $65,000 | $0 | $73,154 | $73,154 |
| 2013 | $8,470 | $65,000 | $0 | $73,470 | $73,470 |
| 2012 | $8,785 | $60,800 | $0 | $69,585 | $69,585 |
| 2011 | $8,943 | $76,000 | $0 | $84,943 | $84,943 |
| 2010 | $19,847 | $76,000 | $0 | $95,847 | $95,847 |
| 2009 | $20,306 | $82,000 | $0 | $102,306 | $102,306 |
| 2008 | $20,472 | $85,000 | $0 | $105,472 | $105,472 |
| 2007 | $20,676 | $85,000 | $0 | $105,676 | $105,676 |
Deed and Sales History
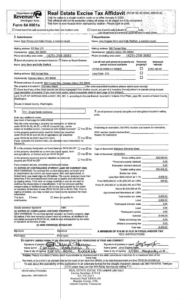
| 1 | 11/05/2020 | WD | Warranty Deed | VELOTTA, PAUL L | BERRY, FREDERICK JAMES | | | $265,000.00 | 45613 | 4501891 |
| 2 | 08/01/1987 | WD | Warranty Deed | VELOTTA, MARY A | VELOTTA, PAUL L | | | $0.00 | 13164 | 91013508 |
| 3 | 06/01/1982 | WD | Warranty Deed | VELOTTA, PAUL L | VELOTTA, MARY A | | | $14,466.00 | 22354 | 401196 |
| 4 | 05/01/1980 | TRUSTEED | Trustee's Deed | LOCKE-WILSON, NANCY J | VELOTTA, PAUL L | | | $7,750.00 | 2002 | 369959 |
| 5 | 11/01/1978 | OTHER | Other - Misc. Documents | VELOTTA, PAUL | LOCKE-WILSON, NANCY J | | | $4,167.00 | 85804 | 343754 |
| 6 | 01/01/1900 | OTHER | Other - Misc. Documents | Unknown | VELOTTA, PAUL | | | $0.00 | 0 | 0 |
Payout Agreement
| No payout information available.. |