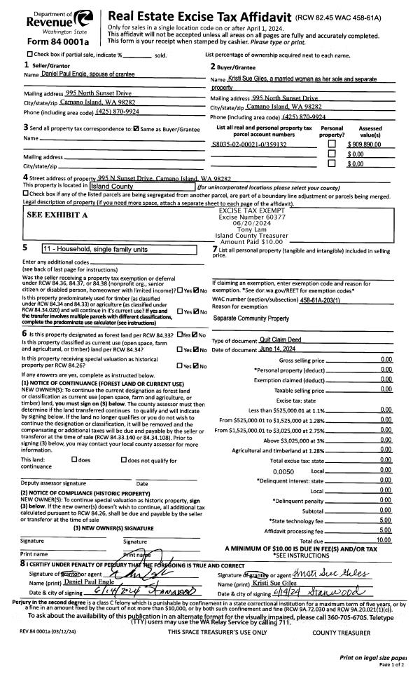
Property
Account |
| Property ID: | 182750 | Abbreviated Legal Description: | AUDREY HOMES LOT 3 BLK 2 |
| Geographic ID: | S6055-00-02003-0 | Agent Code: | |
| Type: | Real | | |
| Tax Area: | 100 - APPRAISER-OH Schl Dist, in OH | Land Use Code | 11 |
| Open Space: | N | DFL | N |
| Historic Property: | N | Remodel Property: | N |
| Multi-Family Redevelopment: | N | | |
| Township: | | Section: | |
| Range: | |
Location |
| Address: | 1568 NE 5TH AVE OAK HARBOR, WA 98277 | Mapsco: | |
| Neighborhood: | Cycle 1 | Map ID: | 257 |
| Neighborhood CD: | 1 |
Owner |
| Name: | MORIMOTO, MARI | Owner ID: | 313185 |
| Mailing Address: | 1568 NE 5TH AVE OAK HARBOR, WA 98277 | % Ownership: | 100.0000000000% |
| | | Exemptions: | |
Taxes and Assessment Details
Values
| (+) Improvement Homesite Value: | + | $0 | |
| (+) Improvement Non-Homesite Value: | + | $224,137 | |
| (+) Land Homesite Value: | + | $0 | |
| (+) Land Non-Homesite Value: | + | $180,000 | |
| (+) Curr Use (HS): | + | $0 | $0 |
| (+) Curr Use (NHS): | + | $0 | $0 |
| | | -------------------------- | |
| (=) Market Value: | = | $404,137 | |
| (–) Productivity Loss: | – | $0 | |
| | | -------------------------- | |
| (=) Subtotal: | = | $404,137 | |
| (+) Senior Appraised Value: | + | $0 | |
| (+) Non-Senior Appraised Value: | + | $404,137 | |
| | | -------------------------- | |
| (=) Total Appraised Value: | = | $404,137 | |
| (–) Senior Exemption Loss: | – | $0 | |
| (–) Exemption Loss: | – | $0 | |
| | | -------------------------- | |
| (=) Taxable Value: | = | $404,137 | |
Taxing Jurisdiction
| Owner: | MORIMOTO, MARI | | |
| % Ownership: | 100.0000000000% | | |
| Total Value: | $404,137 | | |
| Tax Area: | 100 - APPRAISER-OH Schl Dist, in OH |
| CF | Conservation Futures | 0.0316035091 | $404,137 | $404,137 | $12.77 | | |
| CEM1 | Cemetery #1 | 0.0040320932 | $404,137 | $404,137 | $1.63 | | |
| COH | City of Oak Harbor | 2.3001546061 | $404,137 | $404,137 | $929.58 | | |
| OAKBOND | City of Oak Harbor BOND | 0.1926904192 | $404,137 | $404,137 | $77.87 | | |
| HOBOND | Hospital BOND | 0.1910887512 | $404,137 | $404,137 | $77.23 | | |
| HOGEN | Hospital GEN | 0.3902502903 | $404,137 | $404,137 | $157.71 | | |
| CE | County Current Expense | 0.3708482477 | $404,137 | $404,137 | $149.87 | | |
| ISLANDEMS | Hospital GEN (EMS) | 0.5000000000 | $404,137 | $404,137 | $202.07 | | |
| LIB | Library Sno-Isle GEN | 0.3153421757 | $404,137 | $404,137 | $127.44 | | |
| NWHIDPRMT | P & R N Whidbey GEN | 0.2004466701 | $404,137 | $404,137 | $81.01 | | |
| SCH201MO | School 201 Enrichment | 1.8559231640 | $404,137 | $404,137 | $750.05 | | |
| ST | State School | 1.3035497053 | $404,137 | $404,137 | $526.81 | | |
| ST2 | State School Part 2 | 0.8169543533 | $404,137 | $404,137 | $330.16 | | |
| | Total Tax Rate: | 8.4728839852 | | | | | |
| | | | | Taxes w/Current Exemptions: | $3,424.20 | | |
| | | | | Taxes w/o Exemptions: | $3,424.20 | | |
Improvement / Building
| Improvement #1: | RESIDENTIAL | State Code: | Y | 1404.0 sqft | Value: | $224,137 |
| Bathrooms: | 1.5 | Bedrooms: | 3 | | Ceiling: | DRYWALL PAINTED | Exterior Wall/Cover: | WOOD SIDING | | Floor Covering: | CERAMIC TILE/HWD 40/60 | Floor Structure: | WOOD W/SUBFLOOR | | Foundation: | CONCRETE | Heating: | FHA GAS | | Interior Finish: | DRYWALL PAINT | Plumbing Fixture Cnt: | 9 | | Roof Slope: | 3" IN 12" | Roof Structure/Cover: | CJ ASPHALT |
|
| | Type | Description | Class CD | Sub Class CD | Year Built | Area |
| | BAS | BASE/MAIN FLOOR | 3 | 0 | 1957 | 1404.0 |
| | OCP | OPEN CARPORT | 3 | 0 | 1957 | 216.0 |
| | UTY | STORAGE/UTILITY | 3 | 0 | 1957 | 48.0 |
Sketch
Property Image
Land
| 1 | 14 | SQ (08001-12000) | 0.2500 | 10890.00 | 0.00 | 0.00 | 1.00 | $180,000 | $0 |
Roll Value History
| 2026 | N/A | N/A | N/A | N/A | N/A |
| 2025 | $224,137 | $180,000 | $0 | $404,137 | $404,137 |
| 2024 | $227,115 | $170,000 | $0 | $397,115 | $397,115 |
| 2023 | $222,348 | $170,000 | $0 | $392,348 | $392,348 |
| 2022 | $204,012 | $160,000 | $0 | $364,012 | $364,012 |
| 2021 | $179,737 | $125,000 | $0 | $304,737 | $304,737 |
| 2020 | $165,289 | $100,000 | $0 | $265,289 | $265,289 |
| 2019 | $112,548 | $140,000 | $0 | $252,548 | $252,548 |
| 2018 | $112,917 | $125,000 | $0 | $237,917 | $237,917 |
| 2017 | $113,655 | $110,000 | $0 | $223,655 | $223,655 |
| 2016 | $93,101 | $90,000 | $0 | $183,101 | $183,101 |
| 2015 | $94,580 | $70,000 | $0 | $164,580 | $164,580 |
| 2014 | $96,058 | $55,000 | $0 | $151,058 | $151,058 |
| 2013 | $97,535 | $55,000 | $0 | $152,535 | $152,535 |
| 2012 | $99,013 | $65,000 | $0 | $164,013 | $164,013 |
| 2011 | $102,860 | $65,000 | $0 | $167,860 | $167,860 |
| 2010 | $109,985 | $65,000 | $0 | $174,985 | $174,985 |
| 2009 | $107,349 | $95,000 | $0 | $202,349 | $202,349 |
| 2008 | $107,399 | $109,000 | $0 | $216,399 | $216,399 |
| 2007 | $108,954 | $109,000 | $0 | $217,954 | $217,954 |
Deed and Sales History
| 1 | 01/30/2024 | QCD | Quit Claim Deed | REYES, RENE | MORIMOTO, MARI | | | $0.00 | 60665 | 4574683 |
| 2 | 01/14/2020 | WD | Warranty Deed | BOOKMAN, KRAMER E | REYES, RENE | | | $290,000.00 | 41975 | 4480537 |
| 3 | 11/13/2017 | QCD | Quit Claim Deed | BOOKMAN, KRAMER E. | BOOKMAN, KRAMER E | | | $0.00 | 32035 | 4434700 |
| 4 | 12/13/2016 | WD | Warranty Deed | ACHESON, RUSTY G | BOOKMAN, KRAMER E. | | | $223,500.00 | 27429 | 4413676 |
| 5 | 04/23/2013 | WD | Warranty Deed | ANDERSON, AUSTIN A | ACHESON, RUSTY G | | | $133,700.00 | 11099 | 4338423 |
| 6 | 06/05/2009 | WD | Warranty Deed | WILLIAMS, KALIEF A | ANDERSON, AUSTIN A | | | $210,000.00 | 91232 | 4252997 |
| 7 | 10/04/2006 | WD | Warranty Deed | LOVE, RICHARD O | WILLIAMS, KALIEF A | | | $200,500.00 | 64436 | 4184242 |
| 8 | 10/07/2003 | WD | Warranty Deed | MATTHEWS, CHADWICK J | LOVE, RICHARD O | | | $134,000.00 | 34672 | 4079430 |
| 9 | 02/01/1991 | QCD | Quit Claim Deed | MATTHEWS, CHAD | MATTHEWS, CHADWICK J | | | $0.00 | 10379 | 91001667 |
| 10 | 04/01/1981 | WD | Warranty Deed | WALTERS, ROLLAND E | MATTHEWS, CHAD | | | $41,500.00 | 11359 | 382601 |
| 11 | 01/01/1981 | QCD | Quit Claim Deed | SCHIRMER, S J | WALTERS, ROLLAND E | | | $0.00 | 11358 | 382600 |
| 12 | 01/01/1900 | OTHER | Other - Misc. Documents | Unknown | SCHIRMER, S J | | | $0.00 | 0 | 0 |
Payout Agreement
| No payout information available.. |