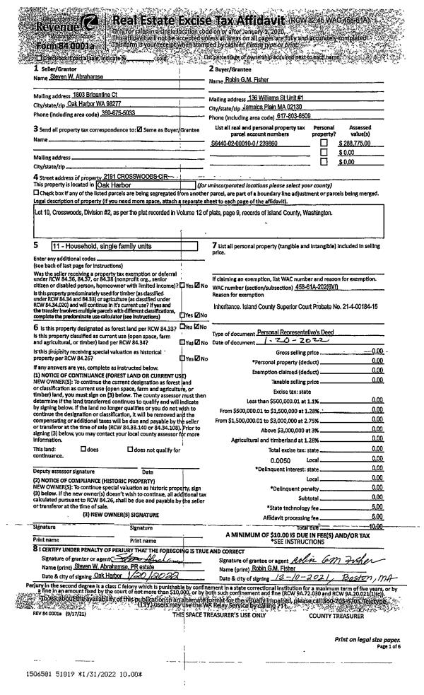
Property
Account |
| Property ID: | 182778 | Abbreviated Legal Description: | AUDREY HOMES LOT 5 BLK 2 |
| Geographic ID: | S6055-00-02005-0 | Agent Code: | |
| Type: | Real | | |
| Tax Area: | 100 - APPRAISER-OH Schl Dist, in OH | Land Use Code | 11 |
| Open Space: | N | DFL | N |
| Historic Property: | N | Remodel Property: | N |
| Multi-Family Redevelopment: | N | | |
| Township: | | Section: | |
| Range: | |
Location |
| Address: | 1622 NE 5TH AVE OAK HARBOR, WA 98277 | Mapsco: | |
| Neighborhood: | Cycle 1 | Map ID: | 257 |
| Neighborhood CD: | 1 |
Owner |
| Name: | THOMPSON, MATTHEW A | Owner ID: | 301451 |
| Mailing Address: | CANDELA C GONZALEZ-FIOL 1622 NE 5TH AVE OAK HARBOR, WA 98277 | % Ownership: | 100.0000000000% |
| | | Exemptions: | |
Taxes and Assessment Details
Values
| (+) Improvement Homesite Value: | + | $0 | |
| (+) Improvement Non-Homesite Value: | + | $240,260 | |
| (+) Land Homesite Value: | + | $0 | |
| (+) Land Non-Homesite Value: | + | $185,000 | |
| (+) Curr Use (HS): | + | $0 | $0 |
| (+) Curr Use (NHS): | + | $0 | $0 |
| | | -------------------------- | |
| (=) Market Value: | = | $425,260 | |
| (–) Productivity Loss: | – | $0 | |
| | | -------------------------- | |
| (=) Subtotal: | = | $425,260 | |
| (+) Senior Appraised Value: | + | $0 | |
| (+) Non-Senior Appraised Value: | + | $425,260 | |
| | | -------------------------- | |
| (=) Total Appraised Value: | = | $425,260 | |
| (–) Senior Exemption Loss: | – | $0 | |
| (–) Exemption Loss: | – | $0 | |
| | | -------------------------- | |
| (=) Taxable Value: | = | $425,260 | |
Taxing Jurisdiction
| Owner: | THOMPSON, MATTHEW A | | |
| % Ownership: | 100.0000000000% | | |
| Total Value: | $425,260 | | |
| Tax Area: | 100 - APPRAISER-OH Schl Dist, in OH |
| CF | Conservation Futures | 0.0316035091 | $425,260 | $425,260 | $13.44 | | |
| CEM1 | Cemetery #1 | 0.0040320932 | $425,260 | $425,260 | $1.71 | | |
| COH | City of Oak Harbor | 2.3001546061 | $425,260 | $425,260 | $978.16 | | |
| OAKBOND | City of Oak Harbor BOND | 0.1926904192 | $425,260 | $425,260 | $81.94 | | |
| HOBOND | Hospital BOND | 0.1910887512 | $425,260 | $425,260 | $81.26 | | |
| HOGEN | Hospital GEN | 0.3902502903 | $425,260 | $425,260 | $165.96 | | |
| CE | County Current Expense | 0.3708482477 | $425,260 | $425,260 | $157.71 | | |
| ISLANDEMS | Hospital GEN (EMS) | 0.5000000000 | $425,260 | $425,260 | $212.63 | | |
| LIB | Library Sno-Isle GEN | 0.3153421757 | $425,260 | $425,260 | $134.10 | | |
| NWHIDPRMT | P & R N Whidbey GEN | 0.2004466701 | $425,260 | $425,260 | $85.24 | | |
| SCH201MO | School 201 Enrichment | 1.8559231640 | $425,260 | $425,260 | $789.25 | | |
| ST | State School | 1.3035497053 | $425,260 | $425,260 | $554.35 | | |
| ST2 | State School Part 2 | 0.8169543533 | $425,260 | $425,260 | $347.42 | | |
| | Total Tax Rate: | 8.4728839852 | | | | | |
| | | | | Taxes w/Current Exemptions: | $3,603.17 | | |
| | | | | Taxes w/o Exemptions: | $3,603.17 | | |
Improvement / Building
| Improvement #1: | RESIDENTIAL | State Code: | Y | 1487.0 sqft | Value: | $240,260 |
| Bathrooms: | 1.5 | Bedrooms: | 3 | | Ceiling: | DRYWALL PAINTED | Exterior Wall/Cover: | WOOD SIDING | | Floor Covering: | VINYL TILE/HARWD 20-80 | Floor Structure: | WOOD W/SUBFLOOR | | Foundation: | CONCRETE | Heating: | FHA GAS | | Interior Finish: | DRYWALL PAINT | Plumbing Fixture Cnt: | 8 | | Roof Slope: | 4" IN 12" | Roof Structure/Cover: | CJ ASPHALT |
|
| | Type | Description | Class CD | Sub Class CD | Year Built | Area |
| | BAS | BASE/MAIN FLOOR | 3 | 0 | 1958 | 1487.0 |
| | OP1 | OPEN PORCH SLAB | 3 | 0 | 1958 | 260.0 |
| | OP4 | OPEN PORCH W/CEILING-ROOF | 3 | 0 | 1958 | 20.0 |
| | AGR | ATTACHED GARAGE | 3 | 0 | 1958 | 345.0 |
Sketch
Property Image
Land
| 1 | 15 | SQ (12001-21780) | 0.2700 | 11761.20 | 0.00 | 0.00 | 1.00 | $185,000 | $0 |
Roll Value History
| 2026 | N/A | N/A | N/A | N/A | N/A |
| 2025 | $240,260 | $185,000 | $0 | $425,260 | $425,260 |
| 2024 | $243,541 | $175,000 | $0 | $418,541 | $418,541 |
| 2023 | $234,406 | $180,000 | $0 | $414,406 | $414,406 |
| 2022 | $215,197 | $180,000 | $0 | $395,197 | $395,197 |
| 2021 | $189,690 | $125,000 | $0 | $314,690 | $314,690 |
| 2020 | $185,277 | $100,000 | $0 | $285,277 | $285,277 |
| 2019 | $135,804 | $140,000 | $0 | $275,804 | $275,804 |
| 2018 | $136,249 | $125,000 | $0 | $261,249 | $261,249 |
| 2017 | $114,497 | $110,000 | $0 | $224,497 | $224,497 |
| 2016 | $116,087 | $90,000 | $0 | $206,087 | $206,087 |
| 2015 | $85,873 | $70,000 | $0 | $155,873 | $155,873 |
| 2014 | $87,463 | $55,000 | $0 | $142,463 | $142,463 |
| 2013 | $89,054 | $55,000 | $0 | $144,054 | $144,054 |
| 2012 | $90,643 | $65,000 | $0 | $155,643 | $155,643 |
| 2011 | $79,554 | $65,000 | $0 | $144,554 | $144,554 |
| 2010 | $93,832 | $65,000 | $0 | $158,832 | $158,832 |
| 2009 | $98,258 | $95,000 | $0 | $193,258 | $193,258 |
| 2008 | $99,913 | $109,000 | $0 | $208,913 | $208,913 |
| 2007 | $101,569 | $109,000 | $0 | $210,569 | $210,569 |
Deed and Sales History
| 1 | 10/04/2021 | WD | Warranty Deed | AKINS, JOHN J | THOMPSON, MATTHEW A | | | $395,000.00 | 50323 | 4530626 |
| 2 | 07/08/2015 | WD | Warranty Deed | CLAIR, CHERYL C | AKINS, JOHN J | | | $199,900.00 | 20578 | 4382653 |
| 3 | 01/20/2006 | DECREE | Divorce Decree/Legal Separation | COLLIER, CHERYL C | CLAIR, CHERYL C | | | $0.00 | 73341 | 4213454 |
| 4 | 05/20/2004 | WD | Warranty Deed | ROESELER, STEVEN E | COLLIER, CHERYL C | | | $160,000.00 | 42211 | 4101674 |
| 5 | 01/03/2000 | WD | Warranty Deed | ANDRES, THOMAS E | ROESELER, STEVEN E | | | $135,000.00 | 77 | 20000563 |
| 6 | 08/01/1996 | WD | Warranty Deed | BOWLES, DAVID A | ANDRES, THOMAS E | | | $124,000.00 | 63090 | 96015124 |
| 7 | 09/01/1991 | WD | Warranty Deed | LEE, BILLY B | BOWLES, DAVID A | | | $89,000.00 | 13622 | 91015488 |
| 8 | 11/01/1989 | WD | Warranty Deed | GAMBLE, ROBERT W | LEE, BILLY B | | | $71,000.00 | 95145 | 89016569 |
| 9 | 01/01/1900 | OTHER | Other - Misc. Documents | Unknown | GAMBLE, ROBERT W | | | $0.00 | 0 | 0 |
Payout Agreement
| No payout information available.. |