Property
Account |
| Property ID: | 182894 | Abbreviated Legal Description: | AUDREY HOMES LOT 6 BLK 3 |
| Geographic ID: | S6055-00-03006-0 | Agent Code: | |
| Type: | Real | | |
| Tax Area: | 100 - APPRAISER-OH Schl Dist, in OH | Land Use Code | 11 |
| Open Space: | N | DFL | N |
| Historic Property: | N | Remodel Property: | N |
| Multi-Family Redevelopment: | N | | |
| Township: | | Section: | |
| Range: | |
Location |
| Address: | 1685 NE 5TH AVE OAK HARBOR, WA 98277 | Mapsco: | |
| Neighborhood: | Cycle 1 | Map ID: | 257 |
| Neighborhood CD: | 1 |
Owner |
| Name: | SUTTON, ROBERT | Owner ID: | 281947 |
| Mailing Address: | VIRGINIA SUTTON 1685 NE 5TH AVE OAK HARBOR, WA 98277 | % Ownership: | 100.0000000000% |
| | | Exemptions: | |
Taxes and Assessment Details
Values
| (+) Improvement Homesite Value: | + | $0 | |
| (+) Improvement Non-Homesite Value: | + | $229,984 | |
| (+) Land Homesite Value: | + | $0 | |
| (+) Land Non-Homesite Value: | + | $185,000 | |
| (+) Curr Use (HS): | + | $0 | $0 |
| (+) Curr Use (NHS): | + | $0 | $0 |
| | | -------------------------- | |
| (=) Market Value: | = | $414,984 | |
| (–) Productivity Loss: | – | $0 | |
| | | -------------------------- | |
| (=) Subtotal: | = | $414,984 | |
| (+) Senior Appraised Value: | + | $0 | |
| (+) Non-Senior Appraised Value: | + | $414,984 | |
| | | -------------------------- | |
| (=) Total Appraised Value: | = | $414,984 | |
| (–) Senior Exemption Loss: | – | $0 | |
| (–) Exemption Loss: | – | $0 | |
| | | -------------------------- | |
| (=) Taxable Value: | = | $414,984 | |
Taxing Jurisdiction
| Owner: | SUTTON, ROBERT | | |
| % Ownership: | 100.0000000000% | | |
| Total Value: | $414,984 | | |
| Tax Area: | 100 - APPRAISER-OH Schl Dist, in OH |
| CF | Conservation Futures | 0.0316035091 | $414,984 | $414,984 | $13.11 | | |
| CEM1 | Cemetery #1 | 0.0040320932 | $414,984 | $414,984 | $1.67 | | |
| COH | City of Oak Harbor | 2.3001546061 | $414,984 | $414,984 | $954.53 | | |
| OAKBOND | City of Oak Harbor BOND | 0.1926904192 | $414,984 | $414,984 | $79.96 | | |
| HOBOND | Hospital BOND | 0.1910887512 | $414,984 | $414,984 | $79.30 | | |
| HOGEN | Hospital GEN | 0.3902502903 | $414,984 | $414,984 | $161.95 | | |
| CE | County Current Expense | 0.3708482477 | $414,984 | $414,984 | $153.90 | | |
| ISLANDEMS | Hospital GEN (EMS) | 0.5000000000 | $414,984 | $414,984 | $207.49 | | |
| LIB | Library Sno-Isle GEN | 0.3153421757 | $414,984 | $414,984 | $130.86 | | |
| NWHIDPRMT | P & R N Whidbey GEN | 0.2004466701 | $414,984 | $414,984 | $83.18 | | |
| SCH201MO | School 201 Enrichment | 1.8559231640 | $414,984 | $414,984 | $770.18 | | |
| ST | State School | 1.3035497053 | $414,984 | $414,984 | $540.95 | | |
| ST2 | State School Part 2 | 0.8169543533 | $414,984 | $414,984 | $339.02 | | |
| | Total Tax Rate: | 8.4728839852 | | | | | |
| | | | | Taxes w/Current Exemptions: | $3,516.10 | | |
| | | | | Taxes w/o Exemptions: | $3,516.10 | | |
Improvement / Building
| Improvement #1: | RESIDENTIAL | State Code: | Y | 1518.0 sqft | Value: | $229,984 |
| Bathrooms: | 2 | Bedrooms: | 2 | | Ceiling: | DRYWALL PAINTED | Exterior Wall/Cover: | WOOD SIDING | | Floor Covering: | HARDWOOD 100% | Floor Structure: | WOOD W/SUBFLOOR | | Foundation: | CONCRETE BLOCKS | Heating: | FHA GAS | | Interior Finish: | DRYWALL PAINT | Plumbing Fixture Cnt: | 9 | | Roof Slope: | 5" IN 12" | Roof Structure/Cover: | CJ ASPHALT |
|
| | Type | Description | Class CD | Sub Class CD | Year Built | Area |
| | BAS | BASE/MAIN FLOOR | 3 | 0 | 1954 | 1518.0 |
| | AGR | ATTACHED GARAGE | 3 | 0 | 1954 | 448.0 |
| | OP4 | OPEN PORCH W/CEILING-ROOF | 3 | 0 | 1954 | 30.0 |
Sketch
Property Image
Land
| 1 | 15 | SQ (12001-21780) | 0.2600 | 11325.60 | 0.00 | 0.00 | 1.00 | $185,000 | $0 |
Roll Value History
| 2026 | N/A | N/A | N/A | N/A | N/A |
| 2025 | $229,984 | $185,000 | $0 | $414,984 | $414,984 |
| 2024 | $233,355 | $175,000 | $0 | $408,355 | $408,355 |
| 2023 | $209,860 | $180,000 | $0 | $389,860 | $389,860 |
| 2022 | $192,856 | $180,000 | $0 | $372,856 | $372,856 |
| 2021 | $170,156 | $125,000 | $0 | $295,156 | $295,156 |
| 2020 | $166,178 | $100,000 | $0 | $266,178 | $266,178 |
| 2019 | $121,051 | $140,000 | $0 | $261,051 | $261,051 |
| 2018 | $121,476 | $125,000 | $0 | $246,476 | $246,476 |
| 2017 | $71,562 | $110,000 | $0 | $181,562 | $181,562 |
| 2016 | $73,188 | $90,000 | $0 | $163,188 | $163,188 |
| 2015 | $74,814 | $70,000 | $0 | $144,814 | $63,808 |
| 2014 | $76,442 | $55,000 | $0 | $131,442 | $113,808 |
| 2013 | $78,067 | $55,000 | $0 | $133,067 | $113,808 |
| 2012 | $79,694 | $65,000 | $0 | $144,694 | $113,808 |
| 2011 | $78,715 | $65,000 | $0 | $143,715 | $113,808 |
| 2010 | $90,697 | $65,000 | $0 | $155,697 | $113,808 |
| 2009 | $95,020 | $95,020 | $0 | $190,039 | $63,807 |
| 2008 | $96,669 | $109,010 | $0 | $205,679 | $63,807 |
| 2007 | $97,440 | $109,879 | $0 | $207,319 | $63,807 |
Deed and Sales History
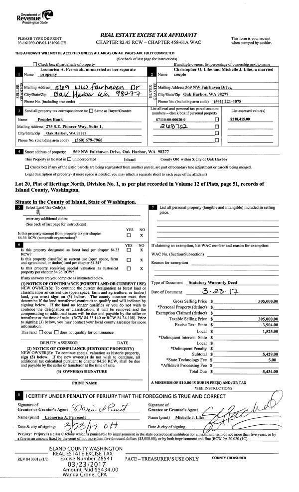
| 1 | 03/30/2017 | WD | Warranty Deed | GRIFFIN, ALICE M | SUTTON, ROBERT | | | $239,900.00 | 28704 | 4420021 |
| 2 | 05/01/1997 | DECREE | Divorce Decree/Legal Separation | GRIFFIN, DAVID E | GRIFFIN, ALICE M | | | $0.00 | 72583 | 97012223 |
| 3 | 01/01/1900 | OTHER | Other - Misc. Documents | Unknown | GRIFFIN, DAVID E | | | $0.00 | 0 | 0 |
Payout Agreement
| No payout information available.. |