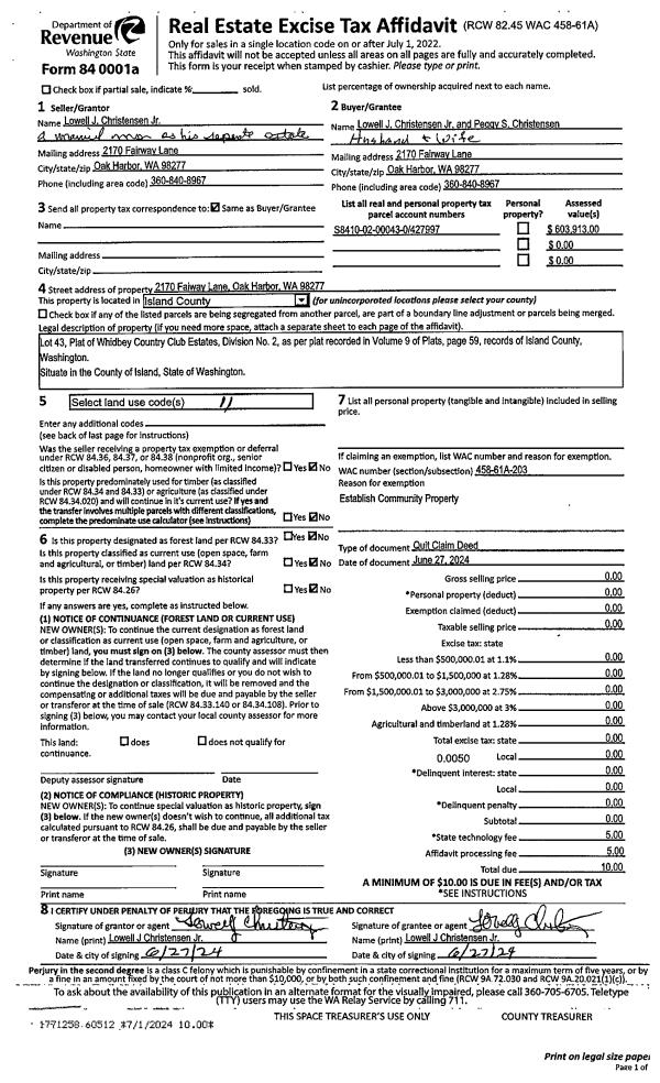
Property
Account |
| Property ID: | 183107 | Abbreviated Legal Description: | AUDREY HOMES LOT 17 BLK 4 |
| Geographic ID: | S6055-00-04017-0 | Agent Code: | |
| Type: | Real | | |
| Tax Area: | 100 - APPRAISER-OH Schl Dist, in OH | Land Use Code | 11 |
| Open Space: | N | DFL | N |
| Historic Property: | N | Remodel Property: | N |
| Multi-Family Redevelopment: | N | | |
| Township: | | Section: | |
| Range: | |
Location |
| Address: | 1464 NE 4TH AVE OAK HARBOR, WA 98277 | Mapsco: | |
| Neighborhood: | Cycle 1 | Map ID: | 257 |
| Neighborhood CD: | 1 |
Owner |
| Name: | MCKINNEY, MARK D | Owner ID: | 74739 |
| Mailing Address: | EVELYN C MCKINNEY 1464 NE 4TH AVE OAK HARBOR, WA 98277-4915 | % Ownership: | 100.0000000000% |
| | | Exemptions: | |
Taxes and Assessment Details
Values
| (+) Improvement Homesite Value: | + | $0 | |
| (+) Improvement Non-Homesite Value: | + | $234,148 | |
| (+) Land Homesite Value: | + | $0 | |
| (+) Land Non-Homesite Value: | + | $180,000 | |
| (+) Curr Use (HS): | + | $0 | $0 |
| (+) Curr Use (NHS): | + | $0 | $0 |
| | | -------------------------- | |
| (=) Market Value: | = | $414,148 | |
| (–) Productivity Loss: | – | $0 | |
| | | -------------------------- | |
| (=) Subtotal: | = | $414,148 | |
| (+) Senior Appraised Value: | + | $0 | |
| (+) Non-Senior Appraised Value: | + | $414,148 | |
| | | -------------------------- | |
| (=) Total Appraised Value: | = | $414,148 | |
| (–) Senior Exemption Loss: | – | $0 | |
| (–) Exemption Loss: | – | $0 | |
| | | -------------------------- | |
| (=) Taxable Value: | = | $414,148 | |
Taxing Jurisdiction
| Owner: | MCKINNEY, MARK D | | |
| % Ownership: | 100.0000000000% | | |
| Total Value: | $414,148 | | |
| Tax Area: | 100 - APPRAISER-OH Schl Dist, in OH |
| CF | Conservation Futures | 0.0316035091 | $414,148 | $414,148 | $13.09 | | |
| CEM1 | Cemetery #1 | 0.0040320932 | $414,148 | $414,148 | $1.67 | | |
| COH | City of Oak Harbor | 2.3001546061 | $414,148 | $414,148 | $952.60 | | |
| OAKBOND | City of Oak Harbor BOND | 0.1926904192 | $414,148 | $414,148 | $79.80 | | |
| HOBOND | Hospital BOND | 0.1910887512 | $414,148 | $414,148 | $79.14 | | |
| HOGEN | Hospital GEN | 0.3902502903 | $414,148 | $414,148 | $161.62 | | |
| CE | County Current Expense | 0.3708482477 | $414,148 | $414,148 | $153.59 | | |
| ISLANDEMS | Hospital GEN (EMS) | 0.5000000000 | $414,148 | $414,148 | $207.07 | | |
| LIB | Library Sno-Isle GEN | 0.3153421757 | $414,148 | $414,148 | $130.60 | | |
| NWHIDPRMT | P & R N Whidbey GEN | 0.2004466701 | $414,148 | $414,148 | $83.01 | | |
| SCH201MO | School 201 Enrichment | 1.8559231640 | $414,148 | $414,148 | $768.63 | | |
| ST | State School | 1.3035497053 | $414,148 | $414,148 | $539.86 | | |
| ST2 | State School Part 2 | 0.8169543533 | $414,148 | $414,148 | $338.34 | | |
| | Total Tax Rate: | 8.4728839852 | | | | | |
| | | | | Taxes w/Current Exemptions: | $3,509.02 | | |
| | | | | Taxes w/o Exemptions: | $3,509.02 | | |
Improvement / Building
| Improvement #1: | RESIDENTIAL | State Code: | Y | 1546.0 sqft | Value: | $234,148 |
| Bathrooms: | 1.75 | Bedrooms: | 3 | | Ceiling: | DRYWALL PAINTED | Exterior Wall/Cover: | PLY/HARDBOARD T-111 | | Floor Covering: | CARPET/VINYL 80-20 | Floor Structure: | WOOD W/SUBFLOOR | | Foundation: | CONCRETE BLOCKS | Heating: | FHA GAS | | Interior Finish: | DRYWALL PAINT | Plumbing Fixture Cnt: | 9 | | Roof Slope: | 4" IN 12" | Roof Structure/Cover: | CJ ASPHALT |
|
| | Type | Description | Class CD | Sub Class CD | Year Built | Area |
| | BAS | BASE/MAIN FLOOR | 3 | 0 | 1964 | 1546.0 |
| | OP1 | OPEN PORCH SLAB | 3 | 0 | 1964 | 192.0 |
| | OP4 | OPEN PORCH W/CEILING-ROOF | 3 | 0 | 1964 | 115.0 |
| | AGR | ATTACHED GARAGE | 3 | 0 | 1964 | 394.0 |
Sketch
Property Image
Land
| 1 | 14 | SQ (08001-12000) | 0.2100 | 9147.60 | 0.00 | 0.00 | 1.00 | $180,000 | $0 |
Roll Value History
| 2026 | N/A | N/A | N/A | N/A | N/A |
| 2025 | $234,148 | $180,000 | $0 | $414,148 | $414,148 |
| 2024 | $237,345 | $170,000 | $0 | $407,345 | $407,345 |
| 2023 | $230,952 | $170,000 | $0 | $400,952 | $400,952 |
| 2022 | $212,020 | $160,000 | $0 | $372,020 | $372,020 |
| 2021 | $186,883 | $125,000 | $0 | $311,883 | $311,883 |
| 2020 | $182,349 | $100,000 | $0 | $282,349 | $282,349 |
| 2019 | $132,966 | $140,000 | $0 | $272,966 | $272,966 |
| 2018 | $133,402 | $125,000 | $0 | $258,402 | $258,402 |
| 2017 | $88,104 | $110,000 | $0 | $198,104 | $198,104 |
| 2016 | $89,800 | $90,000 | $0 | $179,800 | $179,800 |
| 2015 | $91,493 | $70,000 | $0 | $161,493 | $161,493 |
| 2014 | $93,188 | $55,000 | $0 | $148,188 | $148,188 |
| 2013 | $94,882 | $55,000 | $0 | $149,882 | $149,882 |
| 2012 | $96,576 | $65,000 | $0 | $161,576 | $161,576 |
| 2011 | $96,665 | $65,000 | $0 | $161,665 | $161,665 |
| 2010 | $108,451 | $65,000 | $0 | $173,451 | $173,451 |
| 2009 | $113,354 | $95,000 | $0 | $208,354 | $208,354 |
| 2008 | $115,036 | $109,000 | $0 | $224,036 | $224,036 |
| 2007 | $116,719 | $109,000 | $0 | $225,719 | $225,719 |
Deed and Sales History
| 1 | 07/03/2008 | WD | Warranty Deed | CAILLIET, ANDRE | MCKINNEY, MARK D | | | $225,000.00 | 81778 | 4232428 |
| 2 | 03/23/2006 | WD | Warranty Deed | SWOFFORD JR, MARTY A | CAILLIET, ANDRE | | | $231,200.00 | 61321 | 4166238 |
| 3 | 03/15/2005 | WD | Warranty Deed | KIEFER JR, JOSEPH A | SWOFFORD JR, MARTY A | | | $181,000.00 | 51130 | 4128976 |
| 4 | 01/01/1900 | OTHER | Other - Misc. Documents | Unknown | KIEFER JR, JOSEPH A | | | $0.00 | 0 | 0 |
Payout Agreement
| No payout information available.. |