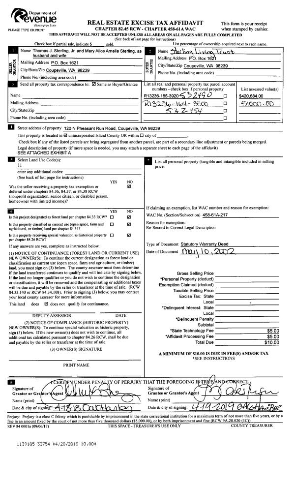
Property
Account |
| Property ID: | 183303 | Abbreviated Legal Description: | BABY IS HTS 1 LOTS 1 & 2 |
| Geographic ID: | S6060-00-00001-0 | Agent Code: | |
| Type: | Real | | |
| Tax Area: | 710 - APPRAISER-S Whid Schl Dist, outside Langley, improved & 1 acre or less | Land Use Code | 11 |
| Open Space: | N | DFL | N |
| Historic Property: | N | Remodel Property: | N |
| Multi-Family Redevelopment: | N | | |
| Township: | | Section: | |
| Range: | |
Location |
| Address: | 2936 SARATOGA RD LANGLEY, WA 98260 | Mapsco: | |
| Neighborhood: | Cycle 3 | Map ID: | 369 |
| Neighborhood CD: | 3 |
Owner |
| Name: | HERRILD, DAVID C | Owner ID: | 284807 |
| Mailing Address: | BETH E HERRILD 2936 SARATOGA RD LANGLEY, WA 98260 | % Ownership: | 100.0000000000% |
| | | Exemptions: | |
Taxes and Assessment Details
Values
| (+) Improvement Homesite Value: | + | $0 | |
| (+) Improvement Non-Homesite Value: | + | $799,653 | |
| (+) Land Homesite Value: | + | $0 | |
| (+) Land Non-Homesite Value: | + | $260,000 | |
| (+) Curr Use (HS): | + | $0 | $0 |
| (+) Curr Use (NHS): | + | $0 | $0 |
| | | -------------------------- | |
| (=) Market Value: | = | $1,059,653 | |
| (–) Productivity Loss: | – | $0 | |
| | | -------------------------- | |
| (=) Subtotal: | = | $1,059,653 | |
| (+) Senior Appraised Value: | + | $0 | |
| (+) Non-Senior Appraised Value: | + | $1,059,653 | |
| | | -------------------------- | |
| (=) Total Appraised Value: | = | $1,059,653 | |
| (–) Senior Exemption Loss: | – | $0 | |
| (–) Exemption Loss: | – | $0 | |
| | | -------------------------- | |
| (=) Taxable Value: | = | $1,059,653 | |
Taxing Jurisdiction
| Owner: | HERRILD, DAVID C | | |
| % Ownership: | 100.0000000000% | | |
| Total Value: | $1,059,653 | | |
| Tax Area: | 710 - APPRAISER-S Whid Schl Dist, outside Langley, improved & 1 acre or less |
| CF | Conservation Futures | 0.0316035091 | $1,059,653 | $1,059,653 | $33.49 | | |
| FIRE3 | Fire & Rescue Dist #3 S Whidbey GEN | 1.2004855531 | $1,059,653 | $1,059,653 | $1,272.10 | | |
| HOBOND | Hospital BOND | 0.1910887512 | $1,059,653 | $1,059,653 | $202.49 | | |
| HOGEN | Hospital GEN | 0.3902502903 | $1,059,653 | $1,059,653 | $413.53 | | |
| CE | County Current Expense | 0.3708482477 | $1,059,653 | $1,059,653 | $392.97 | | |
| CR | County Roads | 0.4584763726 | $1,059,653 | $1,059,653 | $485.83 | | |
| ISLANDEMS | Hospital GEN (EMS) | 0.5000000000 | $1,059,653 | $1,059,653 | $529.83 | | |
| LIB | Library Sno-Isle GEN | 0.3153421757 | $1,059,653 | $1,059,653 | $334.15 | | |
| PORTWHID | Port of S Whidbey GEN | 0.1094540357 | $1,059,653 | $1,059,653 | $115.98 | | |
| SCH206BOND | School 206 BOND | 0.3161759235 | $1,059,653 | $1,059,653 | $335.04 | | |
| SCH206MO | School 206 Enrichment | 0.4547169547 | $1,059,653 | $1,059,653 | $481.84 | | |
| ST | State School | 1.3035497053 | $1,059,653 | $1,059,653 | $1,381.31 | | |
| ST2 | State School Part 2 | 0.8169543533 | $1,059,653 | $1,059,653 | $865.69 | | |
| SWHIDPRBD | P & R S Whidbey BOND | 0.0152817568 | $1,059,653 | $1,059,653 | $16.19 | | |
| SWHIDPRBD2 | P & R S Whidbey BOND2 | 0.0138911264 | $1,059,653 | $1,059,653 | $14.72 | | |
| SWHIDPRMT | P & R S Whidbey GEN | 0.2053334452 | $1,059,653 | $1,059,653 | $217.58 | | |
| | Total Tax Rate: | 6.6934522006 | | | | | |
| | | | | Taxes w/Current Exemptions: | $7,092.74 | | |
| | | | | Taxes w/o Exemptions: | $7,092.74 | | |
Improvement / Building
| Improvement #1: | RESIDENTIAL | State Code: | Y | 3024.0 sqft | Value: | $701,094 |
| Bathrooms: | 2.5 | Bedrooms: | 2 | | Ceiling: | BEAM PAINTED | Exterior Wall/Cover: | STUCCO | | Floor Covering: | COLORED CONCRETE | Floor Structure: | WOOD W/SUBFLOOR | | Foundation: | CONCRETE | Heating: | FLOOR HOT WATER-OIL | | Interior Finish: | DRYWALL PAINT | Plumbing Fixture Cnt: | 14 | | Roof Slope: | 3" IN 12" | Roof Structure/Cover: | BEAM ASPHALT |
|
| | Type | Description | Class CD | Sub Class CD | Year Built | Area |
| | BAS | BASE/MAIN FLOOR | 5 | 0 | 2001 | 1850.0 |
| | OP1 | OPEN PORCH SLAB | 5 | 0 | 2001 | 368.0 |
| | OCP | OPEN CARPORT | 5 | 0 | 2001 | 400.0 |
| | UPS | UPPER STORY | 5 | 0 | 2001 | 268.0 |
| | UPS | UPPER STORY | 5 | 0 | 2001 | 906.0 |
| | BAW | BALCONY WOOD RAIL | 5 | 0 | 2001 | 50.0 |
| | BAW | BALCONY WOOD RAIL | 5 | 0 | 2001 | 24.0 |
| | OWC | OPEN WOOD PORCH W/STEPS/ROOF/C | 5 | 0 | 2001 | 192.0 |
| | OWC | OPEN WOOD PORCH W/STEPS/ROOF/C | 5 | 0 | 2001 | 241.0 |
| | UTY | STORAGE/UTILITY | 5 | 0 | 2001 | 128.0 |
| Improvement #2: | RESIDENTIAL | State Code: | Y | 543.7 sqft | Value: | $98,559 |
| Bathrooms: | 1 | Ceiling: | DRYWALL PAINTED | | Exterior Wall/Cover: | CEMENT FIBER | Floor Covering: | TILE CERAMIC | | Floor Structure: | WOOD W/SUBFLOOR | Foundation: | CONCRETE | | Heating: | FHA GAS | Interior Finish: | DRYWALL PAINT | | Plumbing Fixture Cnt: | 5 | Roof Slope: | 6" IN 12" | | Roof Structure/Cover: | CJ ASPHALT |   |   |
|
| | Type | Description | Class CD | Sub Class CD | Year Built | Area |
| | BAS | BASE/MAIN FLOOR | 3 | 0 | 2013 | 386.2 |
| | OWR | OPEN WOOD PORCH W/STEPS/ROOF | 3 | 0 | 2013 | 109.0 |
| | LOF | LOFT | 3 | 0 | 2013 | 157.5 |
| | OWP | OPEN WOOD PORCH W/STEPS | 3 | 0 | 2013 | 140.0 |
Sketch
Property Image
Land
| 1 | 15 | SQ (12001-21780) | 0.0000 | 0.00 | 0.00 | 0.00 | 1.00 | $260,000 | $0 |
Roll Value History
| 2026 | N/A | N/A | N/A | N/A | N/A |
| 2025 | $799,653 | $260,000 | $0 | $1,059,653 | $1,059,653 |
| 2024 | $798,322 | $260,000 | $0 | $1,058,322 | $1,058,322 |
| 2023 | $807,451 | $240,000 | $0 | $1,047,451 | $1,047,451 |
| 2022 | $739,488 | $210,000 | $0 | $949,488 | $949,488 |
| 2021 | $650,184 | $120,000 | $0 | $770,184 | $770,184 |
| 2020 | $632,694 | $120,000 | $0 | $752,694 | $752,694 |
| 2019 | $586,462 | $150,000 | $0 | $736,462 | $736,462 |
| 2018 | $437,738 | $130,000 | $0 | $567,738 | $567,738 |
| 2017 | $440,308 | $120,000 | $0 | $560,308 | $560,308 |
| 2016 | $445,451 | $150,000 | $0 | $595,451 | $595,451 |
| 2015 | $450,594 | $85,000 | $0 | $535,594 | $426,424 |
| 2014 | $455,521 | $85,000 | $0 | $540,521 | $506,176 |
| 2013 | $461,175 | $85,000 | $0 | $546,175 | $507,005 |
| 2012 | $455,552 | $91,800 | $0 | $547,352 | $487,828 |
| 2011 | $438,114 | $108,000 | $0 | $546,114 | $465,566 |
| 2010 | $443,497 | $120,000 | $0 | $563,497 | $465,566 |
| 2009 | $462,354 | $135,000 | $0 | $597,354 | $465,566 |
| 2008 | $463,242 | $135,000 | $0 | $598,242 | $395,566 |
| 2007 | $458,995 | $137,102 | $0 | $596,097 | $395,566 |
Deed and Sales History
| 1 | 04/26/2018 | WD | Warranty Deed | SMIDT, V ANNE | HERRILD, DAVID C | | | $735,000.00 | 33879 | 4443470 |
| 2 | 11/24/2017 | PRD | Personal Representatives Deed | SMIDT JTWROS, VIOLA ANNE | SMIDT, V ANNE | | | $0.00 | 32066 | 4434846 |
| 3 | 10/12/2017 | QCD | Quit Claim Deed | SMIDT, VIOLA ANNE | SMIDT JTWROS, VIOLA ANNE | | | | 0 | 4291339 |
| 4 | 08/01/1990 | WD | Warranty Deed | NIERMEYER, MICHAEL B | SMIDT, VIOLA A | | | $115,000.00 | 5015 | 90016735 |
| 5 | 01/01/1900 | OTHER | Other - Misc. Documents | Unknown | NIERMEYER, MICHAEL B | | | $0.00 | 0 | 0 |
Payout Agreement
| No payout information available.. |