Property
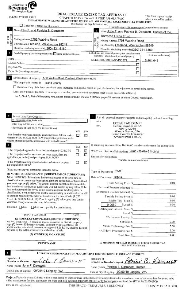
Account |
| Property ID: | 183438 | Abbreviated Legal Description: | BABY IS HTS 1 SL 13 TR A: BG SWCR TR A S89*E400.21' TO ELN LOT 32 PROD S N235' TPB N60' S83*W 90' S22*W41.54' S10' S89*E 105' TPB |
| Geographic ID: | S6060-00-00013-A | Agent Code: | |
| Type: | Real | | |
| Tax Area: | 710 - APPRAISER-S Whid Schl Dist, outside Langley, improved & 1 acre or less | Land Use Code | 11 |
| Open Space: | N | DFL | N |
| Historic Property: | N | Remodel Property: | N |
| Multi-Family Redevelopment: | N | | |
| Township: | | Section: | |
| Range: | |
Location |
| Address: | 3181 EAGLE WATCH WAY LANGLEY, WA 98260 | Mapsco: | |
| Neighborhood: | Cycle 3 | Map ID: | 369 |
| Neighborhood CD: | 3 |
Owner |
| Name: | RENZ, LAURA B | Owner ID: | 311733 |
| Mailing Address: | 1585 43RD ST NE AUBURN, WA 98002 | % Ownership: | 100.0000000000% |
| | | Exemptions: | |
Taxes and Assessment Details
Values
| (+) Improvement Homesite Value: | + | $0 | |
| (+) Improvement Non-Homesite Value: | + | $54,188 | |
| (+) Land Homesite Value: | + | $0 | |
| (+) Land Non-Homesite Value: | + | $260,000 | |
| (+) Curr Use (HS): | + | $0 | $0 |
| (+) Curr Use (NHS): | + | $0 | $0 |
| | | -------------------------- | |
| (=) Market Value: | = | $314,188 | |
| (–) Productivity Loss: | – | $0 | |
| | | -------------------------- | |
| (=) Subtotal: | = | $314,188 | |
| (+) Senior Appraised Value: | + | $0 | |
| (+) Non-Senior Appraised Value: | + | $314,188 | |
| | | -------------------------- | |
| (=) Total Appraised Value: | = | $314,188 | |
| (–) Senior Exemption Loss: | – | $0 | |
| (–) Exemption Loss: | – | $0 | |
| | | -------------------------- | |
| (=) Taxable Value: | = | $314,188 | |
Taxing Jurisdiction
| Owner: | RENZ, LAURA B | | |
| % Ownership: | 100.0000000000% | | |
| Total Value: | $314,188 | | |
| Tax Area: | 710 - APPRAISER-S Whid Schl Dist, outside Langley, improved & 1 acre or less |
| CF | Conservation Futures | 0.0316035091 | $314,188 | $314,188 | $9.93 | | |
| FIRE3 | Fire & Rescue Dist #3 S Whidbey GEN | 1.2004855531 | $314,188 | $314,188 | $377.18 | | |
| HOBOND | Hospital BOND | 0.1910887512 | $314,188 | $314,188 | $60.04 | | |
| HOGEN | Hospital GEN | 0.3902502903 | $314,188 | $314,188 | $122.61 | | |
| CE | County Current Expense | 0.3708482477 | $314,188 | $314,188 | $116.52 | | |
| CR | County Roads | 0.4584763726 | $314,188 | $314,188 | $144.05 | | |
| ISLANDEMS | Hospital GEN (EMS) | 0.5000000000 | $314,188 | $314,188 | $157.09 | | |
| LIB | Library Sno-Isle GEN | 0.3153421757 | $314,188 | $314,188 | $99.08 | | |
| PORTWHID | Port of S Whidbey GEN | 0.1094540357 | $314,188 | $314,188 | $34.39 | | |
| SCH206BOND | School 206 BOND | 0.3161759235 | $314,188 | $314,188 | $99.34 | | |
| SCH206MO | School 206 Enrichment | 0.4547169547 | $314,188 | $314,188 | $142.87 | | |
| ST | State School | 1.3035497053 | $314,188 | $314,188 | $409.56 | | |
| ST2 | State School Part 2 | 0.8169543533 | $314,188 | $314,188 | $256.68 | | |
| SWHIDPRBD | P & R S Whidbey BOND | 0.0152817568 | $314,188 | $314,188 | $4.80 | | |
| SWHIDPRBD2 | P & R S Whidbey BOND2 | 0.0138911264 | $314,188 | $314,188 | $4.36 | | |
| SWHIDPRMT | P & R S Whidbey GEN | 0.2053334452 | $314,188 | $314,188 | $64.51 | | |
| | Total Tax Rate: | 6.6934522006 | | | | | |
| | | | | Taxes w/Current Exemptions: | $2,103.01 | | |
| | | | | Taxes w/o Exemptions: | $2,103.01 | | |
Improvement / Building
| Improvement #1: | RESIDENTIAL | State Code: | Y | 1644.0 sqft | Value: | $54,188 |
| Bathrooms: | 1 | Bedrooms: | 2 | | Ceiling: | PLYWOOD PAINTED | Exterior Wall/Cover: | WOOD SIDING | | Floor Covering: | CARPET/VINYL 80-20 | Floor Structure: | WOOD W/SUBFLOOR | | Foundation: | WOOD BLOCKS | Heating: | WALL HEAT ELECTRIC | | Interior Finish: | DRYWALL PAINT | Plumbing Fixture Cnt: | 6 | | Roof Slope: | 5" IN 12" | Roof Structure/Cover: | CJ ALUMINIUM HEAVY |
|
| | Type | Description | Class CD | Sub Class CD | Year Built | Area |
| | BAS | BASE/MAIN FLOOR | 2 | 0 | 1955 | 1644.0 |
| | OWP | OPEN WOOD PORCH W/STEPS | 2 | 0 | 1955 | 72.0 |
| | OWR | OPEN WOOD PORCH W/STEPS/ROOF | 2 | 0 | 1955 | 240.0 |
| | ENP | ENCLOSED PORCH | 2 | 0 | 1955 | 20.0 |
Sketch
Property Image
Land
| 1 | 12 | SQ (00000-06000) | 0.0000 | 0.00 | 0.00 | 0.00 | 1.00 | $260,000 | $0 |
Roll Value History
| 2026 | N/A | N/A | N/A | N/A | N/A |
| 2025 | $54,188 | $260,000 | $0 | $314,188 | $314,188 |
| 2024 | $55,442 | $260,000 | $0 | $315,442 | $315,442 |
| 2023 | $56,694 | $240,000 | $0 | $296,694 | $296,694 |
| 2022 | $52,469 | $210,000 | $0 | $262,469 | $262,469 |
| 2021 | $46,614 | $120,000 | $0 | $166,614 | $166,614 |
| 2020 | $45,981 | $120,000 | $0 | $165,981 | $165,981 |
| 2019 | $74,146 | $130,000 | $0 | $204,146 | $204,146 |
| 2018 | $74,524 | $120,000 | $0 | $194,524 | $194,524 |
| 2017 | $75,276 | $115,000 | $0 | $190,276 | $190,276 |
| 2016 | $76,781 | $90,000 | $0 | $166,781 | $166,781 |
| 2015 | $78,288 | $65,000 | $0 | $143,288 | $143,288 |
| 2014 | $79,791 | $65,000 | $0 | $144,791 | $144,791 |
| 2013 | $69,814 | $65,000 | $0 | $134,814 | $134,814 |
| 2012 | $71,240 | $68,850 | $0 | $140,090 | $140,090 |
| 2011 | $72,663 | $81,000 | $0 | $153,663 | $153,663 |
| 2010 | $83,995 | $90,000 | $0 | $173,995 | $173,995 |
| 2009 | $87,963 | $104,370 | $0 | $192,333 | $192,333 |
| 2008 | $89,411 | $104,370 | $0 | $193,781 | $193,781 |
| 2007 | $82,152 | $104,370 | $0 | $186,522 | $186,522 |
Deed and Sales History
| 1 | 03/12/2024 | QCD | Quit Claim Deed | GEAR, JAMES E | RENZ, LAURA B | | | $0.00 | 59465 | 4570522 |
| 2 | 12/01/1994 | OTHER | Other - Misc. Documents | GEAR, FLORENCE J | GEAR, JAMES E | | | $0.00 | 66133 | 94024386 |
| 3 | 02/01/1994 | QCD | Quit Claim Deed | GEAR, FLORENCE J | GEAR, FLORENCE J | | | $0.00 | 40630 | 94004036 |
| 4 | 11/01/1989 | OTHER | Other - Misc. Documents | GEAR, WILLIAM C | GEAR, FLORENCE J | | | $0.00 | 63416 | 0 |
| 5 | 01/01/1900 | OTHER | Other - Misc. Documents | Unknown | GEAR, WILLIAM C | | | $0.00 | 0 | 0 |
Payout Agreement
| No payout information available.. |