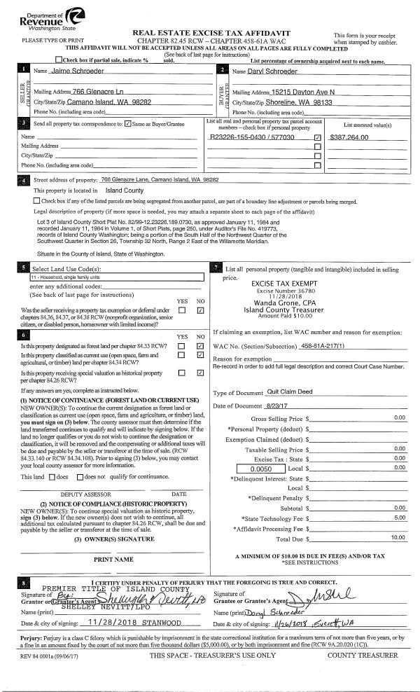
Property
Account |
| Property ID: | 183535 | Abbreviated Legal Description: | BABY IS HTS 1 SL 20 TR A: PT TR A LYING BETW E&W LNS OF LOT 40 EXT SLY |
| Geographic ID: | S6060-00-00020-A | Agent Code: | |
| Type: | Real | | |
| Tax Area: | 710 - APPRAISER-S Whid Schl Dist, outside Langley, improved & 1 acre or less | Land Use Code | 11 |
| Open Space: | N | DFL | N |
| Historic Property: | N | Remodel Property: | N |
| Multi-Family Redevelopment: | N | | |
| Township: | | Section: | |
| Range: | |
Location |
| Address: | 3004 SARATOGA RD LANGLEY, WA 98260 | Mapsco: | |
| Neighborhood: | Cycle 3 | Map ID: | 369 |
| Neighborhood CD: | 3 |
Owner |
| Name: | WRIGHT, SUSAN M | Owner ID: | 257898 |
| Mailing Address: | 21902 96TH AVE SE SNOHOMISH, WA 98296 | % Ownership: | 100.0000000000% |
| | | Exemptions: | |
Taxes and Assessment Details
Values
| (+) Improvement Homesite Value: | + | $0 | |
| (+) Improvement Non-Homesite Value: | + | $92,331 | |
| (+) Land Homesite Value: | + | $0 | |
| (+) Land Non-Homesite Value: | + | $310,000 | |
| (+) Curr Use (HS): | + | $0 | $0 |
| (+) Curr Use (NHS): | + | $0 | $0 |
| | | -------------------------- | |
| (=) Market Value: | = | $402,331 | |
| (–) Productivity Loss: | – | $0 | |
| | | -------------------------- | |
| (=) Subtotal: | = | $402,331 | |
| (+) Senior Appraised Value: | + | $0 | |
| (+) Non-Senior Appraised Value: | + | $402,331 | |
| | | -------------------------- | |
| (=) Total Appraised Value: | = | $402,331 | |
| (–) Senior Exemption Loss: | – | $0 | |
| (–) Exemption Loss: | – | $0 | |
| | | -------------------------- | |
| (=) Taxable Value: | = | $402,331 | |
Taxing Jurisdiction
| Owner: | WRIGHT, SUSAN M | | |
| % Ownership: | 100.0000000000% | | |
| Total Value: | $402,331 | | |
| Tax Area: | 710 - APPRAISER-S Whid Schl Dist, outside Langley, improved & 1 acre or less |
| CF | Conservation Futures | 0.0316035091 | $402,331 | $402,331 | $12.72 | | |
| FIRE3 | Fire & Rescue Dist #3 S Whidbey GEN | 1.2004855531 | $402,331 | $402,331 | $482.99 | | |
| HOBOND | Hospital BOND | 0.1910887512 | $402,331 | $402,331 | $76.88 | | |
| HOGEN | Hospital GEN | 0.3902502903 | $402,331 | $402,331 | $157.01 | | |
| CE | County Current Expense | 0.3708482477 | $402,331 | $402,331 | $149.20 | | |
| CR | County Roads | 0.4584763726 | $402,331 | $402,331 | $184.46 | | |
| ISLANDEMS | Hospital GEN (EMS) | 0.5000000000 | $402,331 | $402,331 | $201.17 | | |
| LIB | Library Sno-Isle GEN | 0.3153421757 | $402,331 | $402,331 | $126.87 | | |
| PORTWHID | Port of S Whidbey GEN | 0.1094540357 | $402,331 | $402,331 | $44.04 | | |
| SCH206BOND | School 206 BOND | 0.3161759235 | $402,331 | $402,331 | $127.21 | | |
| SCH206MO | School 206 Enrichment | 0.4547169547 | $402,331 | $402,331 | $182.95 | | |
| ST | State School | 1.3035497053 | $402,331 | $402,331 | $524.46 | | |
| ST2 | State School Part 2 | 0.8169543533 | $402,331 | $402,331 | $328.69 | | |
| SWHIDPRBD | P & R S Whidbey BOND | 0.0152817568 | $402,331 | $402,331 | $6.15 | | |
| SWHIDPRBD2 | P & R S Whidbey BOND2 | 0.0138911264 | $402,331 | $402,331 | $5.59 | | |
| SWHIDPRMT | P & R S Whidbey GEN | 0.2053334452 | $402,331 | $402,331 | $82.61 | | |
| | Total Tax Rate: | 6.6934522006 | | | | | |
| | | | | Taxes w/Current Exemptions: | $2,693.00 | | |
| | | | | Taxes w/o Exemptions: | $2,693.00 | | |
Improvement / Building
| Improvement #1: | MANUFACTURED HOME | State Code: | Y | 1296.0 sqft | Value: | $92,331 |
| Bathrooms: | 0 | Bedrooms: | 0 | | Ceiling: | PLASTER PAINTED | Cooling: | EVAP NO DUCT | | Exterior Wall/Cover: | VINYL | Floor Covering: | CARPET 100% | | Floor Structure: | SLAB ON GRADE | Foundation: | SLAB | | Heating: | FHA ELECTRIC | Interior Finish: | PLASTER | | Plumbing Fixture Cnt: | 1 | Roof Slope: | FLAT | | Roof Structure/Cover: | CJ ALUMINIUM HEAVY |   |   |
|
| | Type | Description | Class CD | Sub Class CD | Year Built | Area |
| | BAS | BASE/MAIN FLOOR | 4 | 0 | 1990 | 1296.0 |
| | OWR | OPEN WOOD PORCH W/STEPS/ROOF | 4 | 0 | 1990 | 215.2 |
| | OWP | OPEN WOOD PORCH W/STEPS | 4 | 0 | 1990 | 64.0 |
Sketch
Property Image
Land
| 1 | 15 | SQ (12001-21780) | 0.0000 | 0.00 | 0.00 | 0.00 | 1.00 | $310,000 | $0 |
Roll Value History
| 2026 | N/A | N/A | N/A | N/A | N/A |
| 2025 | $92,331 | $310,000 | $0 | $402,331 | $402,331 |
| 2024 | $95,689 | $310,000 | $0 | $405,689 | $405,689 |
| 2023 | $87,587 | $310,000 | $0 | $397,587 | $397,587 |
| 2022 | $81,959 | $280,000 | $0 | $361,959 | $361,959 |
| 2021 | $73,569 | $160,000 | $0 | $233,569 | $233,569 |
| 2020 | $73,653 | $160,000 | $0 | $233,653 | $233,653 |
| 2019 | $54,499 | $180,000 | $0 | $234,499 | $234,499 |
| 2018 | $56,257 | $130,000 | $0 | $186,257 | $186,257 |
| 2017 | $58,015 | $120,000 | $0 | $178,015 | $178,015 |
| 2016 | $59,773 | $100,000 | $0 | $159,773 | $159,773 |
| 2015 | $61,532 | $75,000 | $0 | $136,532 | $136,532 |
| 2014 | $63,289 | $65,000 | $0 | $128,289 | $128,289 |
| 2013 | $83,915 | $65,000 | $0 | $148,915 | $148,915 |
| 2012 | $85,599 | $68,850 | $0 | $154,449 | $154,449 |
| 2011 | $87,283 | $81,000 | $0 | $168,283 | $168,283 |
| 2010 | $96,309 | $90,000 | $0 | $186,309 | $186,309 |
| 2009 | $0 | $172,200 | $0 | $172,200 | $172,200 |
| 2008 | $0 | $172,200 | $0 | $172,200 | $172,200 |
| 2007 | $0 | $172,200 | $0 | $172,200 | $172,200 |
Deed and Sales History
| 1 | 06/12/2012 | WD | Warranty Deed | WATSON, KARIN ELIZABETH | WRIGHT, SUSAN M | | | $208,000.00 | 7960 | 4317297 |
| 2 | 08/28/1998 | OTHER | Other - Misc. Documents | WATSON, KARIN ELIZABETH | WATSON, KARIN E | | | $58,076.00 | 83500 | 0 |
| 3 | 08/28/1998 | WD | Warranty Deed | WATSON, KARIN E | WATSON, KARIN ELIZABETH | | | $159,000.00 | 83499 | 98018188 |
| 4 | 08/01/1998 | OTHER | Other - Misc. Documents | LENDZIAN, LINDA | WATSON, KARIN E | | | $58,076.00 | 83500 | 0 |
| 5 | 10/01/1997 | OTHER | Other - Misc. Documents | LENDZIAN, LINDA | LENDZIAN, LINDA | | | $58,076.00 | 73455 | 0 |
| 6 | 09/01/1997 | WD | Warranty Deed | BRUNS, DONALD L | LENDZIAN, LINDA | | | $93,424.00 | 73454 | 97016275 |
| 7 | 08/01/1994 | OTHER | Other - Misc. Documents | BRUNS, DONALD L | BRUNS, DONALD L | | | $56,066.00 | 43126 | 0 |
| 8 | 03/01/1994 | WD | Warranty Deed | BRUNS, DONALD L | BRUNS, DONALD L | | | $76,434.00 | 40944 | 94006190 |
| 9 | 03/01/1994 | WD | Warranty Deed | MAKELA, ALFRED L | BRUNS, DONALD L | | | $0.00 | 43125 | 94016844 |
| 10 | 07/01/1990 | OTHER | Other - Misc. Documents | MAKELA, ALFRED L | MAKELA, ALFRED L | | | $54,444.00 | 11111111 | 0 |
| 11 | 03/01/1985 | WD | Warranty Deed | HAAKONSON, JOHN | MAKELA, ALFRED L | | | $23,700.00 | 50651 | 85002842 |
| 12 | 07/01/1979 | EXECUTORD | Executor Deed | CASE, H W | HAAKONSON, JOHN | | | $16,500.00 | 94011 | 357289 |
Payout Agreement
| No payout information available.. |