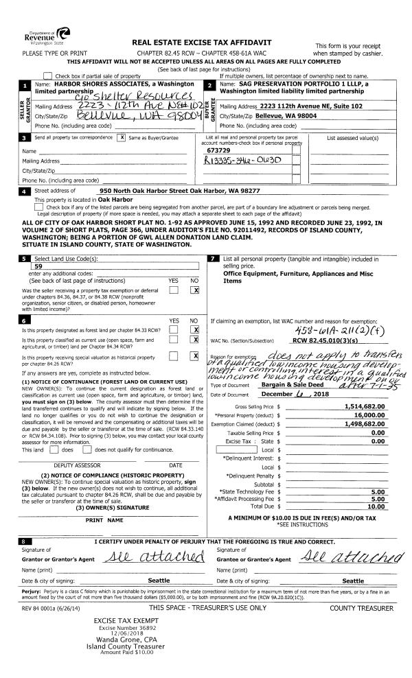
Property
Account |
| Property ID: | 183697 | Abbreviated Legal Description: | BABY IS HTS #1 LOT 39 & E40'OF LOT 38 |
| Geographic ID: | S6060-00-00039-0 | Agent Code: | |
| Type: | Real | | |
| Tax Area: | 710 - APPRAISER-S Whid Schl Dist, outside Langley, improved & 1 acre or less | Land Use Code | 11 |
| Open Space: | N | DFL | N |
| Historic Property: | N | Remodel Property: | N |
| Multi-Family Redevelopment: | N | | |
| Township: | | Section: | |
| Range: | |
Location |
| Address: | 2999 SARATOGA RD LANGLEY, WA 98260 | Mapsco: | |
| Neighborhood: | Cycle 3 | Map ID: | 369 |
| Neighborhood CD: | 3 |
Owner |
| Name: | SMITH, PAUL JAMES | Owner ID: | 288136 |
| Mailing Address: | LAMOYNE KAY SMITH 2999 SARATOGA RD LANGLEY, WA 98260 | % Ownership: | 100.0000000000% |
| | | Exemptions: | |
Taxes and Assessment Details
Values
| (+) Improvement Homesite Value: | + | $0 | |
| (+) Improvement Non-Homesite Value: | + | $336,110 | |
| (+) Land Homesite Value: | + | $0 | |
| (+) Land Non-Homesite Value: | + | $365,600 | |
| (+) Curr Use (HS): | + | $0 | $0 |
| (+) Curr Use (NHS): | + | $0 | $0 |
| | | -------------------------- | |
| (=) Market Value: | = | $701,710 | |
| (–) Productivity Loss: | – | $0 | |
| | | -------------------------- | |
| (=) Subtotal: | = | $701,710 | |
| (+) Senior Appraised Value: | + | $0 | |
| (+) Non-Senior Appraised Value: | + | $701,710 | |
| | | -------------------------- | |
| (=) Total Appraised Value: | = | $701,710 | |
| (–) Senior Exemption Loss: | – | $0 | |
| (–) Exemption Loss: | – | $0 | |
| | | -------------------------- | |
| (=) Taxable Value: | = | $701,710 | |
Taxing Jurisdiction
| Owner: | SMITH, PAUL JAMES | | |
| % Ownership: | 100.0000000000% | | |
| Total Value: | $701,710 | | |
| Tax Area: | 710 - APPRAISER-S Whid Schl Dist, outside Langley, improved & 1 acre or less |
| CF | Conservation Futures | 0.0316035091 | $701,710 | $701,710 | $22.18 | | |
| FIRE3 | Fire & Rescue Dist #3 S Whidbey GEN | 1.2004855531 | $701,710 | $701,710 | $842.39 | | |
| HOBOND | Hospital BOND | 0.1910887512 | $701,710 | $701,710 | $134.09 | | |
| HOGEN | Hospital GEN | 0.3902502903 | $701,710 | $701,710 | $273.84 | | |
| CE | County Current Expense | 0.3708482477 | $701,710 | $701,710 | $260.23 | | |
| CR | County Roads | 0.4584763726 | $701,710 | $701,710 | $321.72 | | |
| ISLANDEMS | Hospital GEN (EMS) | 0.5000000000 | $701,710 | $701,710 | $350.86 | | |
| LIB | Library Sno-Isle GEN | 0.3153421757 | $701,710 | $701,710 | $221.28 | | |
| PORTWHID | Port of S Whidbey GEN | 0.1094540357 | $701,710 | $701,710 | $76.80 | | |
| SCH206BOND | School 206 BOND | 0.3161759235 | $701,710 | $701,710 | $221.86 | | |
| SCH206MO | School 206 Enrichment | 0.4547169547 | $701,710 | $701,710 | $319.08 | | |
| ST | State School | 1.3035497053 | $701,710 | $701,710 | $914.71 | | |
| ST2 | State School Part 2 | 0.8169543533 | $701,710 | $701,710 | $573.27 | | |
| SWHIDPRBD | P & R S Whidbey BOND | 0.0152817568 | $701,710 | $701,710 | $10.72 | | |
| SWHIDPRBD2 | P & R S Whidbey BOND2 | 0.0138911264 | $701,710 | $701,710 | $9.75 | | |
| SWHIDPRMT | P & R S Whidbey GEN | 0.2053334452 | $701,710 | $701,710 | $144.08 | | |
| | Total Tax Rate: | 6.6934522006 | | | | | |
| | | | | Taxes w/Current Exemptions: | $4,696.86 | | |
| | | | | Taxes w/o Exemptions: | $4,696.86 | | |
Improvement / Building
| Improvement #1: | RESIDENTIAL | State Code: | Y | 1329.5 sqft | Value: | $336,110 |
| Bathrooms: | 2 | Bedrooms: | 2 | | Ceiling: | DRYWALL PAINTED | Cooling: | HEAT PUMP/CONV/V | | Exterior Wall/Cover: | WOOD SIDING | Floor Covering: | CARPET/VINYL 20-80 | | Floor Structure: | WOOD W/SUBFLOOR | Foundation: | WOOD BLOCKS | | Interior Finish: | DRYWALL PAINT | Plumbing Fixture Cnt: | 10 | | Roof Slope: | 4" IN 12" | Roof Structure/Cover: | CJ ALUMINIUM HEAVY |
|
| | Type | Description | Class CD | Sub Class CD | Year Built | Area |
| | BAS | BASE/MAIN FLOOR | 3 | 0 | 1938 | 1329.5 |
| | OWP | OPEN WOOD PORCH W/STEPS | 3 | 0 | 1938 | 571.9 |
| | OWP | OPEN WOOD PORCH W/STEPS | 3 | 0 | 1938 | 770.5 |
| | DGR | DETACHED GARAGE | 3 | 0 | 1938 | 748.0 |
| | UTY | STORAGE/UTILITY | 3 | 0 | 1938 | 120.0 |
| | OWC | OPEN WOOD PORCH W/STEPS/ROOF/C | 3 | 0 | 1938 | 144.0 |
Sketch
Property Image
Land
| 1 | HB | HIGH BLUFF | 0.2600 | 11325.60 | 90.00 | 0.00 | 1.00 | $365,600 | $0 |
Roll Value History
| 2026 | N/A | N/A | N/A | N/A | N/A |
| 2025 | $336,110 | $365,600 | $0 | $701,710 | $701,710 |
| 2024 | $343,225 | $365,600 | $0 | $708,825 | $708,825 |
| 2023 | $347,299 | $365,600 | $0 | $712,899 | $712,899 |
| 2022 | $315,078 | $600,000 | $0 | $915,078 | $915,078 |
| 2021 | $277,316 | $375,000 | $0 | $652,316 | $652,316 |
| 2020 | $269,691 | $375,000 | $0 | $644,691 | $644,691 |
| 2019 | $192,431 | $350,000 | $0 | $542,431 | $542,431 |
| 2018 | $154,530 | $350,000 | $0 | $504,530 | $504,530 |
| 2017 | $155,402 | $350,000 | $0 | $505,402 | $505,402 |
| 2016 | $153,658 | $350,000 | $0 | $503,658 | $503,658 |
| 2015 | $155,402 | $350,000 | $0 | $505,402 | $505,402 |
| 2014 | $157,148 | $350,000 | $0 | $507,148 | $507,148 |
| 2013 | $168,109 | $354,010 | $0 | $522,119 | $522,119 |
| 2012 | $169,899 | $354,010 | $0 | $523,909 | $523,909 |
| 2011 | $171,690 | $354,010 | $0 | $525,700 | $525,700 |
| 2010 | $178,940 | $393,341 | $0 | $572,281 | $572,281 |
| 2009 | $186,834 | $393,341 | $0 | $580,175 | $580,175 |
| 2008 | $195,820 | $375,341 | $0 | $571,161 | $571,161 |
| 2007 | $171,610 | $375,341 | $0 | $546,951 | $546,951 |
Deed and Sales History
| 1 | 12/03/2018 | WD | Warranty Deed | BELL, JANICE C | SMITH, PAUL JAMES | | | $669,500.00 | 36889 | 4456056 |
| 2 | 05/01/1997 | WD | Warranty Deed | ADAMS, MICHAEL D | BELL, JANICE C | | | $210,000.00 | 71674 | 97007691 |
| 3 | 07/01/1989 | OTHER | Other - Misc. Documents | ADAMS, MICHAEL D | ADAMS, MICHAEL D | | | $0.00 | 63217 | 89008575 |
| 4 | 05/01/1989 | WD | Warranty Deed | ADAMS, MICHAEL D | ADAMS, MICHAEL D | | | $11,200.00 | 91634 | 89005657 |
| 5 | 06/01/1987 | WD | Warranty Deed | ROMER, SHEILA & | ADAMS, MICHAEL D | | | $61,000.00 | 71887 | 87008734 |
| 6 | 01/01/1900 | OTHER | Other - Misc. Documents | Unknown | ROMER, SHEILA & | | | $0.00 | 0 | 0 |
Payout Agreement
| No payout information available.. |