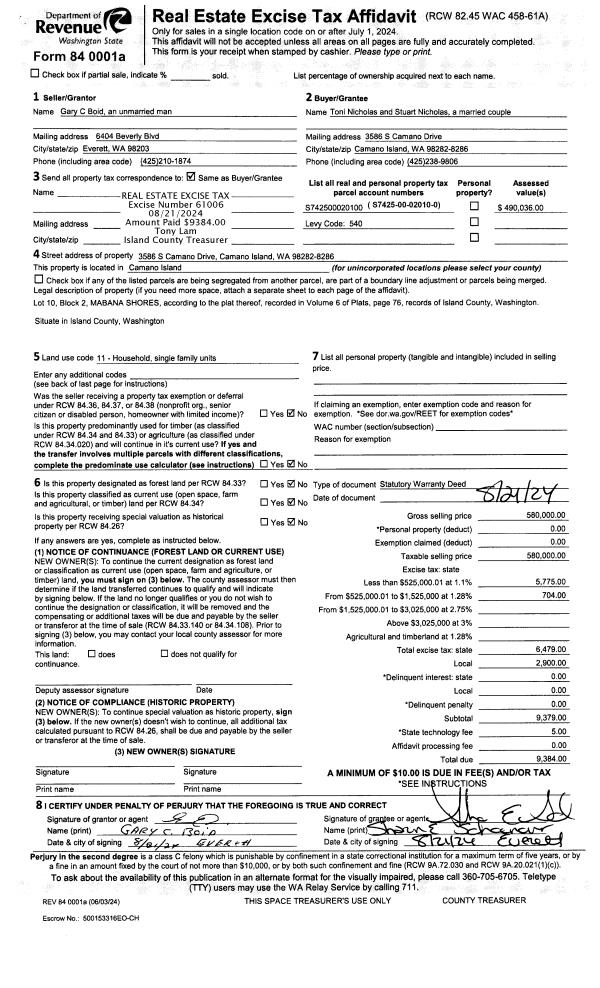
Property
Account |
| Property ID: | 18377 | Abbreviated Legal Description: | 61 - IN GL3 W150'OF FOLL:BG SW CR FREUND DLC E341.71' S8*W1055.49' S24*E133.05' N83*E25.2' TPB N83*E699.2' TO ML S6*E136.8' ALG ML W688.88' TO RD N ALG RD 57. 64' TPB |
| Geographic ID: | R13210-236-3800 | Agent Code: | |
| Type: | Real | | |
| Tax Area: | 100 - APPRAISER-OH Schl Dist, in OH | Land Use Code | 11 |
| Open Space: | N | DFL | N |
| Historic Property: | N | Remodel Property: | N |
| Multi-Family Redevelopment: | N | | |
| Township: | 32 | Section: | 10 |
| Range: | R1 |
Location |
| Address: | 1778 SCENIC HEIGHTS RD OAK HARBOR, WA 98277 | Mapsco: | |
| Neighborhood: | Cycle 1 | Map ID: | 117 |
| Neighborhood CD: | 1 |
Owner |
| Name: | SCENIC OAK LLC | Owner ID: | 316375 |
| Mailing Address: | 829 198TH PLACE SE SAMMAMISH, WA 98075 | % Ownership: | 100.0000000000% |
| | | Exemptions: | |
Taxes and Assessment Details
Values
| (+) Improvement Homesite Value: | + | $0 | |
| (+) Improvement Non-Homesite Value: | + | $5,000 | |
| (+) Land Homesite Value: | + | $0 | |
| (+) Land Non-Homesite Value: | + | $190,000 | |
| (+) Curr Use (HS): | + | $0 | $0 |
| (+) Curr Use (NHS): | + | $0 | $0 |
| | | -------------------------- | |
| (=) Market Value: | = | $195,000 | |
| (–) Productivity Loss: | – | $0 | |
| | | -------------------------- | |
| (=) Subtotal: | = | $195,000 | |
| (+) Senior Appraised Value: | + | $0 | |
| (+) Non-Senior Appraised Value: | + | $195,000 | |
| | | -------------------------- | |
| (=) Total Appraised Value: | = | $195,000 | |
| (–) Senior Exemption Loss: | – | $0 | |
| (–) Exemption Loss: | – | $0 | |
| | | -------------------------- | |
| (=) Taxable Value: | = | $195,000 | |
Taxing Jurisdiction
| Owner: | SCENIC OAK LLC | | |
| % Ownership: | 100.0000000000% | | |
| Total Value: | $195,000 | | |
| Tax Area: | 100 - APPRAISER-OH Schl Dist, in OH |
| CF | Conservation Futures | 0.0316035091 | $195,000 | $195,000 | $6.16 | | |
| CEM1 | Cemetery #1 | 0.0040320932 | $195,000 | $195,000 | $0.79 | | |
| COH | City of Oak Harbor | 2.3001546061 | $195,000 | $195,000 | $448.53 | | |
| OAKBOND | City of Oak Harbor BOND | 0.1926904192 | $195,000 | $195,000 | $37.57 | | |
| HOBOND | Hospital BOND | 0.1910887512 | $195,000 | $195,000 | $37.26 | | |
| HOGEN | Hospital GEN | 0.3902502903 | $195,000 | $195,000 | $76.10 | | |
| CE | County Current Expense | 0.3708482477 | $195,000 | $195,000 | $72.32 | | |
| ISLANDEMS | Hospital GEN (EMS) | 0.5000000000 | $195,000 | $195,000 | $97.50 | | |
| LIB | Library Sno-Isle GEN | 0.3153421757 | $195,000 | $195,000 | $61.49 | | |
| NWHIDPRMT | P & R N Whidbey GEN | 0.2004466701 | $195,000 | $195,000 | $39.09 | | |
| SCH201MO | School 201 Enrichment | 1.8559231640 | $195,000 | $195,000 | $361.91 | | |
| ST | State School | 1.3035497053 | $195,000 | $195,000 | $254.19 | | |
| ST2 | State School Part 2 | 0.8169543533 | $195,000 | $195,000 | $159.31 | | |
| | Total Tax Rate: | 8.4728839852 | | | | | |
| | | | | Taxes w/Current Exemptions: | $1,652.22 | | |
| | | | | Taxes w/o Exemptions: | $1,652.22 | | |
Improvement / Building
| Improvement #1: | RESIDENTIAL | State Code: | Y | 0.0 sqft | Value: | $5,000 |
Sketch
Property Image
Land
| 1 | 14 | SQ (08001-12000) | 0.2000 | 8712.00 | 0.00 | 0.00 | 1.00 | $190,000 | $0 |
Roll Value History
| 2026 | N/A | N/A | N/A | N/A | N/A |
| 2025 | $5,000 | $190,000 | $0 | $195,000 | $195,000 |
| 2024 | $5,000 | $180,000 | $0 | $185,000 | $185,000 |
| 2023 | $5,000 | $180,000 | $0 | $185,000 | $185,000 |
| 2022 | $5,000 | $180,000 | $0 | $185,000 | $185,000 |
| 2021 | $5,000 | $120,000 | $0 | $125,000 | $125,000 |
| 2020 | $5,000 | $100,000 | $0 | $105,000 | $105,000 |
| 2019 | $5,000 | $150,000 | $0 | $155,000 | $155,000 |
| 2018 | $5,000 | $130,000 | $0 | $135,000 | $135,000 |
| 2017 | $5,000 | $120,000 | $0 | $125,000 | $125,000 |
| 2016 | $5,000 | $120,000 | $0 | $125,000 | $125,000 |
| 2015 | $5,000 | $90,000 | $0 | $95,000 | $95,000 |
| 2014 | $5,000 | $90,000 | $0 | $95,000 | $95,000 |
| 2013 | $5,000 | $80,750 | $0 | $85,750 | $85,750 |
| 2012 | $5,000 | $80,750 | $0 | $85,750 | $85,750 |
| 2011 | $11,871 | $95,000 | $0 | $106,871 | $106,871 |
| 2010 | $11,871 | $95,000 | $0 | $106,871 | $106,871 |
| 2009 | $12,053 | $76,230 | $0 | $88,283 | $88,283 |
| 2008 | $12,235 | $76,230 | $0 | $88,465 | $88,465 |
| 2007 | $12,417 | $76,230 | $0 | $88,647 | $88,647 |
Deed and Sales History
| 1 | 04/29/2025 | WD | Warranty Deed | TESCH, ROGER E | SCENIC OAK LLC | | | $1,025,000.00 | 63374 | 4585368 |
|   | |
| 2 | 06/11/2019 | TOD | Transfer On Death Deed | TESCH, ERNIE G | TESCH, ROGER E | | | $0.00 | 63373 | 4465300 |
| 3 | 06/11/2019 | CCOMPROP | Create Community Property | TESCH, ERNIE G | TESCH, ERNIE G | | | $0.00 | 58993 | 4568113 |
Payout Agreement
| No payout information available.. |