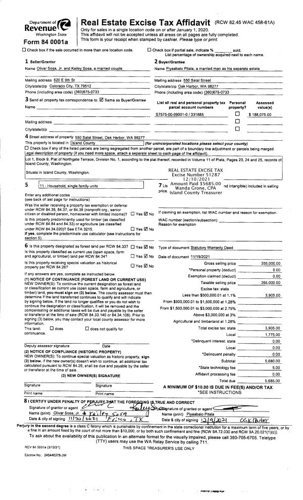
Property
Account |
| Property ID: | 183777 | Abbreviated Legal Description: | BABY IS HTS 1 LOT 52 & LOTS 1, 2 & 3 BABY IS HTS 2 |
| Geographic ID: | S6060-00-00052-0 | Agent Code: | |
| Type: | Real | | |
| Tax Area: | 710 - APPRAISER-S Whid Schl Dist, outside Langley, improved & 1 acre or less | Land Use Code | 11 |
| Open Space: | N | DFL | N |
| Historic Property: | N | Remodel Property: | N |
| Multi-Family Redevelopment: | N | | |
| Township: | | Section: | |
| Range: | |
Location |
| Address: | 3063 SARATOGA RD LANGLEY, WA 98260 | Mapsco: | |
| Neighborhood: | Cycle 3 | Map ID: | 369 |
| Neighborhood CD: | 3 |
Owner |
| Name: | NEROUTSOS, GEORGE H | Owner ID: | 95273 |
| Mailing Address: | 3063 SARATOGA RD LANGLEY, WA 98260-8017 | % Ownership: | 100.0000000000% |
| | | Exemptions: | |
Taxes and Assessment Details
Values
| (+) Improvement Homesite Value: | + | $0 | |
| (+) Improvement Non-Homesite Value: | + | $283,916 | |
| (+) Land Homesite Value: | + | $0 | |
| (+) Land Non-Homesite Value: | + | $750,000 | |
| (+) Curr Use (HS): | + | $0 | $0 |
| (+) Curr Use (NHS): | + | $0 | $0 |
| | | -------------------------- | |
| (=) Market Value: | = | $1,033,916 | |
| (–) Productivity Loss: | – | $0 | |
| | | -------------------------- | |
| (=) Subtotal: | = | $1,033,916 | |
| (+) Senior Appraised Value: | + | $0 | |
| (+) Non-Senior Appraised Value: | + | $1,033,916 | |
| | | -------------------------- | |
| (=) Total Appraised Value: | = | $1,033,916 | |
| (–) Senior Exemption Loss: | – | $0 | |
| (–) Exemption Loss: | – | $0 | |
| | | -------------------------- | |
| (=) Taxable Value: | = | $1,033,916 | |
Taxing Jurisdiction
| Owner: | NEROUTSOS, GEORGE H | | |
| % Ownership: | 100.0000000000% | | |
| Total Value: | $1,033,916 | | |
| Tax Area: | 710 - APPRAISER-S Whid Schl Dist, outside Langley, improved & 1 acre or less |
| CF | Conservation Futures | 0.0316035091 | $1,033,916 | $1,033,916 | $32.68 | | |
| FIRE3 | Fire & Rescue Dist #3 S Whidbey GEN | 1.2004855531 | $1,033,916 | $1,033,916 | $1,241.20 | | |
| HOBOND | Hospital BOND | 0.1910887512 | $1,033,916 | $1,033,916 | $197.57 | | |
| HOGEN | Hospital GEN | 0.3902502903 | $1,033,916 | $1,033,916 | $403.49 | | |
| CE | County Current Expense | 0.3708482477 | $1,033,916 | $1,033,916 | $383.43 | | |
| CR | County Roads | 0.4584763726 | $1,033,916 | $1,033,916 | $474.03 | | |
| ISLANDEMS | Hospital GEN (EMS) | 0.5000000000 | $1,033,916 | $1,033,916 | $516.96 | | |
| LIB | Library Sno-Isle GEN | 0.3153421757 | $1,033,916 | $1,033,916 | $326.04 | | |
| PORTWHID | Port of S Whidbey GEN | 0.1094540357 | $1,033,916 | $1,033,916 | $113.17 | | |
| SCH206BOND | School 206 BOND | 0.3161759235 | $1,033,916 | $1,033,916 | $326.90 | | |
| SCH206MO | School 206 Enrichment | 0.4547169547 | $1,033,916 | $1,033,916 | $470.14 | | |
| ST | State School | 1.3035497053 | $1,033,916 | $1,033,916 | $1,347.76 | | |
| ST2 | State School Part 2 | 0.8169543533 | $1,033,916 | $1,033,916 | $844.66 | | |
| SWHIDPRBD | P & R S Whidbey BOND | 0.0152817568 | $1,033,916 | $1,033,916 | $15.80 | | |
| SWHIDPRBD2 | P & R S Whidbey BOND2 | 0.0138911264 | $1,033,916 | $1,033,916 | $14.36 | | |
| SWHIDPRMT | P & R S Whidbey GEN | 0.2053334452 | $1,033,916 | $1,033,916 | $212.30 | | |
| | Total Tax Rate: | 6.6934522006 | | | | | |
| | | | | Taxes w/Current Exemptions: | $6,920.49 | | |
| | | | | Taxes w/o Exemptions: | $6,920.49 | | |
Improvement / Building
| Improvement #1: | RESIDENTIAL | State Code: | Y | 1960.2 sqft | Value: | $283,916 |
| Bathrooms: | 2 | Bedrooms: | 1 | | Ceiling: | DRYWALL PAINTED | Exterior Wall/Cover: | WOOD SIDING | | Floor Covering: | VINYL TILE/CARP 20-80 | Floor Structure: | WOOD W/SUBFLOOR | | Foundation: | CONCRETE | Heating: | FHA GAS | | Interior Finish: | DRYWALL PAINT | Plumbing Fixture Cnt: | 9 | | Roof Slope: | 3" IN 12" | Roof Structure/Cover: | CJ ALUMINIUM HEAVY |
|
| | Type | Description | Class CD | Sub Class CD | Year Built | Area |
| | BAS | BASE/MAIN FLOOR | 3 | 0 | 1989 | 1244.7 |
| | UPS | UPPER STORY | 3 | 0 | 1989 | 715.5 |
| | OWP | OPEN WOOD PORCH W/STEPS | 3 | 0 | 1989 | 60.0 |
| | OWP | OPEN WOOD PORCH W/STEPS | 3 | 0 | 1989 | 1271.1 |
| | OWC | OPEN WOOD PORCH W/STEPS/ROOF/C | 3 | 0 | 1989 | 50.0 |
| | UTY | STORAGE/UTILITY | 3 | 0 | 1989 | 140.0 |
Sketch
Property Image
Land
| 1 | HB | HIGH BLUFF | 0.0000 | 0.00 | 200.00 | 0.00 | 1.00 | $750,000 | $0 |
Roll Value History
| 2026 | N/A | N/A | N/A | N/A | N/A |
| 2025 | $283,916 | $750,000 | $0 | $1,033,916 | $1,033,916 |
| 2024 | $288,075 | $750,000 | $0 | $1,038,075 | $1,038,075 |
| 2023 | $292,236 | $750,000 | $0 | $1,042,236 | $1,042,236 |
| 2022 | $268,398 | $800,000 | $0 | $1,068,398 | $1,068,398 |
| 2021 | $236,657 | $375,000 | $0 | $611,657 | $611,657 |
| 2020 | $231,474 | $375,000 | $0 | $606,474 | $606,474 |
| 2019 | $177,786 | $300,000 | $0 | $477,786 | $477,786 |
| 2018 | $178,384 | $300,000 | $0 | $478,384 | $478,384 |
| 2017 | $179,086 | $400,000 | $0 | $579,086 | $579,086 |
| 2016 | $181,473 | $400,000 | $0 | $581,473 | $581,473 |
| 2015 | $183,861 | $400,000 | $0 | $583,861 | $583,861 |
| 2014 | $186,250 | $400,000 | $0 | $586,250 | $586,250 |
| 2013 | $194,642 | $426,550 | $0 | $621,192 | $621,192 |
| 2012 | $197,101 | $426,550 | $0 | $623,651 | $623,651 |
| 2011 | $199,561 | $426,550 | $0 | $626,111 | $626,111 |
| 2010 | $206,107 | $473,948 | $0 | $680,055 | $680,055 |
| 2009 | $214,928 | $659,118 | $0 | $874,046 | $874,046 |
| 2008 | $217,427 | $722,504 | $0 | $939,931 | $939,931 |
| 2007 | $212,165 | $722,504 | $0 | $934,669 | $934,669 |
Deed and Sales History
| 1 | 06/25/2021 | PRD | Personal Representatives Deed | NEROUTSOS, GEORGE H | NEROUTSOS, GEORGE H | | | $0.00 | 48952 | 4523209 |
| 2 | 09/01/1989 | OTHER | Other - Misc. Documents | NEROUTSOS, GEORGE H | NEROUTSOS, GEORGE H | | | $0.00 | 63290 | 89012096 |
| 3 | 09/01/1988 | WD | Warranty Deed | OSTERHOUT, ERNEST P | NEROUTSOS, GEORGE H | | | $110,000.00 | 83191 | 88011865 |
| 4 | 08/01/1982 | OTHER | Other - Misc. Documents | OSTERHOUT, ERNEST P | OSTERHOUT, ERNEST P | | | $0.00 | 59596 | 399080 |
| 5 | 01/01/1900 | OTHER | Other - Misc. Documents | Unknown | OSTERHOUT, ERNEST P | | | $0.00 | 0 | 0 |
Payout Agreement
| No payout information available.. |