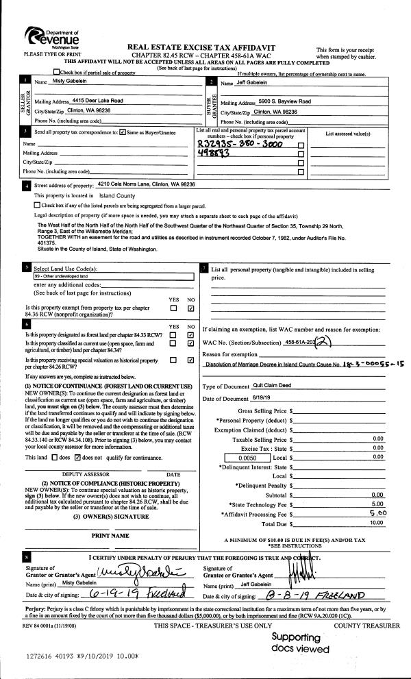
Property
Account |
| Property ID: | 1839 | Abbreviated Legal Description: | 13 JS SMITH DC - BG NWCR SD DC S1*W5115' S88*E1325.49' TPB S88*E577.50' S1*W377.15 N88*W577.50' N1*E377.15' TPB |
| Geographic ID: | R13101-341-2380 | Agent Code: | |
| Type: | Real | | |
| Tax Area: | 312 - APPRAISER-Cpvl Schl Dist, outside Cpvl, improved, greater than 1 acre | Land Use Code | 11 |
| Open Space: | N | DFL | N |
| Historic Property: | N | Remodel Property: | N |
| Multi-Family Redevelopment: | N | | |
| Township: | 31 | Section: | 01 |
| Range: | R1 |
Location |
| Address: | 213 W MORRIS RD COUPEVILLE, WA 98239 | Mapsco: | |
| Neighborhood: | Cycle 2 | Map ID: | 19 |
| Neighborhood CD: | 2 |
Owner |
| Name: | HARTZELL, LESLIE A | Owner ID: | 288280 |
| Mailing Address: | TED LEE HARTZELL 213 W MORRIS RD COUPEVILLE, WA 98239 | % Ownership: | 100.0000000000% |
| | | Exemptions: | |
Taxes and Assessment Details
Values
| (+) Improvement Homesite Value: | + | $0 | |
| (+) Improvement Non-Homesite Value: | + | $223,103 | |
| (+) Land Homesite Value: | + | $0 | |
| (+) Land Non-Homesite Value: | + | $340,000 | |
| (+) Curr Use (HS): | + | $0 | $0 |
| (+) Curr Use (NHS): | + | $0 | $0 |
| | | -------------------------- | |
| (=) Market Value: | = | $563,103 | |
| (–) Productivity Loss: | – | $0 | |
| | | -------------------------- | |
| (=) Subtotal: | = | $563,103 | |
| (+) Senior Appraised Value: | + | $0 | |
| (+) Non-Senior Appraised Value: | + | $563,103 | |
| | | -------------------------- | |
| (=) Total Appraised Value: | = | $563,103 | |
| (–) Senior Exemption Loss: | – | $0 | |
| (–) Exemption Loss: | – | $0 | |
| | | -------------------------- | |
| (=) Taxable Value: | = | $563,103 | |
Taxing Jurisdiction
| Owner: | HARTZELL, LESLIE A | | |
| % Ownership: | 100.0000000000% | | |
| Total Value: | $563,103 | | |
| Tax Area: | 312 - APPRAISER-Cpvl Schl Dist, outside Cpvl, improved, greater than 1 acre |
| CF | Conservation Futures | 0.0316035091 | $563,103 | $563,103 | $17.80 | | |
| CEM2 | Cemetery #2 | 0.0095056933 | $563,103 | $563,103 | $5.35 | | |
| FIRE5 | Fire & Rescue Dist #5 C Whidbey GEN | 1.2008080668 | $563,103 | $563,103 | $676.18 | | |
| FIRE5BOND | Fire & Rescue Dist #5 C Whidbey BOND | 0.1400090713 | $563,103 | $563,103 | $78.84 | | |
| HOBOND | Hospital BOND | 0.1910887512 | $563,103 | $563,103 | $107.60 | | |
| HOGEN | Hospital GEN | 0.3902502903 | $563,103 | $563,103 | $219.75 | | |
| CE | County Current Expense | 0.3708482477 | $563,103 | $563,103 | $208.83 | | |
| CR | County Roads | 0.4584763726 | $563,103 | $563,103 | $258.17 | | |
| ISLANDEMS | Hospital GEN (EMS) | 0.5000000000 | $563,103 | $563,103 | $281.55 | | |
| LIB | Library Sno-Isle GEN | 0.3153421757 | $563,103 | $563,103 | $177.57 | | |
| LIBCAP | Library Sno-Isle BOND (Cap Fac Imp Area) | 0.0543427938 | $563,103 | $563,103 | $30.60 | | |
| POCOUP | Port of Coupeville GEN | 0.1093371703 | $563,103 | $563,103 | $61.57 | | |
| POCOUPIDD | Port of Coupeville IDD | 0.3409740022 | $563,103 | $563,103 | $192.00 | | |
| COUPSDTECH | School 204 CP (TECH) | 0.7545480007 | $563,103 | $563,103 | $424.89 | | |
| SCH204MO | School 204 Enrichment | 0.6716186034 | $563,103 | $563,103 | $378.19 | | |
| ST | State School | 1.3035497053 | $563,103 | $563,103 | $734.03 | | |
| ST2 | State School Part 2 | 0.8169543533 | $563,103 | $563,103 | $460.03 | | |
| | Total Tax Rate: | 7.6592568070 | | | | | |
| | | | | Taxes w/Current Exemptions: | $4,312.95 | | |
| | | | | Taxes w/o Exemptions: | $4,312.95 | | |
Improvement / Building
| Improvement #1: | MANUFACTURED HOME | State Code: | Y | 2100.0 sqft | Value: | $223,103 |
| Bathrooms: | 1 | Bedrooms: | 2 | | Ceiling: | PLASTER PAINTED | Cooling: | EVAP NO DUCT | | Exterior Wall/Cover: | VINYL | Floor Covering: | CARPET 100% | | Floor Structure: | SLAB ON GRADE | Foundation: | SLAB | | Heating: | FHA ELECTRIC | Interior Finish: | PLASTER | | Plumbing Fixture Cnt: | 1 | Roof Slope: | FLAT | | Roof Structure/Cover: | CJ ALUMINIUM HEAVY |   |   |
|
| | Type | Description | Class CD | Sub Class CD | Year Built | Area |
| | BAS | BASE/MAIN FLOOR | 4 | 0 | 2022 | 2100.0 |
| | OWP | OPEN WOOD PORCH W/STEPS | 4 | 0 | 2022 | 291.7 |
| | OP2 | OPEN PORCH W/STEPS | 4 | 0 | 2022 | 448.0 |
Sketch
| No sketches available for this property. |
Property Image
Land
| 1 | HS | HOMESITE | 1.0000 | 43560.00 | 0.00 | 0.00 | 1.00 | $220,000 | $0 |
| 2 | 91 | UNDEVELOPED LAND-METES AND BOUNDS | 4.0000 | 174240.00 | 0.00 | 0.00 | 1.00 | $120,000 | $0 |
Roll Value History
| 2026 | N/A | N/A | N/A | N/A | N/A |
| 2025 | $223,103 | $340,000 | $0 | $563,103 | $563,103 |
| 2024 | $221,988 | $290,000 | $0 | $511,988 | $511,988 |
| 2023 | $195,000 | $280,000 | $0 | $475,000 | $475,000 |
| 2022 | $0 | $130,000 | $0 | $130,000 | $130,000 |
| 2021 | $0 | $130,000 | $0 | $130,000 | $130,000 |
| 2020 | $0 | $120,000 | $0 | $120,000 | $120,000 |
| 2019 | $0 | $135,000 | $0 | $135,000 | $135,000 |
| 2018 | $0 | $100,000 | $0 | $100,000 | $100,000 |
| 2017 | $0 | $100,000 | $0 | $100,000 | $100,000 |
| 2016 | $0 | $75,000 | $0 | $75,000 | $75,000 |
| 2015 | $0 | $100,000 | $0 | $100,000 | $100,000 |
| 2014 | $0 | $100,000 | $0 | $100,000 | $100,000 |
| 2013 | $0 | $100,000 | $0 | $100,000 | $100,000 |
| 2012 | $0 | $100,000 | $0 | $100,000 | $100,000 |
| 2011 | $0 | $100,000 | $0 | $100,000 | $100,000 |
| 2010 | $0 | $100,000 | $0 | $100,000 | $100,000 |
| 2009 | $0 | $122,500 | $0 | $122,500 | $122,500 |
| 2008 | $0 | $130,000 | $0 | $130,000 | $130,000 |
| 2007 | $0 | $85,000 | $0 | $85,000 | $85,000 |
Deed and Sales History
| 1 | 12/21/2018 | WD | Warranty Deed | PARKER, GARY E | HARTZELL, LESLIE A | | | $130,000.00 | 37038 | 4456846 |
| 2 | 03/07/2014 | 5 | DNU - Marriage License/Name Change | PARKER, GARY | PARKER, GARY E | | | | 83877 | |
| 3 | 05/01/1990 | WD | Warranty Deed | KRASIK, MICHAEL & | PARKER, GARY & | | | $23,250.00 | 2734 | 90008972 |
| 4 | 01/01/1982 | QCD | Quit Claim Deed | KRASIK, MICHAEL & | KRASIK, MICHAEL & | | | $0.00 | 30623 | 407000 |
| 5 | 03/01/1979 | TRUSTEED | Trustee's Deed | WALDEN, STEPHEN M | KRASIK, MICHAEL & | | | $17,000.00 | 91305 | 349588 |
| 6 | 01/01/1900 | OTHER | Other - Misc. Documents | Unknown | WALDEN, STEPHEN M | | | $0.00 | 0 | 0 |
Payout Agreement
| No payout information available.. |