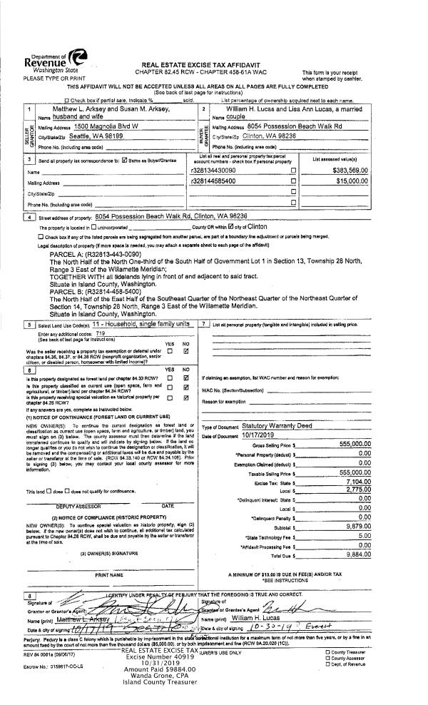
Property
Account |
| Property ID: | 184035 | Abbreviated Legal Description: | BABY IS HTS 2 LOTS 39 & 40 EX NLY 10.03' FOR RD |
| Geographic ID: | S6060-02-00039-0 | Agent Code: | |
| Type: | Real | | |
| Tax Area: | 719 - APPRAISER-S Whid Schl Dist, outside Langley, vacant & 50 acres or less | Land Use Code | 99 |
| Open Space: | N | DFL | N |
| Historic Property: | N | Remodel Property: | N |
| Multi-Family Redevelopment: | N | | |
| Township: | | Section: | |
| Range: | |
Location |
| Address: | | Mapsco: | |
| Neighborhood: | Cycle 3 | Map ID: | 370 |
| Neighborhood CD: | 3 |
Owner |
| Name: | ROSENBERGER, WILLIAM | Owner ID: | 191682 |
| Mailing Address: | LORENA ROSENBERGER 1832 N 199TH ST SHORELINE, WA 98133-3717 | % Ownership: | 100.0000000000% |
| | | Exemptions: | |
Taxes and Assessment Details
Values
| (+) Improvement Homesite Value: | + | $0 | |
| (+) Improvement Non-Homesite Value: | + | $0 | |
| (+) Land Homesite Value: | + | $0 | |
| (+) Land Non-Homesite Value: | + | $160,000 | |
| (+) Curr Use (HS): | + | $0 | $0 |
| (+) Curr Use (NHS): | + | $0 | $0 |
| | | -------------------------- | |
| (=) Market Value: | = | $160,000 | |
| (–) Productivity Loss: | – | $0 | |
| | | -------------------------- | |
| (=) Subtotal: | = | $160,000 | |
| (+) Senior Appraised Value: | + | $0 | |
| (+) Non-Senior Appraised Value: | + | $160,000 | |
| | | -------------------------- | |
| (=) Total Appraised Value: | = | $160,000 | |
| (–) Senior Exemption Loss: | – | $0 | |
| (–) Exemption Loss: | – | $0 | |
| | | -------------------------- | |
| (=) Taxable Value: | = | $160,000 | |
Taxing Jurisdiction
| Owner: | ROSENBERGER, WILLIAM | | |
| % Ownership: | 100.0000000000% | | |
| Total Value: | $160,000 | | |
| Tax Area: | 719 - APPRAISER-S Whid Schl Dist, outside Langley, vacant & 50 acres or less |
| CF | Conservation Futures | 0.0316035091 | $160,000 | $160,000 | $5.06 | | |
| HOBOND | Hospital BOND | 0.1910887512 | $160,000 | $160,000 | $30.57 | | |
| HOGEN | Hospital GEN | 0.3902502903 | $160,000 | $160,000 | $62.44 | | |
| CE | County Current Expense | 0.3708482477 | $160,000 | $160,000 | $59.34 | | |
| CR | County Roads | 0.4584763726 | $160,000 | $160,000 | $73.36 | | |
| ISLANDEMS | Hospital GEN (EMS) | 0.5000000000 | $160,000 | $160,000 | $80.00 | | |
| LIB | Library Sno-Isle GEN | 0.3153421757 | $160,000 | $160,000 | $50.45 | | |
| PORTWHID | Port of S Whidbey GEN | 0.1094540357 | $160,000 | $160,000 | $17.51 | | |
| SCH206BOND | School 206 BOND | 0.3161759235 | $160,000 | $160,000 | $50.59 | | |
| SCH206MO | School 206 Enrichment | 0.4547169547 | $160,000 | $160,000 | $72.75 | | |
| ST | State School | 1.3035497053 | $160,000 | $160,000 | $208.57 | | |
| ST2 | State School Part 2 | 0.8169543533 | $160,000 | $160,000 | $130.71 | | |
| SWHIDPRBD | P & R S Whidbey BOND | 0.0152817568 | $160,000 | $160,000 | $2.45 | | |
| SWHIDPRBD2 | P & R S Whidbey BOND2 | 0.0138911264 | $160,000 | $160,000 | $2.22 | | |
| SWHIDPRMT | P & R S Whidbey GEN | 0.2053334452 | $160,000 | $160,000 | $32.85 | | |
| | Total Tax Rate: | 5.4929666475 | | | | | |
| | | | | Taxes w/Current Exemptions: | $878.87 | | |
| | | | | Taxes w/o Exemptions: | $878.87 | | |
Improvement / Building
Sketch
| No sketches available for this property. |
Property Image
Land
| 1 | 16 | AC (00.51-01.00) | 0.0000 | 0.00 | 0.00 | 0.00 | 1.00 | $160,000 | $0 |
Roll Value History
| 2026 | N/A | N/A | N/A | N/A | N/A |
| 2025 | $0 | $160,000 | $0 | $160,000 | $160,000 |
| 2024 | $0 | $160,000 | $0 | $160,000 | $160,000 |
| 2023 | $0 | $160,000 | $0 | $160,000 | $160,000 |
| 2022 | $0 | $150,000 | $0 | $150,000 | $150,000 |
| 2021 | $0 | $100,000 | $0 | $100,000 | $100,000 |
| 2020 | $0 | $100,000 | $0 | $100,000 | $100,000 |
| 2019 | $0 | $100,000 | $0 | $100,000 | $100,000 |
| 2018 | $0 | $60,000 | $0 | $60,000 | $60,000 |
| 2017 | $0 | $60,000 | $0 | $60,000 | $60,000 |
| 2016 | $0 | $35,000 | $0 | $35,000 | $35,000 |
| 2015 | $0 | $45,000 | $0 | $45,000 | $45,000 |
| 2014 | $0 | $45,000 | $0 | $45,000 | $45,000 |
| 2013 | $0 | $45,000 | $0 | $45,000 | $45,000 |
| 2012 | $0 | $51,300 | $0 | $51,300 | $51,300 |
| 2011 | $0 | $51,300 | $0 | $51,300 | $51,300 |
| 2010 | $0 | $57,000 | $0 | $57,000 | $57,000 |
| 2009 | $0 | $56,000 | $0 | $56,000 | $56,000 |
| 2008 | $0 | $61,000 | $0 | $61,000 | $61,000 |
| 2007 | $0 | $54,500 | $0 | $54,500 | $54,500 |
Deed and Sales History
| 1 | 12/10/2003 | WD | Warranty Deed | STEWART, DOUGLAS O | ROSENBERGER, WILLIAM | | | $60,000.00 | 35559 | 4085737 |
| 2 | 01/01/1994 | QCD | Quit Claim Deed | STEWART, DOUGLAS O | STEWART, DOUGLAS O | | | $0.00 | 40631 | 94004052 |
| 3 | 09/01/1992 | WD | Warranty Deed | STRAWN, DONALD R | STEWART, DOUGLAS O | | | $40,000.00 | 23677 | 92017734 |
| 4 | 03/01/1991 | OTHER | Other - Misc. Documents | STRAWN, DONALD R | STRAWN, DONALD R | | | $0.00 | 64117 | 91003700 |
| 5 | 07/01/1988 | WD | Warranty Deed | WILLISTON, FRANK G | STRAWN, DONALD R | | | $10,250.00 | 82586 | 88009740 |
| 6 | 01/01/1900 | OTHER | Other - Misc. Documents | Unknown | WILLISTON, FRANK G | | | $0.00 | 0 | 0 |
Payout Agreement
| No payout information available.. |