Property
Account |
| Property ID: | 184044 | Abbreviated Legal Description: | BABY IS HTS 2 LOTS 41 & 42 |
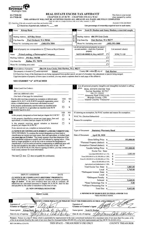
| Geographic ID: | S6060-02-00041-0 | Agent Code: | |
| Type: | Real | | |
| Tax Area: | 712 - APPRAISER-S Whid Schl Dist, outside Langley, improved, greater than 1 acre | Land Use Code | 11 |
| Open Space: | N | DFL | N |
| Historic Property: | N | Remodel Property: | N |
| Multi-Family Redevelopment: | N | | |
| Township: | | Section: | |
| Range: | |
Location |
| Address: | 3088 SARATOGA RD LANGLEY, WA 98260 | Mapsco: | |
| Neighborhood: | Cycle 3 | Map ID: | 370 |
| Neighborhood CD: | 3 |
Owner |
| Name: | FAUTH, LINDA | Owner ID: | 267668 |
| Mailing Address: | 3075 SARATOGA RD LANGLEY, WA 98260 | % Ownership: | 100.0000000000% |
| | | Exemptions: | |
Taxes and Assessment Details
Values
| (+) Improvement Homesite Value: | + | $0 | |
| (+) Improvement Non-Homesite Value: | + | $16,000 | |
| (+) Land Homesite Value: | + | $0 | |
| (+) Land Non-Homesite Value: | + | $160,000 | |
| (+) Curr Use (HS): | + | $0 | $0 |
| (+) Curr Use (NHS): | + | $0 | $0 |
| | | -------------------------- | |
| (=) Market Value: | = | $176,000 | |
| (–) Productivity Loss: | – | $0 | |
| | | -------------------------- | |
| (=) Subtotal: | = | $176,000 | |
| (+) Senior Appraised Value: | + | $0 | |
| (+) Non-Senior Appraised Value: | + | $176,000 | |
| | | -------------------------- | |
| (=) Total Appraised Value: | = | $176,000 | |
| (–) Senior Exemption Loss: | – | $0 | |
| (–) Exemption Loss: | – | $0 | |
| | | -------------------------- | |
| (=) Taxable Value: | = | $176,000 | |
Taxing Jurisdiction
| Owner: | FAUTH, LINDA | | |
| % Ownership: | 100.0000000000% | | |
| Total Value: | $176,000 | | |
| Tax Area: | 712 - APPRAISER-S Whid Schl Dist, outside Langley, improved, greater than 1 acre |
| CF | Conservation Futures | 0.0316035091 | $176,000 | $176,000 | $5.56 | | |
| FIRE3 | Fire & Rescue Dist #3 S Whidbey GEN | 1.2004855531 | $176,000 | $176,000 | $211.29 | | |
| HOBOND | Hospital BOND | 0.1910887512 | $176,000 | $176,000 | $33.63 | | |
| HOGEN | Hospital GEN | 0.3902502903 | $176,000 | $176,000 | $68.68 | | |
| CE | County Current Expense | 0.3708482477 | $176,000 | $176,000 | $65.27 | | |
| CR | County Roads | 0.4584763726 | $176,000 | $176,000 | $80.69 | | |
| ISLANDEMS | Hospital GEN (EMS) | 0.5000000000 | $176,000 | $176,000 | $88.00 | | |
| LIB | Library Sno-Isle GEN | 0.3153421757 | $176,000 | $176,000 | $55.50 | | |
| PORTWHID | Port of S Whidbey GEN | 0.1094540357 | $176,000 | $176,000 | $19.26 | | |
| SCH206BOND | School 206 BOND | 0.3161759235 | $176,000 | $176,000 | $55.65 | | |
| SCH206MO | School 206 Enrichment | 0.4547169547 | $176,000 | $176,000 | $80.03 | | |
| ST | State School | 1.3035497053 | $176,000 | $176,000 | $229.42 | | |
| ST2 | State School Part 2 | 0.8169543533 | $176,000 | $176,000 | $143.78 | | |
| SWHIDPRBD | P & R S Whidbey BOND | 0.0152817568 | $176,000 | $176,000 | $2.69 | | |
| SWHIDPRBD2 | P & R S Whidbey BOND2 | 0.0138911264 | $176,000 | $176,000 | $2.44 | | |
| SWHIDPRMT | P & R S Whidbey GEN | 0.2053334452 | $176,000 | $176,000 | $36.14 | | |
| | Total Tax Rate: | 6.6934522006 | | | | | |
| | | | | Taxes w/Current Exemptions: | $1,178.03 | | |
| | | | | Taxes w/o Exemptions: | $1,178.03 | | |
Improvement / Building
| Improvement #1: | RESIDENTIAL | State Code: | Y | 0.0 sqft | Value: | $16,000 |
Sketch
Property Image
Land
| 1 | 17 | AC (01.01-02.00) | 0.0000 | 0.00 | 0.00 | 0.00 | 1.00 | $160,000 | $0 |
Roll Value History
| 2026 | N/A | N/A | N/A | N/A | N/A |
| 2025 | $16,000 | $160,000 | $0 | $176,000 | $176,000 |
| 2024 | $16,000 | $160,000 | $0 | $176,000 | $176,000 |
| 2023 | $16,000 | $160,000 | $0 | $176,000 | $176,000 |
| 2022 | $16,000 | $150,000 | $0 | $166,000 | $166,000 |
| 2021 | $16,000 | $100,000 | $0 | $116,000 | $116,000 |
| 2020 | $16,000 | $100,000 | $0 | $116,000 | $116,000 |
| 2019 | $16,000 | $100,000 | $0 | $116,000 | $116,000 |
| 2018 | $16,000 | $100,000 | $0 | $116,000 | $116,000 |
| 2017 | $16,000 | $60,000 | $0 | $76,000 | $76,000 |
| 2016 | $16,000 | $35,000 | $0 | $51,000 | $51,000 |
| 2015 | $17,500 | $75,000 | $0 | $92,500 | $92,500 |
| 2014 | $37,214 | $91,800 | $0 | $129,014 | $129,014 |
| 2013 | $43,344 | $91,800 | $0 | $135,144 | $135,144 |
| 2012 | $44,770 | $91,800 | $0 | $136,570 | $136,570 |
| 2011 | $45,483 | $108,000 | $0 | $153,483 | $153,483 |
| 2010 | $55,408 | $120,000 | $0 | $175,408 | $175,408 |
| 2009 | $58,248 | $135,000 | $0 | $193,248 | $193,248 |
| 2008 | $59,448 | $135,000 | $0 | $194,448 | $194,448 |
| 2007 | $67,812 | $135,000 | $0 | $202,812 | $202,812 |
Deed and Sales History
| 1 | 11/30/2006 | QCD | Quit Claim Deed | BRIGGS, DAVID M | FAUTH, LINDA | | | $0.00 | 16711 | 4365149 |
| 2 | 12/08/2005 | WD | Warranty Deed | SMITH, SCOTT MCBRIDE | BRIGGS, DAVID M | | | $160,000.00 | 56266 | 4157457 |
| 3 | 08/08/2001 | QCD | Quit Claim Deed | SMITH, SCOTT M | SMITH, SCOTT MCBRIDE | | | $0.00 | 13616 | 20043178 |
| 4 | 07/01/1991 | OTHER | Other - Misc. Documents | SMITH, SCOTT M | SMITH, SCOTT M | | | $31,350.00 | 12468 | 394613 |
| 5 | 07/01/1991 | WD | Warranty Deed | STEVENS, ROBERT | SMITH, SCOTT M | | | $63,650.00 | 12438 | 91010413 |
| 6 | 10/01/1990 | OTHER | Other - Misc. Documents | STEVENS, ROBERT / | STEVENS, ROBERT | | | $0.00 | 63911 | 90019443 |
| 7 | 07/01/1987 | OTHER | Other - Misc. Documents | STEVENS, ROBERT | STEVENS, ROBERT / | | | $24,500.00 | 72316 | 394613 |
| 8 | 07/01/1987 | WD | Warranty Deed | LINVOG, EMILIA A | STEVENS, ROBERT | | | $28,000.00 | 72317 | 87010465 |
| 9 | 07/01/1986 | OTHER | Other - Misc. Documents | PAGE, EMILIA A | LINVOG, EMILIA A | | | $0.00 | 61712 | 0 |
| 10 | 03/01/1982 | REC | Real Estate Contract | PAGE, MILFORD M | PAGE, EMILIA A | | | $1.00 | 20717 | 394613 |
| 11 | 01/01/1900 | OTHER | Other - Misc. Documents | Unknown | PAGE, MILFORD M | | | $0.00 | 0 | 0 |
Payout Agreement
| No payout information available.. |