Property
Account |
| Property ID: | 18411 | Abbreviated Legal Description: | 126 - N 5AC OF FOLL:NE SW LY W OF HWY 1-D EX BG INTER WLN HWY 1-D & SLN NE SW N ALG WLN 600' TPB N ALG SD WLN 600' W363' S TP W OF TPB E TPB EX W490' EX RD |
| Geographic ID: | R13210-248-2000 | Agent Code: | |
| Type: | Real | | |
| Tax Area: | 112 - APPRAISER-OH Schl Dist, outside OH, improved, greater than 1 acre | Land Use Code | 11 |
| Open Space: | N | DFL | N |
| Historic Property: | N | Remodel Property: | N |
| Multi-Family Redevelopment: | N | | |
| Township: | 32 | Section: | 10 |
| Range: | R1 |
Location |
| Address: | 30259 SR20 OAK HARBOR, WA 98277 | Mapsco: | |
| Neighborhood: | Cycle 1 | Map ID: | 116 |
| Neighborhood CD: | 1 |
Owner |
| Name: | NORTHWEST MANAGEMENT WA, LLC | Owner ID: | 280489 |
| Mailing Address: | PO BOX 8377 SPOKANE, WA 99203 | % Ownership: | 100.0000000000% |
| | | Exemptions: | |
Taxes and Assessment Details
Values
| (+) Improvement Homesite Value: | + | $0 | |
| (+) Improvement Non-Homesite Value: | + | $101,634 | |
| (+) Land Homesite Value: | + | $0 | |
| (+) Land Non-Homesite Value: | + | $200,000 | |
| (+) Curr Use (HS): | + | $0 | $0 |
| (+) Curr Use (NHS): | + | $0 | $0 |
| | | -------------------------- | |
| (=) Market Value: | = | $301,634 | |
| (–) Productivity Loss: | – | $0 | |
| | | -------------------------- | |
| (=) Subtotal: | = | $301,634 | |
| (+) Senior Appraised Value: | + | $0 | |
| (+) Non-Senior Appraised Value: | + | $301,634 | |
| | | -------------------------- | |
| (=) Total Appraised Value: | = | $301,634 | |
| (–) Senior Exemption Loss: | – | $0 | |
| (–) Exemption Loss: | – | $0 | |
| | | -------------------------- | |
| (=) Taxable Value: | = | $301,634 | |
Taxing Jurisdiction
| Owner: | NORTHWEST MANAGEMENT WA, LLC | | |
| % Ownership: | 100.0000000000% | | |
| Total Value: | $301,634 | | |
| Tax Area: | 112 - APPRAISER-OH Schl Dist, outside OH, improved, greater than 1 acre |
| CF | Conservation Futures | 0.0316035091 | $301,634 | $301,634 | $9.53 | | |
| CEM1 | Cemetery #1 | 0.0040320932 | $301,634 | $301,634 | $1.22 | | |
| FIRE2 | Fire & Rescue Dist #2 N Whidbey GEN | 0.5475949600 | $301,634 | $301,634 | $165.17 | | |
| HOBOND | Hospital BOND | 0.1910887512 | $301,634 | $301,634 | $57.64 | | |
| HOGEN | Hospital GEN | 0.3902502903 | $301,634 | $301,634 | $117.71 | | |
| CE | County Current Expense | 0.3708482477 | $301,634 | $301,634 | $111.86 | | |
| CR | County Roads | 0.4584763726 | $301,634 | $301,634 | $138.29 | | |
| ISLANDEMS | Hospital GEN (EMS) | 0.5000000000 | $301,634 | $301,634 | $150.82 | | |
| LIB | Library Sno-Isle GEN | 0.3153421757 | $301,634 | $301,634 | $95.12 | | |
| NWHIDPRMT | P & R N Whidbey GEN | 0.2004466701 | $301,634 | $301,634 | $60.46 | | |
| SCH201MO | School 201 Enrichment | 1.8559231640 | $301,634 | $301,634 | $559.81 | | |
| ST | State School | 1.3035497053 | $301,634 | $301,634 | $393.19 | | |
| ST2 | State School Part 2 | 0.8169543533 | $301,634 | $301,634 | $246.42 | | |
| | Total Tax Rate: | 6.9861102925 | | | | | |
| | | | | Taxes w/Current Exemptions: | $2,107.24 | | |
| | | | | Taxes w/o Exemptions: | $2,107.24 | | |
Improvement / Building
| Improvement #1: | RESIDENTIAL | State Code: | Y | 588.0 sqft | Value: | $101,634 |
| Bathrooms: | 1 | Bedrooms: | 1 | | Ceiling: | DRYWALL PAINTED | Exterior Wall/Cover: | WOOD SIDING | | Floor Covering: | HARDWOOD 100% | Floor Structure: | WOOD W/SUBFLOOR | | Foundation: | PIERS/CONCRETE | Heating: | WALL HEAT ELECTRIC | | Interior Finish: | DRYWALL PAINT | Plumbing Fixture Cnt: | 5 | | Roof Slope: | 4" IN 12" | Roof Structure/Cover: | CJ ASPHALT |
|
| | Type | Description | Class CD | Sub Class CD | Year Built | Area |
| | BAS | BASE/MAIN FLOOR | 3 | 0 | 1948 | 588.0 |
| | OWP | OPEN WOOD PORCH W/STEPS | 3 | 0 | 1948 | 168.0 |
| | UTY | STORAGE/UTILITY | 3 | 0 | 1948 | 1200.0 |
Sketch
Property Image
Land
| 1 | 32 | AC (03.01-09.99) | 5.2600 | 0.00 | 0.00 | 0.00 | 1.00 | $200,000 | $0 |
Roll Value History
| 2026 | N/A | N/A | N/A | N/A | N/A |
| 2025 | $101,634 | $200,000 | $0 | $301,634 | $301,634 |
| 2024 | $103,192 | $190,000 | $0 | $293,192 | $293,192 |
| 2023 | $66,981 | $180,000 | $0 | $246,981 | $246,981 |
| 2022 | $61,555 | $180,000 | $0 | $241,555 | $241,555 |
| 2021 | $54,309 | $135,000 | $0 | $189,309 | $189,309 |
| 2020 | $52,874 | $150,000 | $0 | $202,874 | $202,874 |
| 2019 | $37,090 | $150,000 | $0 | $187,090 | $187,090 |
| 2018 | $37,220 | $130,000 | $0 | $167,220 | $167,220 |
| 2017 | $39,791 | $160,000 | $0 | $199,791 | $199,791 |
| 2016 | $50,200 | $160,000 | $0 | $210,200 | $210,200 |
| 2015 | $1,081 | $135,000 | $0 | $136,081 | $136,081 |
| 2014 | $1,106 | $135,000 | $0 | $136,106 | $136,106 |
| 2013 | $1,132 | $83,880 | $0 | $85,012 | $85,012 |
| 2012 | $1,157 | $83,880 | $0 | $85,037 | $85,037 |
| 2011 | $15,502 | $93,200 | $0 | $108,702 | $108,702 |
| 2010 | $15,981 | $93,200 | $0 | $109,181 | $109,181 |
| 2009 | $16,474 | $103,624 | $0 | $120,098 | $120,098 |
| 2008 | $19,220 | $93,946 | $0 | $113,166 | $113,166 |
| 2007 | $19,769 | $93,946 | $0 | $113,715 | $113,715 |
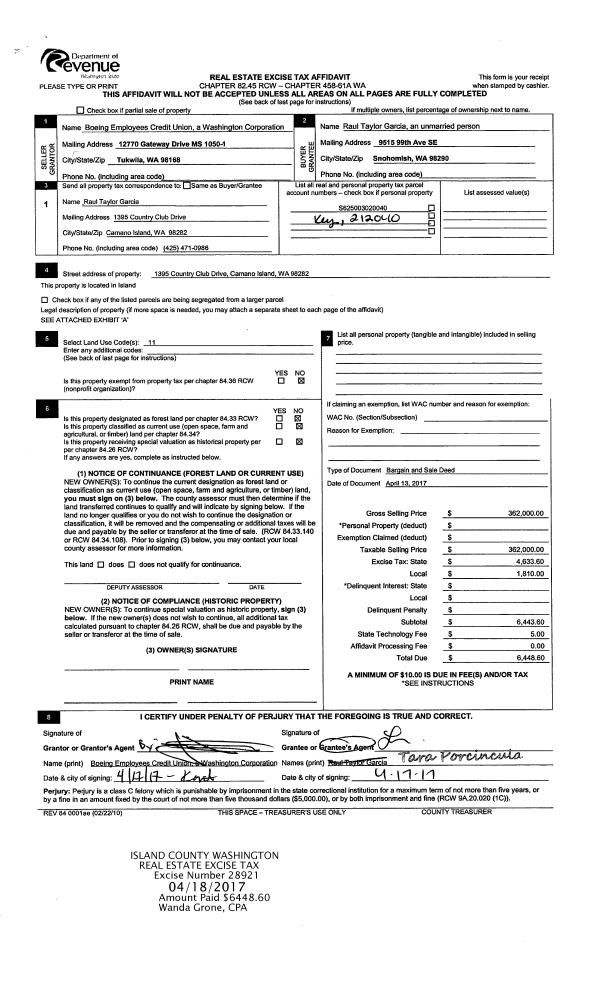
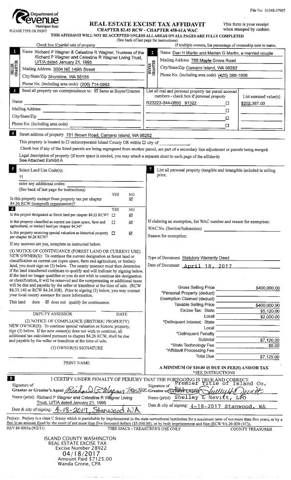
Deed and Sales History
| 1 | 06/14/2017 | QCD | Quit Claim Deed | TILSON, WAYNE | NORTHWEST MANAGEMENT WA, LLC | | | $0.00 | 29835 | 4424636 |
| 2 | 05/23/2017 | QCD | Quit Claim Deed | TILSON, WAYNE | TILSON, WAYNE | | | $0.00 | 29403 | 4423016 |
| 3 | 05/02/2017 | WD | Warranty Deed | SIGNATURE ASSET MANAGEMENT LLC | TILSON, WAYNE | | | $170,000.00 | 29402 | 4423015 |
| 4 | 08/27/2014 | QCD | Quit Claim Deed | WEBB, VIOLA C | SIGNATURE ASSET MANAGEMENT LLC | | | $0.00 | 16659 | 4364947 |
| 5 | 10/26/2010 | EZ | Easement | WEBB, VIOLA C | WEBB, VIOLA C | | | $506.00 | 2786 | 4284276 |
| 6 | 04/02/2007 | EZ | Easement | WEBB, VIOLA C | WEBB, VIOLA C | | | $300.00 | 71110 | 4198370 |
| 7 | 02/10/2004 | PRD | Personal Representatives Deed | WEBB, VIOLA C | WEBB, VIOLA C | | | $0.00 | 40513 | 4090965 |
| 8 | 09/23/1999 | OTHER | Other - Misc. Documents | WEBB, WALLACE P | WEBB, VIOLA C | | | $0.00 | 68446 | 99021569 |
| 9 | 12/01/1986 | REC | Real Estate Contract | HASFJORD, ETHEL M | WEBB, WALLACE P | | | $40,000.00 | 63800 | 86016801 |
| 10 | 05/01/1985 | REC | Real Estate Contract | WATKINSON, ARLEEN | HASFJORD, ETHEL M | | | $35,000.00 | 51151 | 85004659 |
| 11 | 08/01/1984 | WD | Warranty Deed | WATKINSON, ARLEEN | WATKINSON, ARLEEN | | | $0.00 | 42832 | 84003739 |
| 12 | 08/01/1981 | CD | DNU - Correction Deed | OVINGTON, RICHARD M | WATKINSON, ARLEEN | | | $1.00 | 12500 | 0 |
| 13 | 11/01/1980 | CD | DNU - Correction Deed | WATKINSON, HARRY W | OVINGTON, RICHARD M | | | $0.00 | 10003 | 377855 |
| 14 | 01/01/1900 | OTHER | Other - Misc. Documents | Unknown | WATKINSON, HARRY W | | | $0.00 | 0 | 0 |
Payout Agreement
| No payout information available.. |