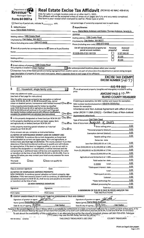
Property
Account |
| Property ID: | 184678 | Abbreviated Legal Description: | BAR HARBOR LOT 5 |
| Geographic ID: | S6070-00-00005-0 | Agent Code: | |
| Type: | Real | | |
| Tax Area: | 770 - APPRAISER-S Whid Schl Dist, Special District, improved & less than 1 acre | Land Use Code | 11 |
| Open Space: | N | DFL | N |
| Historic Property: | N | Remodel Property: | N |
| Multi-Family Redevelopment: | N | | |
| Township: | | Section: | |
| Range: | |
Location |
| Address: | 1323 SEALAWN BLVD FREELAND, WA 98249 | Mapsco: | |
| Neighborhood: | Cycle 3 | Map ID: | 290 |
| Neighborhood CD: | 3 |
Owner |
| Name: | SCHERMERHORN, ZACHARY | Owner ID: | 314002 |
| Mailing Address: | 1323 SEALAWN BLVD FREELAND, WA 98249 | % Ownership: | 100.0000000000% |
| | | Exemptions: | |
Taxes and Assessment Details
Values
| (+) Improvement Homesite Value: | + | $0 | |
| (+) Improvement Non-Homesite Value: | + | $308,557 | |
| (+) Land Homesite Value: | + | $0 | |
| (+) Land Non-Homesite Value: | + | $260,000 | |
| (+) Curr Use (HS): | + | $0 | $0 |
| (+) Curr Use (NHS): | + | $0 | $0 |
| | | -------------------------- | |
| (=) Market Value: | = | $568,557 | |
| (–) Productivity Loss: | – | $0 | |
| | | -------------------------- | |
| (=) Subtotal: | = | $568,557 | |
| (+) Senior Appraised Value: | + | $0 | |
| (+) Non-Senior Appraised Value: | + | $568,557 | |
| | | -------------------------- | |
| (=) Total Appraised Value: | = | $568,557 | |
| (–) Senior Exemption Loss: | – | $0 | |
| (–) Exemption Loss: | – | $0 | |
| | | -------------------------- | |
| (=) Taxable Value: | = | $568,557 | |
Taxing Jurisdiction
| Owner: | SCHERMERHORN, ZACHARY | | |
| % Ownership: | 100.0000000000% | | |
| Total Value: | $568,557 | | |
| Tax Area: | 770 - APPRAISER-S Whid Schl Dist, Special District, improved & less than 1 acre |
| CF | Conservation Futures | 0.0316035091 | $568,557 | $568,557 | $17.97 | | |
| FIRE3 | Fire & Rescue Dist #3 S Whidbey GEN | 1.2004855531 | $568,557 | $568,557 | $682.54 | | |
| HOBOND | Hospital BOND | 0.1910887512 | $568,557 | $568,557 | $108.64 | | |
| HOGEN | Hospital GEN | 0.3902502903 | $568,557 | $568,557 | $221.88 | | |
| CE | County Current Expense | 0.3708482477 | $568,557 | $568,557 | $210.85 | | |
| CR | County Roads | 0.4584763726 | $568,557 | $568,557 | $260.67 | | |
| ISLANDEMS | Hospital GEN (EMS) | 0.5000000000 | $568,557 | $568,557 | $284.28 | | |
| LIB | Library Sno-Isle GEN | 0.3153421757 | $568,557 | $568,557 | $179.29 | | |
| PORTWHID | Port of S Whidbey GEN | 0.1094540357 | $568,557 | $568,557 | $62.23 | | |
| SCH206BOND | School 206 BOND | 0.3161759235 | $568,557 | $568,557 | $179.76 | | |
| SCH206MO | School 206 Enrichment | 0.4547169547 | $568,557 | $568,557 | $258.53 | | |
| ST | State School | 1.3035497053 | $568,557 | $568,557 | $741.14 | | |
| ST2 | State School Part 2 | 0.8169543533 | $568,557 | $568,557 | $464.49 | | |
| SWHIDPRBD | P & R S Whidbey BOND | 0.0152817568 | $568,557 | $568,557 | $8.69 | | |
| SWHIDPRBD2 | P & R S Whidbey BOND2 | 0.0138911264 | $568,557 | $568,557 | $7.90 | | |
| SWHIDPRMT | P & R S Whidbey GEN | 0.2053334452 | $568,557 | $568,557 | $116.74 | | |
| | Total Tax Rate: | 6.6934522006 | | | | | |
| | | | | Taxes w/Current Exemptions: | $3,805.60 | | |
| | | | | Taxes w/o Exemptions: | $3,805.60 | | |
Improvement / Building
| Improvement #1: | RESIDENTIAL | State Code: | Y | 1428.0 sqft | Value: | $308,557 |
| Bathrooms: | 2 | Bedrooms: | 3 | | Ceiling: | DRYWALL PAINTED | Exterior Wall/Cover: | PLY/HARDBOARD T-111 | | Floor Covering: | HARDWOOD 100% | Floor Structure: | WOOD W/SUBFLOOR | | Foundation: | CONCRETE | Heating: | FHA GAS | | Interior Finish: | DRYWALL PAINT | Plumbing Fixture Cnt: | 11 | | Roof Slope: | 10" IN 12" | Roof Structure/Cover: | CJ ASPHALT |
|
| | Type | Description | Class CD | Sub Class CD | Year Built | Area |
| | BAS | BASE/MAIN FLOOR | 3 | 0 | 1998 | 1428.0 |
| | AGR | ATTACHED GARAGE | 3 | 0 | 1998 | 506.0 |
| | OWP | OPEN WOOD PORCH W/STEPS | 3 | 0 | 1998 | 250.5 |
| | OWC | OPEN WOOD PORCH W/STEPS/ROOF/C | 3 | 0 | 1998 | 116.0 |
Sketch
Property Image
Land
| 1 | 14 | SQ (08001-12000) | 0.2500 | 10890.00 | 0.00 | 0.00 | 1.00 | $260,000 | $0 |
Roll Value History
| 2026 | N/A | N/A | N/A | N/A | N/A |
| 2025 | $308,557 | $260,000 | $0 | $568,557 | $568,557 |
| 2024 | $312,220 | $245,000 | $0 | $557,220 | $557,220 |
| 2023 | $315,882 | $230,000 | $0 | $545,882 | $545,882 |
| 2022 | $289,362 | $200,000 | $0 | $489,362 | $489,362 |
| 2021 | $250,594 | $115,000 | $0 | $365,594 | $365,594 |
| 2020 | $243,860 | $100,000 | $0 | $343,860 | $343,860 |
| 2019 | $176,165 | $170,000 | $0 | $346,165 | $346,165 |
| 2018 | $154,501 | $120,000 | $0 | $274,501 | $274,501 |
| 2017 | $155,386 | $80,000 | $0 | $235,386 | $235,386 |
| 2016 | $157,214 | $65,000 | $0 | $222,214 | $222,214 |
| 2015 | $159,043 | $65,000 | $0 | $224,043 | $224,043 |
| 2014 | $160,870 | $45,000 | $0 | $205,870 | $205,870 |
| 2013 | $152,260 | $45,000 | $0 | $197,260 | $197,260 |
| 2012 | $154,042 | $45,900 | $0 | $199,942 | $199,942 |
| 2011 | $155,823 | $54,000 | $0 | $209,823 | $209,823 |
| 2010 | $161,951 | $65,000 | $0 | $226,951 | $226,951 |
| 2009 | $168,830 | $82,000 | $0 | $250,830 | $250,830 |
| 2008 | $170,876 | $100,000 | $0 | $270,876 | $270,876 |
| 2007 | $171,760 | $100,000 | $0 | $271,760 | $271,760 |
Deed and Sales History
| 1 | 09/23/2024 | WD | Warranty Deed | MCDAVITT, CORAL L | SCHERMERHORN, ZACHARY | | | $599,000.00 | 61387 | 4577564 |
| 2 | 12/13/2021 | WD | Warranty Deed | EVERITT, TIM A | MCDAVITT, CORAL L | | | $641,000.00 | 51363 | 4536155 |
| 3 | 06/22/2018 | WD | Warranty Deed | MCKINNEY, KERRY J | EVERITT, TIM A | | | $368,000.00 | 34660 | 4446753 |
| 4 | 10/12/2009 | WD | Warranty Deed | WILLS, DONALD K | MCKINNEY, KERRY J | | | $290,000.00 | 92527 | 4262162 |
| 5 | 09/11/1998 | WD | Warranty Deed | SMITH, RODNEY M | WILLS, DONALD K | | | $148,100.00 | 83730 | 98019467 |
| 6 | 02/01/1998 | WD | Warranty Deed | Unknown | SMITH, RODNEY M | | | $16,500.00 | 80485 | 98002548 |
| 7 | 02/01/1998 | WD | Warranty Deed | GOODFELLOW, BROS I | SMITH, RODNEY M | | | $16,500.00 | 80485 | 98002548 |
| 8 | 03/01/1979 | OTHER | Other - Misc. Documents | SMITH, RODNEY M | GOODFELLOW, BROS I | | | $0.00 | 91660 | 350722 |
Payout Agreement
| No payout information available.. |