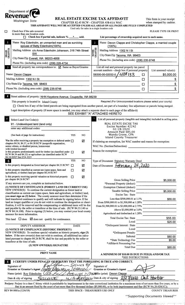
Property
Account |
| Property ID: | 184801 | Abbreviated Legal Description: | BAR HARBOR LOT 18 |
| Geographic ID: | S6070-00-00018-0 | Agent Code: | |
| Type: | Real | | |
| Tax Area: | 770 - APPRAISER-S Whid Schl Dist, Special District, improved & less than 1 acre | Land Use Code | 11 |
| Open Space: | N | DFL | N |
| Historic Property: | N | Remodel Property: | N |
| Multi-Family Redevelopment: | N | | |
| Township: | | Section: | |
| Range: | |
Location |
| Address: | 1318 BAR HARBOR CT FREELAND, WA 98249 | Mapsco: | |
| Neighborhood: | Cycle 3 | Map ID: | 290 |
| Neighborhood CD: | 3 |
Owner |
| Name: | HAMILTON, WILLIAM R | Owner ID: | 193794 |
| Mailing Address: | ELIZABETH M HAMILTON 1318 BAR HARBOR COURT FREELAND, WA 98249 | % Ownership: | 100.0000000000% |
| | | Exemptions: | |
Taxes and Assessment Details
Values
| (+) Improvement Homesite Value: | + | $0 | |
| (+) Improvement Non-Homesite Value: | + | $401,121 | |
| (+) Land Homesite Value: | + | $0 | |
| (+) Land Non-Homesite Value: | + | $285,000 | |
| (+) Curr Use (HS): | + | $0 | $0 |
| (+) Curr Use (NHS): | + | $0 | $0 |
| | | -------------------------- | |
| (=) Market Value: | = | $686,121 | |
| (–) Productivity Loss: | – | $0 | |
| | | -------------------------- | |
| (=) Subtotal: | = | $686,121 | |
| (+) Senior Appraised Value: | + | $0 | |
| (+) Non-Senior Appraised Value: | + | $686,121 | |
| | | -------------------------- | |
| (=) Total Appraised Value: | = | $686,121 | |
| (–) Senior Exemption Loss: | – | $0 | |
| (–) Exemption Loss: | – | $0 | |
| | | -------------------------- | |
| (=) Taxable Value: | = | $686,121 | |
Taxing Jurisdiction
| Owner: | HAMILTON, WILLIAM R | | |
| % Ownership: | 100.0000000000% | | |
| Total Value: | $686,121 | | |
| Tax Area: | 770 - APPRAISER-S Whid Schl Dist, Special District, improved & less than 1 acre |
| CF | Conservation Futures | 0.0316035091 | $686,121 | $686,121 | $21.68 | | |
| FIRE3 | Fire & Rescue Dist #3 S Whidbey GEN | 1.2004855531 | $686,121 | $686,121 | $823.68 | | |
| HOBOND | Hospital BOND | 0.1910887512 | $686,121 | $686,121 | $131.11 | | |
| HOGEN | Hospital GEN | 0.3902502903 | $686,121 | $686,121 | $267.76 | | |
| CE | County Current Expense | 0.3708482477 | $686,121 | $686,121 | $254.45 | | |
| CR | County Roads | 0.4584763726 | $686,121 | $686,121 | $314.57 | | |
| ISLANDEMS | Hospital GEN (EMS) | 0.5000000000 | $686,121 | $686,121 | $343.06 | | |
| LIB | Library Sno-Isle GEN | 0.3153421757 | $686,121 | $686,121 | $216.36 | | |
| PORTWHID | Port of S Whidbey GEN | 0.1094540357 | $686,121 | $686,121 | $75.10 | | |
| SCH206BOND | School 206 BOND | 0.3161759235 | $686,121 | $686,121 | $216.93 | | |
| SCH206MO | School 206 Enrichment | 0.4547169547 | $686,121 | $686,121 | $311.99 | | |
| ST | State School | 1.3035497053 | $686,121 | $686,121 | $894.39 | | |
| ST2 | State School Part 2 | 0.8169543533 | $686,121 | $686,121 | $560.53 | | |
| SWHIDPRBD | P & R S Whidbey BOND | 0.0152817568 | $686,121 | $686,121 | $10.49 | | |
| SWHIDPRBD2 | P & R S Whidbey BOND2 | 0.0138911264 | $686,121 | $686,121 | $9.53 | | |
| SWHIDPRMT | P & R S Whidbey GEN | 0.2053334452 | $686,121 | $686,121 | $140.88 | | |
| | Total Tax Rate: | 6.6934522006 | | | | | |
| | | | | Taxes w/Current Exemptions: | $4,592.51 | | |
| | | | | Taxes w/o Exemptions: | $4,592.51 | | |
Improvement / Building
| Improvement #1: | RESIDENTIAL | State Code: | Y | 1860.0 sqft | Value: | $401,121 |
| Bathrooms: | 2.5 | Bedrooms: | 3 | | Ceiling: | DRYWALL PAINTED | Cooling: | HEAT PUMP/CONV/V | | Exterior Wall/Cover: | CEMENT FIBER | Floor Covering: | HARDWOOD/CARP 60-40 | | Floor Structure: | WOOD W/SUBFLOOR | Foundation: | CONCRETE | | Interior Finish: | DRYWALL PAINT | Plumbing Fixture Cnt: | 14 | | Roof Slope: | 4" IN 12" | Roof Structure/Cover: | CJ ASPHALT |
|
| | Type | Description | Class CD | Sub Class CD | Year Built | Area |
| | BAS | BASE/MAIN FLOOR | 4 | 0 | 2006 | 1010.0 |
| | BIG | BUILT IN GARAGE | 4 | 0 | 2006 | 506.0 |
| | UPS | UPPER STORY | 4 | 0 | 2006 | 850.0 |
| | OWP | OPEN WOOD PORCH W/STEPS | 4 | 0 | 2006 | 248.0 |
| | OWP | OPEN WOOD PORCH W/STEPS | 4 | 0 | 2006 | 40.0 |
| | OWC | OPEN WOOD PORCH W/STEPS/ROOF/C | 4 | 0 | 2006 | 128.0 |
| | OWC | OPEN WOOD PORCH W/STEPS/ROOF/C | 4 | 0 | 2006 | 64.0 |
Sketch
Property Image
Land
| 1 | 13 | SQ (06001-08000) | 0.1700 | 7405.20 | 0.00 | 0.00 | 1.00 | $285,000 | $0 |
Roll Value History
| 2026 | N/A | N/A | N/A | N/A | N/A |
| 2025 | $401,121 | $285,000 | $0 | $686,121 | $686,121 |
| 2024 | $405,940 | $245,000 | $0 | $650,940 | $650,940 |
| 2023 | $410,757 | $240,000 | $0 | $650,757 | $650,757 |
| 2022 | $376,296 | $200,000 | $0 | $576,296 | $576,296 |
| 2021 | $331,017 | $115,000 | $0 | $446,017 | $446,017 |
| 2020 | $321,674 | $100,000 | $0 | $421,674 | $421,674 |
| 2019 | $234,237 | $170,000 | $0 | $404,237 | $404,237 |
| 2018 | $234,894 | $120,000 | $0 | $354,894 | $354,894 |
| 2017 | $236,206 | $100,000 | $0 | $336,206 | $336,206 |
| 2016 | $238,830 | $85,000 | $0 | $323,830 | $323,830 |
| 2015 | $241,454 | $85,000 | $0 | $326,454 | $326,454 |
| 2014 | $244,077 | $65,000 | $0 | $309,077 | $309,077 |
| 2013 | $239,837 | $65,000 | $0 | $304,837 | $304,837 |
| 2012 | $242,389 | $65,000 | $0 | $307,389 | $307,389 |
| 2011 | $244,940 | $100,000 | $0 | $344,940 | $344,940 |
| 2010 | $254,945 | $100,000 | $0 | $354,945 | $354,945 |
| 2009 | $257,961 | $150,000 | $0 | $407,961 | $407,961 |
| 2008 | $275,181 | $125,000 | $0 | $400,181 | $400,181 |
| 2007 | $275,711 | $125,000 | $0 | $400,711 | $400,711 |
Deed and Sales History
| 1 | 12/19/2007 | WD | Warranty Deed | O'DONNELL, WILLIAM S | HAMILTON, WILLIAM R | | | $415,000.00 | 74092 | 4218629 |
| 2 | 11/12/2004 | WD | Warranty Deed | PEASLEY, E D | O'DONNELL, WILLIAM S | | | $37,500.00 | 45380 | 4118220 |
| 3 | 01/01/1900 | OTHER | Other - Misc. Documents | Unknown | PEASLEY, E D | | | $0.00 | 0 | 0 |
Payout Agreement
| No payout information available.. |