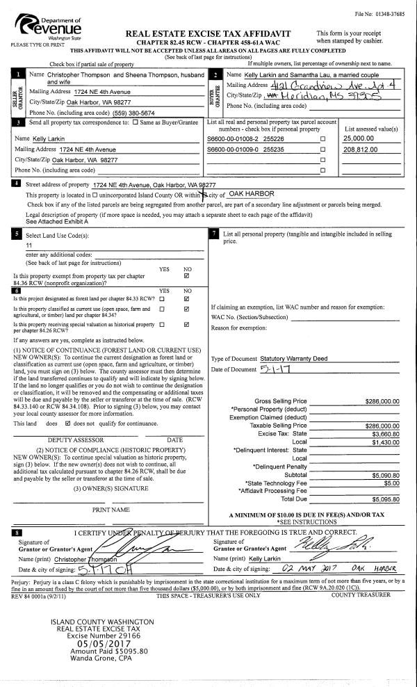
Property
Account |
| Property ID: | 184865 | Abbreviated Legal Description: | BAYSHORE TERR 1 LOT 2 |
| Geographic ID: | S6075-00-00002-0 | Agent Code: | |
| Type: | Real | | |
| Tax Area: | 510 - APPRAISER-Stan/Cam Schl Dist, improved & 1 acre or less | Land Use Code | 11 |
| Open Space: | N | DFL | N |
| Historic Property: | N | Remodel Property: | N |
| Multi-Family Redevelopment: | N | | |
| Township: | | Section: | |
| Range: | |
Location |
| Address: | 1106 BAYSHORE DR CAMANO ISLAND, WA 98282 | Mapsco: | |
| Neighborhood: | North Camano | Map ID: | 553 |
| Neighborhood CD: | 06-C |
Owner |
| Name: | SUDERMAN, LOY ANN | Owner ID: | 282033 |
| Mailing Address: | RE550, LLC PO BOX 646 MEDINA, WA 98039 | % Ownership: | 100.0000000000% |
| | | Exemptions: | |
Taxes and Assessment Details
Values
| (+) Improvement Homesite Value: | + | $0 | |
| (+) Improvement Non-Homesite Value: | + | $616,058 | |
| (+) Land Homesite Value: | + | $0 | |
| (+) Land Non-Homesite Value: | + | $1,075,000 | |
| (+) Curr Use (HS): | + | $0 | $0 |
| (+) Curr Use (NHS): | + | $0 | $0 |
| | | -------------------------- | |
| (=) Market Value: | = | $1,691,058 | |
| (–) Productivity Loss: | – | $0 | |
| | | -------------------------- | |
| (=) Subtotal: | = | $1,691,058 | |
| (+) Senior Appraised Value: | + | $0 | |
| (+) Non-Senior Appraised Value: | + | $1,691,058 | |
| | | -------------------------- | |
| (=) Total Appraised Value: | = | $1,691,058 | |
| (–) Senior Exemption Loss: | – | $0 | |
| (–) Exemption Loss: | – | $0 | |
| | | -------------------------- | |
| (=) Taxable Value: | = | $1,691,058 | |
Taxing Jurisdiction
| Owner: | SUDERMAN, LOY ANN | | |
| % Ownership: | 100.0000000000% | | |
| Total Value: | $1,691,058 | | |
| Tax Area: | 510 - APPRAISER-Stan/Cam Schl Dist, improved & 1 acre or less |
| CF | Conservation Futures | 0.0316035091 | $1,691,058 | $1,691,058 | $53.44 | | |
| EMS1 | Fire & Rescue Dist #1 Camano GEN (EMS) | 0.3677864386 | $1,691,058 | $1,691,058 | $621.95 | | |
| FIRE1 | Fire & Rescue Dist #1 Camano GEN | 1.2502910536 | $1,691,058 | $1,691,058 | $2,114.31 | | |
| FIRE1BOND | Fire & Rescue Dist #1 Camano BOND | 0.1570001679 | $1,691,058 | $1,691,058 | $265.50 | | |
| CE | County Current Expense | 0.3708482477 | $1,691,058 | $1,691,058 | $627.13 | | |
| CR | County Roads | 0.4584763726 | $1,691,058 | $1,691,058 | $775.31 | | |
| LCIB | Library Sno-Isle BOND (Camano Island) | 0.0396325772 | $1,691,058 | $1,691,058 | $67.02 | | |
| LIB | Library Sno-Isle GEN | 0.3153421757 | $1,691,058 | $1,691,058 | $533.26 | | |
| SCH205_401 | School 205-401 Enrichment | 1.2698420524 | $1,691,058 | $1,691,058 | $2,147.38 | | |
| SCH205BOND | School 205-401 BOND | 0.9396497583 | $1,691,058 | $1,691,058 | $1,589.00 | | |
| ST | State School | 1.3035497053 | $1,691,058 | $1,691,058 | $2,204.38 | | |
| ST2 | State School Part 2 | 0.8169543533 | $1,691,058 | $1,691,058 | $1,381.52 | | |
| | Total Tax Rate: | 7.3209764117 | | | | | |
| | | | | Taxes w/Current Exemptions: | $12,380.20 | | |
| | | | | Taxes w/o Exemptions: | $12,380.20 | | |
Improvement / Building
| Improvement #1: | RESIDENTIAL | State Code: | Y | 2948.0 sqft | Value: | $616,058 |
| Bathrooms: | 3 | Bedrooms: | 3 | | Ceiling: | DRYWALL PAINTED | Cooling: | HEAT PUMP/CONV/V | | Exterior Wall/Cover: | CEMENT FIBER | Floor Covering: | HARDWOOD/CARP 60-40 | | Floor Structure: | WOOD W/SUBFLOOR | Foundation: | CONCRETE | | Interior Finish: | DRYWALL PAINT | Plumbing Fixture Cnt: | 18 | | Roof Slope: | 5" IN 12" | Roof Structure/Cover: | CJ ALUMINIUM HEAVY |
|
| | Type | Description | Class CD | Sub Class CD | Year Built | Area |
| | BAS | BASE/MAIN FLOOR | 4 | 0 | 1995 | 1584.0 |
| | OP1 | OPEN PORCH SLAB | 4 | 0 | 1995 | 256.0 |
| | OP4 | OPEN PORCH W/CEILING-ROOF | 4 | 0 | 1995 | 80.0 |
| | AGR | ATTACHED GARAGE | 4 | 0 | 1995 | 528.0 |
| | OWP | OPEN WOOD PORCH W/STEPS | 4 | 0 | 1995 | 353.5 |
| | DWN | DOWNSTAIRS LIVING AREA | 4 | 0 | 1995 | 1364.0 |
Sketch
Property Image
Land
| 1 | LB | LOW BANK | 0.0000 | 0.00 | 72.00 | 0.00 | 1.00 | $1,075,000 | $0 |
Roll Value History
| 2026 | N/A | N/A | N/A | N/A | N/A |
| 2025 | $616,058 | $1,075,000 | $0 | $1,691,058 | $1,691,058 |
| 2024 | $621,236 | $1,000,000 | $0 | $1,621,236 | $1,621,236 |
| 2023 | $626,758 | $925,000 | $0 | $1,551,758 | $1,551,758 |
| 2022 | $571,915 | $825,000 | $0 | $1,396,915 | $1,396,915 |
| 2021 | $493,528 | $550,000 | $0 | $1,043,528 | $1,043,528 |
| 2020 | $478,816 | $525,000 | $0 | $1,003,816 | $1,003,816 |
| 2019 | $374,442 | $525,000 | $0 | $899,442 | $899,442 |
| 2018 | $375,446 | $475,000 | $0 | $850,446 | $850,446 |
| 2017 | $262,981 | $450,000 | $0 | $712,981 | $712,981 |
| 2016 | $256,719 | $450,000 | $0 | $706,719 | $706,719 |
| 2015 | $259,851 | $450,000 | $0 | $709,851 | $709,851 |
| 2014 | $262,981 | $450,000 | $0 | $712,981 | $712,981 |
| 2013 | $266,111 | $450,000 | $0 | $716,111 | $716,111 |
| 2012 | $269,244 | $523,273 | $0 | $792,517 | $792,517 |
| 2011 | $272,372 | $654,091 | $0 | $926,463 | $926,463 |
| 2010 | $273,175 | $654,091 | $0 | $927,266 | $927,266 |
| 2009 | $284,888 | $736,943 | $0 | $1,021,831 | $1,021,831 |
| 2008 | $288,353 | $890,654 | $0 | $1,179,007 | $1,179,007 |
| 2007 | $291,821 | $741,303 | $0 | $1,033,124 | $1,033,124 |
Deed and Sales History
| 1 | 09/19/2017 | WD | Warranty Deed | SCHAFFER, GEORGE C | SUDERMAN, LOY ANN | | | $820,000.00 | 31165 | 4430584 |
| 2 | 08/26/2005 | 5 | DNU - Marriage License/Name Change | SCHAFFER, JANETTE | SCHAFFER, GEORGE C | | | $0.00 | 54420 | 4146448 |
| 3 | 02/21/2002 | ESTSEPPROP | Establish Separate Property | SCHAFFER, G C | SCHAFFER, JANETTE | | | $0.00 | 69323 | 4010693 |
| 4 | 10/01/1989 | WD | Warranty Deed | ROBB, HOWARD | SCHAFFER, G C | | | $144,000.00 | 94589 | 89014954 |
| 5 | 01/01/1900 | OTHER | Other - Misc. Documents | Unknown | ROBB, HOWARD | | | $0.00 | 0 | 0 |
Payout Agreement
| No payout information available.. |