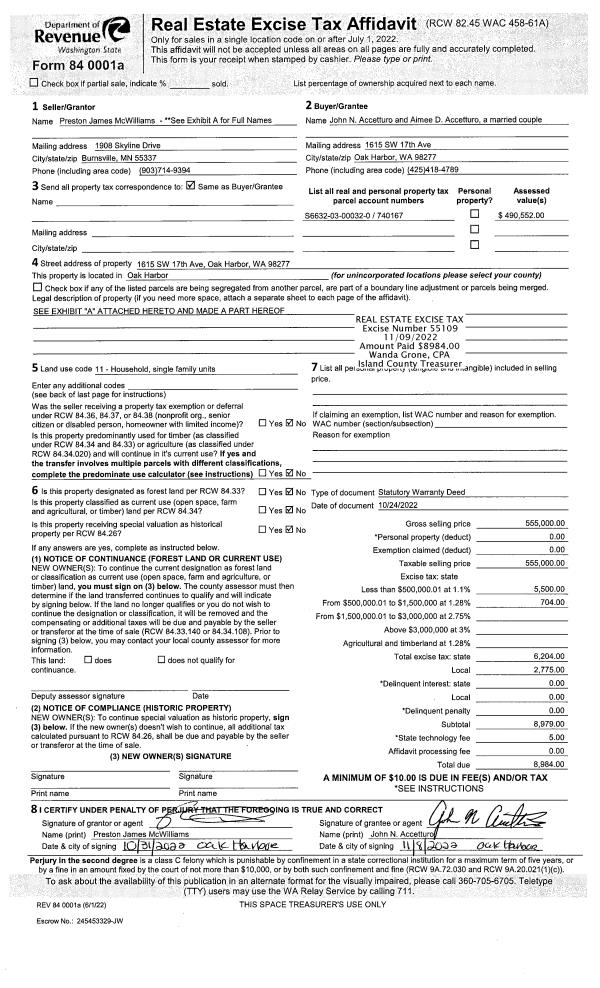
Property
Account |
| Property ID: | 184972 | Abbreviated Legal Description: | BAYSHORE TERR 1 LOT 13 |
| Geographic ID: | S6075-00-00013-0 | Agent Code: | |
| Type: | Real | | |
| Tax Area: | 510 - APPRAISER-Stan/Cam Schl Dist, improved & 1 acre or less | Land Use Code | 11 |
| Open Space: | N | DFL | N |
| Historic Property: | N | Remodel Property: | N |
| Multi-Family Redevelopment: | N | | |
| Township: | | Section: | |
| Range: | |
Location |
| Address: | 1067 SHORECREST PLACE CAMANO ISLAND, WA 98282 | Mapsco: | |
| Neighborhood: | North Camano | Map ID: | 553 |
| Neighborhood CD: | 06-C |
Owner |
| Name: | TOTTON TTEE, DAVID LAVERN | Owner ID: | 303264 |
| Mailing Address: | 1067 SHORECREST PLACE CAMANO ISLAND, WA 98282 | % Ownership: | 100.0000000000% |
| | | Exemptions: | |
Taxes and Assessment Details
Values
| (+) Improvement Homesite Value: | + | $0 | |
| (+) Improvement Non-Homesite Value: | + | $349,293 | |
| (+) Land Homesite Value: | + | $0 | |
| (+) Land Non-Homesite Value: | + | $725,000 | |
| (+) Curr Use (HS): | + | $0 | $0 |
| (+) Curr Use (NHS): | + | $0 | $0 |
| | | -------------------------- | |
| (=) Market Value: | = | $1,074,293 | |
| (–) Productivity Loss: | – | $0 | |
| | | -------------------------- | |
| (=) Subtotal: | = | $1,074,293 | |
| (+) Senior Appraised Value: | + | $0 | |
| (+) Non-Senior Appraised Value: | + | $1,074,293 | |
| | | -------------------------- | |
| (=) Total Appraised Value: | = | $1,074,293 | |
| (–) Senior Exemption Loss: | – | $0 | |
| (–) Exemption Loss: | – | $0 | |
| | | -------------------------- | |
| (=) Taxable Value: | = | $1,074,293 | |
Taxing Jurisdiction
| Owner: | TOTTON TTEE, DAVID LAVERN | | |
| % Ownership: | 100.0000000000% | | |
| Total Value: | $1,074,293 | | |
| Tax Area: | 510 - APPRAISER-Stan/Cam Schl Dist, improved & 1 acre or less |
| CF | Conservation Futures | 0.0316035091 | $1,074,293 | $1,074,293 | $33.95 | | |
| EMS1 | Fire & Rescue Dist #1 Camano GEN (EMS) | 0.3677864386 | $1,074,293 | $1,074,293 | $395.11 | | |
| FIRE1 | Fire & Rescue Dist #1 Camano GEN | 1.2502910536 | $1,074,293 | $1,074,293 | $1,343.18 | | |
| FIRE1BOND | Fire & Rescue Dist #1 Camano BOND | 0.1570001679 | $1,074,293 | $1,074,293 | $168.66 | | |
| CE | County Current Expense | 0.3708482477 | $1,074,293 | $1,074,293 | $398.40 | | |
| CR | County Roads | 0.4584763726 | $1,074,293 | $1,074,293 | $492.54 | | |
| LCIB | Library Sno-Isle BOND (Camano Island) | 0.0396325772 | $1,074,293 | $1,074,293 | $42.58 | | |
| LIB | Library Sno-Isle GEN | 0.3153421757 | $1,074,293 | $1,074,293 | $338.77 | | |
| SCH205_401 | School 205-401 Enrichment | 1.2698420524 | $1,074,293 | $1,074,293 | $1,364.18 | | |
| SCH205BOND | School 205-401 BOND | 0.9396497583 | $1,074,293 | $1,074,293 | $1,009.46 | | |
| ST | State School | 1.3035497053 | $1,074,293 | $1,074,293 | $1,400.39 | | |
| ST2 | State School Part 2 | 0.8169543533 | $1,074,293 | $1,074,293 | $877.65 | | |
| | Total Tax Rate: | 7.3209764117 | | | | | |
| | | | | Taxes w/Current Exemptions: | $7,864.87 | | |
| | | | | Taxes w/o Exemptions: | $7,864.87 | | |
Improvement / Building
| Improvement #1: | RESIDENTIAL | State Code: | Y | 2148.2 sqft | Value: | $349,293 |
| Bathrooms: | 2.5 | Bedrooms: | 3 | | Ceiling: | DRYWALL PAINTED | Exterior Wall/Cover: | PLY/HARDBOARD T-111 | | Floor Covering: | CERAMIC TILE/CPT 40-60 | Floor Structure: | WOOD W/SUBFLOOR | | Foundation: | CONCRETE | Heating: | FHA GAS | | Interior Finish: | DRYWALL PAINT | Plumbing Fixture Cnt: | 12 | | Roof Slope: | 5" IN 12" | Roof Structure/Cover: | CJ ASPHALT |
|
| | Type | Description | Class CD | Sub Class CD | Year Built | Area |
| | BAS | BASE/MAIN FLOOR | 3 | 0 | 1996 | 1092.1 |
| | OP1 | OPEN PORCH SLAB | 3 | 0 | 1996 | 241.8 |
| | AGR | ATTACHED GARAGE | 3 | 0 | 1996 | 848.9 |
| | OWP | OPEN WOOD PORCH W/STEPS | 3 | 0 | 1996 | 276.8 |
| | OWC | OPEN WOOD PORCH W/STEPS/ROOF/C | 3 | 0 | 1996 | 28.0 |
| | DWN | DOWNSTAIRS LIVING AREA | 3 | 0 | 1996 | 1056.1 |
Sketch
Property Image
Land
| 1 | HB | HIGH BLUFF | 0.0000 | 0.00 | 70.00 | 0.00 | 1.00 | $725,000 | $0 |
Roll Value History
| 2026 | N/A | N/A | N/A | N/A | N/A |
| 2025 | $349,293 | $725,000 | $0 | $1,074,293 | $1,074,293 |
| 2024 | $353,592 | $725,000 | $0 | $1,078,592 | $1,078,592 |
| 2023 | $357,890 | $650,000 | $0 | $1,007,890 | $1,007,890 |
| 2022 | $313,003 | $625,000 | $0 | $938,003 | $938,003 |
| 2021 | $275,495 | $425,000 | $0 | $700,495 | $700,495 |
| 2020 | $268,548 | $400,000 | $0 | $668,548 | $668,548 |
| 2019 | $205,070 | $425,000 | $0 | $630,070 | $630,070 |
| 2018 | $205,671 | $350,000 | $0 | $555,671 | $555,671 |
| 2017 | $206,873 | $300,000 | $0 | $506,873 | $506,873 |
| 2016 | $201,829 | $300,000 | $0 | $501,829 | $501,829 |
| 2015 | $204,179 | $250,000 | $0 | $454,179 | $454,179 |
| 2014 | $206,524 | $250,000 | $0 | $456,524 | $456,524 |
| 2013 | $208,872 | $200,000 | $0 | $408,872 | $408,872 |
| 2012 | $194,179 | $232,366 | $0 | $426,545 | $426,545 |
| 2011 | $196,524 | $290,457 | $0 | $486,981 | $486,981 |
| 2010 | $219,540 | $290,457 | $0 | $509,997 | $509,997 |
| 2009 | $229,165 | $322,730 | $0 | $551,895 | $551,895 |
| 2008 | $232,131 | $322,730 | $0 | $554,861 | $554,861 |
| 2007 | $235,096 | $322,730 | $0 | $557,826 | $557,826 |
Deed and Sales History
| 1 | 01/11/2022 | QCD | Quit Claim Deed | TOTTON, DAVID L | TOTTON TTEE, DAVID LAVERN | | | $0.00 | 52052 | 4540248 |
| 2 | 01/11/2022 | QCD | Quit Claim Deed | TOTTON, DAVID L | TOTTON, DAVID L | | | $0.00 | 51766 | 4538532 |
| 3 | 02/23/2016 | TRUSTEED | Trustee's Deed | THE DAVID J TOTTON & | TOTTON, DAVID L | | | $0.00 | 23326 | 4394957 |
| 4 | 12/14/2010 | QCD | Quit Claim Deed | DAVID L TOTTON | THE DAVID J TOTTON & | | | $0.00 | 3144 | 4286977 |
| 5 | 09/13/2010 | QCD | Quit Claim Deed | TOTTON, DAVID L | DAVID L TOTTON | | | $0.00 | 2276 | 4280836 |
| 6 | 12/02/2005 | WD | Warranty Deed | CLARK, RICK | TOTTON, DAVID L | | | $589,000.00 | 56147 | 4156648 |
| 7 | 11/06/2003 | WD | Warranty Deed | WELCH, DARRYL | CLARK, RICK | | | $349,000.00 | 35096 | 4082413 |
| 8 | 04/23/1999 | WD | Warranty Deed | TALKINGTON, LOREN & | WELCH, DARRYL | | | $275,000.00 | 91542 | 99009938 |
| 9 | 05/01/1995 | WD | Warranty Deed | DANUBIO, DAVID | TALKINGTON, LOREN & | | | $160,000.00 | 51812 | 95008453 |
| 10 | 08/01/1989 | REC | Real Estate Contract | SHERWOOD, AUDRENE M | DANUBIO, DAVID | | | $47,500.00 | 93424 | 89011477 |
| 11 | 01/01/1900 | OTHER | Other - Misc. Documents | Unknown | SHERWOOD, AUDRENE M | | | $0.00 | 0 | 0 |
Payout Agreement
| No payout information available.. |