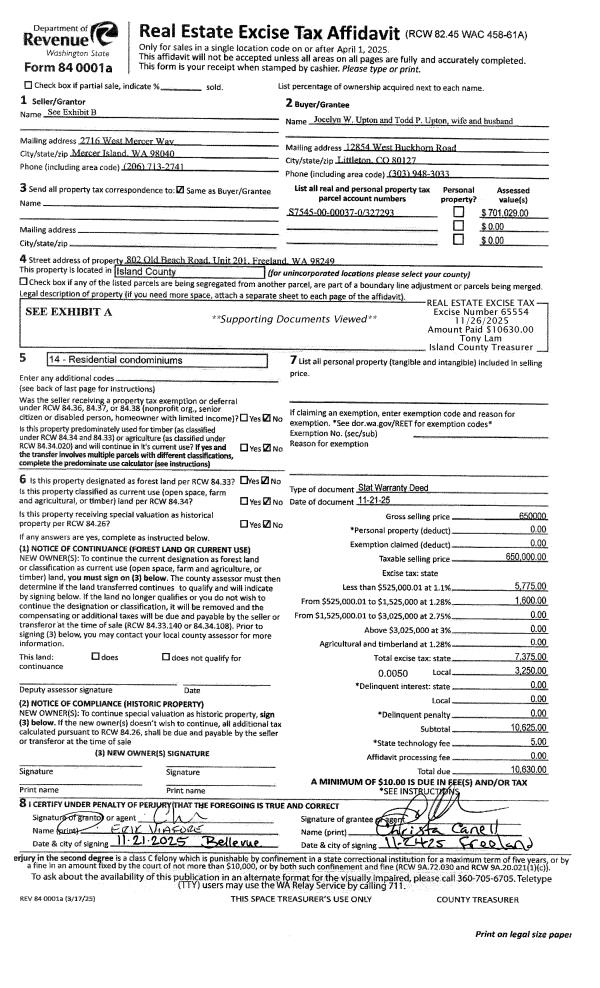
Property
Account |
| Property ID: | 185178 | Abbreviated Legal Description: | BAYVIEW BCH ADD LOT 2 |
| Geographic ID: | S6080-00-00002-0 | Agent Code: | |
| Type: | Real | | |
| Tax Area: | 750 - APPRAISER-S Whid Schl Dist, Special District, improved & less than 1 acre | Land Use Code | 11 |
| Open Space: | N | DFL | N |
| Historic Property: | N | Remodel Property: | N |
| Multi-Family Redevelopment: | N | | |
| Township: | | Section: | |
| Range: | |
Location |
| Address: | 1896 SHORE AVE FREELAND, WA 98249 | Mapsco: | |
| Neighborhood: | Cycle 3 | Map ID: | 339 |
| Neighborhood CD: | 3 |
Owner |
| Name: | SMITH, ELIZABETH | Owner ID: | 314191 |
| Mailing Address: | 18007 VISTA DELMAR DR EDMONDS, WA 98026 | % Ownership: | 100.0000000000% |
| | | Exemptions: | |
Taxes and Assessment Details
Values
| (+) Improvement Homesite Value: | + | $0 | |
| (+) Improvement Non-Homesite Value: | + | $345,795 | |
| (+) Land Homesite Value: | + | $0 | |
| (+) Land Non-Homesite Value: | + | $1,995,500 | |
| (+) Curr Use (HS): | + | $0 | $0 |
| (+) Curr Use (NHS): | + | $0 | $0 |
| | | -------------------------- | |
| (=) Market Value: | = | $2,341,295 | |
| (–) Productivity Loss: | – | $0 | |
| | | -------------------------- | |
| (=) Subtotal: | = | $2,341,295 | |
| (+) Senior Appraised Value: | + | $0 | |
| (+) Non-Senior Appraised Value: | + | $2,341,295 | |
| | | -------------------------- | |
| (=) Total Appraised Value: | = | $2,341,295 | |
| (–) Senior Exemption Loss: | – | $0 | |
| (–) Exemption Loss: | – | $0 | |
| | | -------------------------- | |
| (=) Taxable Value: | = | $2,341,295 | |
Taxing Jurisdiction
| Owner: | SMITH, ELIZABETH | | |
| % Ownership: | 100.0000000000% | | |
| Total Value: | $2,341,295 | | |
| Tax Area: | 750 - APPRAISER-S Whid Schl Dist, Special District, improved & less than 1 acre |
| CF | Conservation Futures | 0.0316035091 | $2,341,295 | $2,341,295 | $73.99 | | |
| FIRE3 | Fire & Rescue Dist #3 S Whidbey GEN | 1.2004855531 | $2,341,295 | $2,341,295 | $2,810.69 | | |
| HOBOND | Hospital BOND | 0.1910887512 | $2,341,295 | $2,341,295 | $447.40 | | |
| HOGEN | Hospital GEN | 0.3902502903 | $2,341,295 | $2,341,295 | $913.69 | | |
| CE | County Current Expense | 0.3708482477 | $2,341,295 | $2,341,295 | $868.27 | | |
| CR | County Roads | 0.4584763726 | $2,341,295 | $2,341,295 | $1,073.43 | | |
| ISLANDEMS | Hospital GEN (EMS) | 0.5000000000 | $2,341,295 | $2,341,295 | $1,170.65 | | |
| LIB | Library Sno-Isle GEN | 0.3153421757 | $2,341,295 | $2,341,295 | $738.31 | | |
| PORTWHID | Port of S Whidbey GEN | 0.1094540357 | $2,341,295 | $2,341,295 | $256.26 | | |
| SCH206BOND | School 206 BOND | 0.3161759235 | $2,341,295 | $2,341,295 | $740.26 | | |
| SCH206MO | School 206 Enrichment | 0.4547169547 | $2,341,295 | $2,341,295 | $1,064.63 | | |
| ST | State School | 1.3035497053 | $2,341,295 | $2,341,295 | $3,051.99 | | |
| ST2 | State School Part 2 | 0.8169543533 | $2,341,295 | $2,341,295 | $1,912.73 | | |
| SWHIDPRBD | P & R S Whidbey BOND | 0.0152817568 | $2,341,295 | $2,341,295 | $35.78 | | |
| SWHIDPRBD2 | P & R S Whidbey BOND2 | 0.0138911264 | $2,341,295 | $2,341,295 | $32.52 | | |
| SWHIDPRMT | P & R S Whidbey GEN | 0.2053334452 | $2,341,295 | $2,341,295 | $480.75 | | |
| | Total Tax Rate: | 6.6934522006 | | | | | |
| | | | | Taxes w/Current Exemptions: | $15,671.35 | | |
| | | | | Taxes w/o Exemptions: | $15,671.35 | | |
Improvement / Building
| Improvement #1: | RESIDENTIAL | State Code: | Y | 2151.3 sqft | Value: | $345,795 |
| Bathrooms: | 2 | Bedrooms: | 3 | | Ceiling: | DRY WALL SPRAYED | Cooling: | HEAT PUMP/CONV/V | | Exterior Wall/Cover: | WOOD SIDING | Floor Covering: | CARPET/VINYL 80-20 | | Floor Structure: | WOOD W/SUBFLOOR | Foundation: | CONCRETE | | Interior Finish: | DRYWALL PAINT | Plumbing Fixture Cnt: | 10 | | Roof Slope: | 5" IN 12" | Roof Structure/Cover: | CJ ASPHALT |
|
| | Type | Description | Class CD | Sub Class CD | Year Built | Area |
| | BAS | BASE/MAIN FLOOR | 3 | 0 | 1983 | 1719.3 |
| | OWP | OPEN WOOD PORCH W/STEPS | 3 | 0 | 1983 | 166.0 |
| | OWR | OPEN WOOD PORCH W/STEPS/ROOF | 3 | 0 | 1983 | 74.9 |
| | OWC | OPEN WOOD PORCH W/STEPS/ROOF/C | 3 | 0 | 1983 | 216.0 |
| | LOF | LOFT | 3 | 0 | 1983 | 432.0 |
| | oUTI | UTILITY | 3 | 0 | 1983 | 150.0 |
| | AGR | ATTACHED GARAGE | 3 | 0 | 1983 | 110.0 |
Sketch
Property Image
Land
| 1 | LB | LOW BANK | 0.0000 | 0.00 | 50.00 | 0.00 | 1.00 | $1,995,000 | $0 |
| 2 | 55 | TIDES | 0.0000 | 0.00 | 50.00 | 0.00 | 1.00 | $500 | $0 |
Roll Value History
| 2026 | N/A | N/A | N/A | N/A | N/A |
| 2025 | $345,795 | $1,995,500 | $0 | $2,341,295 | $2,341,295 |
| 2024 | $348,694 | $1,995,500 | $0 | $2,344,194 | $2,344,194 |
| 2023 | $278,545 | $1,995,500 | $0 | $2,274,045 | $2,274,045 |
| 2022 | $255,581 | $1,995,500 | $0 | $2,251,081 | $2,251,081 |
| 2021 | $225,202 | $1,750,500 | $0 | $1,975,702 | $1,975,702 |
| 2020 | $219,935 | $1,300,500 | $0 | $1,520,435 | $1,520,435 |
| 2019 | $174,304 | $1,100,500 | $0 | $1,274,804 | $1,274,804 |
| 2018 | $174,837 | $900,500 | $0 | $1,075,337 | $1,075,337 |
| 2017 | $175,897 | $900,500 | $0 | $1,076,397 | $1,076,397 |
| 2016 | $178,030 | $900,500 | $0 | $1,078,530 | $1,078,530 |
| 2015 | $180,163 | $750,500 | $0 | $930,663 | $930,663 |
| 2014 | $160,966 | $1,000,500 | $0 | $1,161,466 | $1,161,466 |
| 2013 | $151,813 | $754,800 | $0 | $906,613 | $906,613 |
| 2012 | $153,904 | $754,800 | $0 | $908,704 | $908,704 |
| 2011 | $155,996 | $754,800 | $0 | $910,796 | $910,796 |
| 2010 | $156,345 | $754,800 | $0 | $911,145 | $911,145 |
| 2009 | $161,061 | $1,003,050 | $0 | $1,164,111 | $1,164,111 |
| 2008 | $168,034 | $1,050,791 | $0 | $1,218,825 | $1,218,825 |
| 2007 | $163,739 | $907,220 | $0 | $1,070,959 | $1,070,959 |
Deed and Sales History
| 1 | 09/06/2019 | QCD | Quit Claim Deed | HERSHBERG, ROBERT M | SMITH, ELIZABETH | | | $0.00 | 61545 | 4578169 |
| 2 | 08/29/2014 | WD | Warranty Deed | BRYANT, PETER L | HERSHBERG, ROBERT M | | | $960,000.00 | 16625 | 4364786 |
| 3 | 10/12/2007 | WD | Warranty Deed | RBFP, LLC | BRYANT, PETER L | | | $1,250,000.00 | 73482 | 4214409 |
| 4 | 11/01/1996 | PRD | Personal Representatives Deed | BENNETT, RICHARD K | BENNETT, RICHARD K | | | $0.00 | 64122 | 96020089 |
| 5 | 11/01/1996 | PRD | Personal Representatives Deed | BENNETT, RICHARD K | BENNETT, RICHARD K | | | $0.00 | 64123 | 96020090 |
| 6 | 11/01/1996 | QCD | Quit Claim Deed | BENNETT, RICHARD K | BENNETT, RICHARD K | | | $0.00 | 64269 | 96020852 |
| 7 | 11/01/1996 | QCD | Quit Claim Deed | BENNETT, RICHARD K | BENNETT, RICHARD K | | | $0.00 | 64270 | 96020853 |
| 8 | 11/01/1996 | QCD | Quit Claim Deed | BENNETT, RICHARD K | RBFP, LLC | | | $0.00 | 64271 | 96020854 |
| 9 | 01/01/1900 | OTHER | Other - Misc. Documents | Unknown | BENNETT, RICHARD K | | | $0.00 | 0 | 0 |
Payout Agreement
| No payout information available.. |