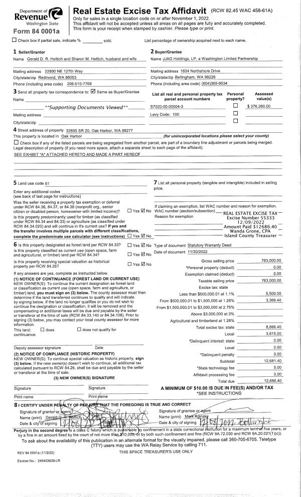
Property
Account |
| Property ID: | 185203 | Abbreviated Legal Description: | BAYVIEW BCH ADD LOT 5 INCL ADJ TIDES |
| Geographic ID: | S6080-00-00005-0 | Agent Code: | |
| Type: | Real | | |
| Tax Area: | 750 - APPRAISER-S Whid Schl Dist, Special District, improved & less than 1 acre | Land Use Code | 11 |
| Open Space: | N | DFL | N |
| Historic Property: | N | Remodel Property: | N |
| Multi-Family Redevelopment: | N | | |
| Township: | | Section: | |
| Range: | |
Location |
| Address: | 1906 SHORE AVE FREELAND, WA 98249 | Mapsco: | |
| Neighborhood: | Cycle 3 | Map ID: | 339 |
| Neighborhood CD: | 3 |
Owner |
| Name: | BRYAN TTEE, CURTIS B | Owner ID: | 304144 |
| Mailing Address: | KAREN R M BRYAN TTEE PO BOX 1263 FREELAND, WA 98249 | % Ownership: | 100.0000000000% |
| | | Exemptions: | |
Taxes and Assessment Details
Values
| (+) Improvement Homesite Value: | + | $0 | |
| (+) Improvement Non-Homesite Value: | + | $231,277 | |
| (+) Land Homesite Value: | + | $0 | |
| (+) Land Non-Homesite Value: | + | $1,995,500 | |
| (+) Curr Use (HS): | + | $0 | $0 |
| (+) Curr Use (NHS): | + | $0 | $0 |
| | | -------------------------- | |
| (=) Market Value: | = | $2,226,777 | |
| (–) Productivity Loss: | – | $0 | |
| | | -------------------------- | |
| (=) Subtotal: | = | $2,226,777 | |
| (+) Senior Appraised Value: | + | $0 | |
| (+) Non-Senior Appraised Value: | + | $2,226,777 | |
| | | -------------------------- | |
| (=) Total Appraised Value: | = | $2,226,777 | |
| (–) Senior Exemption Loss: | – | $0 | |
| (–) Exemption Loss: | – | $0 | |
| | | -------------------------- | |
| (=) Taxable Value: | = | $2,226,777 | |
Taxing Jurisdiction
| Owner: | BRYAN TTEE, CURTIS B | | |
| % Ownership: | 100.0000000000% | | |
| Total Value: | $2,226,777 | | |
| Tax Area: | 750 - APPRAISER-S Whid Schl Dist, Special District, improved & less than 1 acre |
| CF | Conservation Futures | 0.0316035091 | $2,226,777 | $2,226,777 | $70.37 | | |
| FIRE3 | Fire & Rescue Dist #3 S Whidbey GEN | 1.2004855531 | $2,226,777 | $2,226,777 | $2,673.21 | | |
| HOBOND | Hospital BOND | 0.1910887512 | $2,226,777 | $2,226,777 | $425.51 | | |
| HOGEN | Hospital GEN | 0.3902502903 | $2,226,777 | $2,226,777 | $869.00 | | |
| CE | County Current Expense | 0.3708482477 | $2,226,777 | $2,226,777 | $825.80 | | |
| CR | County Roads | 0.4584763726 | $2,226,777 | $2,226,777 | $1,020.92 | | |
| ISLANDEMS | Hospital GEN (EMS) | 0.5000000000 | $2,226,777 | $2,226,777 | $1,113.39 | | |
| LIB | Library Sno-Isle GEN | 0.3153421757 | $2,226,777 | $2,226,777 | $702.20 | | |
| PORTWHID | Port of S Whidbey GEN | 0.1094540357 | $2,226,777 | $2,226,777 | $243.73 | | |
| SCH206BOND | School 206 BOND | 0.3161759235 | $2,226,777 | $2,226,777 | $704.05 | | |
| SCH206MO | School 206 Enrichment | 0.4547169547 | $2,226,777 | $2,226,777 | $1,012.55 | | |
| ST | State School | 1.3035497053 | $2,226,777 | $2,226,777 | $2,902.71 | | |
| ST2 | State School Part 2 | 0.8169543533 | $2,226,777 | $2,226,777 | $1,819.18 | | |
| SWHIDPRBD | P & R S Whidbey BOND | 0.0152817568 | $2,226,777 | $2,226,777 | $34.03 | | |
| SWHIDPRBD2 | P & R S Whidbey BOND2 | 0.0138911264 | $2,226,777 | $2,226,777 | $30.93 | | |
| SWHIDPRMT | P & R S Whidbey GEN | 0.2053334452 | $2,226,777 | $2,226,777 | $457.23 | | |
| | Total Tax Rate: | 6.6934522006 | | | | | |
| | | | | Taxes w/Current Exemptions: | $14,904.81 | | |
| | | | | Taxes w/o Exemptions: | $14,904.81 | | |
Improvement / Building
| Improvement #1: | RESIDENTIAL | State Code: | Y | 2002.0 sqft | Value: | $231,277 |
| Bathrooms: | 1 | Bedrooms: | 2 | | Ceiling: | PLASTER PAINTED | Exterior Wall/Cover: | WOOD SIDING | | Floor Covering: | CARPET/VINYL 80-20 | Floor Structure: | WOOD W/SUBFLOOR | | Foundation: | CONCRETE BLOCKS | Heating: | FHA OIL | | Interior Finish: | PLASTER | Plumbing Fixture Cnt: | 6 | | Roof Slope: | 4" IN 12" | Roof Structure/Cover: | CJ ASPHALT |
|
| | Type | Description | Class CD | Sub Class CD | Year Built | Area |
| | BAS | BASE/MAIN FLOOR | 3 | 0 | 1948 | 1274.0 |
| | UB8 | BASEMENT UNFINISHED 8" | 3 | 0 | 1948 | 468.0 |
| | DWN | DOWNSTAIRS LIVING AREA | 3 | 0 | 1948 | 728.0 |
| | OCP | OPEN CARPORT | 3 | 0 | 1948 | 448.0 |
| | OWP | OPEN WOOD PORCH W/STEPS | 3 | 0 | 1948 | 1324.0 |
Sketch
Property Image
Land
| 1 | LB | LOW BANK | 0.0000 | 0.00 | 50.00 | 0.00 | 1.00 | $1,995,000 | $0 |
| 2 | 55 | TIDES | 0.0000 | 0.00 | 50.00 | 0.00 | 1.00 | $500 | $0 |
Roll Value History
| 2026 | N/A | N/A | N/A | N/A | N/A |
| 2025 | $231,277 | $1,995,500 | $0 | $2,226,777 | $2,226,777 |
| 2024 | $234,822 | $1,995,500 | $0 | $2,230,322 | $2,230,322 |
| 2023 | $238,367 | $1,995,500 | $0 | $2,233,867 | $2,233,867 |
| 2022 | $219,069 | $1,995,500 | $0 | $2,214,569 | $2,214,569 |
| 2021 | $203,510 | $1,750,500 | $0 | $1,954,010 | $1,954,010 |
| 2020 | $199,151 | $1,300,500 | $0 | $1,499,651 | $1,499,651 |
| 2019 | $103,613 | $1,100,500 | $0 | $1,204,113 | $1,204,113 |
| 2018 | $104,118 | $900,500 | $0 | $1,004,618 | $1,004,618 |
| 2017 | $105,128 | $900,500 | $0 | $1,005,628 | $1,005,628 |
| 2016 | $107,151 | $900,500 | $0 | $1,007,651 | $1,007,651 |
| 2015 | $109,172 | $750,500 | $0 | $859,672 | $859,672 |
| 2014 | $111,193 | $1,000,500 | $0 | $1,111,693 | $1,111,693 |
| 2013 | $110,906 | $754,800 | $0 | $865,706 | $865,706 |
| 2012 | $113,056 | $754,800 | $0 | $867,856 | $867,856 |
| 2011 | $115,206 | $754,800 | $0 | $870,006 | $870,006 |
| 2010 | $129,794 | $754,800 | $0 | $884,594 | $884,594 |
| 2009 | $133,778 | $1,003,050 | $0 | $1,136,828 | $1,136,828 |
| 2008 | $136,040 | $1,050,791 | $0 | $1,186,831 | $1,186,831 |
| 2007 | $138,301 | $907,220 | $0 | $1,045,521 | $1,045,521 |
Deed and Sales History
| 1 | 03/02/2022 | QCD | Quit Claim Deed | BRYAN, CURTIS | BRYAN TTEE, CURTIS B | | | $0.00 | 53018 | 4544788 |
| 2 | 01/07/2015 | WD | Warranty Deed | GRIMM, FRED | BRYAN, CURTIS | | | $950,000.00 | 18166 | 4371547 |
| 3 | 07/17/2006 | WD | Warranty Deed | SCHRECENGOST, CHRISTINE J | GRIMM, FRED | | | $950,000.00 | 63279 | 4177591 |
| 4 | 07/12/2006 | ESTSEPPROP | Establish Separate Property | SWENSON - LIFE ESTATE, NORA | SCHRECENGOST, CHRISTINE J | | | $0.00 | 63324 | 4177732 |
| 5 | 12/29/1999 | QCD | Quit Claim Deed | SWENSON, HARVEY F | SWENSON - LIFE ESTATE, NORA | | | $0.00 | 95343 | 99029445 |
| 6 | 12/01/1988 | QCD | Quit Claim Deed | SWENSON, NORA M | SWENSON, HARVEY F | | | $0.00 | 90088 | 89000310 |
| 7 | 01/01/1900 | OTHER | Other - Misc. Documents | Unknown | SWENSON, NORA M | | | $0.00 | 0 | 0 |
Payout Agreement
| No payout information available.. |