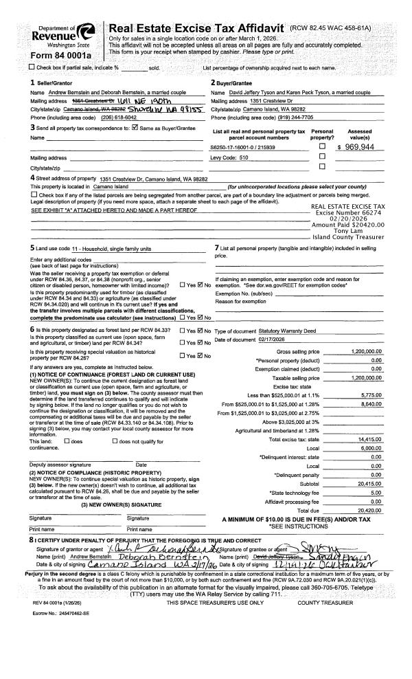
Property
Account |
| Property ID: | 185249 | Abbreviated Legal Description: | BAYVIEW BCH ADD LOT 9 |
| Geographic ID: | S6080-00-00009-0 | Agent Code: | |
| Type: | Real | | |
| Tax Area: | 750 - APPRAISER-S Whid Schl Dist, Special District, improved & less than 1 acre | Land Use Code | 11 |
| Open Space: | N | DFL | N |
| Historic Property: | N | Remodel Property: | N |
| Multi-Family Redevelopment: | N | | |
| Township: | | Section: | |
| Range: | |
Location |
| Address: | 1920 SHORE AVE FREELAND, WA 98249 | Mapsco: | |
| Neighborhood: | Cycle 3 | Map ID: | 339 |
| Neighborhood CD: | 3 |
Owner |
| Name: | SHERI SAYRE ARTICLE 5 TRUST FOR SPOUSE | Owner ID: | 317534 |
| Mailing Address: | C/O MATT M SAYRE TTEE 1920 SHORE AVE FREELAND, WA 98249 | % Ownership: | 100.0000000000% |
| | | Exemptions: | |
Taxes and Assessment Details
Values
| (+) Improvement Homesite Value: | + | $0 | |
| (+) Improvement Non-Homesite Value: | + | $229,450 | |
| (+) Land Homesite Value: | + | $0 | |
| (+) Land Non-Homesite Value: | + | $1,995,620 | |
| (+) Curr Use (HS): | + | $0 | $0 |
| (+) Curr Use (NHS): | + | $0 | $0 |
| | | -------------------------- | |
| (=) Market Value: | = | $2,225,070 | |
| (–) Productivity Loss: | – | $0 | |
| | | -------------------------- | |
| (=) Subtotal: | = | $2,225,070 | |
| (+) Senior Appraised Value: | + | $0 | |
| (+) Non-Senior Appraised Value: | + | $2,225,070 | |
| | | -------------------------- | |
| (=) Total Appraised Value: | = | $2,225,070 | |
| (–) Senior Exemption Loss: | – | $0 | |
| (–) Exemption Loss: | – | $0 | |
| | | -------------------------- | |
| (=) Taxable Value: | = | $2,225,070 | |
Taxing Jurisdiction
| Owner: | SHERI SAYRE ARTICLE 5 TRUST FOR SPOUSE | | |
| % Ownership: | 100.0000000000% | | |
| Total Value: | $2,225,070 | | |
| Tax Area: | 750 - APPRAISER-S Whid Schl Dist, Special District, improved & less than 1 acre |
| CF | Conservation Futures | 0.0316035091 | $2,225,070 | $2,225,070 | $70.32 | | |
| FIRE3 | Fire & Rescue Dist #3 S Whidbey GEN | 1.2004855531 | $2,225,070 | $2,225,070 | $2,671.16 | | |
| HOBOND | Hospital BOND | 0.1910887512 | $2,225,070 | $2,225,070 | $425.19 | | |
| HOGEN | Hospital GEN | 0.3902502903 | $2,225,070 | $2,225,070 | $868.33 | | |
| CE | County Current Expense | 0.3708482477 | $2,225,070 | $2,225,070 | $825.16 | | |
| CR | County Roads | 0.4584763726 | $2,225,070 | $2,225,070 | $1,020.14 | | |
| ISLANDEMS | Hospital GEN (EMS) | 0.5000000000 | $2,225,070 | $2,225,070 | $1,112.54 | | |
| LIB | Library Sno-Isle GEN | 0.3153421757 | $2,225,070 | $2,225,070 | $701.66 | | |
| PORTWHID | Port of S Whidbey GEN | 0.1094540357 | $2,225,070 | $2,225,070 | $243.54 | | |
| SCH206BOND | School 206 BOND | 0.3161759235 | $2,225,070 | $2,225,070 | $703.51 | | |
| SCH206MO | School 206 Enrichment | 0.4547169547 | $2,225,070 | $2,225,070 | $1,011.78 | | |
| ST | State School | 1.3035497053 | $2,225,070 | $2,225,070 | $2,900.49 | | |
| ST2 | State School Part 2 | 0.8169543533 | $2,225,070 | $2,225,070 | $1,817.78 | | |
| SWHIDPRBD | P & R S Whidbey BOND | 0.0152817568 | $2,225,070 | $2,225,070 | $34.00 | | |
| SWHIDPRBD2 | P & R S Whidbey BOND2 | 0.0138911264 | $2,225,070 | $2,225,070 | $30.91 | | |
| SWHIDPRMT | P & R S Whidbey GEN | 0.2053334452 | $2,225,070 | $2,225,070 | $456.88 | | |
| | Total Tax Rate: | 6.6934522006 | | | | | |
| | | | | Taxes w/Current Exemptions: | $14,893.39 | | |
| | | | | Taxes w/o Exemptions: | $14,893.39 | | |
Improvement / Building
| Improvement #1: | RESIDENTIAL | State Code: | Y | 1819.0 sqft | Value: | $229,450 |
| Bathrooms: | 2.5 | Bedrooms: | 3 | | Ceiling: | TONGUE & GROOVE | Exterior Wall/Cover: | WOOD SIDING | | Floor Covering: | HARDWOOD/CARP 20-80 | Floor Structure: | WOOD W/SUBFLOOR | | Foundation: | CONCRETE | Heating: | WALL HEAT ELECTRIC | | Interior Finish: | PLASTER | Plumbing Fixture Cnt: | 11 | | Roof Slope: | 8" IN 12" | Roof Structure/Cover: | CJ WOOD SHAKES |
|
| | Type | Description | Class CD | Sub Class CD | Year Built | Area |
| | BAS | BASE/MAIN FLOOR | 3 | 0 | 1957 | 1406.0 |
| | ATF | ATTIC FINISHED | 3 | 0 | 1957 | 360.0 |
| | BIG | BUILT IN GARAGE | 3 | 0 | 1957 | 350.0 |
| | UTY | STORAGE/UTILITY | 3 | 0 | 1957 | 18.0 |
| | UPS | UPPER STORY | 3 | 0 | 1957 | 413.0 |
| | OWP | OPEN WOOD PORCH W/STEPS | 3 | 0 | 1957 | 513.0 |
| | ENP | ENCLOSED PORCH | 3 | 0 | 1957 | 35.0 |
| | oGAR | GARAGE | 3 | 0 | 1957 | 352.0 |
| | oUTI | UTILITY | 3 | 0 | 1957 | 224.0 |
Sketch
Property Image
Land
| 1 | LB | LOW BANK | 0.0000 | 0.00 | 62.00 | 0.00 | 1.00 | $1,995,000 | $0 |
| 2 | 55 | TIDES | 0.0000 | 0.00 | 62.00 | 0.00 | 1.00 | $620 | $0 |
Roll Value History
| 2026 | N/A | N/A | N/A | N/A | N/A |
| 2025 | $229,450 | $1,995,620 | $0 | $2,225,070 | $2,225,070 |
| 2024 | $233,464 | $1,995,620 | $0 | $2,229,084 | $2,229,084 |
| 2023 | $237,476 | $1,995,620 | $0 | $2,233,096 | $893,238 |
| 2022 | $219,397 | $1,995,620 | $0 | $2,215,017 | $2,215,017 |
| 2021 | $194,941 | $1,750,620 | $0 | $1,945,561 | $1,945,561 |
| 2020 | $191,069 | $1,300,620 | $0 | $1,491,689 | $1,491,689 |
| 2019 | $139,751 | $1,100,620 | $0 | $1,240,371 | $1,240,371 |
| 2018 | $140,348 | $900,620 | $0 | $1,040,968 | $1,040,968 |
| 2017 | $141,545 | $900,620 | $0 | $1,042,165 | $1,042,165 |
| 2016 | $143,935 | $900,620 | $0 | $1,044,555 | $1,044,555 |
| 2015 | $146,326 | $750,620 | $0 | $896,946 | $896,946 |
| 2014 | $148,715 | $1,000,620 | $0 | $1,149,335 | $1,149,335 |
| 2013 | $147,478 | $935,952 | $0 | $1,083,430 | $1,083,430 |
| 2012 | $149,799 | $935,952 | $0 | $1,085,751 | $1,085,751 |
| 2011 | $152,120 | $935,952 | $0 | $1,088,072 | $1,088,072 |
| 2010 | $165,505 | $935,952 | $0 | $1,101,457 | $1,101,457 |
| 2009 | $172,753 | $1,243,783 | $0 | $1,416,536 | $1,416,536 |
| 2008 | $172,929 | $1,302,981 | $0 | $1,475,910 | $1,475,910 |
| 2007 | $175,476 | $1,124,952 | $0 | $1,300,428 | $1,300,428 |
Deed and Sales History
| 1 | 07/15/2025 | PRD | Personal Representatives Deed | ESTATE OF SHERI L SAYRE | SHERI SAYRE ARTICLE 5 TRUST FOR SPOUSE | | | $0.00 | 64284 | 4588858 |
| 2 | 01/01/1980 | TRUSTEED | Trustee's Deed | SAYRE, MATT | SAYRE, MATT | | | $0.00 | 0 | 363744 |
| 3 | 12/01/1979 | TRUSTEED | Trustee's Deed | Unknown | SAYRE, MATT | | | $0.00 | 95954 | 363744 |
Payout Agreement
| No payout information available.. |