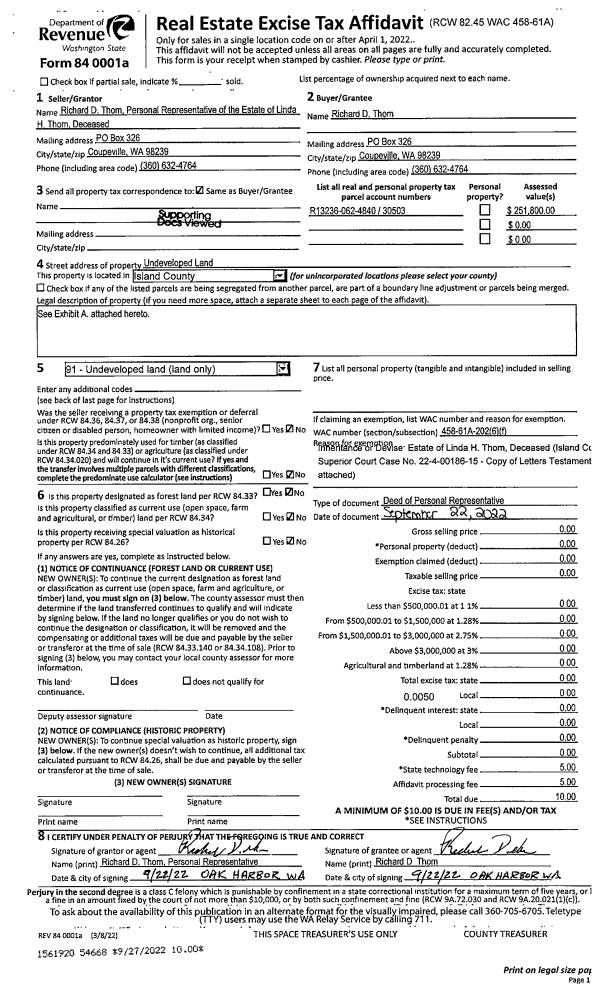
Property
Account |
| Property ID: | 185695 | Abbreviated Legal Description: | BAYWOOD LOT 4 TGW 1/36TH IN E32' L15 DEL MAR VISTA TGW TIDES |
| Geographic ID: | S6090-00-00004-0 | Agent Code: | |
| Type: | Real | | |
| Tax Area: | 710 - APPRAISER-S Whid Schl Dist, outside Langley, improved & 1 acre or less | Land Use Code | 11 |
| Open Space: | N | DFL | N |
| Historic Property: | N | Remodel Property: | N |
| Multi-Family Redevelopment: | N | | |
| Township: | | Section: | |
| Range: | |
Location |
| Address: | 1033 TIMBER LN FREELAND, WA 98249 | Mapsco: | |
| Neighborhood: | Cycle 3 | Map ID: | 306 |
| Neighborhood CD: | 3 |
Owner |
| Name: | BAIRD, JAMES | Owner ID: | 302716 |
| Mailing Address: | KELSEY BAIRD 1033 TIMBER LANE FREELAND, WA 98249 | % Ownership: | 100.0000000000% |
| | | Exemptions: | |
Taxes and Assessment Details
Values
| (+) Improvement Homesite Value: | + | $0 | |
| (+) Improvement Non-Homesite Value: | + | $189,983 | |
| (+) Land Homesite Value: | + | $0 | |
| (+) Land Non-Homesite Value: | + | $160,000 | |
| (+) Curr Use (HS): | + | $0 | $0 |
| (+) Curr Use (NHS): | + | $0 | $0 |
| | | -------------------------- | |
| (=) Market Value: | = | $349,983 | |
| (–) Productivity Loss: | – | $0 | |
| | | -------------------------- | |
| (=) Subtotal: | = | $349,983 | |
| (+) Senior Appraised Value: | + | $0 | |
| (+) Non-Senior Appraised Value: | + | $349,983 | |
| | | -------------------------- | |
| (=) Total Appraised Value: | = | $349,983 | |
| (–) Senior Exemption Loss: | – | $0 | |
| (–) Exemption Loss: | – | $0 | |
| | | -------------------------- | |
| (=) Taxable Value: | = | $349,983 | |
Taxing Jurisdiction
| Owner: | BAIRD, JAMES | | |
| % Ownership: | 100.0000000000% | | |
| Total Value: | $349,983 | | |
| Tax Area: | 710 - APPRAISER-S Whid Schl Dist, outside Langley, improved & 1 acre or less |
| CF | Conservation Futures | 0.0316035091 | $349,983 | $349,983 | $11.06 | | |
| FIRE3 | Fire & Rescue Dist #3 S Whidbey GEN | 1.2004855531 | $349,983 | $349,983 | $420.15 | | |
| HOBOND | Hospital BOND | 0.1910887512 | $349,983 | $349,983 | $66.88 | | |
| HOGEN | Hospital GEN | 0.3902502903 | $349,983 | $349,983 | $136.58 | | |
| CE | County Current Expense | 0.3708482477 | $349,983 | $349,983 | $129.79 | | |
| CR | County Roads | 0.4584763726 | $349,983 | $349,983 | $160.46 | | |
| ISLANDEMS | Hospital GEN (EMS) | 0.5000000000 | $349,983 | $349,983 | $174.99 | | |
| LIB | Library Sno-Isle GEN | 0.3153421757 | $349,983 | $349,983 | $110.36 | | |
| PORTWHID | Port of S Whidbey GEN | 0.1094540357 | $349,983 | $349,983 | $38.31 | | |
| SCH206BOND | School 206 BOND | 0.3161759235 | $349,983 | $349,983 | $110.66 | | |
| SCH206MO | School 206 Enrichment | 0.4547169547 | $349,983 | $349,983 | $159.14 | | |
| ST | State School | 1.3035497053 | $349,983 | $349,983 | $456.22 | | |
| ST2 | State School Part 2 | 0.8169543533 | $349,983 | $349,983 | $285.92 | | |
| SWHIDPRBD | P & R S Whidbey BOND | 0.0152817568 | $349,983 | $349,983 | $5.35 | | |
| SWHIDPRBD2 | P & R S Whidbey BOND2 | 0.0138911264 | $349,983 | $349,983 | $4.86 | | |
| SWHIDPRMT | P & R S Whidbey GEN | 0.2053334452 | $349,983 | $349,983 | $71.86 | | |
| | Total Tax Rate: | 6.6934522006 | | | | | |
| | | | | Taxes w/Current Exemptions: | $2,342.59 | | |
| | | | | Taxes w/o Exemptions: | $2,342.59 | | |
Improvement / Building
| Improvement #1: | MANUFACTURED HOME | State Code: | Y | 1296.0 sqft | Value: | $189,983 |
| Bathrooms: | 0 | Bedrooms: | 0 | | Ceiling: | PLASTER PAINTED | Cooling: | EVAP NO DUCT | | Exterior Wall/Cover: | VINYL | Floor Covering: | CARPET 100% | | Floor Structure: | SLAB ON GRADE | Foundation: | SLAB | | Heating: | FHA ELECTRIC | Interior Finish: | PLASTER | | Plumbing Fixture Cnt: | 1 | Roof Slope: | FLAT | | Roof Structure/Cover: | CJ ALUMINIUM HEAVY |   |   |
|
| | Type | Description | Class CD | Sub Class CD | Year Built | Area |
| | BAS | BASE/MAIN FLOOR | 4 | 0 | 1992 | 1296.0 |
| | OWP | OPEN WOOD PORCH W/STEPS | 4 | 0 | 1992 | 96.0 |
| | OWR | OPEN WOOD PORCH W/STEPS/ROOF | 4 | 0 | 1992 | 64.0 |
Sketch
Property Image
Land
| 1 | 14 | SQ (08001-12000) | 0.0000 | 0.00 | 0.00 | 0.00 | 1.00 | $160,000 | $0 |
Roll Value History
| 2026 | N/A | N/A | N/A | N/A | N/A |
| 2025 | $189,983 | $160,000 | $0 | $349,983 | $349,983 |
| 2024 | $192,648 | $140,000 | $0 | $332,648 | $332,648 |
| 2023 | $195,316 | $120,000 | $0 | $315,316 | $315,316 |
| 2022 | $179,270 | $110,000 | $0 | $289,270 | $289,270 |
| 2021 | $44,750 | $50,000 | $0 | $94,750 | $94,750 |
| 2020 | $45,151 | $50,000 | $0 | $95,151 | $95,151 |
| 2019 | $34,776 | $100,000 | $0 | $134,776 | $134,776 |
| 2018 | $35,935 | $90,000 | $0 | $125,935 | $125,935 |
| 2017 | $37,673 | $70,000 | $0 | $107,673 | $107,673 |
| 2016 | $38,831 | $70,000 | $0 | $108,831 | $108,831 |
| 2015 | $39,990 | $70,000 | $0 | $109,990 | $109,990 |
| 2014 | $41,148 | $59,500 | $0 | $100,648 | $100,648 |
| 2013 | $47,588 | $59,500 | $0 | $107,088 | $107,088 |
| 2012 | $48,747 | $59,500 | $0 | $108,247 | $108,247 |
| 2011 | $49,905 | $70,000 | $0 | $119,905 | $119,905 |
| 2010 | $46,153 | $70,000 | $0 | $116,153 | $116,153 |
| 2009 | $48,723 | $75,000 | $0 | $123,723 | $123,723 |
| 2008 | $50,141 | $80,000 | $0 | $130,141 | $130,141 |
| 2007 | $50,330 | $67,000 | $0 | $117,330 | $117,330 |
Deed and Sales History
| 1 | 01/10/2022 | WD | Warranty Deed | NELSON, JAMES R & SANDY A | BAIRD, JAMES | | | $322,500.00 | 51737 | 4538396 |
| 2 | 08/01/1997 | OTHER | Other - Misc. Documents | NELSON, JAMES R | NELSON, JAMES R | | | $34,027.00 | 72805 | 0 |
| 3 | 08/01/1997 | WD | Warranty Deed | NOLL, PAUL J | NELSON, JAMES R | | | $31,946.00 | 72804 | 97013396 |
| 4 | 04/01/1995 | OTHER | Other - Misc. Documents | NOLL, PAUL J | NOLL, PAUL J | | | $30,000.00 | 51249 | 0 |
| 5 | 07/01/1993 | WD | Warranty Deed | NOLL, PAUL J | NOLL, PAUL J | | | $28,700.00 | 32889 | 93014809 |
| 6 | 07/01/1993 | QCD | Quit Claim Deed | ANDERSON, MILDRED L | NOLL, PAUL J | | | $0.00 | 32890 | 93014810 |
| 7 | 03/01/1993 | QCD | Quit Claim Deed | ANDERSON, MILDRED L | ANDERSON, MILDRED L | | | $0.00 | 30788 | 93004072 |
| 8 | 10/01/1988 | OTHER | Other - Misc. Documents | NELSON, MILDRED E | ANDERSON, MILDRED L | | | $0.00 | 62887 | 0 |
| 9 | 01/01/1988 | WD | Warranty Deed | STIER, CHARLES L | NELSON, MILDRED E | | | $16,100.00 | 80314 | 88001361 |
| 10 | 08/01/1985 | WD | Warranty Deed | MANNING, IRVING | STIER, CHARLES L | | | $20,000.00 | 52897 | 85011470 |
| 11 | 12/01/1983 | WD | Warranty Deed | BUCKINGER, LEW | MANNING, IRVING | | | $25,000.00 | 33746 | 419179 |
| 12 | 01/01/1900 | OTHER | Other - Misc. Documents | Unknown | BUCKINGER, LEW | | | $0.00 | 0 | 0 |
Payout Agreement
| No payout information available.. |