Property
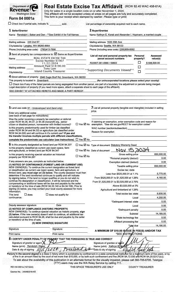
Account |
| Property ID: | 18572 | Abbreviated Legal Description: | 60 - IN GL2: BG PT 515.3'S & 119.8'W OF SWCR FREUND DC S198.5' E1107.8' M/L TO ML N6*W199.9' W1086.9' M/L TPB EX S100' ALSO EX PT LY W OF RD TGW & SUB EZ AF#89002393 |
| Geographic ID: | R13210-298-4030 | Agent Code: | |
| Type: | Real | | |
| Tax Area: | 100 - APPRAISER-OH Schl Dist, in OH | Land Use Code | 11 |
| Open Space: | N | DFL | N |
| Historic Property: | N | Remodel Property: | N |
| Multi-Family Redevelopment: | N | | |
| Township: | 32 | Section: | 10 |
| Range: | R1 |
Location |
| Address: | 2720 SW SCENIC HEIGHTS ST OAK HARBOR, WA 98277 | Mapsco: | |
| Neighborhood: | Cycle 1 | Map ID: | 119 |
| Neighborhood CD: | 1 |
Owner |
| Name: | HORROBIN, MICHAEL E | Owner ID: | 76178 |
| Mailing Address: | CATHY L HORROBIN 2720 SW SCENIC HEIGHTS ST OAK HARBOR, WA 98277-8150 | % Ownership: | 100.0000000000% |
| | | Exemptions: | |
Taxes and Assessment Details
Values
| (+) Improvement Homesite Value: | + | $0 | |
| (+) Improvement Non-Homesite Value: | + | $722,897 | |
| (+) Land Homesite Value: | + | $0 | |
| (+) Land Non-Homesite Value: | + | $525,000 | |
| (+) Curr Use (HS): | + | $0 | $0 |
| (+) Curr Use (NHS): | + | $0 | $0 |
| | | -------------------------- | |
| (=) Market Value: | = | $1,247,897 | |
| (–) Productivity Loss: | – | $0 | |
| | | -------------------------- | |
| (=) Subtotal: | = | $1,247,897 | |
| (+) Senior Appraised Value: | + | $0 | |
| (+) Non-Senior Appraised Value: | + | $1,247,897 | |
| | | -------------------------- | |
| (=) Total Appraised Value: | = | $1,247,897 | |
| (–) Senior Exemption Loss: | – | $0 | |
| (–) Exemption Loss: | – | $0 | |
| | | -------------------------- | |
| (=) Taxable Value: | = | $1,247,897 | |
Taxing Jurisdiction
| Owner: | HORROBIN, MICHAEL E | | |
| % Ownership: | 100.0000000000% | | |
| Total Value: | $1,247,897 | | |
| Tax Area: | 100 - APPRAISER-OH Schl Dist, in OH |
| CF | Conservation Futures | 0.0316035091 | $1,247,897 | $1,247,897 | $39.44 | | |
| CEM1 | Cemetery #1 | 0.0040320932 | $1,247,897 | $1,247,897 | $5.03 | | |
| COH | City of Oak Harbor | 2.3001546061 | $1,247,897 | $1,247,897 | $2,870.36 | | |
| OAKBOND | City of Oak Harbor BOND | 0.1926904192 | $1,247,897 | $1,247,897 | $240.46 | | |
| HOBOND | Hospital BOND | 0.1910887512 | $1,247,897 | $1,247,897 | $238.46 | | |
| HOGEN | Hospital GEN | 0.3902502903 | $1,247,897 | $1,247,897 | $486.99 | | |
| CE | County Current Expense | 0.3708482477 | $1,247,897 | $1,247,897 | $462.78 | | |
| ISLANDEMS | Hospital GEN (EMS) | 0.5000000000 | $1,247,897 | $1,247,897 | $623.95 | | |
| LIB | Library Sno-Isle GEN | 0.3153421757 | $1,247,897 | $1,247,897 | $393.51 | | |
| NWHIDPRMT | P & R N Whidbey GEN | 0.2004466701 | $1,247,897 | $1,247,897 | $250.14 | | |
| SCH201MO | School 201 Enrichment | 1.8559231640 | $1,247,897 | $1,247,897 | $2,316.00 | | |
| ST | State School | 1.3035497053 | $1,247,897 | $1,247,897 | $1,626.70 | | |
| ST2 | State School Part 2 | 0.8169543533 | $1,247,897 | $1,247,897 | $1,019.47 | | |
| | Total Tax Rate: | 8.4728839852 | | | | | |
| | | | | Taxes w/Current Exemptions: | $10,573.29 | | |
| | | | | Taxes w/o Exemptions: | $10,573.29 | | |
Improvement / Building
| Improvement #1: | RESIDENTIAL | State Code: | Y | 3879.0 sqft | Value: | $722,897 |
| Bathrooms: | 3.5 | Bedrooms: | 2 | | Ceiling: | DRY WALL SPRAYED | Exterior Wall/Cover: | STUCCO | | Floor Covering: | CERAMIC TILE/CPT 40-60 | Floor Structure: | WOOD W/SUBFLOOR | | Foundation: | CONCRETE | Heating: | FHA OIL | | Interior Finish: | DRYWALL PAINT | Plumbing Fixture Cnt: | 19 | | Roof Slope: | 8" IN 12" | Roof Structure/Cover: | CJ ASPHALT |
|
| | Type | Description | Class CD | Sub Class CD | Year Built | Area |
| | BAS | BASE/MAIN FLOOR | 5 | 0 | 1950 | 2299.0 |
| | OP1 | OPEN PORCH SLAB | 5 | 0 | 1950 | 318.0 |
| | OP4 | OPEN PORCH W/CEILING-ROOF | 5 | 0 | 1950 | 94.0 |
| | BIG | BUILT IN GARAGE | 5 | 0 | 1950 | 727.5 |
| | OWP | OPEN WOOD PORCH W/STEPS | 5 | 0 | 1950 | 440.0 |
| | OWP | OPEN WOOD PORCH W/STEPS | 5 | 0 | 1950 | 369.7 |
| | UPH | HALF STORY | 5 | 0 | 1950 | 520.0 |
| | DWN | DOWNSTAIRS LIVING AREA | 5 | 0 | 1950 | 1060.0 |
| | OWP | OPEN WOOD PORCH W/STEPS | 5 | 0 | 1950 | 144.0 |
| | OWP | OPEN WOOD PORCH W/STEPS | 5 | 0 | 1950 | 480.0 |
Sketch
Property Image
Land
| 1 | HB | HIGH BLUFF | 0.0000 | 0.00 | 100.00 | 0.00 | 1.00 | $525,000 | $0 |
Roll Value History
| 2026 | N/A | N/A | N/A | N/A | N/A |
| 2025 | $722,897 | $525,000 | $0 | $1,247,897 | $1,247,897 |
| 2024 | $731,580 | $500,000 | $0 | $1,231,580 | $1,231,580 |
| 2023 | $767,023 | $500,000 | $0 | $1,267,023 | $1,267,023 |
| 2022 | $703,091 | $450,000 | $0 | $1,153,091 | $1,153,091 |
| 2021 | $618,824 | $350,000 | $0 | $968,824 | $968,824 |
| 2020 | $603,051 | $350,000 | $0 | $953,051 | $953,051 |
| 2019 | $524,447 | $325,000 | $0 | $849,447 | $849,447 |
| 2018 | $525,984 | $250,000 | $0 | $775,984 | $775,984 |
| 2017 | $504,616 | $250,000 | $0 | $754,616 | $754,616 |
| 2016 | $510,802 | $250,000 | $0 | $760,802 | $760,802 |
| 2015 | $516,989 | $250,000 | $0 | $766,989 | $766,989 |
| 2014 | $523,173 | $250,000 | $0 | $773,173 | $773,173 |
| 2013 | $529,363 | $247,324 | $0 | $776,687 | $776,687 |
| 2012 | $535,549 | $247,324 | $0 | $782,873 | $782,873 |
| 2011 | $580,400 | $247,324 | $0 | $827,724 | $827,724 |
| 2010 | $595,214 | $247,324 | $0 | $842,538 | $842,538 |
| 2009 | $601,550 | $309,155 | $0 | $910,705 | $910,705 |
| 2008 | $609,640 | $358,619 | $0 | $968,259 | $968,259 |
| 2007 | $617,605 | $358,619 | $0 | $976,224 | $976,224 |
Deed and Sales History
| 1 | 04/20/2000 | WD | Warranty Deed | FORMAN, DAVE | HORROBIN, MICHAEL E | | | $288,400.00 | 1405 | 20006918 |
| 2 | 02/01/1989 | WD | Warranty Deed | WOOLWORTH, DEVELOPMENT I | FORMAN, DAVE | | | $110,000.00 | 90684 | 89002395 |
| 3 | 08/01/1986 | WD | Warranty Deed | GORDON, ALICE S | WOOLWORTH, DEVELOPMENT I | | | $79,800.00 | 62412 | 86010901 |
| 4 | 08/01/1961 | TRUSTEED | Trustee's Deed | LUECK, BERNARD | GORDON, ALICE S | | | $0.00 | 10271 | 0 |
| 5 | 01/01/1900 | OTHER | Other - Misc. Documents | Unknown | LUECK, BERNARD | | | $0.00 | 0 | 0 |
Payout Agreement
| No payout information available.. |