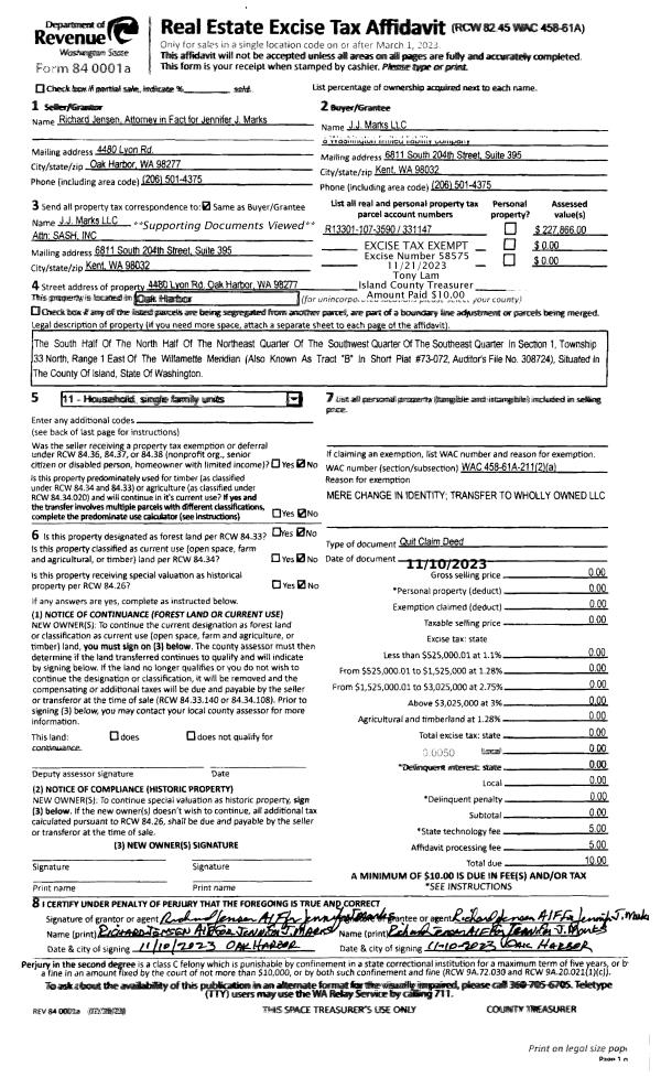
Property
Account |
| Property ID: | 185748 | Abbreviated Legal Description: | BAYWOOD LOTS 8 & 9 COMB 3/95 TGW 2/36 INT E32'LOT 15 DEL MAR VISTA TGW TIDES |
| Geographic ID: | S6090-00-00009-0 | Agent Code: | |
| Type: | Real | | |
| Tax Area: | 710 - APPRAISER-S Whid Schl Dist, outside Langley, improved & 1 acre or less | Land Use Code | 11 |
| Open Space: | N | DFL | N |
| Historic Property: | N | Remodel Property: | N |
| Multi-Family Redevelopment: | N | | |
| Township: | | Section: | |
| Range: | |
Location |
| Address: | 1055 TIMBER LN FREELAND, WA 98249 | Mapsco: | |
| Neighborhood: | Cycle 3 | Map ID: | 306 |
| Neighborhood CD: | 3 |
Owner |
| Name: | CLEMMONS, CHRISCEDA | Owner ID: | 303248 |
| Mailing Address: | 206 25TH AVE SEATTLE, WA 98122 | % Ownership: | 100.0000000000% |
| | | Exemptions: | |
Taxes and Assessment Details
Values
| (+) Improvement Homesite Value: | + | $0 | |
| (+) Improvement Non-Homesite Value: | + | $10,337 | |
| (+) Land Homesite Value: | + | $0 | |
| (+) Land Non-Homesite Value: | + | $80,000 | |
| (+) Curr Use (HS): | + | $0 | $0 |
| (+) Curr Use (NHS): | + | $0 | $0 |
| | | -------------------------- | |
| (=) Market Value: | = | $90,337 | |
| (–) Productivity Loss: | – | $0 | |
| | | -------------------------- | |
| (=) Subtotal: | = | $90,337 | |
| (+) Senior Appraised Value: | + | $0 | |
| (+) Non-Senior Appraised Value: | + | $90,337 | |
| | | -------------------------- | |
| (=) Total Appraised Value: | = | $90,337 | |
| (–) Senior Exemption Loss: | – | $0 | |
| (–) Exemption Loss: | – | $0 | |
| | | -------------------------- | |
| (=) Taxable Value: | = | $90,337 | |
Taxing Jurisdiction
| Owner: | CLEMMONS, CHRISCEDA | | |
| % Ownership: | 100.0000000000% | | |
| Total Value: | $90,337 | | |
| Tax Area: | 710 - APPRAISER-S Whid Schl Dist, outside Langley, improved & 1 acre or less |
| CF | Conservation Futures | 0.0316035091 | $90,337 | $90,337 | $2.85 | | |
| FIRE3 | Fire & Rescue Dist #3 S Whidbey GEN | 1.2004855531 | $90,337 | $90,337 | $108.45 | | |
| HOBOND | Hospital BOND | 0.1910887512 | $90,337 | $90,337 | $17.26 | | |
| HOGEN | Hospital GEN | 0.3902502903 | $90,337 | $90,337 | $35.25 | | |
| CE | County Current Expense | 0.3708482477 | $90,337 | $90,337 | $33.50 | | |
| CR | County Roads | 0.4584763726 | $90,337 | $90,337 | $41.42 | | |
| ISLANDEMS | Hospital GEN (EMS) | 0.5000000000 | $90,337 | $90,337 | $45.17 | | |
| LIB | Library Sno-Isle GEN | 0.3153421757 | $90,337 | $90,337 | $28.49 | | |
| PORTWHID | Port of S Whidbey GEN | 0.1094540357 | $90,337 | $90,337 | $9.89 | | |
| SCH206BOND | School 206 BOND | 0.3161759235 | $90,337 | $90,337 | $28.56 | | |
| SCH206MO | School 206 Enrichment | 0.4547169547 | $90,337 | $90,337 | $41.08 | | |
| ST | State School | 1.3035497053 | $90,337 | $90,337 | $117.76 | | |
| ST2 | State School Part 2 | 0.8169543533 | $90,337 | $90,337 | $73.80 | | |
| SWHIDPRBD | P & R S Whidbey BOND | 0.0152817568 | $90,337 | $90,337 | $1.38 | | |
| SWHIDPRBD2 | P & R S Whidbey BOND2 | 0.0138911264 | $90,337 | $90,337 | $1.25 | | |
| SWHIDPRMT | P & R S Whidbey GEN | 0.2053334452 | $90,337 | $90,337 | $18.55 | | |
| | Total Tax Rate: | 6.6934522006 | | | | | |
| | | | | Taxes w/Current Exemptions: | $604.66 | | |
| | | | | Taxes w/o Exemptions: | $604.66 | | |
Improvement / Building
| Improvement #1: | RESIDENTIAL | State Code: | Y | 0.0 sqft | Value: | $10,337 |
| | Type | Description | Class CD | Sub Class CD | Year Built | Area |
| | UTY | STORAGE/UTILITY | 3 | 0 | 1995 | 280.0 |
| | UTY | STORAGE/UTILITY | 3 | 0 | 1995 | 216.0 |
| | OCP | OPEN CARPORT | 3 | 0 | 1995 | 308.0 |
| | OWP | OPEN WOOD PORCH W/STEPS | 3 | 0 | 1995 | 64.0 |
| | oSEP | SEPTIC | 3 | 0 | 1995 | 64.0 |
Sketch
Property Image
Land
| 1 | 15 | SQ (12001-21780) | 0.0000 | 0.00 | 0.00 | 0.00 | 1.00 | $80,000 | $0 |
Roll Value History
| 2026 | N/A | N/A | N/A | N/A | N/A |
| 2025 | $10,337 | $80,000 | $0 | $90,337 | $90,337 |
| 2024 | $10,337 | $70,000 | $0 | $80,337 | $80,337 |
| 2023 | $10,337 | $70,000 | $0 | $80,337 | $80,337 |
| 2022 | $29,296 | $110,000 | $0 | $139,296 | $139,296 |
| 2021 | $26,817 | $50,000 | $0 | $76,817 | $76,817 |
| 2020 | $26,901 | $50,000 | $0 | $76,901 | $16,901 |
| 2019 | $31,619 | $100,000 | $0 | $131,619 | $33,968 |
| 2018 | $32,188 | $90,000 | $0 | $122,188 | $33,968 |
| 2017 | $32,758 | $70,000 | $0 | $102,758 | $33,968 |
| 2016 | $33,328 | $70,000 | $0 | $103,328 | $33,968 |
| 2015 | $33,898 | $70,000 | $0 | $103,898 | $33,968 |
| 2014 | $34,468 | $59,500 | $0 | $93,968 | $43,968 |
| 2013 | $40,883 | $59,500 | $0 | $100,383 | $50,383 |
| 2012 | $41,453 | $59,500 | $0 | $100,953 | $50,953 |
| 2011 | $42,023 | $70,000 | $0 | $112,023 | $43,913 |
| 2010 | $39,783 | $70,000 | $0 | $109,783 | $43,913 |
| 2009 | $41,695 | $75,000 | $0 | $116,695 | $116,695 |
| 2008 | $42,894 | $80,000 | $0 | $122,894 | $122,894 |
| 2007 | $48,881 | $67,000 | $0 | $115,881 | $115,881 |
Deed and Sales History
| 1 | 02/18/2022 | WD | Warranty Deed | STOWE JR, DON V | CLEMMONS, CHRISCEDA | | | $105,000.00 | 52033 | 4540095 |
| 2 | 03/01/1995 | QCD | Quit Claim Deed | STOWE, DON V | STOWE, DON V | | | $0.00 | 50833 | 95004116 |
| 3 | 03/01/1995 | OTHER | Other - Misc. Documents | KEATING, W C | STOWE, DON V | | | $0.00 | 66322 | 95004123 |
| 4 | 07/01/1994 | QCD | Quit Claim Deed | KEATING, DORMAN W | KEATING, W C | | | $0.00 | 50832 | 95004115 |
| 5 | 09/01/1989 | QCD | Quit Claim Deed | STOWE, DON V | KEATING, DORMAN W | | | $0.00 | 93872 | 89012930 |
| 6 | 10/01/1988 | QCD | Quit Claim Deed | STOWE, DON V | STOWE, DON V | | | $0.00 | 83947 | 88014784 |
| 7 | 09/01/1988 | QCD | Quit Claim Deed | STOWE, DON V | STOWE, DON V | | | $1,000.00 | 83110 | 88011550 |
| 8 | 09/01/1988 | PRD | Personal Representatives Deed | STOWE, DON V | STOWE, DON V | | | $0.00 | 83112 | 88011552 |
| 9 | 01/01/1900 | OTHER | Other - Misc. Documents | Unknown | STOWE, DON V | | | $0.00 | 0 | 0 |
Payout Agreement
| No payout information available.. |