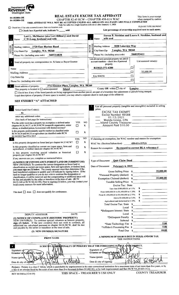
Property
Account |
| Property ID: | 186122 | Abbreviated Legal Description: | BAYVIEW WEST CONDO: APT A-303 2.304% INT IN BLDG |
| Geographic ID: | S6092-00-0A303-0 | Agent Code: | |
| Type: | Real | | |
| Tax Area: | 100 - APPRAISER-OH Schl Dist, in OH | Land Use Code | 14 |
| Open Space: | N | DFL | N |
| Historic Property: | N | Remodel Property: | N |
| Multi-Family Redevelopment: | N | | |
| Township: | | Section: | |
| Range: | |
Location |
| Address: | 270 SE BARRINGTON DR BLDG C UNIT 302 OAK HARBOR, WA 98277 | Mapsco: | |
| Neighborhood: | 12*OH-bayview wst | Map ID: | 86 |
| Neighborhood CD: | 12*OHbyvwt |
Owner |
| Name: | HERNANDEZ, IMALAY PAGAN | Owner ID: | 297134 |
| Mailing Address: | 170 PARKER CT PEARL CITY, HI 96782-3401 | % Ownership: | 100.0000000000% |
| | | Exemptions: | |
Taxes and Assessment Details
Values
| (+) Improvement Homesite Value: | + | $0 | |
| (+) Improvement Non-Homesite Value: | + | $154,721 | |
| (+) Land Homesite Value: | + | $0 | |
| (+) Land Non-Homesite Value: | + | $110,000 | |
| (+) Curr Use (HS): | + | $0 | $0 |
| (+) Curr Use (NHS): | + | $0 | $0 |
| | | -------------------------- | |
| (=) Market Value: | = | $264,721 | |
| (–) Productivity Loss: | – | $0 | |
| | | -------------------------- | |
| (=) Subtotal: | = | $264,721 | |
| (+) Senior Appraised Value: | + | $0 | |
| (+) Non-Senior Appraised Value: | + | $264,721 | |
| | | -------------------------- | |
| (=) Total Appraised Value: | = | $264,721 | |
| (–) Senior Exemption Loss: | – | $0 | |
| (–) Exemption Loss: | – | $0 | |
| | | -------------------------- | |
| (=) Taxable Value: | = | $264,721 | |
Taxing Jurisdiction
| Owner: | HERNANDEZ, IMALAY PAGAN | | |
| % Ownership: | 100.0000000000% | | |
| Total Value: | $264,721 | | |
| Tax Area: | 100 - APPRAISER-OH Schl Dist, in OH |
| CF | Conservation Futures | 0.0316035091 | $264,721 | $264,721 | $8.37 | | |
| CEM1 | Cemetery #1 | 0.0040320932 | $264,721 | $264,721 | $1.07 | | |
| COH | City of Oak Harbor | 2.3001546061 | $264,721 | $264,721 | $608.90 | | |
| OAKBOND | City of Oak Harbor BOND | 0.1926904192 | $264,721 | $264,721 | $51.01 | | |
| HOBOND | Hospital BOND | 0.1910887512 | $264,721 | $264,721 | $50.59 | | |
| HOGEN | Hospital GEN | 0.3902502903 | $264,721 | $264,721 | $103.31 | | |
| CE | County Current Expense | 0.3708482477 | $264,721 | $264,721 | $98.17 | | |
| ISLANDEMS | Hospital GEN (EMS) | 0.5000000000 | $264,721 | $264,721 | $132.36 | | |
| LIB | Library Sno-Isle GEN | 0.3153421757 | $264,721 | $264,721 | $83.48 | | |
| NWHIDPRMT | P & R N Whidbey GEN | 0.2004466701 | $264,721 | $264,721 | $53.06 | | |
| SCH201MO | School 201 Enrichment | 1.8559231640 | $264,721 | $264,721 | $491.30 | | |
| ST | State School | 1.3035497053 | $264,721 | $264,721 | $345.08 | | |
| ST2 | State School Part 2 | 0.8169543533 | $264,721 | $264,721 | $216.26 | | |
| | Total Tax Rate: | 8.4728839852 | | | | | |
| | | | | Taxes w/Current Exemptions: | $2,242.96 | | |
| | | | | Taxes w/o Exemptions: | $2,242.96 | | |
Improvement / Building
| Improvement #1: | RESIDENTIAL | State Code: | Y | 961.6 sqft | Value: | $154,721 |
| Bathrooms: | 1 | Bedrooms: | 2 | | Ceiling: | DRY WALL SPRAYED | Exterior Wall/Cover: | WOOD SIDING | | Floor Covering: | CARPET/VINYL 80-20 | Floor Structure: | WOOD W/SUBFLOOR | | Foundation: | CONCRETE | Heating: | FHA GAS | | Interior Finish: | DRYWALL PAINT | Plumbing Fixture Cnt: | 6 | | Roof Slope: | 4" IN 12" | Roof Structure/Cover: | CJ ASPHALT |
|
| | Type | Description | Class CD | Sub Class CD | Year Built | Area |
| | BAS | BASE/MAIN FLOOR | 3 | 0 | 1978 | 961.6 |
| | OWR | OPEN WOOD PORCH W/STEPS/ROOF | 3 | 0 | 1978 | 66.0 |
| | OWP | OPEN WOOD PORCH W/STEPS | 3 | 0 | 1978 | 52.0 |
| | oPV2 | PV/ASPH 3" | 3 | 0 | 1978 | 0.0 |
| | oUTI | UTILITY | 3 | 0 | 1978 | 0.0 |
Sketch
Property Image
Land
| 1 | 61 | MULTIPLE RESIDENCES | 0.0472 | 2055.00 | 0.00 | 0.00 | 1.00 | $110,000 | $0 |
Roll Value History
| 2026 | N/A | N/A | N/A | N/A | N/A |
| 2025 | $154,721 | $110,000 | $0 | $264,721 | $264,721 |
| 2024 | $156,813 | $100,000 | $0 | $256,813 | $256,813 |
| 2023 | $145,810 | $85,000 | $0 | $230,810 | $230,810 |
| 2022 | $134,020 | $80,000 | $0 | $214,020 | $214,020 |
| 2021 | $118,314 | $50,000 | $0 | $168,314 | $168,314 |
| 2020 | $115,486 | $32,000 | $0 | $147,486 | $147,486 |
| 2019 | $83,149 | $60,000 | $0 | $143,149 | $143,149 |
| 2018 | $83,429 | $65,000 | $0 | $148,429 | $148,429 |
| 2017 | $70,218 | $31,515 | $0 | $101,733 | $101,733 |
| 2016 | $71,288 | $31,515 | $0 | $102,803 | $102,803 |
| 2015 | $72,358 | $31,515 | $0 | $103,873 | $103,873 |
| 2014 | $70,905 | $31,515 | $0 | $102,420 | $102,420 |
| 2013 | $71,969 | $31,515 | $0 | $103,484 | $103,484 |
| 2012 | $75,837 | $31,515 | $0 | $107,352 | $107,352 |
| 2011 | $75,837 | $31,515 | $0 | $107,352 | $107,352 |
| 2010 | $75,256 | $24,414 | $0 | $99,670 | $99,670 |
| 2009 | $78,452 | $42,020 | $0 | $120,472 | $120,472 |
| 2008 | $79,445 | $26,263 | $0 | $105,708 | $105,708 |
| 2007 | $80,438 | $26,263 | $0 | $106,701 | $106,701 |
Deed and Sales History
| 1 | 10/02/2020 | WD | Warranty Deed | GELLER, SUZANNE | HERNANDEZ, IMALAY PAGAN | | | $182,000.00 | 45300 | 4499891 |
| 2 | 03/15/2017 | WD | Warranty Deed | NASH, GAYLE M | GELLER, SUZANNE | | | $125,000.00 | 28488 | 4419035 |
| 3 | 01/01/1987 | WD | Warranty Deed | GAMBIT, CAROL A | NASH, GAYLE M | | | $40,500.00 | 70117 | 87000820 |
| 4 | 12/01/1984 | OTHER | Other - Misc. Documents | DYKSTRA, JOHN T | GAMBIT, CAROL A | | | $0.00 | 60957 | 0 |
| 5 | 12/01/1984 | QCD | Quit Claim Deed | WOLLE, CAROL A | DYKSTRA, JOHN T | | | $0.00 | 50049 | 85000211 |
| 6 | 10/01/1983 | QCD | Quit Claim Deed | WOLLE, ROBERT A | WOLLE, CAROL A | | | $0.00 | 33161 | 416789 |
| 7 | 09/01/1981 | WD | Warranty Deed | GAMBIT, JOSEPH L | WOLLE, ROBERT A | | | $43,500.00 | 12825 | 387682 |
| 8 | 08/01/1979 | WD | Warranty Deed | DOZIER, CARLA B | GAMBIT, JOSEPH L | | | $39,950.00 | 93936 | 357059 |
| 9 | 08/01/1978 | OTHER | Other - Misc. Documents | Unknown | DOZIER, CARLA B | | | $32,000.00 | 84075 | 339557 |
Payout Agreement
| No payout information available.. |