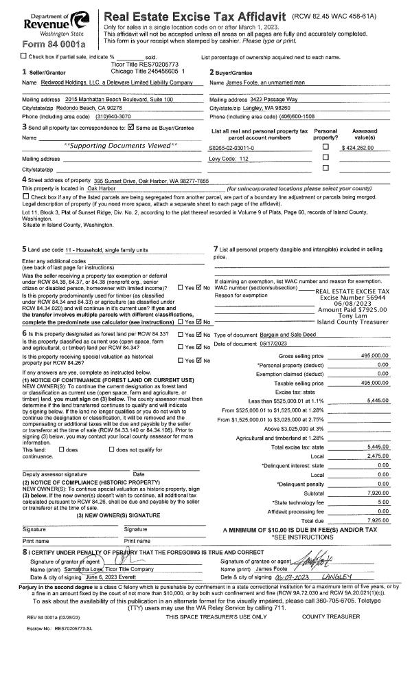
Property
Account |
| Property ID: | 186168 | Abbreviated Legal Description: | BAYVIEW WEST CONDO APT B-103 2.304% INT IN BLDG |
| Geographic ID: | S6092-00-0B103-0 | Agent Code: | |
| Type: | Real | | |
| Tax Area: | 100 - APPRAISER-OH Schl Dist, in OH | Land Use Code | 14 |
| Open Space: | N | DFL | N |
| Historic Property: | N | Remodel Property: | N |
| Multi-Family Redevelopment: | N | | |
| Township: | | Section: | |
| Range: | |
Location |
| Address: | 270 SE BARRINGTON DR BLDG B UNIT 104 OAK HARBOR, WA 98277 | Mapsco: | |
| Neighborhood: | 12*OH-bayview wst | Map ID: | 86 |
| Neighborhood CD: | 12*OHbyvwt |
Owner |
| Name: | OJEDA, TYLER | Owner ID: | 311472 |
| Mailing Address: | 270 SOUTHEAST BARRINGTON DR OAK HARBOR, WA 98277 | % Ownership: | 100.0000000000% |
| | | Exemptions: | |
Taxes and Assessment Details
Values
| (+) Improvement Homesite Value: | + | $0 | |
| (+) Improvement Non-Homesite Value: | + | $154,111 | |
| (+) Land Homesite Value: | + | $0 | |
| (+) Land Non-Homesite Value: | + | $110,000 | |
| (+) Curr Use (HS): | + | $0 | $0 |
| (+) Curr Use (NHS): | + | $0 | $0 |
| | | -------------------------- | |
| (=) Market Value: | = | $264,111 | |
| (–) Productivity Loss: | – | $0 | |
| | | -------------------------- | |
| (=) Subtotal: | = | $264,111 | |
| (+) Senior Appraised Value: | + | $0 | |
| (+) Non-Senior Appraised Value: | + | $264,111 | |
| | | -------------------------- | |
| (=) Total Appraised Value: | = | $264,111 | |
| (–) Senior Exemption Loss: | – | $0 | |
| (–) Exemption Loss: | – | $0 | |
| | | -------------------------- | |
| (=) Taxable Value: | = | $264,111 | |
Taxing Jurisdiction
| Owner: | OJEDA, TYLER | | |
| % Ownership: | 100.0000000000% | | |
| Total Value: | $264,111 | | |
| Tax Area: | 100 - APPRAISER-OH Schl Dist, in OH |
| CF | Conservation Futures | 0.0316035091 | $264,111 | $264,111 | $8.35 | | |
| CEM1 | Cemetery #1 | 0.0040320932 | $264,111 | $264,111 | $1.06 | | |
| COH | City of Oak Harbor | 2.3001546061 | $264,111 | $264,111 | $607.50 | | |
| OAKBOND | City of Oak Harbor BOND | 0.1926904192 | $264,111 | $264,111 | $50.89 | | |
| HOBOND | Hospital BOND | 0.1910887512 | $264,111 | $264,111 | $50.47 | | |
| HOGEN | Hospital GEN | 0.3902502903 | $264,111 | $264,111 | $103.07 | | |
| CE | County Current Expense | 0.3708482477 | $264,111 | $264,111 | $97.95 | | |
| ISLANDEMS | Hospital GEN (EMS) | 0.5000000000 | $264,111 | $264,111 | $132.06 | | |
| LIB | Library Sno-Isle GEN | 0.3153421757 | $264,111 | $264,111 | $83.29 | | |
| NWHIDPRMT | P & R N Whidbey GEN | 0.2004466701 | $264,111 | $264,111 | $52.94 | | |
| SCH201MO | School 201 Enrichment | 1.8559231640 | $264,111 | $264,111 | $490.17 | | |
| ST | State School | 1.3035497053 | $264,111 | $264,111 | $344.28 | | |
| ST2 | State School Part 2 | 0.8169543533 | $264,111 | $264,111 | $215.77 | | |
| | Total Tax Rate: | 8.4728839852 | | | | | |
| | | | | Taxes w/Current Exemptions: | $2,237.80 | | |
| | | | | Taxes w/o Exemptions: | $2,237.80 | | |
Improvement / Building
| Improvement #1: | RESIDENTIAL | State Code: | Y | 961.6 sqft | Value: | $154,111 |
| Bathrooms: | 1 | Bedrooms: | 2 | | Ceiling: | DRY WALL SPRAYED | Exterior Wall/Cover: | WOOD SIDING | | Floor Covering: | CARPET/VINYL 80-20 | Floor Structure: | WOOD W/SUBFLOOR | | Foundation: | CONCRETE | Heating: | FHA GAS | | Interior Finish: | DRYWALL PAINT | Plumbing Fixture Cnt: | 6 | | Roof Slope: | 4" IN 12" | Roof Structure/Cover: | CJ ASPHALT |
|
| | Type | Description | Class CD | Sub Class CD | Year Built | Area |
| | BAS | BASE/MAIN FLOOR | 3 | 0 | 1978 | 961.6 |
| | OP1 | OPEN PORCH SLAB | 3 | 0 | 1978 | 73.5 |
| | OP4 | OPEN PORCH W/CEILING-ROOF | 3 | 0 | 1978 | 64.0 |
| | oPV2 | PV/ASPH 3" | 3 | 0 | 1978 | 0.0 |
| | oUTI | UTILITY | 3 | 0 | 1978 | 0.0 |
Sketch
Property Image
Land
| 1 | 61 | MULTIPLE RESIDENCES | 0.0472 | 2055.00 | 0.00 | 0.00 | 1.00 | $110,000 | $0 |
Roll Value History
| 2026 | N/A | N/A | N/A | N/A | N/A |
| 2025 | $154,111 | $110,000 | $0 | $264,111 | $264,111 |
| 2024 | $156,197 | $100,000 | $0 | $256,197 | $256,197 |
| 2023 | $145,226 | $85,000 | $0 | $230,226 | $230,226 |
| 2022 | $133,472 | $80,000 | $0 | $213,472 | $213,472 |
| 2021 | $117,814 | $50,000 | $0 | $167,814 | $167,814 |
| 2020 | $114,994 | $32,000 | $0 | $146,994 | $146,994 |
| 2019 | $82,758 | $60,000 | $0 | $142,758 | $142,758 |
| 2018 | $83,037 | $65,000 | $0 | $148,037 | $148,037 |
| 2017 | $71,078 | $31,515 | $0 | $102,593 | $102,593 |
| 2016 | $72,161 | $31,515 | $0 | $103,676 | $103,676 |
| 2015 | $73,244 | $31,515 | $0 | $104,759 | $104,759 |
| 2014 | $71,771 | $31,515 | $0 | $103,286 | $103,286 |
| 2013 | $72,847 | $31,515 | $0 | $104,362 | $104,362 |
| 2012 | $75,605 | $31,515 | $0 | $107,120 | $107,120 |
| 2011 | $75,605 | $31,515 | $0 | $107,120 | $107,120 |
| 2010 | $75,034 | $24,414 | $0 | $99,448 | $99,448 |
| 2009 | $78,220 | $42,020 | $0 | $120,240 | $120,240 |
| 2008 | $79,210 | $26,263 | $0 | $105,473 | $105,473 |
| 2007 | $80,200 | $26,263 | $0 | $106,463 | $106,463 |
Deed and Sales History
| 1 | 11/18/2023 | QCD | Quit Claim Deed | OJEDA, GWENDOLYN | OJEDA, TYLER | | | $0.00 | 59246 | 4569590 |
| 2 | 12/21/2022 | WD | Warranty Deed | SHERMAN, DAVID | OJEDA, GWENDOLYN | | | $242,000.00 | 55499 | 4555228 |
| 3 | 02/08/2019 | WD | Warranty Deed | RZESZUT, PATRICK M | SHERMAN, DAVID | | | $142,500.00 | 37561 | 4459144 |
| 4 | 02/10/2017 | ESTSEPPROP | Establish Separate Property | RZESZUT, PATRICK M | RZESZUT, PATRICK M | | | $0.00 | 28186 | 4417683 |
| 5 | 02/22/2017 | QCD | Quit Claim Deed | RZESZUT JTWROS, PATRICK M | RZESZUT, PATRICK M | | | $0.00 | 28185 | 4417682 |
| 6 | 12/12/2006 | WD | Warranty Deed | STEWART, PAUL A | RZESZUT JTWROS, PATRICK M | | | $115,000.00 | 65340 | 4190103 |
| 7 | 07/01/1993 | WD | Warranty Deed | DEL, MAR I | STEWART, PAUL A | | | $53,000.00 | 32617 | 93013557 |
| 8 | 01/01/1993 | WD | Warranty Deed | MILLIRON, DOLORES J | DEL, MAR I | | | $50,600.00 | 30262 | 93001384 |
| 9 | 04/01/1985 | DECREE | Divorce Decree/Legal Separation | CURTIS, DOLORES J | MILLIRON, DOLORES J | | | $0.00 | 61134 | 0 |
| 10 | 09/01/1980 | OTHER | Other - Misc. Documents | CURTIS, DOLORES J | CURTIS, DOLORES J | | | $33,950.00 | 58916 | 339558 |
Payout Agreement
| No payout information available.. |