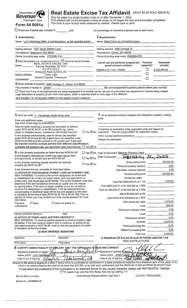
Property
Account |
| Property ID: | 186685 | Abbreviated Legal Description: | BEACHCOMBERS 1 LOT 15 & SELY 1/2 OF LOT 14 (FR 00014-0) |
| Geographic ID: | S6095-00-00015-0 | Agent Code: | |
| Type: | Real | | |
| Tax Area: | 310 - APPRAISER-Cpvl Schl Dist, outside Cpvl, improved & 1 acre or less | Land Use Code | 11 |
| Open Space: | N | DFL | N |
| Historic Property: | N | Remodel Property: | N |
| Multi-Family Redevelopment: | N | | |
| Township: | | Section: | |
| Range: | |
Location |
| Address: | 2272 CRANES LANDING DR GREENBANK, WA 98253 | Mapsco: | |
| Neighborhood: | Cycle 2 | Map ID: | 530 |
| Neighborhood CD: | 2 |
Owner |
| Name: | SAVOIE, JOEL A | Owner ID: | 298018 |
| Mailing Address: | 2272 CRANES LANDING GREENBANK, WA 98253 | % Ownership: | 100.0000000000% |
| | | Exemptions: | |
Taxes and Assessment Details
Values
| (+) Improvement Homesite Value: | + | $372,899 | |
| (+) Improvement Non-Homesite Value: | + | $0 | |
| (+) Land Homesite Value: | + | $210,000 | |
| (+) Land Non-Homesite Value: | + | $0 | |
| (+) Curr Use (HS): | + | $0 | $0 |
| (+) Curr Use (NHS): | + | $0 | $0 |
| | | -------------------------- | |
| (=) Market Value: | = | $582,899 | |
| (–) Productivity Loss: | – | $0 | |
| | | -------------------------- | |
| (=) Subtotal: | = | $582,899 | |
| (+) Senior Appraised Value: | + | $0 | |
| (+) Non-Senior Appraised Value: | + | $582,899 | |
| | | -------------------------- | |
| (=) Total Appraised Value: | = | $582,899 | |
| (–) Senior Exemption Loss: | – | $0 | |
| (–) Exemption Loss: | – | $0 | |
| | | -------------------------- | |
| (=) Taxable Value: | = | $582,899 | |
Taxing Jurisdiction
| Owner: | SAVOIE, JOEL A | | |
| % Ownership: | 100.0000000000% | | |
| Total Value: | $582,899 | | |
| Tax Area: | 310 - APPRAISER-Cpvl Schl Dist, outside Cpvl, improved & 1 acre or less |
| CF | Conservation Futures | 0.0316035091 | $582,899 | $582,899 | $18.42 | | |
| CEM2 | Cemetery #2 | 0.0095056933 | $582,899 | $582,899 | $5.54 | | |
| FIRE5 | Fire & Rescue Dist #5 C Whidbey GEN | 1.2008080668 | $582,899 | $582,899 | $699.95 | | |
| FIRE5BOND | Fire & Rescue Dist #5 C Whidbey BOND | 0.1400090713 | $582,899 | $582,899 | $81.61 | | |
| HOBOND | Hospital BOND | 0.1910887512 | $582,899 | $582,899 | $111.39 | | |
| HOGEN | Hospital GEN | 0.3902502903 | $582,899 | $582,899 | $227.48 | | |
| CE | County Current Expense | 0.3708482477 | $582,899 | $582,899 | $216.17 | | |
| CR | County Roads | 0.4584763726 | $582,899 | $582,899 | $267.25 | | |
| ISLANDEMS | Hospital GEN (EMS) | 0.5000000000 | $582,899 | $582,899 | $291.45 | | |
| LIB | Library Sno-Isle GEN | 0.3153421757 | $582,899 | $582,899 | $183.81 | | |
| LIBCAP | Library Sno-Isle BOND (Cap Fac Imp Area) | 0.0543427938 | $582,899 | $582,899 | $31.68 | | |
| POCOUP | Port of Coupeville GEN | 0.1093371703 | $582,899 | $582,899 | $63.73 | | |
| POCOUPIDD | Port of Coupeville IDD | 0.3409740022 | $582,899 | $582,899 | $198.75 | | |
| COUPSDTECH | School 204 CP (TECH) | 0.7545480007 | $582,899 | $582,899 | $439.83 | | |
| SCH204MO | School 204 Enrichment | 0.6716186034 | $582,899 | $582,899 | $391.49 | | |
| ST | State School | 1.3035497053 | $582,899 | $582,899 | $759.84 | | |
| ST2 | State School Part 2 | 0.8169543533 | $582,899 | $582,899 | $476.20 | | |
| | Total Tax Rate: | 7.6592568070 | | | | | |
| | | | | Taxes w/Current Exemptions: | $4,464.59 | | |
| | | | | Taxes w/o Exemptions: | $4,464.59 | | |
Improvement / Building
| Improvement #1: | RESIDENTIAL | State Code: | Y | 2382.8 sqft | Value: | $372,899 |
| Bathrooms: | 2.5 | Bedrooms: | 3 | | Ceiling: | DRYWALL PAINTED | Exterior Wall/Cover: | PLY/HARDBOARD T-111 | | Floor Covering: | CERAMIC TILE/CPT 40-60 | Floor Structure: | WOOD W/SUBFLOOR | | Foundation: | CONCRETE | Heating: | WALL HEAT ELECTRIC | | Interior Finish: | DRYWALL PAINT | Plumbing Fixture Cnt: | 14 | | Roof Slope: | 5" IN 12" | Roof Structure/Cover: | CJ ASPHALT |
|
| | Type | Description | Class CD | Sub Class CD | Year Built | Area |
| | BAS | BASE/MAIN FLOOR | 3 | 0 | 1994 | 1636.6 |
| | BGR | BASEMENT GARAGE | 3 | 0 | 1994 | 556.9 |
| | OWP | OPEN WOOD PORCH W/STEPS | 3 | 0 | 1994 | 414.4 |
| | DWN | DOWNSTAIRS LIVING AREA | 3 | 0 | 1994 | 746.2 |
Sketch
| No sketches available for this property. |
Property Image
Land
| 1 | 15 | SQ (12001-21780) | 0.2800 | 12196.80 | 0.00 | 0.00 | 1.00 | $210,000 | $0 |
Roll Value History
| 2026 | N/A | N/A | N/A | N/A | N/A |
| 2025 | $372,899 | $210,000 | $0 | $582,899 | $582,899 |
| 2024 | $349,092 | $190,000 | $0 | $539,092 | $539,092 |
| 2023 | $353,443 | $190,000 | $0 | $543,443 | $543,443 |
| 2022 | $323,984 | $170,000 | $0 | $493,984 | $493,984 |
| 2021 | $285,148 | $130,000 | $0 | $415,148 | $415,148 |
| 2020 | $277,774 | $120,000 | $0 | $397,774 | $397,774 |
| 2019 | $212,406 | $155,000 | $0 | $367,406 | $202,809 |
| 2018 | $195,716 | $135,000 | $0 | $330,716 | $202,809 |
| 2017 | $196,962 | $100,000 | $0 | $296,962 | $202,809 |
| 2016 | $199,456 | $90,000 | $0 | $289,456 | $202,809 |
| 2015 | $201,949 | $90,000 | $0 | $291,949 | $109,124 |
| 2014 | $204,442 | $55,000 | $0 | $259,442 | $189,442 |
| 2013 | $206,935 | $85,000 | $0 | $291,935 | $202,809 |
| 2012 | $205,316 | $61,750 | $0 | $267,066 | $197,066 |
| 2011 | $207,809 | $65,000 | $0 | $272,809 | $109,124 |
| 2010 | $217,651 | $65,000 | $0 | $282,651 | $282,651 |
| 2009 | $226,901 | $85,000 | $0 | $311,901 | $311,901 |
| 2008 | $229,896 | $120,750 | $0 | $350,646 | $350,646 |
| 2007 | $205,161 | $148,565 | $0 | $353,725 | $353,725 |
Deed and Sales History
| 1 | 11/17/2020 | PRD | Personal Representatives Deed | JOHANSSON, TASCA | SAVOIE, JOEL A | | | $0.00 | 46017 | 4504445 |
| 2 | 05/15/2003 | OTHER | Other - Misc. Documents | JOHANSSON, CARL B | JOHANSSON, TASCA | | | $0.00 | 80484 | 0 |
| 3 | 10/01/1996 | WD | Warranty Deed | BENEFIEL, JAMES D | JOHANSSON, CARL B | | | $195,000.00 | 63951 | 96019081 |
| 4 | 09/01/1995 | WD | Warranty Deed | MCCOWAN, CONSTRUCTION I | BENEFIEL, JAMES D | | | $167,500.00 | 53175 | 95014570 |
| 5 | 08/01/1989 | WD | Warranty Deed | NYMAN, JACK W | MCCOWAN, CONSTRUCTION I | | | $13,000.00 | 93482 | 89011663 |
| 6 | 11/01/1987 | OTHER | Other - Misc. Documents | NYMAN, JACK W | NYMAN, JACK W | | | $0.00 | 62434 | 87015836 |
| 7 | 08/01/1986 | WD | Warranty Deed | MCRAE, JAMES M | NYMAN, JACK W | | | $3,334.00 | 62230 | 86010321 |
| 8 | 01/01/1900 | OTHER | Other - Misc. Documents | Unknown | MCRAE, JAMES M | | | $0.00 | 0 | 0 |
Payout Agreement
| No payout information available.. |