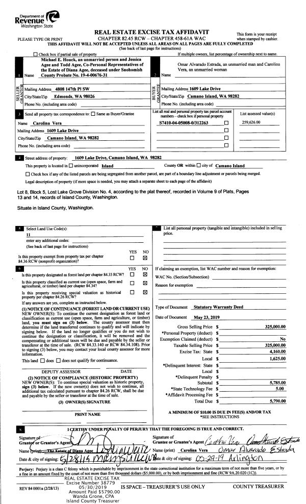
Property
Account |
| Property ID: | 18787 | Abbreviated Legal Description: | 58 - S/2 SE NE NW EX RDS |
| Geographic ID: | R13210-415-2330 | Agent Code: | |
| Type: | Real | | |
| Tax Area: | 100 - APPRAISER-OH Schl Dist, in OH | Land Use Code | 15 |
| Open Space: | N | DFL | N |
| Historic Property: | N | Remodel Property: | N |
| Multi-Family Redevelopment: | N | | |
| Township: | 32 | Section: | 10 |
| Range: | R1 |
Location |
| Address: | 1020 SW 24TH AVE OAK HARBOR, WA 98277 | Mapsco: | |
| Neighborhood: | 3AcOH-highway 20 | Map ID: | 118 |
| Neighborhood CD: | 3AcOHhwy20 |
Owner |
| Name: | 1020 FIR GROVE, LLC | Owner ID: | 303275 |
| Mailing Address: | 1415 COMMERCIAL AVE SUITE 101 ANACORTES, WA 98221 | % Ownership: | 100.0000000000% |
| | | Exemptions: | |
Taxes and Assessment Details
Values
| (+) Improvement Homesite Value: | + | $0 | |
| (+) Improvement Non-Homesite Value: | + | $194,187 | |
| (+) Land Homesite Value: | + | $0 | |
| (+) Land Non-Homesite Value: | + | $1,032,590 | |
| (+) Curr Use (HS): | + | $0 | $0 |
| (+) Curr Use (NHS): | + | $0 | $0 |
| | | -------------------------- | |
| (=) Market Value: | = | $1,226,777 | |
| (–) Productivity Loss: | – | $0 | |
| | | -------------------------- | |
| (=) Subtotal: | = | $1,226,777 | |
| (+) Senior Appraised Value: | + | $0 | |
| (+) Non-Senior Appraised Value: | + | $1,226,777 | |
| | | -------------------------- | |
| (=) Total Appraised Value: | = | $1,226,777 | |
| (–) Senior Exemption Loss: | – | $0 | |
| (–) Exemption Loss: | – | $0 | |
| | | -------------------------- | |
| (=) Taxable Value: | = | $1,226,777 | |
Taxing Jurisdiction
| Owner: | 1020 FIR GROVE, LLC | | |
| % Ownership: | 100.0000000000% | | |
| Total Value: | $1,226,777 | | |
| Tax Area: | 100 - APPRAISER-OH Schl Dist, in OH |
| CF | Conservation Futures | 0.0316035091 | $1,226,777 | $1,226,777 | $38.77 | | |
| CEM1 | Cemetery #1 | 0.0040320932 | $1,226,777 | $1,226,777 | $4.95 | | |
| COH | City of Oak Harbor | 2.3001546061 | $1,226,777 | $1,226,777 | $2,821.78 | | |
| OAKBOND | City of Oak Harbor BOND | 0.1926904192 | $1,226,777 | $1,226,777 | $236.39 | | |
| HOBOND | Hospital BOND | 0.1910887512 | $1,226,777 | $1,226,777 | $234.42 | | |
| HOGEN | Hospital GEN | 0.3902502903 | $1,226,777 | $1,226,777 | $478.75 | | |
| CE | County Current Expense | 0.3708482477 | $1,226,777 | $1,226,777 | $454.95 | | |
| ISLANDEMS | Hospital GEN (EMS) | 0.5000000000 | $1,226,777 | $1,226,777 | $613.39 | | |
| LIB | Library Sno-Isle GEN | 0.3153421757 | $1,226,777 | $1,226,777 | $386.85 | | |
| NWHIDPRMT | P & R N Whidbey GEN | 0.2004466701 | $1,226,777 | $1,226,777 | $245.90 | | |
| SCH201MO | School 201 Enrichment | 1.8559231640 | $1,226,777 | $1,226,777 | $2,276.80 | | |
| ST | State School | 1.3035497053 | $1,226,777 | $1,226,777 | $1,599.16 | | |
| ST2 | State School Part 2 | 0.8169543533 | $1,226,777 | $1,226,777 | $1,002.22 | | |
| | Total Tax Rate: | 8.4728839852 | | | | | |
| | | | | Taxes w/Current Exemptions: | $10,394.33 | | |
| | | | | Taxes w/o Exemptions: | $10,394.33 | | |
Improvement / Building
| Improvement #1: | RESIDENTIAL | State Code: | A1 | 1344.0 sqft | Value: | $194,187 |
| Bathrooms: | 2 | Bedrooms: | 4 | | Ceiling: | DRY WALL SPRAYED | Exterior Wall/Cover: | PLY/HARDBOARD T-111 | | Floor Covering: | CARPET/VINYL 80-20 | Floor Structure: | WOOD W/SUBFLOOR | | Foundation: | CONCRETE | Heating: | BASEBOARD ELECTRIC | | Interior Finish: | DRYWALL PAINT | Plumbing Fixture Cnt: | 10 | | Roof Slope: | FLAT | Roof Structure/Cover: | BEAM BUILT-UP ROCK |
|
| | Type | Description | Class CD | Sub Class CD | Year Built | Area |
| | BAS | BASE/MAIN FLOOR | 2 | 0 | 1962 | 1344.0 |
| | OCP | OPEN CARPORT | 2 | 0 | 1962 | 336.0 |
| | oMHS | MOBILE HOME SPACE | 2 | 0 | 1962 | 0.0 |
| | oPUM | PUMP HOUSE | 2 | 0 | 1962 | 0.0 |
Sketch
Property Image
Land
| 1 | 61 | MULTIPLE RESIDENCES | 4.3100 | 187743.60 | 0.00 | 0.00 | 1.00 | $1,032,590 | $0 |
Roll Value History
| 2026 | N/A | N/A | N/A | N/A | N/A |
| 2025 | $194,187 | $1,032,590 | $0 | $1,226,777 | $1,226,777 |
| 2024 | $197,934 | $1,032,590 | $0 | $1,230,524 | $1,230,524 |
| 2023 | $199,993 | $1,032,590 | $0 | $1,232,583 | $1,232,583 |
| 2022 | $194,225 | $1,032,590 | $0 | $1,226,815 | $1,226,815 |
| 2021 | $186,060 | $1,032,590 | $0 | $1,218,650 | $1,218,650 |
| 2020 | $185,090 | $1,032,590 | $0 | $1,217,680 | $1,217,680 |
| 2019 | $169,346 | $281,615 | $0 | $450,961 | $450,961 |
| 2018 | $169,636 | $281,615 | $0 | $451,251 | $451,251 |
| 2017 | $170,216 | $479,451 | $0 | $649,667 | $649,667 |
| 2016 | $171,375 | $479,451 | $0 | $650,826 | $650,826 |
| 2015 | $172,535 | $479,451 | $0 | $651,986 | $651,986 |
| 2014 | $173,694 | $479,451 | $0 | $653,145 | $653,145 |
| 2013 | $184,952 | $479,451 | $0 | $664,403 | $664,403 |
| 2012 | $184,952 | $479,451 | $0 | $664,403 | $664,403 |
| 2011 | $184,952 | $479,451 | $0 | $664,403 | $664,403 |
| 2010 | $187,583 | $479,451 | $0 | $667,034 | $667,034 |
| 2009 | $190,810 | $510,054 | $0 | $700,864 | $700,864 |
| 2008 | $189,556 | $512,502 | $0 | $702,058 | $702,058 |
| 2007 | $56,260 | $646,993 | $0 | $703,253 | $703,253 |
Deed and Sales History
| 1 | 12/14/2021 | QCD | Quit Claim Deed | MURPHY, SETH T | 1020 FIR GROVE, LLC | | | $0.00 | 52057 | 4540285 |
| 2 | 07/16/2019 | QCD | Quit Claim Deed | MURPHY, JENNIFER | MURPHY, SETH T | | | $0.00 | 39472 | 4467532 |
| 3 | 07/10/2019 | WD | Warranty Deed | TOUCAN 1 LLC | MURPHY, SETH T | | | $1,260,000.00 | 39471 | 4467531 |
| 4 | 05/01/2003 | WD | Warranty Deed | KAIREZ, PHILIP / | TOUCAN 1 LLC, | | | $596,600.00 | 31928 | 31929 |
| 5 | 10/01/1993 | WD | Warranty Deed | MASSEY, WILLIAM L | KAIREZ, PHILIP / | | | $243,000.00 | 34111 | 93021474 |
| 6 | 01/01/1986 | WD | Warranty Deed | MASSEY, WILLIAM L | MASSEY, WILLIAM L | | | $100,000.00 | 60188 | 86001036 |
| 7 | 01/01/1985 | WD | Warranty Deed | MIEDEMA, MARTIN & | MASSEY, WILLIAM L | | | $900.00 | 51015 | 85004233 |
| 8 | 01/01/1900 | OTHER | Other - Misc. Documents | Unknown | MIEDEMA, MARTIN & | | | $0.00 | 0 | 0 |
Payout Agreement
| No payout information available.. |