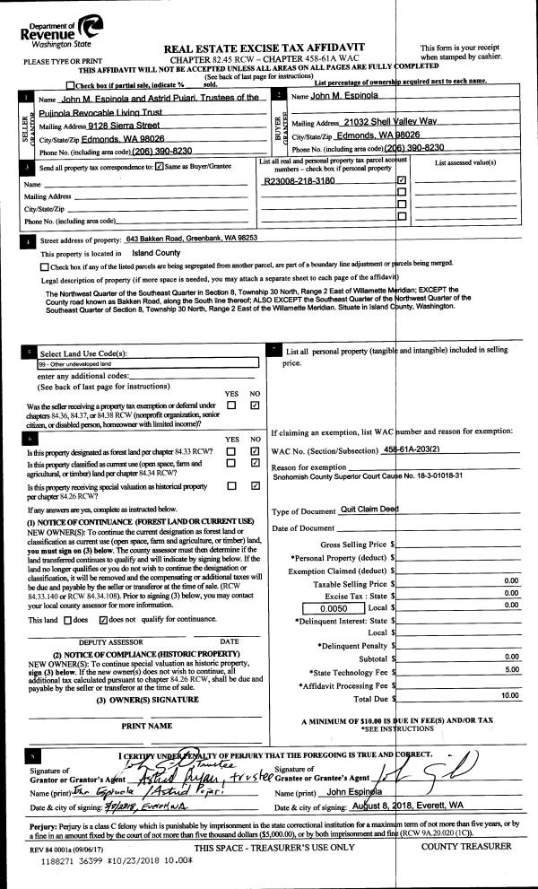
Property
Account |
| Property ID: | 188059 | Abbreviated Legal Description: | BEACHCOMBERS 5 LOTS 11, 12 & 36 |
| Geographic ID: | S6095-05-00012-0 | Agent Code: | |
| Type: | Real | | |
| Tax Area: | 310 - APPRAISER-Cpvl Schl Dist, outside Cpvl, improved & 1 acre or less | Land Use Code | 11 |
| Open Space: | N | DFL | N |
| Historic Property: | N | Remodel Property: | N |
| Multi-Family Redevelopment: | N | | |
| Township: | | Section: | |
| Range: | |
Location |
| Address: | 943 CHICKADEE LN GREENBANK, WA 98253 | Mapsco: | |
| Neighborhood: | Cycle 2 | Map ID: | 530 |
| Neighborhood CD: | 2 |
Owner |
| Name: | BARCA TTEE, ANNETTE MINARD | Owner ID: | 294469 |
| Mailing Address: | PO BOX 334 GREENBANK, WA 98253 | % Ownership: | 100.0000000000% |
| | | Exemptions: | |
Taxes and Assessment Details
Values
| (+) Improvement Homesite Value: | + | $0 | |
| (+) Improvement Non-Homesite Value: | + | $294,390 | |
| (+) Land Homesite Value: | + | $0 | |
| (+) Land Non-Homesite Value: | + | $210,000 | |
| (+) Curr Use (HS): | + | $0 | $0 |
| (+) Curr Use (NHS): | + | $0 | $0 |
| | | -------------------------- | |
| (=) Market Value: | = | $504,390 | |
| (–) Productivity Loss: | – | $0 | |
| | | -------------------------- | |
| (=) Subtotal: | = | $504,390 | |
| (+) Senior Appraised Value: | + | $0 | |
| (+) Non-Senior Appraised Value: | + | $504,390 | |
| | | -------------------------- | |
| (=) Total Appraised Value: | = | $504,390 | |
| (–) Senior Exemption Loss: | – | $0 | |
| (–) Exemption Loss: | – | $0 | |
| | | -------------------------- | |
| (=) Taxable Value: | = | $504,390 | |
Taxing Jurisdiction
| Owner: | BARCA TTEE, ANNETTE MINARD | | |
| % Ownership: | 100.0000000000% | | |
| Total Value: | $504,390 | | |
| Tax Area: | 310 - APPRAISER-Cpvl Schl Dist, outside Cpvl, improved & 1 acre or less |
| CF | Conservation Futures | 0.0316035091 | $504,390 | $504,390 | $15.94 | | |
| CEM2 | Cemetery #2 | 0.0095056933 | $504,390 | $504,390 | $4.79 | | |
| FIRE5 | Fire & Rescue Dist #5 C Whidbey GEN | 1.2008080668 | $504,390 | $504,390 | $605.68 | | |
| FIRE5BOND | Fire & Rescue Dist #5 C Whidbey BOND | 0.1400090713 | $504,390 | $504,390 | $70.62 | | |
| HOBOND | Hospital BOND | 0.1910887512 | $504,390 | $504,390 | $96.38 | | |
| HOGEN | Hospital GEN | 0.3902502903 | $504,390 | $504,390 | $196.84 | | |
| CE | County Current Expense | 0.3708482477 | $504,390 | $504,390 | $187.05 | | |
| CR | County Roads | 0.4584763726 | $504,390 | $504,390 | $231.25 | | |
| ISLANDEMS | Hospital GEN (EMS) | 0.5000000000 | $504,390 | $504,390 | $252.20 | | |
| LIB | Library Sno-Isle GEN | 0.3153421757 | $504,390 | $504,390 | $159.06 | | |
| LIBCAP | Library Sno-Isle BOND (Cap Fac Imp Area) | 0.0543427938 | $504,390 | $504,390 | $27.41 | | |
| POCOUP | Port of Coupeville GEN | 0.1093371703 | $504,390 | $504,390 | $55.15 | | |
| POCOUPIDD | Port of Coupeville IDD | 0.3409740022 | $504,390 | $504,390 | $171.98 | | |
| COUPSDTECH | School 204 CP (TECH) | 0.7545480007 | $504,390 | $504,390 | $380.59 | | |
| SCH204MO | School 204 Enrichment | 0.6716186034 | $504,390 | $504,390 | $338.76 | | |
| ST | State School | 1.3035497053 | $504,390 | $504,390 | $657.50 | | |
| ST2 | State School Part 2 | 0.8169543533 | $504,390 | $504,390 | $412.06 | | |
| | Total Tax Rate: | 7.6592568070 | | | | | |
| | | | | Taxes w/Current Exemptions: | $3,863.26 | | |
| | | | | Taxes w/o Exemptions: | $3,863.26 | | |
Improvement / Building
| Improvement #1: | RESIDENTIAL | State Code: | Y | 1372.1 sqft | Value: | $294,390 |
| Bathrooms: | 1.5 | Bedrooms: | 1 | | Ceiling: | DRYWALL PAINTED | Exterior Wall/Cover: | CEMENT FIBER | | Floor Covering: | CARPET/VINYL 20-80 | Floor Structure: | WOOD W/SUBFLOOR | | Foundation: | CONCRETE | Heating: | WALL HEAT ELECTRIC | | Interior Finish: | DRYWALL PAINT | Plumbing Fixture Cnt: | 8 | | Roof Slope: | 10" IN 12" | Roof Structure/Cover: | CJ ASPHALT |
|
| | Type | Description | Class CD | Sub Class CD | Year Built | Area |
| | BAS | BASE/MAIN FLOOR | 3 | 0 | 2006 | 1372.1 |
| | DGR | DETACHED GARAGE | 3 | 0 | 2006 | 260.8 |
| | OCP | OPEN CARPORT | 3 | 0 | 2006 | 348.0 |
| | OWP | OPEN WOOD PORCH W/STEPS | 3 | 0 | 2006 | 73.5 |
| | OWP | OPEN WOOD PORCH W/STEPS | 3 | 0 | 2006 | 36.2 |
| | OWR | OPEN WOOD PORCH W/STEPS/ROOF | 3 | 0 | 2006 | 51.0 |
| | UTY | STORAGE/UTILITY | 3 | 0 | 2006 | 130.4 |
| | ENP | ENCLOSED PORCH | 3 | 0 | 2006 | 336.0 |
Sketch
| No sketches available for this property. |
Property Image
Land
| 1 | 16 | AC (00.51-01.00) | 0.5400 | 23522.40 | 0.00 | 0.00 | 1.00 | $210,000 | $0 |
Roll Value History
| 2026 | N/A | N/A | N/A | N/A | N/A |
| 2025 | $294,390 | $210,000 | $0 | $504,390 | $504,390 |
| 2024 | $284,726 | $190,000 | $0 | $474,726 | $474,726 |
| 2023 | $287,948 | $190,000 | $0 | $477,948 | $477,948 |
| 2022 | $264,307 | $170,000 | $0 | $434,307 | $434,307 |
| 2021 | $233,239 | $130,000 | $0 | $363,239 | $363,239 |
| 2020 | $226,662 | $120,000 | $0 | $346,662 | $346,662 |
| 2019 | $166,427 | $155,000 | $0 | $321,427 | $321,427 |
| 2018 | $157,325 | $135,000 | $0 | $292,325 | $292,325 |
| 2017 | $158,155 | $100,000 | $0 | $258,155 | $258,155 |
| 2016 | $159,922 | $90,000 | $0 | $249,922 | $249,922 |
| 2015 | $161,687 | $90,000 | $0 | $251,687 | $251,687 |
| 2014 | $163,451 | $85,000 | $0 | $248,451 | $248,451 |
| 2013 | $165,220 | $85,000 | $0 | $250,220 | $250,220 |
| 2012 | $167,485 | $61,750 | $0 | $229,235 | $229,235 |
| 2011 | $169,252 | $65,000 | $0 | $234,252 | $234,252 |
| 2010 | $173,352 | $65,000 | $0 | $238,352 | $238,352 |
| 2009 | $180,459 | $65,000 | $0 | $245,459 | $245,459 |
| 2008 | $199,477 | $53,026 | $0 | $252,503 | $252,503 |
| 2007 | $183,893 | $45,973 | $0 | $229,866 | $229,866 |
Deed and Sales History
| 1 | 05/12/2020 | QCD | Quit Claim Deed | BARCA, ANNETTE M | BARCA TTEE, ANNETTE MINARD | | | $0.00 | 43267 | 4488336 |
| 2 | 12/09/2013 | QCD | Quit Claim Deed | BARCA, ROBERT H | BARCA, ANNETTE M | | | $0.00 | 13679 | 4352493 |
| 3 | 10/28/2008 | BLA | DNU - Boundary Line Adjustment | BARCA, ROBERT | BARCA, ROBERT H | | | $0.00 | 80985 | 4118563 |
| 4 | 01/26/1999 | BLA | DNU - Boundary Line Adjustment | BARCA, ROBERT H | BARCA, ROBERT | | | $0.00 | 68160 | 98028342 |
| 5 | 02/01/1995 | WD | Warranty Deed | DELISO, FRED S | BARCA, ROBERT H | | | $8,500.00 | 50551 | 95002656 |
| 6 | 01/01/1900 | OTHER | Other - Misc. Documents | Unknown | DELISO, FRED S | | | $0.00 | 0 | 0 |
Payout Agreement
| No payout information available.. |