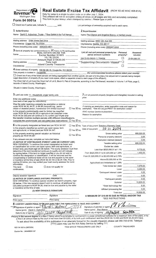
Property
Account |
| Property ID: | 188282 | Abbreviated Legal Description: | BEACHCOMBERS 5 LOT 35 TGW PT ADJ VAC UN- NAMED CUL-DE-SAC EX PT STS |
| Geographic ID: | S6095-05-00035-0 | Agent Code: | |
| Type: | Real | | |
| Tax Area: | 310 - APPRAISER-Cpvl Schl Dist, outside Cpvl, improved & 1 acre or less | Land Use Code | 11 |
| Open Space: | N | DFL | N |
| Historic Property: | N | Remodel Property: | N |
| Multi-Family Redevelopment: | N | | |
| Township: | | Section: | |
| Range: | |
Location |
| Address: | 2320 MASTODON DR GREENBANK, WA 98253 | Mapsco: | |
| Neighborhood: | Cycle 2 | Map ID: | 530 |
| Neighborhood CD: | 2 |
Owner |
| Name: | TURNER, CHRISTOPHER | Owner ID: | 293576 |
| Mailing Address: | HOLLY SLOTHOWER 2320 MASTODON DR GREENBANK, WA 98253 | % Ownership: | 100.0000000000% |
| | | Exemptions: | |
Taxes and Assessment Details
Values
| (+) Improvement Homesite Value: | + | $0 | |
| (+) Improvement Non-Homesite Value: | + | $335,061 | |
| (+) Land Homesite Value: | + | $0 | |
| (+) Land Non-Homesite Value: | + | $210,000 | |
| (+) Curr Use (HS): | + | $0 | $0 |
| (+) Curr Use (NHS): | + | $0 | $0 |
| | | -------------------------- | |
| (=) Market Value: | = | $545,061 | |
| (–) Productivity Loss: | – | $0 | |
| | | -------------------------- | |
| (=) Subtotal: | = | $545,061 | |
| (+) Senior Appraised Value: | + | $0 | |
| (+) Non-Senior Appraised Value: | + | $545,061 | |
| | | -------------------------- | |
| (=) Total Appraised Value: | = | $545,061 | |
| (–) Senior Exemption Loss: | – | $0 | |
| (–) Exemption Loss: | – | $0 | |
| | | -------------------------- | |
| (=) Taxable Value: | = | $545,061 | |
Taxing Jurisdiction
| Owner: | TURNER, CHRISTOPHER | | |
| % Ownership: | 100.0000000000% | | |
| Total Value: | $545,061 | | |
| Tax Area: | 310 - APPRAISER-Cpvl Schl Dist, outside Cpvl, improved & 1 acre or less |
| CF | Conservation Futures | 0.0316035091 | $545,061 | $545,061 | $17.23 | | |
| CEM2 | Cemetery #2 | 0.0095056933 | $545,061 | $545,061 | $5.18 | | |
| FIRE5 | Fire & Rescue Dist #5 C Whidbey GEN | 1.2008080668 | $545,061 | $545,061 | $654.51 | | |
| FIRE5BOND | Fire & Rescue Dist #5 C Whidbey BOND | 0.1400090713 | $545,061 | $545,061 | $76.31 | | |
| HOBOND | Hospital BOND | 0.1910887512 | $545,061 | $545,061 | $104.16 | | |
| HOGEN | Hospital GEN | 0.3902502903 | $545,061 | $545,061 | $212.71 | | |
| CE | County Current Expense | 0.3708482477 | $545,061 | $545,061 | $202.13 | | |
| CR | County Roads | 0.4584763726 | $545,061 | $545,061 | $249.90 | | |
| ISLANDEMS | Hospital GEN (EMS) | 0.5000000000 | $545,061 | $545,061 | $272.53 | | |
| LIB | Library Sno-Isle GEN | 0.3153421757 | $545,061 | $545,061 | $171.88 | | |
| LIBCAP | Library Sno-Isle BOND (Cap Fac Imp Area) | 0.0543427938 | $545,061 | $545,061 | $29.62 | | |
| POCOUP | Port of Coupeville GEN | 0.1093371703 | $545,061 | $545,061 | $59.60 | | |
| POCOUPIDD | Port of Coupeville IDD | 0.3409740022 | $545,061 | $545,061 | $185.85 | | |
| COUPSDTECH | School 204 CP (TECH) | 0.7545480007 | $545,061 | $545,061 | $411.27 | | |
| SCH204MO | School 204 Enrichment | 0.6716186034 | $545,061 | $545,061 | $366.07 | | |
| ST | State School | 1.3035497053 | $545,061 | $545,061 | $710.51 | | |
| ST2 | State School Part 2 | 0.8169543533 | $545,061 | $545,061 | $445.29 | | |
| | Total Tax Rate: | 7.6592568070 | | | | | |
| | | | | Taxes w/Current Exemptions: | $4,174.75 | | |
| | | | | Taxes w/o Exemptions: | $4,174.75 | | |
Improvement / Building
| Improvement #1: | RESIDENTIAL | State Code: | Y | 1629.9 sqft | Value: | $335,061 |
| Bathrooms: | 2 | Bedrooms: | 2 | | Ceiling: | DRYWALL PAINTED | Cooling: | HEAT PUMP/CONV/V | | Exterior Wall/Cover: | CEMENT FIBER | Floor Covering: | VINYL/HARDWOOD 60-40 | | Floor Structure: | WOOD W/SUBFLOOR | Foundation: | CONCRETE | | Interior Finish: | DRYWALL PAINT | Plumbing Fixture Cnt: | 11 | | Roof Slope: | 5" IN 12" | Roof Structure/Cover: | CJ ASPHALT |
|
| | Type | Description | Class CD | Sub Class CD | Year Built | Area |
| | BAS | BASE/MAIN FLOOR | 3 | 0 | 2019 | 1629.9 |
| | AGR | ATTACHED GARAGE | 3 | 0 | 2019 | 484.0 |
| | OP4 | OPEN PORCH W/CEILING-ROOF | 3 | 0 | 2019 | 32.0 |
| | OP1 | OPEN PORCH SLAB | 3 | 0 | 2019 | 160.0 |
Sketch
| No sketches available for this property. |
Property Image
Land
| 1 | 15 | SQ (12001-21780) | 0.4100 | 17859.60 | 0.00 | 0.00 | 1.00 | $210,000 | $0 |
Roll Value History
| 2026 | N/A | N/A | N/A | N/A | N/A |
| 2025 | $335,061 | $210,000 | $0 | $545,061 | $545,061 |
| 2024 | $337,765 | $190,000 | $0 | $527,765 | $527,765 |
| 2023 | $340,467 | $190,000 | $0 | $530,467 | $530,467 |
| 2022 | $310,745 | $170,000 | $0 | $480,745 | $480,745 |
| 2021 | $273,051 | $130,000 | $0 | $403,051 | $403,051 |
| 2020 | $267,503 | $120,000 | $0 | $387,503 | $387,503 |
| 2019 | $36,831 | $60,000 | $0 | $96,831 | $96,831 |
| 2018 | $0 | $55,000 | $0 | $55,000 | $55,000 |
| 2017 | $0 | $55,000 | $0 | $55,000 | $55,000 |
| 2016 | $0 | $75,000 | $0 | $75,000 | $75,000 |
| 2015 | $0 | $85,000 | $0 | $85,000 | $85,000 |
| 2014 | $0 | $85,000 | $0 | $85,000 | $85,000 |
| 2013 | $0 | $85,000 | $0 | $85,000 | $85,000 |
| 2012 | $0 | $55,000 | $0 | $55,000 | $55,000 |
| 2011 | $0 | $55,000 | $0 | $55,000 | $55,000 |
| 2010 | $0 | $55,000 | $0 | $55,000 | $55,000 |
| 2009 | $0 | $65,000 | $0 | $65,000 | $65,000 |
| 2008 | $0 | $63,200 | $0 | $63,200 | $63,200 |
| 2007 | $0 | $47,250 | $0 | $47,250 | $47,250 |
Deed and Sales History
| 1 | 02/21/2020 | WD | Warranty Deed | WALDRON CONSTRUCTION, INC. | TURNER, CHRISTOPHER | | | $350,000.00 | 42208 | 4481912 |
| 2 | 01/30/2019 | WD | Warranty Deed | RUCHTY, RICK L | WALDRON CONSTRUCTION, INC. | | | $20,000.00 | 37525 | 4458932 |
| 3 | 04/01/1987 | OTHER | Other - Misc. Documents | RUCHTY, RICK L | RUCHTY, RICK L | | | $0.00 | 62125 | 86008601 |
| 4 | 11/01/1984 | WD | Warranty Deed | PETERS, F J | RUCHTY, RICK L | | | $2,700.00 | 43399 | 84005951 |
| 5 | 01/01/1900 | OTHER | Other - Misc. Documents | Unknown | PETERS, F J | | | $0.00 | 0 | 0 |
Payout Agreement
| No payout information available.. |