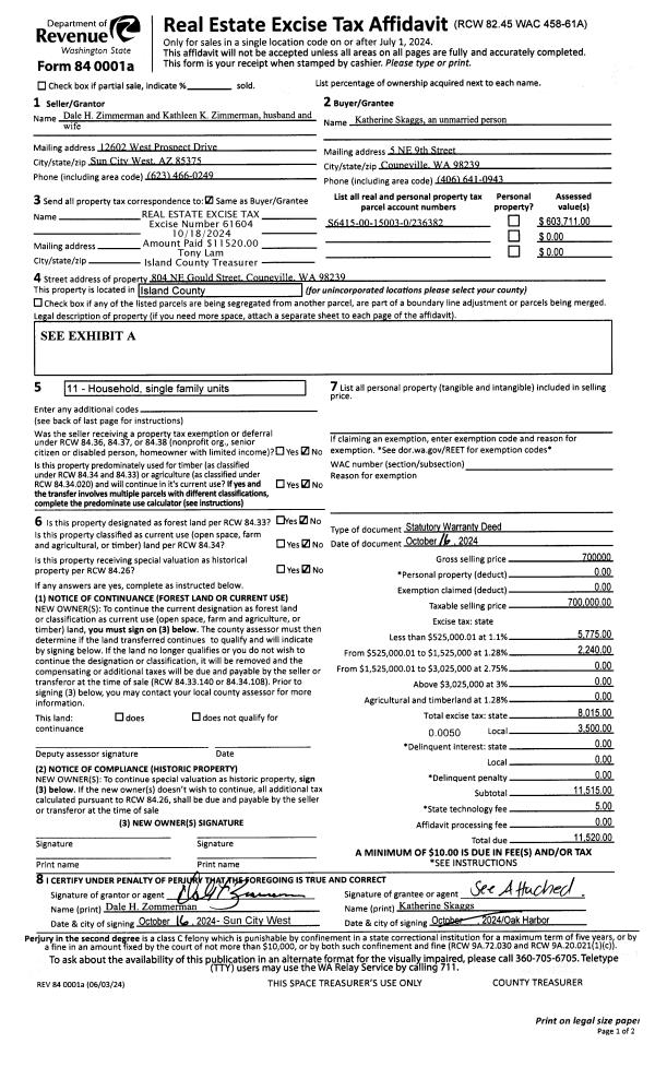
Property
Account |
| Property ID: | 188424 | Abbreviated Legal Description: | BEACHCOMBERS 5 LOT 50 TGW PT VAC UN-NAMED CUL-DE-SAC EX PT STS |
| Geographic ID: | S6095-05-00050-0 | Agent Code: | |
| Type: | Real | | |
| Tax Area: | 319 - APPRAISER-Cpvl Schl Dist, outside Cpvl, vacant & 50 acres or less | Land Use Code | 99 |
| Open Space: | N | DFL | N |
| Historic Property: | N | Remodel Property: | N |
| Multi-Family Redevelopment: | N | | |
| Township: | | Section: | |
| Range: | |
Location |
| Address: | | Mapsco: | |
| Neighborhood: | Cycle 2 | Map ID: | 530 |
| Neighborhood CD: | 2 |
Owner |
| Name: | ZARETZKE, EDWARD A | Owner ID: | 255099 |
| Mailing Address: | 910 DELAPP LN GREENBANK, WA 98253 | % Ownership: | 100.0000000000% |
| | | Exemptions: | |
Taxes and Assessment Details
Values
| (+) Improvement Homesite Value: | + | $0 | |
| (+) Improvement Non-Homesite Value: | + | $0 | |
| (+) Land Homesite Value: | + | $0 | |
| (+) Land Non-Homesite Value: | + | $12,000 | |
| (+) Curr Use (HS): | + | $0 | $0 |
| (+) Curr Use (NHS): | + | $0 | $0 |
| | | -------------------------- | |
| (=) Market Value: | = | $12,000 | |
| (–) Productivity Loss: | – | $0 | |
| | | -------------------------- | |
| (=) Subtotal: | = | $12,000 | |
| (+) Senior Appraised Value: | + | $0 | |
| (+) Non-Senior Appraised Value: | + | $12,000 | |
| | | -------------------------- | |
| (=) Total Appraised Value: | = | $12,000 | |
| (–) Senior Exemption Loss: | – | $0 | |
| (–) Exemption Loss: | – | $0 | |
| | | -------------------------- | |
| (=) Taxable Value: | = | $12,000 | |
Taxing Jurisdiction
| Owner: | ZARETZKE, EDWARD A | | |
| % Ownership: | 100.0000000000% | | |
| Total Value: | $12,000 | | |
| Tax Area: | 319 - APPRAISER-Cpvl Schl Dist, outside Cpvl, vacant & 50 acres or less |
| CF | Conservation Futures | 0.0316035091 | $12,000 | $12,000 | $0.38 | | |
| CEM2 | Cemetery #2 | 0.0095056933 | $12,000 | $12,000 | $0.11 | | |
| HOBOND | Hospital BOND | 0.1910887512 | $12,000 | $12,000 | $2.29 | | |
| HOGEN | Hospital GEN | 0.3902502903 | $12,000 | $12,000 | $4.68 | | |
| CE | County Current Expense | 0.3708482477 | $12,000 | $12,000 | $4.45 | | |
| CR | County Roads | 0.4584763726 | $12,000 | $12,000 | $5.50 | | |
| ISLANDEMS | Hospital GEN (EMS) | 0.5000000000 | $12,000 | $12,000 | $6.00 | | |
| LIB | Library Sno-Isle GEN | 0.3153421757 | $12,000 | $12,000 | $3.78 | | |
| LIBCAP | Library Sno-Isle BOND (Cap Fac Imp Area) | 0.0543427938 | $12,000 | $12,000 | $0.65 | | |
| POCOUP | Port of Coupeville GEN | 0.1093371703 | $12,000 | $12,000 | $1.31 | | |
| POCOUPIDD | Port of Coupeville IDD | 0.3409740022 | $12,000 | $12,000 | $4.09 | | |
| COUPSDTECH | School 204 CP (TECH) | 0.7545480007 | $12,000 | $12,000 | $9.05 | | |
| SCH204MO | School 204 Enrichment | 0.6716186034 | $12,000 | $12,000 | $8.06 | | |
| ST | State School | 1.3035497053 | $12,000 | $12,000 | $15.64 | | |
| ST2 | State School Part 2 | 0.8169543533 | $12,000 | $12,000 | $9.80 | | |
| | Total Tax Rate: | 6.3184396689 | | | | | |
| | | | | Taxes w/Current Exemptions: | $75.79 | | |
| | | | | Taxes w/o Exemptions: | $75.79 | | |
Improvement / Building
Sketch
| No sketches available for this property. |
Property Image
Land
| 1 | 13 | SQ (06001-08000) | 0.1600 | 6969.60 | 0.00 | 0.00 | 1.00 | $12,000 | $0 |
Roll Value History
| 2026 | N/A | N/A | N/A | N/A | N/A |
| 2025 | $0 | $12,000 | $0 | $12,000 | $12,000 |
| 2024 | $0 | $12,000 | $0 | $12,000 | $12,000 |
| 2023 | $0 | $9,000 | $0 | $9,000 | $9,000 |
| 2022 | $0 | $9,000 | $0 | $9,000 | $9,000 |
| 2021 | $0 | $7,000 | $0 | $7,000 | $7,000 |
| 2020 | $0 | $7,000 | $0 | $7,000 | $7,000 |
| 2019 | $0 | $5,000 | $0 | $5,000 | $5,000 |
| 2018 | $0 | $5,000 | $0 | $5,000 | $5,000 |
| 2017 | $0 | $5,000 | $0 | $5,000 | $5,000 |
| 2016 | $0 | $5,000 | $0 | $5,000 | $5,000 |
| 2015 | $0 | $5,000 | $0 | $5,000 | $5,000 |
| 2014 | $0 | $5,000 | $0 | $5,000 | $5,000 |
| 2013 | $0 | $5,000 | $0 | $5,000 | $5,000 |
| 2012 | $0 | $4,000 | $0 | $4,000 | $4,000 |
| 2011 | $0 | $2,400 | $0 | $2,400 | $2,400 |
| 2010 | $0 | $2,400 | $0 | $2,400 | $0 |
| 2009 | $0 | $5,200 | $0 | $5,200 | $0 |
| 2008 | $0 | $12,600 | $0 | $12,600 | $0 |
| 2007 | $0 | $12,600 | $0 | $12,600 | $0 |
Deed and Sales History
| 1 | 08/01/2011 | TTAXD | Treasurer's Tax Deed | ISLAND COUNTY TAX TITLE | ZARETZKE, EDWARD A | | | $950.00 | 5140 | 4299151 |
| 2 | 11/01/1993 | TTAXD | Treasurer's Tax Deed | NEWELL, ESTHER M | ISLAND, COUNTY T | | | $0.00 | 65674 | 93023923 |
| 3 | 04/01/1987 | OTHER | Other - Misc. Documents | NEWELL, ESTHER M | NEWELL, ESTHER M | | | $0.00 | 62125 | 86008601 |
| 4 | 01/01/1900 | OTHER | Other - Misc. Documents | Unknown | NEWELL, ESTHER M | | | $0.00 | 0 | 0 |
Payout Agreement
| No payout information available.. |