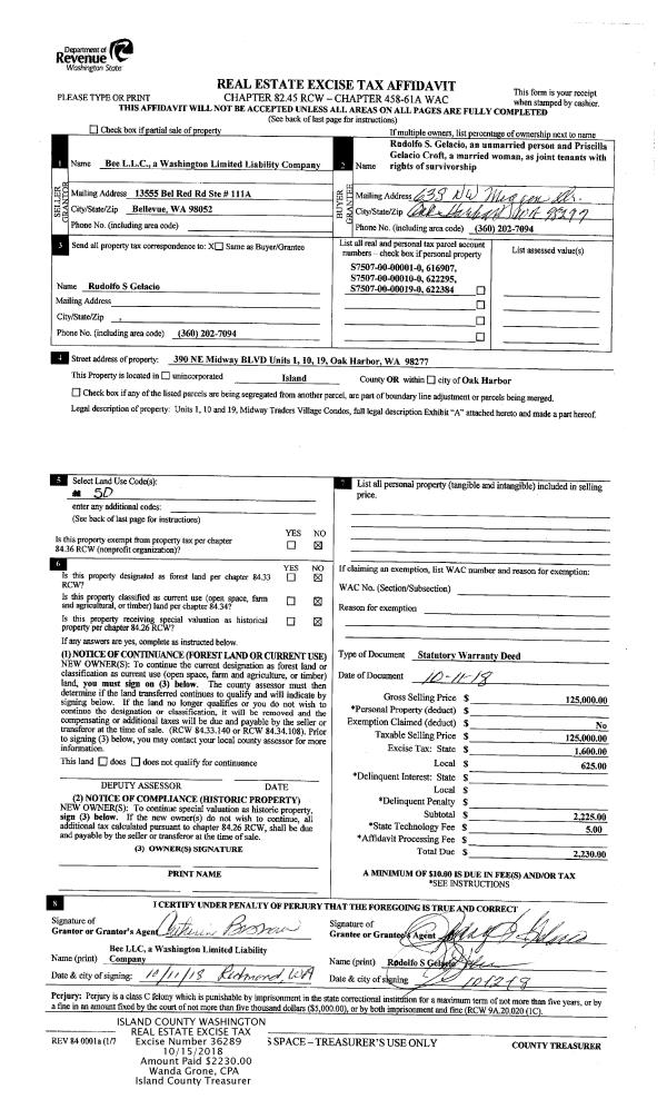
Property
Account |
| Property ID: | 188460 | Abbreviated Legal Description: | L53 BEACHCOMBERS 5 LOTS 53 & 54 COMB 2/95 |
| Geographic ID: | S6095-05-00054-0 | Agent Code: | |
| Type: | Real | | |
| Tax Area: | 310 - APPRAISER-Cpvl Schl Dist, outside Cpvl, improved & 1 acre or less | Land Use Code | 11 |
| Open Space: | N | DFL | N |
| Historic Property: | N | Remodel Property: | N |
| Multi-Family Redevelopment: | N | | |
| Township: | | Section: | |
| Range: | |
Location |
| Address: | 2306 NORTH BLUFF RD GREENBANK, WA 98253 | Mapsco: | |
| Neighborhood: | Cycle 2 | Map ID: | 530 |
| Neighborhood CD: | 2 |
Owner |
| Name: | DLUGOSH, DAVID K / KATHY M M | Owner ID: | 53639 |
| Mailing Address: | 2481 MOUNTAIN VIEW RD FERNDALE, WA 98248 | % Ownership: | 100.0000000000% |
| | | Exemptions: | |
Taxes and Assessment Details
Values
| (+) Improvement Homesite Value: | + | $0 | |
| (+) Improvement Non-Homesite Value: | + | $108,957 | |
| (+) Land Homesite Value: | + | $0 | |
| (+) Land Non-Homesite Value: | + | $210,000 | |
| (+) Curr Use (HS): | + | $0 | $0 |
| (+) Curr Use (NHS): | + | $0 | $0 |
| | | -------------------------- | |
| (=) Market Value: | = | $318,957 | |
| (–) Productivity Loss: | – | $0 | |
| | | -------------------------- | |
| (=) Subtotal: | = | $318,957 | |
| (+) Senior Appraised Value: | + | $0 | |
| (+) Non-Senior Appraised Value: | + | $318,957 | |
| | | -------------------------- | |
| (=) Total Appraised Value: | = | $318,957 | |
| (–) Senior Exemption Loss: | – | $0 | |
| (–) Exemption Loss: | – | $0 | |
| | | -------------------------- | |
| (=) Taxable Value: | = | $318,957 | |
Taxing Jurisdiction
| Owner: | DLUGOSH, DAVID K / KATHY M M | | |
| % Ownership: | 100.0000000000% | | |
| Total Value: | $318,957 | | |
| Tax Area: | 310 - APPRAISER-Cpvl Schl Dist, outside Cpvl, improved & 1 acre or less |
| CF | Conservation Futures | 0.0316035091 | $318,957 | $318,957 | $10.08 | | |
| CEM2 | Cemetery #2 | 0.0095056933 | $318,957 | $318,957 | $3.03 | | |
| FIRE5 | Fire & Rescue Dist #5 C Whidbey GEN | 1.2008080668 | $318,957 | $318,957 | $383.01 | | |
| FIRE5BOND | Fire & Rescue Dist #5 C Whidbey BOND | 0.1400090713 | $318,957 | $318,957 | $44.66 | | |
| HOBOND | Hospital BOND | 0.1910887512 | $318,957 | $318,957 | $60.95 | | |
| HOGEN | Hospital GEN | 0.3902502903 | $318,957 | $318,957 | $124.47 | | |
| CE | County Current Expense | 0.3708482477 | $318,957 | $318,957 | $118.28 | | |
| CR | County Roads | 0.4584763726 | $318,957 | $318,957 | $146.23 | | |
| ISLANDEMS | Hospital GEN (EMS) | 0.5000000000 | $318,957 | $318,957 | $159.48 | | |
| LIB | Library Sno-Isle GEN | 0.3153421757 | $318,957 | $318,957 | $100.58 | | |
| LIBCAP | Library Sno-Isle BOND (Cap Fac Imp Area) | 0.0543427938 | $318,957 | $318,957 | $17.33 | | |
| POCOUP | Port of Coupeville GEN | 0.1093371703 | $318,957 | $318,957 | $34.87 | | |
| POCOUPIDD | Port of Coupeville IDD | 0.3409740022 | $318,957 | $318,957 | $108.76 | | |
| COUPSDTECH | School 204 CP (TECH) | 0.7545480007 | $318,957 | $318,957 | $240.67 | | |
| SCH204MO | School 204 Enrichment | 0.6716186034 | $318,957 | $318,957 | $214.22 | | |
| ST | State School | 1.3035497053 | $318,957 | $318,957 | $415.78 | | |
| ST2 | State School Part 2 | 0.8169543533 | $318,957 | $318,957 | $260.57 | | |
| | Total Tax Rate: | 7.6592568070 | | | | | |
| | | | | Taxes w/Current Exemptions: | $2,442.97 | | |
| | | | | Taxes w/o Exemptions: | $2,442.97 | | |
Improvement / Building
| Improvement #1: | MANUFACTURED HOME | State Code: | Y | 1236.0 sqft | Value: | $108,957 |
| Bathrooms: | 2 | Bedrooms: | 2 | | Ceiling: | PLASTER PAINTED | Cooling: | EVAP NO DUCT | | Exterior Wall/Cover: | VINYL | Floor Covering: | CARPET 100% | | Floor Structure: | SLAB ON GRADE | Foundation: | SLAB | | Heating: | FHA ELECTRIC | Interior Finish: | PLASTER | | Plumbing Fixture Cnt: | 1 | Roof Slope: | FLAT | | Roof Structure/Cover: | CJ ALUMINIUM HEAVY |   |   |
|
| | Type | Description | Class CD | Sub Class CD | Year Built | Area |
| | BAS | BASE/MAIN FLOOR | 3 | 0 | 1969 | 1236.0 |
| | oPOL | POLE BARN | 3 | 0 | 1995 | 1920.0 |
| | OWP | OPEN WOOD PORCH W/STEPS | 3 | 0 | 1969 | 76.0 |
Sketch
| No sketches available for this property. |
Property Image
Land
| 1 | 15 | SQ (12001-21780) | 0.5200 | 22651.20 | 0.00 | 0.00 | 1.00 | $210,000 | $0 |
Roll Value History
| 2026 | N/A | N/A | N/A | N/A | N/A |
| 2025 | $108,957 | $210,000 | $0 | $318,957 | $318,957 |
| 2024 | $58,271 | $190,000 | $0 | $248,271 | $248,271 |
| 2023 | $61,802 | $190,000 | $0 | $251,802 | $251,802 |
| 2022 | $60,762 | $170,000 | $0 | $230,762 | $230,762 |
| 2021 | $55,617 | $130,000 | $0 | $185,617 | $185,617 |
| 2020 | $56,679 | $120,000 | $0 | $176,679 | $176,679 |
| 2019 | $46,809 | $155,000 | $0 | $201,809 | $201,809 |
| 2018 | $45,553 | $135,000 | $0 | $180,553 | $180,553 |
| 2017 | $45,548 | $100,000 | $0 | $145,548 | $145,548 |
| 2016 | $45,548 | $90,000 | $0 | $135,548 | $135,548 |
| 2015 | $45,548 | $90,000 | $0 | $135,548 | $135,548 |
| 2014 | $45,548 | $85,000 | $0 | $130,548 | $130,548 |
| 2013 | $46,652 | $85,000 | $0 | $131,652 | $131,652 |
| 2012 | $48,055 | $61,750 | $0 | $109,805 | $109,805 |
| 2011 | $48,613 | $65,000 | $0 | $113,613 | $113,613 |
| 2010 | $56,338 | $65,000 | $0 | $121,338 | $121,338 |
| 2009 | $58,415 | $75,000 | $0 | $133,415 | $133,415 |
| 2008 | $59,849 | $67,200 | $0 | $127,049 | $127,049 |
| 2007 | $51,393 | $77,090 | $0 | $128,483 | $128,483 |
Deed and Sales History
| 1 | 02/01/1995 | OTHER | Other - Misc. Documents | DLUGOSH, DAVID K | DLUGOSH, DAVID K | | | $0.00 | 66280 | 95002722 |
| 2 | 11/01/1989 | OTHER | Other - Misc. Documents | DLUGOSH, DAVID K | DLUGOSH, DAVID K | | | $21,750.00 | 94982 | 0 |
| 3 | 10/01/1989 | WD | Warranty Deed | COOPER, JERROLD C | DLUGOSH, DAVID K | | | $10,000.00 | 94605 | 89015006 |
| 4 | 05/01/1987 | OTHER | Other - Misc. Documents | COOPER, JERROLD C | COOPER, JERROLD C | | | $16,250.00 | 71319 | 0 |
| 5 | 05/01/1987 | PACD | Purchaser's Assignment | REED, ROBIN/MARY | COOPER, JERROLD C | | | $12,500.00 | 71318 | 87006468 |
| 6 | 07/01/1982 | OTHER | Other - Misc. Documents | REED, ROBIN | REED, ROBIN/MARY | | | $10,060.00 | 21737 | 0 |
| 7 | 07/01/1982 | EXECUTORD | Executor Deed | BINFORD, PAUL J | REED, ROBIN | | | $17,143.00 | 21738 | 398591 |
| 8 | 09/01/1979 | OTHER | Other - Misc. Documents | BINFORD, PAUL J | BINFORD, PAUL J | | | $9,000.00 | 94523 | 0 |
| 9 | 09/01/1979 | EZ | Easement | DUNHAM, DANIEL A | BINFORD, PAUL J | | | $15,916.00 | 94524 | 0 |
| 10 | 06/01/1979 | EXECUTORD | Executor Deed | RHUBOTTOM, RICHARD | DUNHAM, DANIEL A | | | $14,000.00 | 929720 | 3542400 |
| 11 | 01/01/1900 | OTHER | Other - Misc. Documents | DUNHAM, DANIEL A | RHUBOTTOM, RICHARD | | | $0.00 | 0 | 0 |
| 12 | 01/01/1900 | OTHER | Other - Misc. Documents | Unknown | DUNHAM, DANIEL A | | | $0.00 | 0 | 0 |
Payout Agreement
| No payout information available.. |