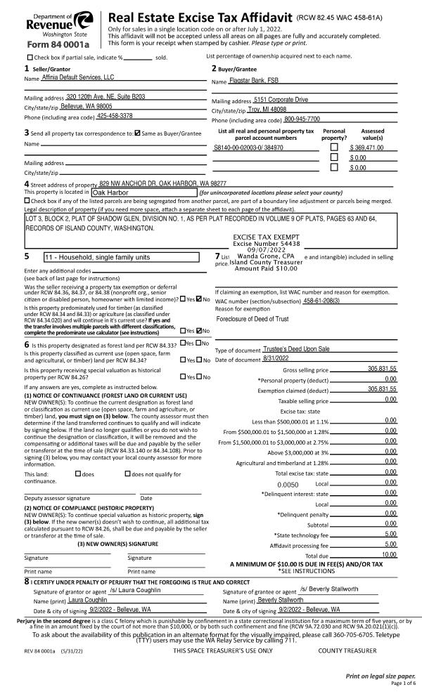
Property
Account |
| Property ID: | 188727 | Abbreviated Legal Description: | BEACHWOOD 1 LOT 2 BLK B |
| Geographic ID: | S6105-00-0B002-0 | Agent Code: | |
| Type: | Real | | |
| Tax Area: | 710 - APPRAISER-S Whid Schl Dist, outside Langley, improved & 1 acre or less | Land Use Code | 11 |
| Open Space: | N | DFL | N |
| Historic Property: | N | Remodel Property: | N |
| Multi-Family Redevelopment: | N | | |
| Township: | | Section: | |
| Range: | |
Location |
| Address: | 4311 LUNBERG ST LANGLEY, WA 98260 | Mapsco: | |
| Neighborhood: | Cycle 4 | Map ID: | 719 |
| Neighborhood CD: | 4 |
Owner |
| Name: | DICKINSON, CONOR | Owner ID: | 302657 |
| Mailing Address: | SHELBY DICKINSON 14440 129TH PL NE KIRKLAND, WA 98034 | % Ownership: | 100.0000000000% |
| | | Exemptions: | |
Taxes and Assessment Details
Values
| (+) Improvement Homesite Value: | + | $0 | |
| (+) Improvement Non-Homesite Value: | + | $206,882 | |
| (+) Land Homesite Value: | + | $0 | |
| (+) Land Non-Homesite Value: | + | $230,000 | |
| (+) Curr Use (HS): | + | $0 | $0 |
| (+) Curr Use (NHS): | + | $0 | $0 |
| | | -------------------------- | |
| (=) Market Value: | = | $436,882 | |
| (–) Productivity Loss: | – | $0 | |
| | | -------------------------- | |
| (=) Subtotal: | = | $436,882 | |
| (+) Senior Appraised Value: | + | $0 | |
| (+) Non-Senior Appraised Value: | + | $436,882 | |
| | | -------------------------- | |
| (=) Total Appraised Value: | = | $436,882 | |
| (–) Senior Exemption Loss: | – | $0 | |
| (–) Exemption Loss: | – | $0 | |
| | | -------------------------- | |
| (=) Taxable Value: | = | $436,882 | |
Taxing Jurisdiction
| Owner: | DICKINSON, CONOR | | |
| % Ownership: | 100.0000000000% | | |
| Total Value: | $436,882 | | |
| Tax Area: | 710 - APPRAISER-S Whid Schl Dist, outside Langley, improved & 1 acre or less |
| CF | Conservation Futures | 0.0316035091 | $436,882 | $436,882 | $13.81 | | |
| FIRE3 | Fire & Rescue Dist #3 S Whidbey GEN | 1.2004855531 | $436,882 | $436,882 | $524.47 | | |
| HOBOND | Hospital BOND | 0.1910887512 | $436,882 | $436,882 | $83.48 | | |
| HOGEN | Hospital GEN | 0.3902502903 | $436,882 | $436,882 | $170.49 | | |
| CE | County Current Expense | 0.3708482477 | $436,882 | $436,882 | $162.02 | | |
| CR | County Roads | 0.4584763726 | $436,882 | $436,882 | $200.30 | | |
| ISLANDEMS | Hospital GEN (EMS) | 0.5000000000 | $436,882 | $436,882 | $218.44 | | |
| LIB | Library Sno-Isle GEN | 0.3153421757 | $436,882 | $436,882 | $137.77 | | |
| PORTWHID | Port of S Whidbey GEN | 0.1094540357 | $436,882 | $436,882 | $47.82 | | |
| SCH206BOND | School 206 BOND | 0.3161759235 | $436,882 | $436,882 | $138.13 | | |
| SCH206MO | School 206 Enrichment | 0.4547169547 | $436,882 | $436,882 | $198.66 | | |
| ST | State School | 1.3035497053 | $436,882 | $436,882 | $569.50 | | |
| ST2 | State School Part 2 | 0.8169543533 | $436,882 | $436,882 | $356.91 | | |
| SWHIDPRBD | P & R S Whidbey BOND | 0.0152817568 | $436,882 | $436,882 | $6.68 | | |
| SWHIDPRBD2 | P & R S Whidbey BOND2 | 0.0138911264 | $436,882 | $436,882 | $6.07 | | |
| SWHIDPRMT | P & R S Whidbey GEN | 0.2053334452 | $436,882 | $436,882 | $89.71 | | |
| | Total Tax Rate: | 6.6934522006 | | | | | |
| | | | | Taxes w/Current Exemptions: | $2,924.26 | | |
| | | | | Taxes w/o Exemptions: | $2,924.26 | | |
Improvement / Building
| Improvement #1: | RESIDENTIAL | State Code: | Y | 1067.3 sqft | Value: | $206,882 |
| Bathrooms: | 1 | Bedrooms: | 2 | | Ceiling: | DRYWALL PAINTED | Exterior Wall/Cover: | PLY/HARDBOARD T-111 | | Floor Covering: | CARPET/VINYL 60-40 | Floor Structure: | WOOD W/SUBFLOOR | | Foundation: | CONCRETE | Heating: | WALL HEAT ELECTRIC | | Interior Finish: | DRYWALL PAINT | Plumbing Fixture Cnt: | 6 | | Roof Slope: | 6" IN 12" | Roof Structure/Cover: | CJ ASPHALT |
|
| | Type | Description | Class CD | Sub Class CD | Year Built | Area |
| | BAS | BASE/MAIN FLOOR | 3 | 0 | 2000 | 1067.3 |
| | OWP | OPEN WOOD PORCH W/STEPS | 3 | 0 | 2000 | 49.0 |
| | OWP | OPEN WOOD PORCH W/STEPS | 3 | 0 | 2000 | 87.5 |
Sketch
Property Image
Land
| 1 | 13 | SQ (06001-08000) | 0.0000 | 0.00 | 0.00 | 0.00 | 1.00 | $230,000 | $0 |
Roll Value History
| 2026 | N/A | N/A | N/A | N/A | N/A |
| 2025 | $206,882 | $230,000 | $0 | $436,882 | $436,882 |
| 2024 | $208,477 | $215,000 | $0 | $423,477 | $423,477 |
| 2023 | $210,186 | $230,000 | $0 | $440,186 | $440,186 |
| 2022 | $191,880 | $210,000 | $0 | $401,880 | $401,880 |
| 2021 | $160,565 | $150,000 | $0 | $310,565 | $310,565 |
| 2020 | $150,317 | $135,000 | $0 | $285,317 | $285,317 |
| 2019 | $108,316 | $170,000 | $0 | $278,316 | $278,316 |
| 2018 | $108,620 | $130,000 | $0 | $238,620 | $238,620 |
| 2017 | $109,158 | $100,000 | $0 | $209,158 | $209,158 |
| 2016 | $110,372 | $60,000 | $0 | $170,372 | $170,372 |
| 2015 | $98,633 | $50,000 | $0 | $148,633 | $148,633 |
| 2014 | $103,836 | $50,000 | $0 | $153,836 | $153,836 |
| 2013 | $105,003 | $50,000 | $0 | $155,003 | $155,003 |
| 2012 | $106,170 | $81,000 | $0 | $187,170 | $187,170 |
| 2011 | $107,336 | $90,000 | $0 | $197,336 | $197,336 |
| 2010 | $108,529 | $90,000 | $0 | $198,529 | $198,529 |
| 2009 | $113,345 | $100,000 | $0 | $213,345 | $213,345 |
| 2008 | $117,148 | $125,000 | $0 | $242,148 | $242,148 |
| 2007 | $117,631 | $125,000 | $0 | $242,631 | $242,631 |
Deed and Sales History
| 1 | 01/04/2022 | WD | Warranty Deed | RUDERMAN, LAVI D | DICKINSON, CONOR | | | $460,000.00 | 51659 | 4537907 |
| 2 | 04/14/2016 | WD | Warranty Deed | MILLER, CHARLES K | RUDERMAN, LAVI D | | | $227,000.00 | 23927 | 4397734 |
| 3 | 09/06/2002 | WD | Warranty Deed | GREEN, ARTHUR A | MILLER, CHARLES K | | | $131,500.00 | 23599 | 4030747 |
| 4 | 05/22/2000 | WD | Warranty Deed | DAWSON, STEPHEN | GREEN, ARTHUR A | | | $123,000.00 | 2020 | 20009600 |
| 5 | 05/22/2000 | QCD | Quit Claim Deed | DAWSON, C D | DAWSON, STEPHEN | | | $0.00 | 2019 | 20009599 |
| 6 | 05/01/1984 | QCD | Quit Claim Deed | DAWSON, STEPHEN | DAWSON, C D | | | $0.00 | 60697 | 86003339 |
| 7 | 01/01/1981 | CD | DNU - Correction Deed | DAWSON, C D | DAWSON, STEPHEN | | | $5,765.00 | 10588 | 379958 |
| 8 | 10/01/1979 | EXECUTORD | Executor Deed | VRANJIN, BLAGOJE | DAWSON, C D | | | $5,500.00 | 95129 | 360601 |
| 9 | 12/01/1978 | OTHER | Other - Misc. Documents | Unknown | VRANJIN, BLAGOJE | | | $3,500.00 | 860900 | 3446150 |
Payout Agreement
| No payout information available.. |