Property
Account |
| Property ID: | 18876 | Abbreviated Legal Description: | 130 - IN GL 5:BG NW CR GL5 S763.1' S88*E626.53' TPB S88*E159.37' N217.3' S52* W163.3' S33*W55' S70.23' TPB TGW SUB TO EZ |
| Geographic ID: | R13210-458-3380 | Agent Code: | |
| Type: | Real | | |
| Tax Area: | 110 - APPRAISER-OH Schl Dist, outside OH, improved & 1 acre or less | Land Use Code | 11 |
| Open Space: | N | DFL | N |
| Historic Property: | N | Remodel Property: | N |
| Multi-Family Redevelopment: | N | | |
| Township: | 32 | Section: | 10 |
| Range: | R1 |
Location |
| Address: | 950 POPPYS PLACE OAK HARBOR, WA 98277 | Mapsco: | |
| Neighborhood: | Cycle 1 | Map ID: | 119 |
| Neighborhood CD: | 1 |
Owner |
| Name: | WENDLING, KENNETH KYLE | Owner ID: | 281882 |
| Mailing Address: | JOY LYNN WENDLING 950 POPPYS PLACE OAK HARBOR, WA 98277 | % Ownership: | 100.0000000000% |
| | | Exemptions: | |
Taxes and Assessment Details
Values
| (+) Improvement Homesite Value: | + | $0 | |
| (+) Improvement Non-Homesite Value: | + | $517,070 | |
| (+) Land Homesite Value: | + | $0 | |
| (+) Land Non-Homesite Value: | + | $260,000 | |
| (+) Curr Use (HS): | + | $0 | $0 |
| (+) Curr Use (NHS): | + | $0 | $0 |
| | | -------------------------- | |
| (=) Market Value: | = | $777,070 | |
| (–) Productivity Loss: | – | $0 | |
| | | -------------------------- | |
| (=) Subtotal: | = | $777,070 | |
| (+) Senior Appraised Value: | + | $0 | |
| (+) Non-Senior Appraised Value: | + | $777,070 | |
| | | -------------------------- | |
| (=) Total Appraised Value: | = | $777,070 | |
| (–) Senior Exemption Loss: | – | $0 | |
| (–) Exemption Loss: | – | $0 | |
| | | -------------------------- | |
| (=) Taxable Value: | = | $777,070 | |
Taxing Jurisdiction
| Owner: | WENDLING, KENNETH KYLE | | |
| % Ownership: | 100.0000000000% | | |
| Total Value: | $777,070 | | |
| Tax Area: | 110 - APPRAISER-OH Schl Dist, outside OH, improved & 1 acre or less |
| CF | Conservation Futures | 0.0316035091 | $777,070 | $777,070 | $24.56 | | |
| CEM1 | Cemetery #1 | 0.0040320932 | $777,070 | $777,070 | $3.13 | | |
| FIRE2 | Fire & Rescue Dist #2 N Whidbey GEN | 0.5475949600 | $777,070 | $777,070 | $425.52 | | |
| HOBOND | Hospital BOND | 0.1910887512 | $777,070 | $777,070 | $148.49 | | |
| HOGEN | Hospital GEN | 0.3902502903 | $777,070 | $777,070 | $303.25 | | |
| CE | County Current Expense | 0.3708482477 | $777,070 | $777,070 | $288.18 | | |
| CR | County Roads | 0.4584763726 | $777,070 | $777,070 | $356.27 | | |
| ISLANDEMS | Hospital GEN (EMS) | 0.5000000000 | $777,070 | $777,070 | $388.54 | | |
| LIB | Library Sno-Isle GEN | 0.3153421757 | $777,070 | $777,070 | $245.04 | | |
| NWHIDPRMT | P & R N Whidbey GEN | 0.2004466701 | $777,070 | $777,070 | $155.76 | | |
| SCH201MO | School 201 Enrichment | 1.8559231640 | $777,070 | $777,070 | $1,442.18 | | |
| ST | State School | 1.3035497053 | $777,070 | $777,070 | $1,012.95 | | |
| ST2 | State School Part 2 | 0.8169543533 | $777,070 | $777,070 | $634.83 | | |
| | Total Tax Rate: | 6.9861102925 | | | | | |
| | | | | Taxes w/Current Exemptions: | $5,428.70 | | |
| | | | | Taxes w/o Exemptions: | $5,428.70 | | |
Improvement / Building
| Improvement #1: | RESIDENTIAL | State Code: | Y | 3818.8 sqft | Value: | $517,070 |
| Bathrooms: | 3.5 | Bedrooms: | 4 | | Ceiling: | DRYWALL PAINTED | Cooling: | HEAT PUMP/CONV/V | | Exterior Wall/Cover: | CEMENT FIBER | Floor Covering: | CARPET/VINYL 80-20 | | Floor Structure: | WOOD W/SUBFLOOR | Foundation: | CONCRETE | | Interior Finish: | DRYWALL PAINT | Plumbing Fixture Cnt: | 15 | | Roof Slope: | 8" IN 12" | Roof Structure/Cover: | CJ ASPHALT |
|
| | Type | Description | Class CD | Sub Class CD | Year Built | Area |
| | BAS | BASE/MAIN FLOOR | 4 | 0 | 1992 | 1459.8 |
| | UB8 | BASEMENT UNFINISHED 8" | 4 | 0 | 1992 | 261.0 |
| | OP1 | OPEN PORCH SLAB | 4 | 0 | 1992 | 60.0 |
| | OP4 | OPEN PORCH W/CEILING-ROOF | 4 | 0 | 1992 | 108.0 |
| | AGR | ATTACHED GARAGE | 4 | 0 | 1992 | 576.0 |
| | UPS | UPPER STORY | 4 | 0 | 1992 | 1136.0 |
| | OWP | OPEN WOOD PORCH W/STEPS | 4 | 0 | 1992 | 192.2 |
| | OWC | OPEN WOOD PORCH W/STEPS/ROOF/C | 4 | 0 | 1992 | 60.0 |
| | LOF | LOFT | 4 | 0 | 1992 | 120.0 |
| | DWN | DOWNSTAIRS LIVING AREA | 4 | 0 | 1992 | 1103.0 |
Sketch
Property Image
Land
| 1 | 16 | AC (00.51-01.00) | 0.5500 | 23958.00 | 0.00 | 0.00 | 1.00 | $260,000 | $0 |
Roll Value History
| 2026 | N/A | N/A | N/A | N/A | N/A |
| 2025 | $517,070 | $260,000 | $0 | $777,070 | $777,070 |
| 2024 | $523,593 | $240,000 | $0 | $763,593 | $763,593 |
| 2023 | $530,117 | $250,000 | $0 | $780,117 | $780,117 |
| 2022 | $485,922 | $250,000 | $0 | $735,922 | $735,922 |
| 2021 | $427,682 | $185,000 | $0 | $612,682 | $612,682 |
| 2020 | $417,650 | $150,000 | $0 | $567,650 | $567,650 |
| 2019 | $339,246 | $200,000 | $0 | $539,246 | $539,246 |
| 2018 | $340,241 | $150,000 | $0 | $490,241 | $490,241 |
| 2017 | $302,958 | $150,000 | $0 | $452,958 | $452,958 |
| 2016 | $306,732 | $120,000 | $0 | $426,732 | $426,732 |
| 2015 | $310,503 | $120,000 | $0 | $430,503 | $430,503 |
| 2014 | $314,275 | $120,000 | $0 | $434,275 | $434,275 |
| 2013 | $318,047 | $123,250 | $0 | $441,297 | $441,297 |
| 2012 | $321,819 | $123,250 | $0 | $445,069 | $445,069 |
| 2011 | $326,360 | $145,000 | $0 | $471,360 | $471,360 |
| 2010 | $335,154 | $145,000 | $0 | $480,154 | $480,154 |
| 2009 | $349,248 | $140,000 | $0 | $489,248 | $489,248 |
| 2008 | $366,053 | $174,240 | $0 | $540,293 | $540,293 |
| 2007 | $370,315 | $174,266 | $0 | $544,581 | $544,581 |
Deed and Sales History
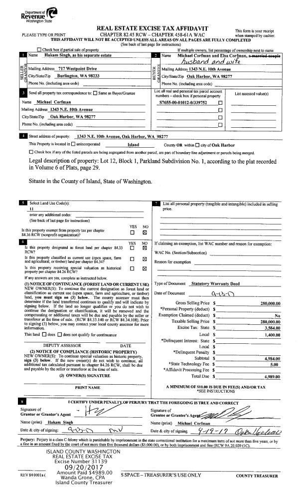
| 1 | 09/08/2017 | WD | Warranty Deed | WENDLING, PHILLIP G | WENDLING, KENNETH KYLE | | | $300,000.00 | 31053 | 4430034 |
| 2 | 07/01/1978 | OTHER | Other - Misc. Documents | Unknown | WENDLING, PHILLIP G | | | $18,500.00 | 83751 | 337536 |
Payout Agreement
| No payout information available.. |