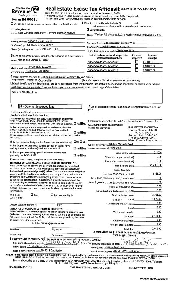
Property
Account |
| Property ID: | 18910 | Abbreviated Legal Description: | 103 - IN GL5: BG NWCR GL5 S763.1' S88*E392.39' N30' TPB N247.3' S88*E201.51' S120' S33*W55' S61*W162.31' N88*W30' TPB |
| Geographic ID: | R13210-468-3130 | Agent Code: | |
| Type: | Real | | |
| Tax Area: | 110 - APPRAISER-OH Schl Dist, outside OH, improved & 1 acre or less | Land Use Code | 11 |
| Open Space: | N | DFL | N |
| Historic Property: | N | Remodel Property: | N |
| Multi-Family Redevelopment: | N | | |
| Township: | 32 | Section: | 10 |
| Range: | R1 |
Location |
| Address: | 966 POPPYS PLACE OAK HARBOR, WA 98277 | Mapsco: | |
| Neighborhood: | Cycle 1 | Map ID: | 119 |
| Neighborhood CD: | 1 |
Owner |
| Name: | COLLINS, NANCY L | Owner ID: | 297534 |
| Mailing Address: | 954 POPPY PL OAK HARBOR, WA 98277 | % Ownership: | 100.0000000000% |
| | | Exemptions: | |
Taxes and Assessment Details
Values
| (+) Improvement Homesite Value: | + | $0 | |
| (+) Improvement Non-Homesite Value: | + | $252,839 | |
| (+) Land Homesite Value: | + | $0 | |
| (+) Land Non-Homesite Value: | + | $260,000 | |
| (+) Curr Use (HS): | + | $0 | $0 |
| (+) Curr Use (NHS): | + | $0 | $0 |
| | | -------------------------- | |
| (=) Market Value: | = | $512,839 | |
| (–) Productivity Loss: | – | $0 | |
| | | -------------------------- | |
| (=) Subtotal: | = | $512,839 | |
| (+) Senior Appraised Value: | + | $0 | |
| (+) Non-Senior Appraised Value: | + | $512,839 | |
| | | -------------------------- | |
| (=) Total Appraised Value: | = | $512,839 | |
| (–) Senior Exemption Loss: | – | $0 | |
| (–) Exemption Loss: | – | $0 | |
| | | -------------------------- | |
| (=) Taxable Value: | = | $512,839 | |
Taxing Jurisdiction
| Owner: | COLLINS, NANCY L | | |
| % Ownership: | 100.0000000000% | | |
| Total Value: | $512,839 | | |
| Tax Area: | 110 - APPRAISER-OH Schl Dist, outside OH, improved & 1 acre or less |
| CF | Conservation Futures | 0.0316035091 | $512,839 | $512,839 | $16.21 | | |
| CEM1 | Cemetery #1 | 0.0040320932 | $512,839 | $512,839 | $2.07 | | |
| FIRE2 | Fire & Rescue Dist #2 N Whidbey GEN | 0.5475949600 | $512,839 | $512,839 | $280.83 | | |
| HOBOND | Hospital BOND | 0.1910887512 | $512,839 | $512,839 | $98.00 | | |
| HOGEN | Hospital GEN | 0.3902502903 | $512,839 | $512,839 | $200.14 | | |
| CE | County Current Expense | 0.3708482477 | $512,839 | $512,839 | $190.19 | | |
| CR | County Roads | 0.4584763726 | $512,839 | $512,839 | $235.12 | | |
| ISLANDEMS | Hospital GEN (EMS) | 0.5000000000 | $512,839 | $512,839 | $256.42 | | |
| LIB | Library Sno-Isle GEN | 0.3153421757 | $512,839 | $512,839 | $161.72 | | |
| NWHIDPRMT | P & R N Whidbey GEN | 0.2004466701 | $512,839 | $512,839 | $102.80 | | |
| SCH201MO | School 201 Enrichment | 1.8559231640 | $512,839 | $512,839 | $951.79 | | |
| ST | State School | 1.3035497053 | $512,839 | $512,839 | $668.51 | | |
| ST2 | State School Part 2 | 0.8169543533 | $512,839 | $512,839 | $418.97 | | |
| | Total Tax Rate: | 6.9861102925 | | | | | |
| | | | | Taxes w/Current Exemptions: | $3,582.77 | | |
| | | | | Taxes w/o Exemptions: | $3,582.77 | | |
Improvement / Building
| Improvement #1: | RESIDENTIAL | State Code: | Y | 1350.0 sqft | Value: | $252,839 |
| Bathrooms: | 2 | Bedrooms: | 2 | | Ceiling: | DRYWALL PAINTED | Cooling: | HEAT PUMP/CONV/V | | Exterior Wall/Cover: | ASBESTOES/ASPHALT | Floor Covering: | CARPET/VINYL 80-20 | | Floor Structure: | WOOD W/SUBFLOOR | Foundation: | CONCRETE | | Interior Finish: | DRYWALL PAINT | Plumbing Fixture Cnt: | 9 | | Roof Slope: | 4" IN 12" | Roof Structure/Cover: | CJ ASPHALT |
|
| | Type | Description | Class CD | Sub Class CD | Year Built | Area |
| | BAS | BASE/MAIN FLOOR | 3 | 0 | 1945 | 1350.0 |
| | UTY | STORAGE/UTILITY | 3 | 0 | 1945 | 440.0 |
| | OWR | OPEN WOOD PORCH W/STEPS/ROOF | 3 | 0 | 1945 | 96.0 |
| | OP4 | OPEN PORCH W/CEILING-ROOF | 3 | 0 | 1945 | 54.0 |
| | OWP | OPEN WOOD PORCH W/STEPS | 3 | 0 | 1945 | 352.8 |
| | UTY | STORAGE/UTILITY | 3 | 0 | 1945 | 864.0 |
Sketch
Property Image
Land
| 1 | 16 | AC (00.51-01.00) | 0.8500 | 37026.00 | 0.00 | 0.00 | 1.00 | $260,000 | $0 |
Roll Value History
| 2026 | N/A | N/A | N/A | N/A | N/A |
| 2025 | $252,839 | $260,000 | $0 | $512,839 | $512,839 |
| 2024 | $256,437 | $240,000 | $0 | $496,437 | $496,437 |
| 2023 | $180,775 | $200,000 | $0 | $380,775 | $380,775 |
| 2022 | $166,825 | $180,000 | $0 | $346,825 | $346,825 |
| 2021 | $147,789 | $135,000 | $0 | $282,789 | $282,789 |
| 2020 | $144,775 | $100,000 | $0 | $244,775 | $244,775 |
| 2019 | $103,625 | $160,000 | $0 | $263,625 | $77,921 |
| 2018 | $104,087 | $140,000 | $0 | $244,087 | $77,921 |
| 2017 | $71,585 | $150,000 | $0 | $221,585 | $77,921 |
| 2016 | $73,195 | $150,000 | $0 | $223,195 | $148,999 |
| 2015 | $74,803 | $120,000 | $0 | $194,803 | $134,803 |
| 2014 | $76,414 | $120,000 | $0 | $196,414 | $196,414 |
| 2013 | $78,022 | $114,750 | $0 | $192,772 | $192,772 |
| 2012 | $79,631 | $114,750 | $0 | $194,381 | $194,381 |
| 2011 | $80,191 | $135,000 | $0 | $215,191 | $215,191 |
| 2010 | $93,924 | $135,000 | $0 | $228,924 | $228,924 |
| 2009 | $98,166 | $140,000 | $0 | $238,166 | $238,166 |
| 2008 | $103,704 | $174,240 | $0 | $277,944 | $277,944 |
| 2007 | $117,530 | $162,303 | $0 | $279,833 | $279,833 |
Deed and Sales History
| 1 | 12/29/2020 | QCD | Quit Claim Deed | COLLINS, NANCY L | COLLINS, NANCY L | | | $0.00 | 46346 | 4506600 |
| 2 | 12/24/2020 | WD | Warranty Deed | PRATS, SUE C | COLLINS, NANCY L | | | $445,000.00 | 46345 | 4506599 |
| 3 | 11/21/2017 | QCD | Quit Claim Deed | PRATS, CARL | PRATS, SUE C | | | $0.00 | 32007 | 4434544 |
| 4 | 12/01/1988 | WD | Warranty Deed | MANSO, MIKE | PRATS, CARL | | | $74,000.00 | 84304 | 88015984 |
| 5 | 01/01/1900 | OTHER | Other - Misc. Documents | Unknown | MANSO, MIKE | | | $0.00 | 0 | 0 |
Payout Agreement
| No payout information available.. |