Property
Account |
| Property ID: | 189129 | Abbreviated Legal Description: | Beachwood - 2,s Lot 003,s Blk 0B;s BLA 053/22 AF#4543571s |
| Geographic ID: | S6105-02-0B003-0 | Agent Code: | |
| Type: | Real | | |
| Tax Area: | 719 - APPRAISER-S Whid Schl Dist, outside Langley, vacant & 50 acres or less | Land Use Code | 99 |
| Open Space: | N | DFL | N |
| Historic Property: | N | Remodel Property: | N |
| Multi-Family Redevelopment: | N | | |
| Township: | | Section: | |
| Range: | |
Location |
| Address: | 4349 LUNBERG ST LANGLEY, WA 98260 | Mapsco: | |
| Neighborhood: | Cycle 4 | Map ID: | 719 |
| Neighborhood CD: | 4 |
Owner |
| Name: | KEITH TTEE, BARBARA LAURIE | Owner ID: | 297622 |
| Mailing Address: | 4351 LUNBERG ST LANGLEY, WA 98260 | % Ownership: | 100.0000000000% |
| | | Exemptions: | |
Taxes and Assessment Details
Values
| (+) Improvement Homesite Value: | + | $0 | |
| (+) Improvement Non-Homesite Value: | + | $0 | |
| (+) Land Homesite Value: | + | $0 | |
| (+) Land Non-Homesite Value: | + | $80,000 | |
| (+) Curr Use (HS): | + | $0 | $0 |
| (+) Curr Use (NHS): | + | $0 | $0 |
| | | -------------------------- | |
| (=) Market Value: | = | $80,000 | |
| (–) Productivity Loss: | – | $0 | |
| | | -------------------------- | |
| (=) Subtotal: | = | $80,000 | |
| (+) Senior Appraised Value: | + | $0 | |
| (+) Non-Senior Appraised Value: | + | $80,000 | |
| | | -------------------------- | |
| (=) Total Appraised Value: | = | $80,000 | |
| (–) Senior Exemption Loss: | – | $0 | |
| (–) Exemption Loss: | – | $0 | |
| | | -------------------------- | |
| (=) Taxable Value: | = | $80,000 | |
Taxing Jurisdiction
| Owner: | KEITH TTEE, BARBARA LAURIE | | |
| % Ownership: | 100.0000000000% | | |
| Total Value: | $80,000 | | |
| Tax Area: | 719 - APPRAISER-S Whid Schl Dist, outside Langley, vacant & 50 acres or less |
| CF | Conservation Futures | 0.0316035091 | $80,000 | $80,000 | $2.53 | | |
| HOBOND | Hospital BOND | 0.1910887512 | $80,000 | $80,000 | $15.29 | | |
| HOGEN | Hospital GEN | 0.3902502903 | $80,000 | $80,000 | $31.22 | | |
| CE | County Current Expense | 0.3708482477 | $80,000 | $80,000 | $29.67 | | |
| CR | County Roads | 0.4584763726 | $80,000 | $80,000 | $36.68 | | |
| ISLANDEMS | Hospital GEN (EMS) | 0.5000000000 | $80,000 | $80,000 | $40.00 | | |
| LIB | Library Sno-Isle GEN | 0.3153421757 | $80,000 | $80,000 | $25.23 | | |
| PORTWHID | Port of S Whidbey GEN | 0.1094540357 | $80,000 | $80,000 | $8.76 | | |
| SCH206BOND | School 206 BOND | 0.3161759235 | $80,000 | $80,000 | $25.29 | | |
| SCH206MO | School 206 Enrichment | 0.4547169547 | $80,000 | $80,000 | $36.38 | | |
| ST | State School | 1.3035497053 | $80,000 | $80,000 | $104.28 | | |
| ST2 | State School Part 2 | 0.8169543533 | $80,000 | $80,000 | $65.36 | | |
| SWHIDPRBD | P & R S Whidbey BOND | 0.0152817568 | $80,000 | $80,000 | $1.22 | | |
| SWHIDPRBD2 | P & R S Whidbey BOND2 | 0.0138911264 | $80,000 | $80,000 | $1.11 | | |
| SWHIDPRMT | P & R S Whidbey GEN | 0.2053334452 | $80,000 | $80,000 | $16.43 | | |
| | Total Tax Rate: | 5.4929666475 | | | | | |
| | | | | Taxes w/Current Exemptions: | $439.45 | | |
| | | | | Taxes w/o Exemptions: | $439.45 | | |
Improvement / Building
Sketch
| No sketches available for this property. |
Property Image
Land
| 1 | 14 | SQ (08001-12000) | 0.2581 | 11242.84 | 0.00 | 0.00 | 1.00 | $80,000 | $0 |
Roll Value History
| 2026 | N/A | N/A | N/A | N/A | N/A |
| 2025 | $0 | $80,000 | $0 | $80,000 | $80,000 |
| 2024 | $0 | $75,000 | $0 | $75,000 | $75,000 |
| 2023 | $0 | $70,000 | $0 | $70,000 | $70,000 |
| 2022 | $0 | $40,000 | $0 | $40,000 | $40,000 |
| 2021 | $0 | $25,000 | $0 | $25,000 | $25,000 |
| 2020 | $0 | $25,000 | $0 | $25,000 | $25,000 |
| 2019 | $0 | $25,000 | $0 | $25,000 | $25,000 |
| 2018 | $0 | $15,000 | $0 | $15,000 | $15,000 |
| 2017 | $0 | $5,000 | $0 | $5,000 | $5,000 |
| 2016 | $0 | $5,000 | $0 | $5,000 | $5,000 |
| 2015 | $0 | $5,000 | $0 | $5,000 | $5,000 |
| 2014 | $0 | $5,000 | $0 | $5,000 | $5,000 |
| 2013 | $0 | $5,000 | $0 | $5,000 | $5,000 |
| 2012 | $0 | $13,650 | $0 | $13,650 | $13,650 |
| 2011 | $0 | $13,650 | $0 | $13,650 | $13,650 |
| 2010 | $0 | $13,650 | $0 | $13,650 | $13,650 |
| 2009 | $0 | $13,650 | $0 | $13,650 | $13,650 |
| 2008 | $0 | $9,765 | $0 | $9,765 | $9,765 |
| 2007 | $0 | $9,765 | $0 | $9,765 | $9,765 |
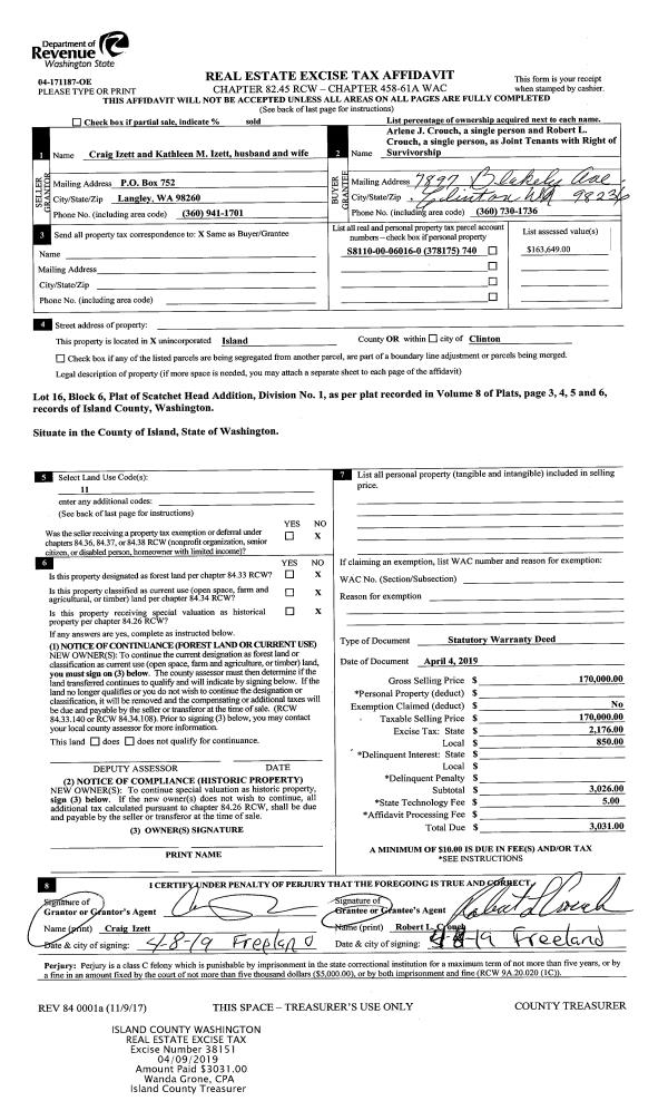
Deed and Sales History
| 1 | 12/28/2020 | WD | Warranty Deed | CORRECTLY, LLC | KEITH TTEE, BARBARA LAURIE | | | $105,000.00 | 46445 | 4507121 |
|   | |
| 2 | 10/08/2020 | WD | Warranty Deed | SHOUDY, JUDITH D | CORRECTLY, LLC | | | $40,000.00 | 45168 | 4499012 |
|   | |
| 3 | 04/22/2019 | QCD | Quit Claim Deed | SHOUDY, GORDON | SHOUDY, JUDITH D | | | $0.00 | 38111 | 4461530 |
Payout Agreement
| No payout information available.. |