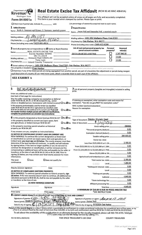
Property
Account |
| Property ID: | 189478 | Abbreviated Legal Description: | BEEKSMA 1ST LOT 1 |
| Geographic ID: | S6110-00-00001-0 | Agent Code: | |
| Type: | Real | | |
| Tax Area: | 100 - APPRAISER-OH Schl Dist, in OH | Land Use Code | 11 |
| Open Space: | N | DFL | N |
| Historic Property: | N | Remodel Property: | N |
| Multi-Family Redevelopment: | N | | |
| Township: | | Section: | |
| Range: | |
Location |
| Address: | 1468 SE 8TH AVE OAK HARBOR, WA 98277 | Mapsco: | |
| Neighborhood: | Cycle 1 | Map ID: | 89 |
| Neighborhood CD: | 1 |
Owner |
| Name: | MCKOLE, MARY ANN | Owner ID: | 74747 |
| Mailing Address: | 1468 SE 8TH AVE OAK HARBOR, WA 98277-3095 | % Ownership: | 100.0000000000% |
| | | Exemptions: | |
Taxes and Assessment Details
Values
| (+) Improvement Homesite Value: | + | $0 | |
| (+) Improvement Non-Homesite Value: | + | $280,724 | |
| (+) Land Homesite Value: | + | $0 | |
| (+) Land Non-Homesite Value: | + | $185,000 | |
| (+) Curr Use (HS): | + | $0 | $0 |
| (+) Curr Use (NHS): | + | $0 | $0 |
| | | -------------------------- | |
| (=) Market Value: | = | $465,724 | |
| (–) Productivity Loss: | – | $0 | |
| | | -------------------------- | |
| (=) Subtotal: | = | $465,724 | |
| (+) Senior Appraised Value: | + | $0 | |
| (+) Non-Senior Appraised Value: | + | $465,724 | |
| | | -------------------------- | |
| (=) Total Appraised Value: | = | $465,724 | |
| (–) Senior Exemption Loss: | – | $0 | |
| (–) Exemption Loss: | – | $0 | |
| | | -------------------------- | |
| (=) Taxable Value: | = | $465,724 | |
Taxing Jurisdiction
| Owner: | MCKOLE, MARY ANN | | |
| % Ownership: | 100.0000000000% | | |
| Total Value: | $465,724 | | |
| Tax Area: | 100 - APPRAISER-OH Schl Dist, in OH |
| CF | Conservation Futures | 0.0316035091 | $465,724 | $465,724 | $14.72 | | |
| CEM1 | Cemetery #1 | 0.0040320932 | $465,724 | $465,724 | $1.88 | | |
| COH | City of Oak Harbor | 2.3001546061 | $465,724 | $465,724 | $1,071.24 | | |
| OAKBOND | City of Oak Harbor BOND | 0.1926904192 | $465,724 | $465,724 | $89.74 | | |
| HOBOND | Hospital BOND | 0.1910887512 | $465,724 | $465,724 | $88.99 | | |
| HOGEN | Hospital GEN | 0.3902502903 | $465,724 | $465,724 | $181.75 | | |
| CE | County Current Expense | 0.3708482477 | $465,724 | $465,724 | $172.71 | | |
| ISLANDEMS | Hospital GEN (EMS) | 0.5000000000 | $465,724 | $465,724 | $232.86 | | |
| LIB | Library Sno-Isle GEN | 0.3153421757 | $465,724 | $465,724 | $146.86 | | |
| NWHIDPRMT | P & R N Whidbey GEN | 0.2004466701 | $465,724 | $465,724 | $93.35 | | |
| SCH201MO | School 201 Enrichment | 1.8559231640 | $465,724 | $465,724 | $864.35 | | |
| ST | State School | 1.3035497053 | $465,724 | $465,724 | $607.09 | | |
| ST2 | State School Part 2 | 0.8169543533 | $465,724 | $465,724 | $380.48 | | |
| | Total Tax Rate: | 8.4728839852 | | | | | |
| | | | | Taxes w/Current Exemptions: | $3,946.02 | | |
| | | | | Taxes w/o Exemptions: | $3,946.02 | | |
Improvement / Building
| Improvement #1: | RESIDENTIAL | State Code: | Y | 2256.0 sqft | Value: | $280,724 |
| Bathrooms: | 2 | Bedrooms: | 5 | | Ceiling: | DRYWALL PAINTED | Exterior Wall/Cover: | WOOD SIDING | | Floor Covering: | CARPET/VINYL 80-20 | Floor Structure: | WOOD W/SUBFLOOR | | Foundation: | CONCRETE | Heating: | FHA GAS | | Interior Finish: | DRYWALL PAINT | Plumbing Fixture Cnt: | 9 | | Roof Slope: | 12" IN 12" | Roof Structure/Cover: | CJ WOOD SHAKES |
|
| | Type | Description | Class CD | Sub Class CD | Year Built | Area |
| | BAS | BASE/MAIN FLOOR | 3 | 0 | 1946 | 1123.0 |
| | UB6 | BASEMENT UNFINISHED 6" | 3 | 0 | 1946 | 540.0 |
| | DWN | DOWNSTAIRS LIVING AREA | 3 | 0 | 1946 | 551.0 |
| | OP1 | OPEN PORCH SLAB | 3 | 0 | 1946 | 102.0 |
| | OWP | OPEN WOOD PORCH W/STEPS | 3 | 0 | 1946 | 204.0 |
| | UPH | HALF STORY | 3 | 0 | 1946 | 582.0 |
Sketch
Property Image
Land
| 1 | 15 | SQ (12001-21780) | 0.4800 | 20908.80 | 0.00 | 0.00 | 1.00 | $185,000 | $0 |
Roll Value History
| 2026 | N/A | N/A | N/A | N/A | N/A |
| 2025 | $280,724 | $185,000 | $0 | $465,724 | $465,724 |
| 2024 | $284,837 | $175,000 | $0 | $459,837 | $459,837 |
| 2023 | $261,919 | $180,000 | $0 | $441,919 | $441,919 |
| 2022 | $240,704 | $180,000 | $0 | $420,704 | $420,704 |
| 2021 | $212,371 | $125,000 | $0 | $337,371 | $337,371 |
| 2020 | $207,996 | $100,000 | $0 | $307,996 | $307,996 |
| 2019 | $161,929 | $140,000 | $0 | $301,929 | $301,929 |
| 2018 | $162,498 | $125,000 | $0 | $287,498 | $287,498 |
| 2017 | $74,285 | $110,000 | $0 | $184,285 | $184,285 |
| 2016 | $76,471 | $90,000 | $0 | $166,471 | $166,471 |
| 2015 | $78,440 | $70,000 | $0 | $148,440 | $148,440 |
| 2014 | $80,620 | $55,000 | $0 | $135,620 | $135,620 |
| 2013 | $82,798 | $55,000 | $0 | $137,798 | $137,798 |
| 2012 | $84,978 | $60,000 | $0 | $144,978 | $144,978 |
| 2011 | $87,771 | $85,000 | $0 | $172,771 | $172,771 |
| 2010 | $96,511 | $85,000 | $0 | $181,511 | $181,511 |
| 2009 | $101,554 | $161,000 | $0 | $262,554 | $262,554 |
| 2008 | $103,756 | $181,500 | $0 | $285,256 | $285,256 |
| 2007 | $105,957 | $150,000 | $0 | $255,957 | $255,957 |
Deed and Sales History
| 1 | 08/01/1993 | OTHER | Other - Misc. Documents | MCKOLE, RICHARD J | MCKOLE, MARY A | | | $0.00 | 65513 | 0 |
| 2 | 01/01/1900 | OTHER | Other - Misc. Documents | Unknown | MCKOLE, RICHARD J | | | $0.00 | 0 | 0 |
Payout Agreement
| No payout information available.. |